Bode Student Portfolio

Page 1

MARISSA BODE

INTERIOR DESIGN PORTFOLIO, SPRING 2021

This portfolio is a product of hard work and dedication. There is a lot of pride and gratitude towards the College of DuPage for providing the tools and knowledge needed to make this happen. In this portfolio are examples of residential, office, restaurant, and retail design. The skills represented in this portfolio include:

• Space Planning

• Implementation of Code Regulations

• Sustainable Design

• Human Centric Design

• Material and Finish Selection

• Software Skills including Autodesk Auto CAD, Adobe Photoshop, SketchUp with V-Ray

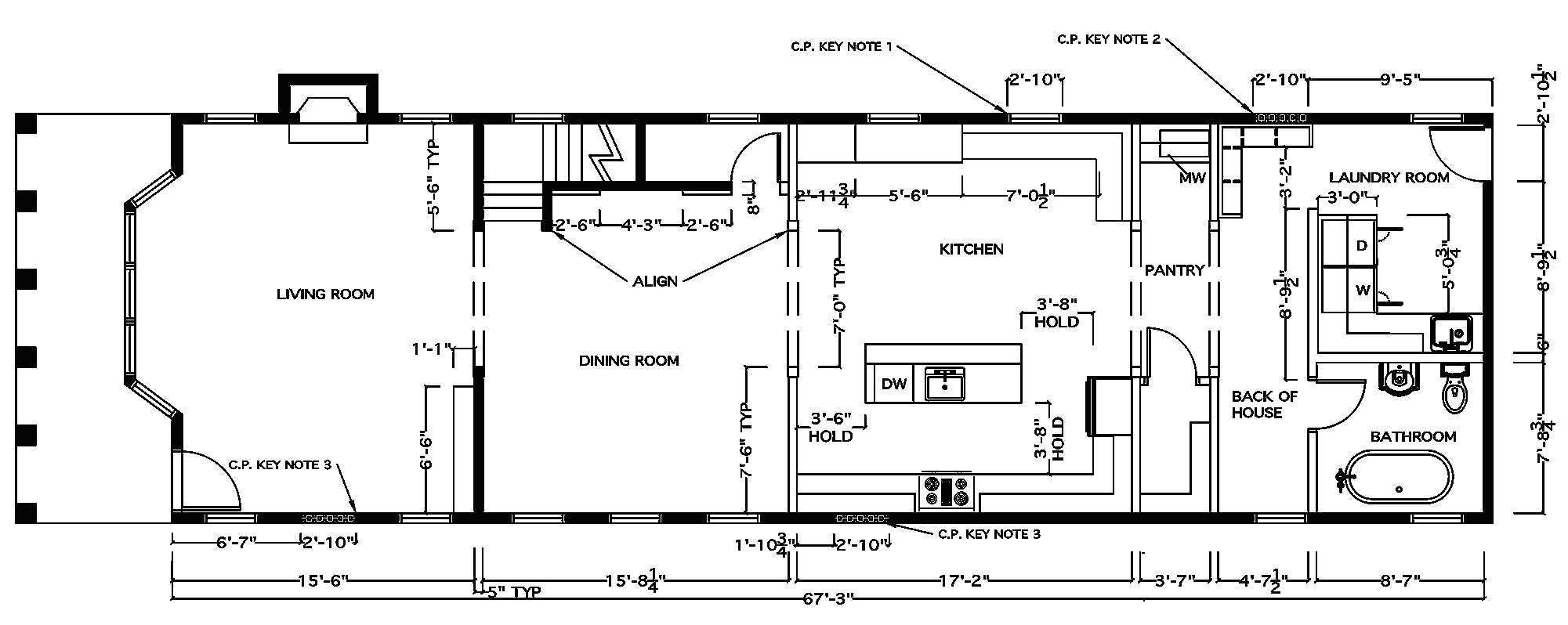
The customization of the Stewart residence foyer, living room, dining room, family room and bonus room, turned a blank canvas into a beautiful home by:

• Adding custom features such as built-ins, ceiling details and height changes as well as adding interesting dividing walls in the space.

• Creating a unique and textural palette to last, in terms of style and sustainability. The timeless colors and textures were chosen with durability and environmental factors such as, PVC free, biobased and recycled materials in mind.

• Producing a traffic pattern with an easy flow to aid in the aging in place process.

Client Specifications:

Include plant life, integrate striking chandeliers, no use of black paint, no use of fur or animal skin rugs.

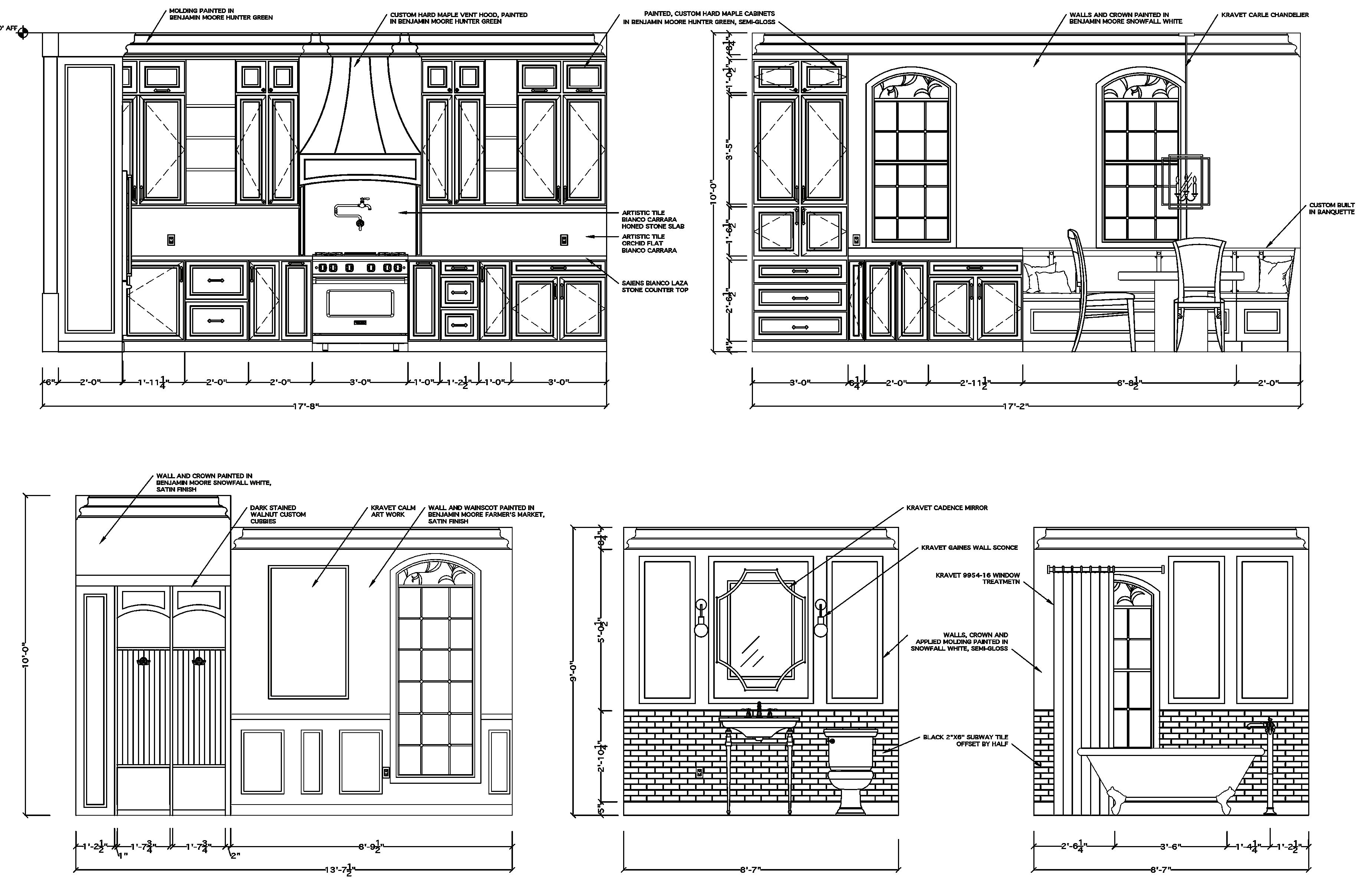
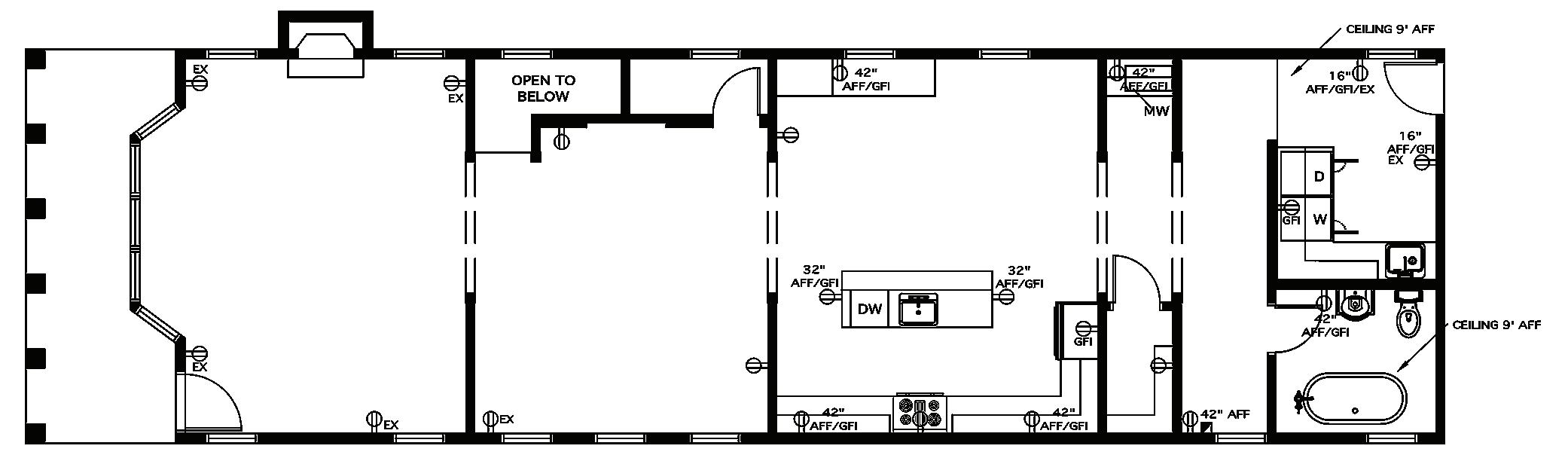
DINING ROOM ELEVATION

SCALE 1/2”=1’-0”

WINE ROOM ELEVATION

SCALE 1/2”=1’-0”

FIREPLACE WALL ELEVATION

SCALE 1/2”=1’-0”

STEWART
RESIDENCE
Drawings produced in Autodesk AutoCAD, not to scale. Original scale is representative of industry standard. Residential Project.
FLOOR PLAN SCALE 1/4”=1’-0”
N
Produced in SketchUp, rendered using V-Ray plug in and enhanced in Adobe Photoshop.

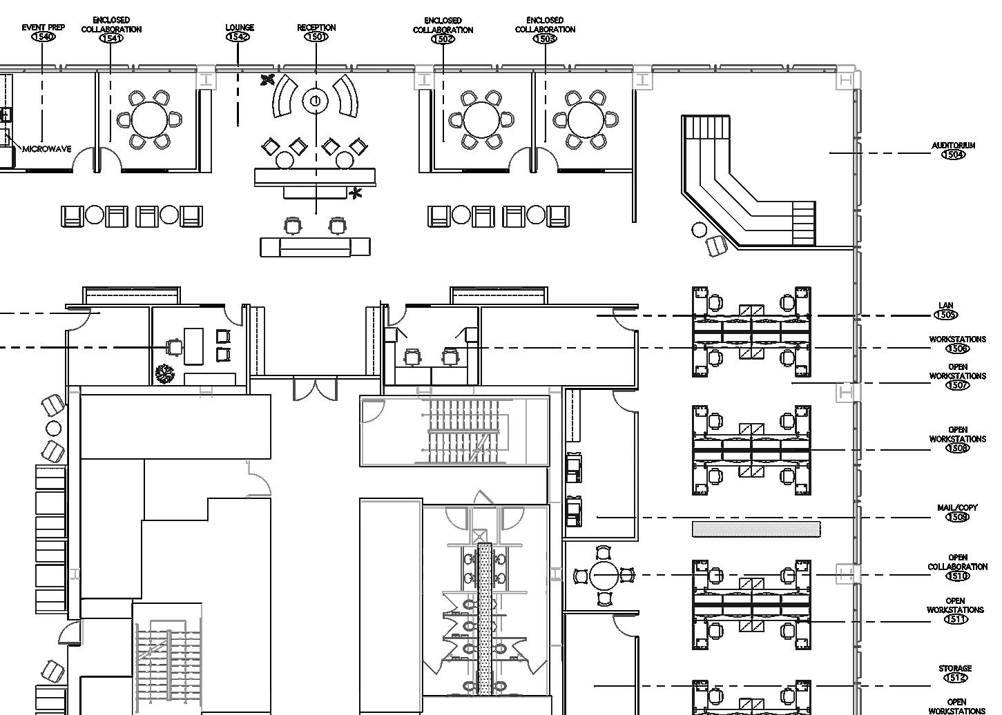
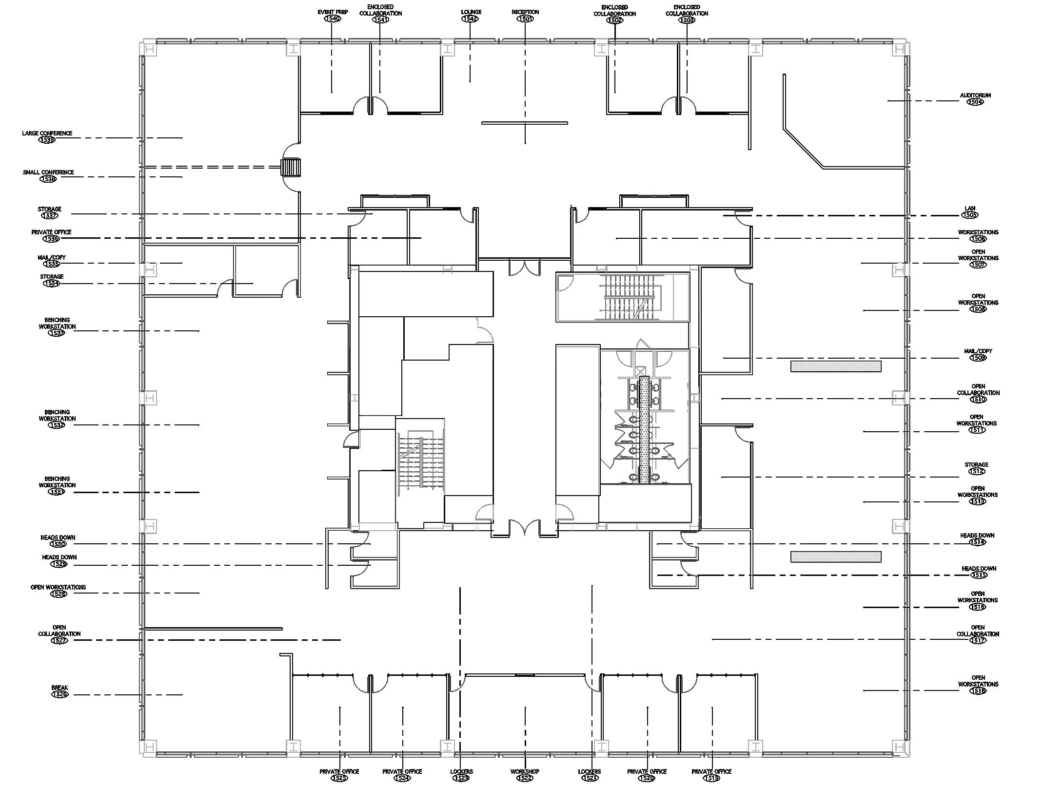
According to the Oxford Dictionary, a gearbox is a set of gears with its casing. 550 West Van Buren is the casing, the tenants are the gears, creating what they wish in a beautiful and collaborative environment.

GEARBOX provides a flexible work environment with the option of benching stations, open and private collaboration spaces, lounge areas, auditorium, and rentable private offices and workstations.

• Spacious reception area leading to conference space allows for easy transition from day to night events.

• Product display opportunities at the entrance.

• Daylighting for employee wellbeing provided by the open workstation plan.

• A large makers lab overlooking the city and the open lounge area.

• Multiple custom features specific to the GEARBOX brand including custom lockers and booth seating.

• A color scheme created to enhance the GEARBOX brand.

• Acoustical considerations such as felt applications, green walls and acoustical ceiling details.

• Wayfinding for occupant safety, egress, accessibility and efficiency.

• Easily accessible storage rooms located on each end of the 15th floor.

• ADA considerations such as roll up at reception, space in the auditorium for inclusive seating options as well as ample circulation throughout the entire 15th floor.

RECEPTION DESK ORTHOGRAPHIC PROJECTION SCALE 1/2=1’-0”

N GEARBOX
Office Project.
Tilebar Helix Gold Marble Wall Tile Calacutta Gold - low emitting, heavy duty counter top
Drawings produced in Autodesk AutoCAD, not to scale. Original scale is representative of industry standard.
Concrete - extreme durability for a high traffic area
REFLECTED CEILING PLAN SCALE 1/8”=1’-0” SPACE PLAN SCALE 1/8”=1’-0”
Produced in SketchUp, rendered using V-Ray plug in and enhanced in Adobe Photoshop.

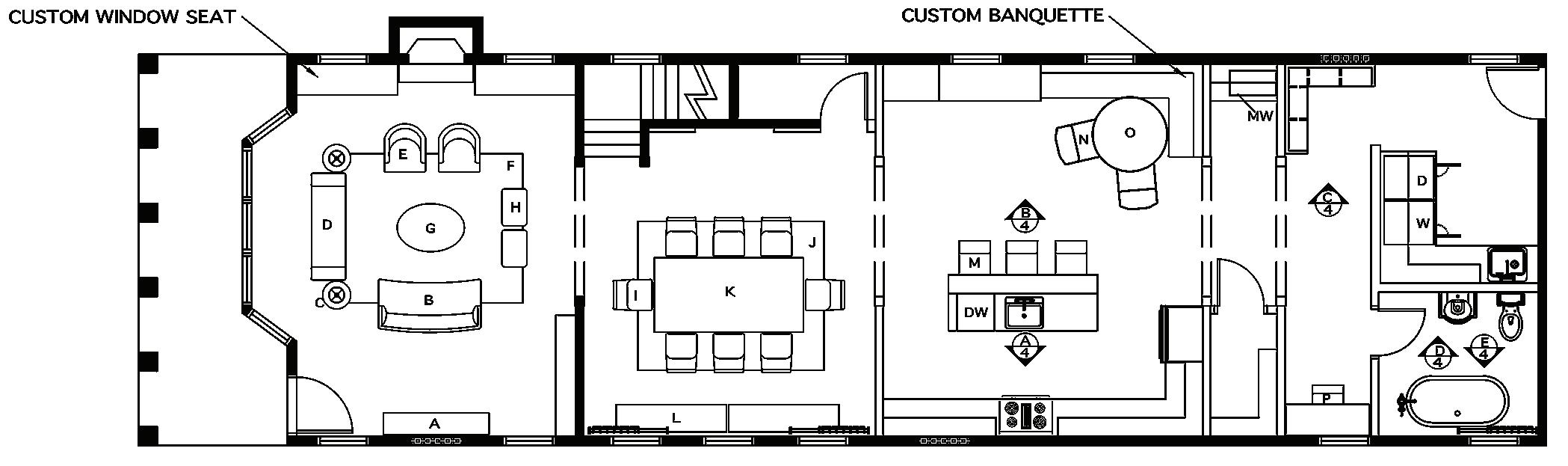
Objectives

• Honor the history of the building while making updates to merge the space into modern day living.

• Expand the entertaining space to provide more. functionality

• Source all furniture and finishes exclusively through Kravet.

Design Accomplishments

• Ceiling details added to main public spaces for added historical feel.

• Expanded kitchen and dining space to seat up to 12.

• Updated kitchen with custom cabinetry including historical elements like a custom range hood, upper-upper cabinets and beautiful tile work.

• Diverse seating in the living room with built-in bookshelf and built-in custom window seats flanking the original historic fireplace.

• Expansive laundry/mud room with custom built-in cubbies for storage.

• Custom built in desk at the back of the house for ease of use and privacy.

• All furniture, finishes and lighting sourced exclusively through Kravet to bring a beautiful, luxurious historic feel to the home .

• Reuse of existing doors, crown and base molding and floors.

DEMOLITION PLAN

SCALE 1/4=1’-0”

CONSTRUCTION PLAN

SCALE 1/4=1’-0”

The colors and materials selected were meant to maintain a historical feel in the colors and patterns while staying current and updated as a unit.

BROWNSTONE Residential Project.
N
Kravet Diamond Block in Sun Kravet Dartford in Ivory Benjamin Moore Hunter Green Artistic Tile Orchid Flat Blanco Carrara Kravet 34310-1615
Drawings produced in Autodesk AutoCAD, not to scale. Original scale is representative of industry standard.
Kravet Transmit in Pewter
ELECTRIC/VOICE/DATA PLAN SCALE 1/4=1’-0”
SPACE PLAN SCALE 1/4=1’-0”
REFLECTED CEILING PLAN SCALE 1/4=1’-0”
Kravet Carlie Chandelier Kravet Vienna Chandelier Kravet Rittenhouse Chandelier EAST KITCHEN WALL ELEVATION SCALE 1/2=1’-0” WEST KITCHEN WALL ELEVATION SCALE 1/2=1’-0” EAST KITCHEN WALL ELEVATION SCALE 1/2=1’-0” WEST BATHROOM WALL ELEVATION SCALE 1/2=1’-0”
Drawings produced in Autodesk AutoCAD, not to scale. Original scale is representative of industry standard.
EAST BATHROOM WALL ELEVATION SCALE 1/2=1’-0” Produced in SketchUp, rendered using V-Ray plug in and enhanced in Adobe Photoshop.

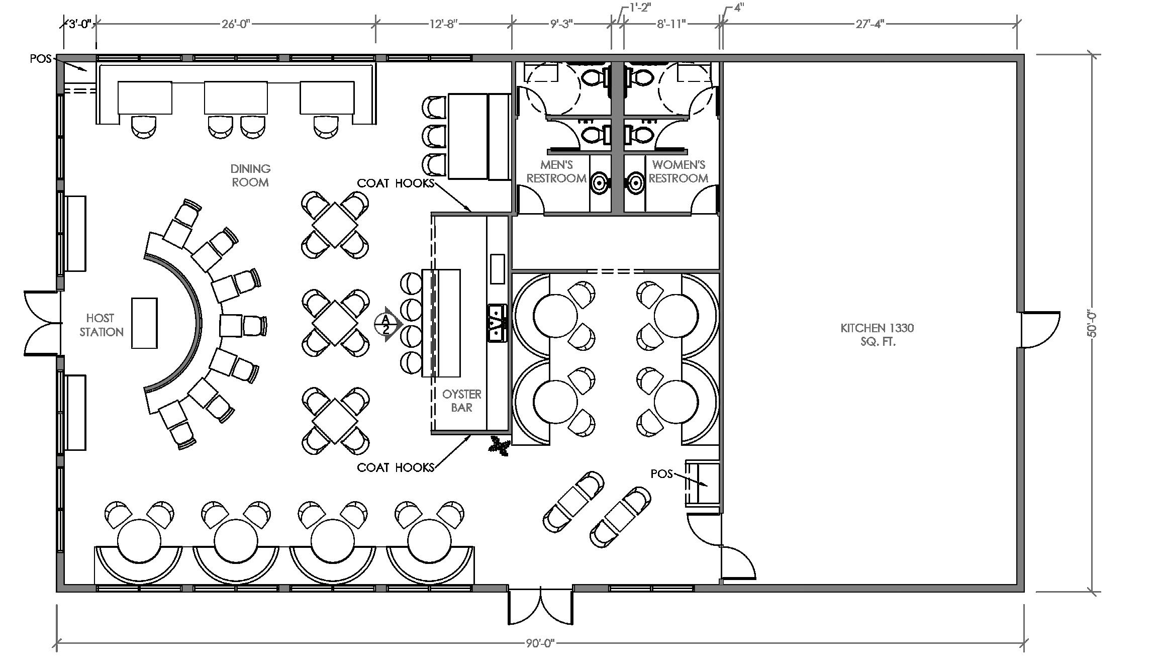
SHUCKS Restaurant Project.

is a nautical-themed seafood restaurant with an upscale vibe. The vibrant, high-end atmosphere, equipped with an oyster bar, is meant to evoke a feeling that is reminiscent of a fun day on the water. The design intent was accomplished and exceeded by:

• Incorporating nautical motifs, exciting light fixtures, gold details, and jewel tones to tie into the colors of the ocean, seas, and lakes to keep a cohesive brand identity

• Considering ADA codes and regulations throughout the space, culminating in compliant restrooms, great circulation throughout the dining and bar area, as well as accessible seating options.

• Adding carpet and upholstery aids in acoustical control

• Creating custom details including a recessed bar, custom-built booths, and ceiling details to make the space unique and desirable

• Bringing the tall ceilings down to create a cozy atmosphere that focuses on the human scale to make guests of the restaurant feel more comfortable.

SHUCKS FLOOR PLAN

SCALE 1/8=1’-0”

An important aspect of this project was to use contract grade furniture and materials with sustainable traits. Materials were sourced thoughtfully to include pre and post consumer recycled content.

RENDERED FLOOR PLAN

SCALE 1/8=1’-0”

Industry West - Savoy Dining Chair Industry West - Alva Chair Lunada Bay Tile Agate Zig-Abruzzo Shiplap Benjamin Moore Blue Note Mohawk Group Carpet Timber Frame Evoke Contract Flooring Kennedy Bernhardt Textiles Hendese 100,000 double rubs
N
Cambria Skara Brae Silver State Inc. Isabel 250,000 double rubs
Drawings produced in Autodesk AutoCAD, not to scale. Original scale is representative of industry standard.
Produced in SketchUp, rendered using V-Ray plug in and enhanced in Adobe Photoshop.

Skills learned through the visualization techniques course include:

• How to extrude walls to create 3-dimensional geometry.

• How to bring in furniture and apply realistic materials

• How to create realistic lighting and successfully render using V-Ray.

• How to use inspirational images to create custom features from scratch such as cabinetry and a fireplace.

This project taught the basics of SketchUp and V-Ray. Creating realistic fire, using an innovative floor plan, and choosing the best scene views to aid in bringing this 2D space to life.

Implementing the use of grouping and proper layer management to keep an organized and workable file was an important part of a successful outcome for this project.

WASHINGTON RETREAT
Software Project.
3-POINT PERSPECTIVE SCALE 1/4=1’-0” FLOOR PLAN SCALE 1/4=1’-0”
N Drawings produced in Autodesk AutoCAD, not to scale. Original scale is representative of industry standard.
ONE-POINT PERSPECTIVE SCALE 1/4=1’-0” Produced in SketchUp, rendered using V-Ray plug in and enhanced in Adobe Photoshop.

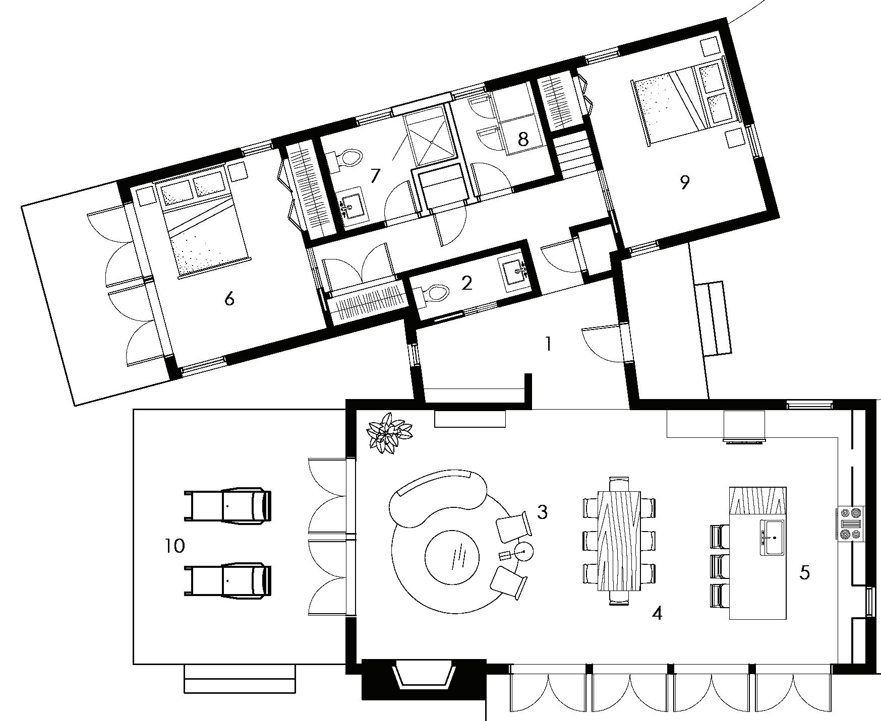
Working as an intern teaches many things. Among them all, learning how to effectively work as a group is one of the most important. In these two projects, I contributed my skills by:

• Creating floorplan layouts in Autodesk Auto CAD.

• Pitching in material and color selection ideas.

• Modeling and rendering 3D views for client visuals.

• Attend client meetings to aid in the concept presentation and take notes.

INTERNSHIP Collaborative Project.
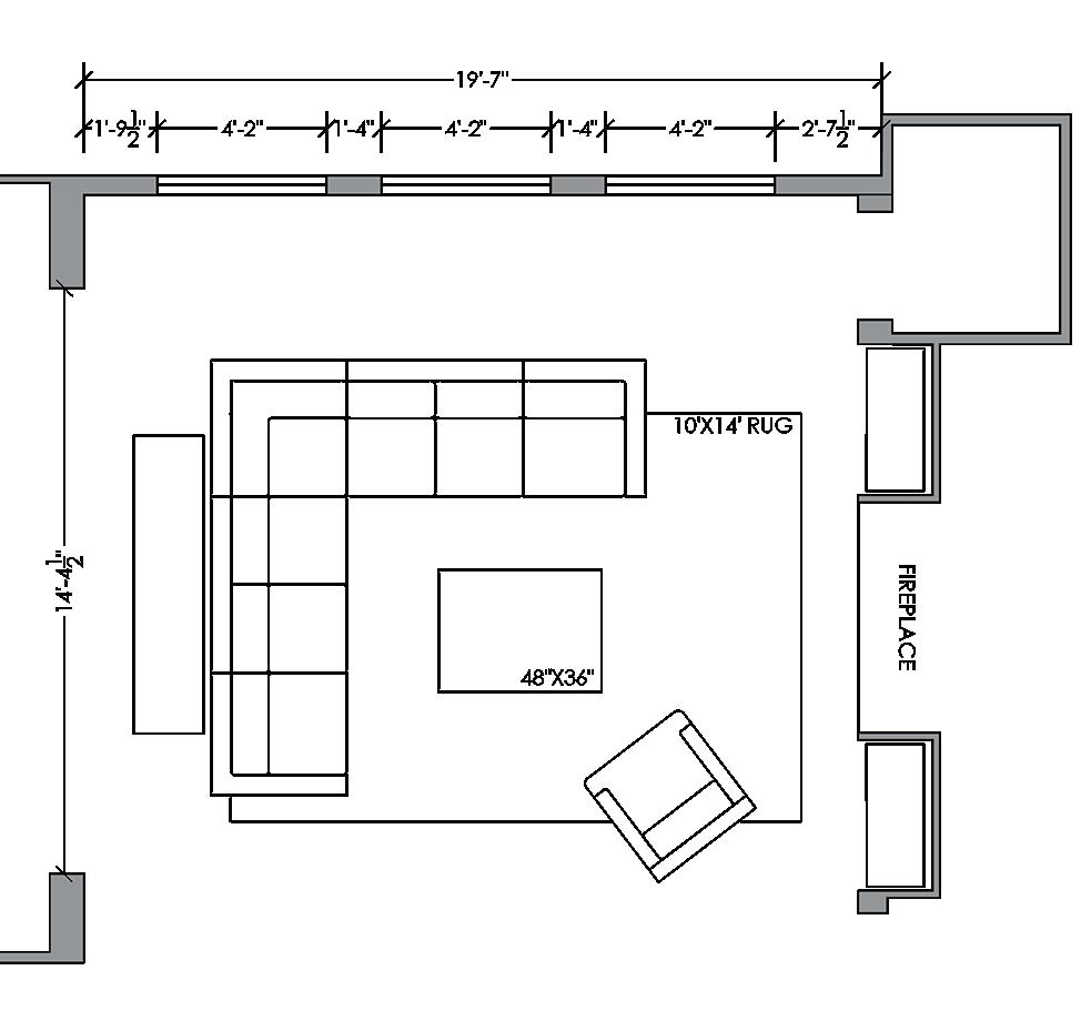
LIVING ROOM PLAN SCALE 1/4=1’-0”
Drawings produced in Autodesk AutoCAD, not to
Original
is representative of industry standard.
scale.
scale

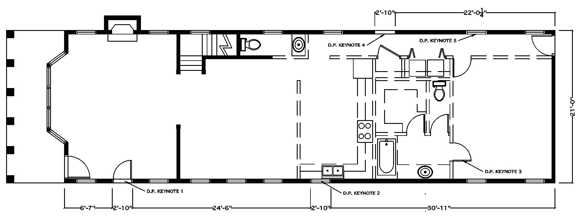
GREAT ROOM FLOOR PLAN SCALE 1/4=1’-0”

More than just technical skills, this internship provided valuable real-life experience including:

• Material library organization.

• Estimating and budgeting.

• Client interaction.

• Networking with vendor representatives.

Produced in SketchUp, rendered using V-Ray plug in and enhanced in Adobe Photoshop. Permission was granted by employeer to use drawings and renderings in this portfolio.

MARISSA BODE

INTERIOR DESIGN PORTFOLIO, SPRING 2021

Marissa began her design journey as a young girl with a love of interiors, however, her official story starts in 2019 when she became a student at the College of DuPage. Since enrolling at COD her passion for the design industry has grown and she has loved learning and succeeding in her course work.

Marissa was awarded the Kravet Design of Distinction award for her residential brownstone project and also obtained an internship in the first year of her education. That internship grew into a part-time design assistant position allowing her to see projects from concept to completion. These successes and experiences have prepared her to be a strong member of the design industry.

Contact information:

mebode44@gmail.com 630.991.1961

Turn static files into dynamic content formats.

Create a flipbook
Issuu converts static files into: digital portfolios, online yearbooks, online catalogs, digital photo albums and more. Sign up and create your flipbook.