Mario_Godinez_Portfolio_2025

Page 1


PORTFOLIO

ARCHITECTMARIOGODINEZ.

ARCHITECTUREDEISGN LEADER

-SD-DD-CD -DESIGNANDBIM COORDINATION -LOCALCODES -RENDERING -SITECOORDINATION -CLIENTCOORDINATION

215278SQFT (CURRENTUNDER CONSTRUCTION)

CONSTRUCTIONDETAILS

CONSTRUCTIONDETAILS

CONSTRUCTIONDETAILS

GRUPOACEREROOFFICE

ARCHITECTSR

-SD-DD-CD

-DESIGNANDBIM COORDINATION

-LOCALCODES

-RENDERING

-SITECOORDINATION

-CLIENT COORDINATION

2000SQFT

DESIGNHIGHLIGHTS:

-INTERVENTIONONEXISTINGBUILDING (AVANCERTOWER)

-THECLIENTWASAMETALCOMPANYSO ALLOFTHEDESIGNANDMATERIALWA BASEDONTHIS

-WEWANTEDTOHIGHLIGHTTHE CONCRETECEILINGANDSTRUCTURESO ALLINSTALLATIONSGOBYTHEFLOOR

-ALLOFTHEMETALWASSELECTEDBYOUR TEAMANDPROVIDEDBYTHECLIENT

-SOMEPIECESWERECUTWITHLASERTO FITPERFECTLY

BMHOUSE ARCHITECTSR.

-SD-DD-CD

-DESIGNANDBIM COORDINATION

-LOCALCODES -RENDERING -SITECOORDINATION -CLIENTCOORDINATION

3800SQFT

(CURRENTUNDER CONSTRUCTION)

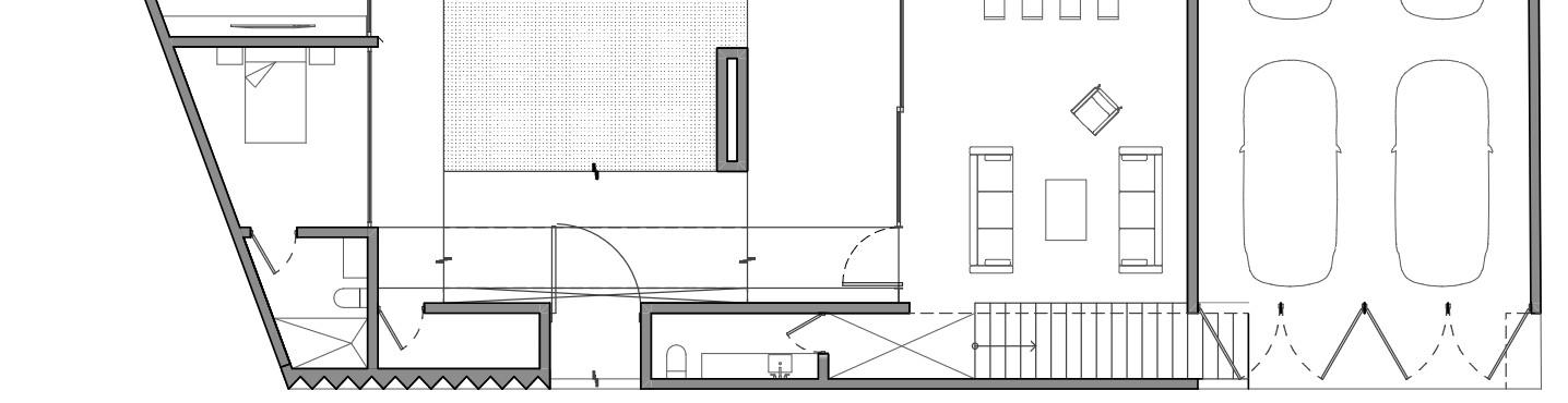
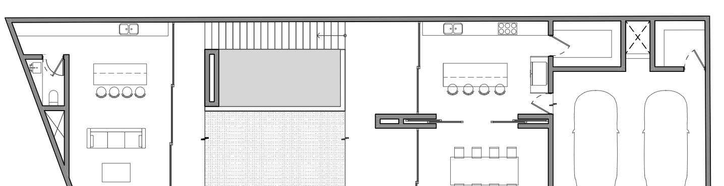
FLOORPLAN

DESIGNHIGHLIGHTS:

-WARMCOLORS(SANDANDRED)

-THEPROJECTITSINACLOSET COMMUNITYSOWEHADTOFOLLOW CERTAINRULESOFDESIGN

-THEPROJECTUSESTHECURVEINTHE CORNERTOITSFAVOR

-THECLIENTWANTEDALOTOFPRIVACY SOTHEPROJECTITSCLOSEDTOTHE OUTSIDEANDALLTHELIGHTNINGAND VENTILATIONCOMESFROMANINTERIOR COURTYARDINTHEMIDDLEOFTHE HOUSE

-CURRENTLYUNDERCONSTRUCTION

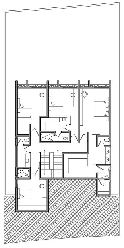
GVHOUSE

ARCHITECTSR.

-SD-DD-CD

-DESIGNANDBIM COORDINATION -LOCALCODES -RENDERING -SITECOORDINATION -CLIENTCOORDINATION

3800SQFT

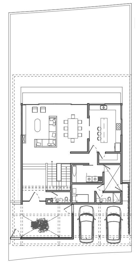
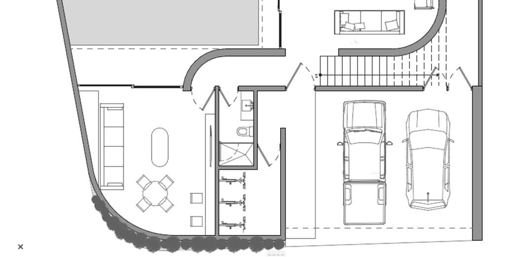
GVHOUSE

FLOORPLAN

DESIGNHIGHLIGHTS:

-THEPROJECTHADAHUGENATURAL TERRAINSLOPE,THEHOUSEUSETHIS ASPECTTOHISFAVOR

-THEPROJECTITSINACLOSET COMMUNITYSOWEHADTOFOLLOW CERTAINRULESOFDESIGN

-ITHASGREATVIEWSTOTHECITY

-CONCRETE,STEELANDWOODARETHE ONLYMATERIALSOFTHEPROJECT

GVHOUSE

GMHOUSE

ARCHITECTSR.

-SD-DD-CD

-DESIGNANDBIM COORDINATION -LOCALCODES -RENDERING -SITECOORDINATION -CLIENTCOORDINATION

3500SQFT

FLOORPLAN

DESIGNHIGHLIGHTS:

-THECLIENTWANTEDA“DUAL”PROJECT, AHOUSEANDANOFFICETOWORKAND TOSEEPERSONALCLIENTS

-THEHOUSEWASDIVIDEDINTWO “SECTIONS”CONECTEDWITHABRIDGE

--THECLIENTWANTEDALOTOFPRIVACY SOTHEPROJECTITSCLOSEDTOTHE OUTSIDEANDALLTHELIGHTNINGAND VENTILATIONCOMESFROMANINTERIOR COURTYARDINTHEMIDDLEOFTHE HOUSE

-CONCRETE,STEELANDWOODARETHE ONLYMATERIALSOFTHEPROJECT

GMHOUSE

MONUMENTHA

ARCHITECTSR.

-SD-DD-CD

-DESIGNANDBIM COORDINATION -LOCALCODES -RENDERING -CLIENTCOORDINATION

182986.48SQFT

(CURRENTUNDER CONSTRUCTION)

FLOORPLAN

DESIGNHIGHLIGHTS:

-52APARTMENTSWITHVIEWSTOTHE CITY

-ACONCRETECOREENSURING STABILITY

-HIGHENDFINISHES

-CONCRETE,STEELANDWOODARE THEONLYMATERIALSOFTHE PROJECT

-ASUSTENTABILITYAPPROACHWITH SOLARPANELSINTHEROOF, ELECTRICCHARGESTATIONS, TERMICISOLATIONINWALLSAND WINDOWS

Turn static files into dynamic content formats.

Create a flipbook
Issuu converts static files into: digital portfolios, online yearbooks, online catalogs, digital photo albums and more. Sign up and create your flipbook.
Mario_Godinez_Portfolio_2025 by mario_godinez - Issuu