Two blocks of Kyiv 4 diploma project
Aula Magna 20 for Charles University of Prague
The Academy of Arts, Architecture and Design in Cherson
Tepna’s platform 26 brownfield
Opava 1/5 26 urban structure
Viladum in Modrany 32 bachelor degrees project
Housing near St Mary Magdalene’s church in Karlovy Vary
Hotel in Ceska Kaminice
Lapidarium for Richard Serra

Two blocks of Kyiv diploma project

The motivation behind selecting my thesis topic was the disorganized and congested development in Kyiv’s historic district. I examine this issue using two specific city blocks as case studies. My work addresses the degree of intervention in the current urban structure, its restoration, and its connectivity.
In my thesis, I focus on the analysis and completion of the block development in the historic center of Kyiv – Podil, using the example of two blocks with areas of 18,342 m² and 16,681 m². These blocks are divided by Verkhnii and Nyzhnii Val streets, which feature a green belt, an alley, and a tram line. In the middle of the alley, the flow of the Hlybochytsia River is hidden in a conduit. The area is further delineated by the streets Mezhyhirska, Kostiantynivska, Khoryva, and Yaroslavska. Additionally, there is a metro tunnel underground, with the metro station having a total of 8 entrances.



After analyzing the current state, I plan to remove several structures. The main building slated for demolition is located at the corner of Dolni Val and Kostiantynivska streets. This building was constructed without building permits and in violation of state building regulations. Additional structures to be demolished include small buildings within the inner courtyard.



The individual city blocks should form a cohesive structure without gaps and adhere ular directions, creating a new axis connecting Kontraktova Square on one side and trian crossing in the green belt between Verkhnii and Nyzhnii Val streets.

adhere to the street line. At the same time, they should be passable in two perpendicand the park on the other. This axis is supported by the placement of a new pedes-

The footprint of the newly designed buildings was partially Each building has its own distinct character, responding

object C2
object C1,C2

partially derived from the 1923 plan and has been adapted to meet the current conditions and needs of the two blocks. responding to the present context while also supporting the overall concept.

a view of the market inside the courtyard

The newly designed inner courtyards and their functions a market to support and sustain this function. The market interaction.

a view inside the market
functions largely retain their existing character. Since the current courtyard has a commercial purpose, I am incorporating market will not only retain the commercial activity that currently exists but also provide a vibrant space for community


In my building program, I focus on offering a diverse space, such as a loggia or balcony, for every apartment. to the outdoors, enhancing the overall quality of life
object D

object A object B

object D

object M
diverse range of housing types with varying apartment standards and sizes. I make it a priority to include an outdoor apartment. This approach ensures that each residence offers not only a comfortable living space but also a connection for the inhabitants.

a view of the rental workshops

This inner courtyard currently has a semi-public nature basketball court and rental workshops.


a view of the passage through courtyard A
nature and is utilized by only a small number of residents. To encourage greater use of the space, I am introducing a



The new location for the building reflects its status within the academic community emerging from its original footprint.

community. The structure cautiously occupies the space once held by the former town hall,
The facade is marked by a glass shell reinforced with structural profiles. This allows the building to become part of its surroundings, adapting to and reflecting them with its glossy glass surface—returning the environment back to itself. As the sky changes throughout the day, the building acts as a natural canvas, allowing the soft and red-yellow shades of sunlight to reflect on the glass.
The interior space is defined by an auditorium that is freely inserted into the floor plan. Independent staircases play a crucial role in the internal hierarchy of the hall, serving not only as vertical connections but also as areas for rest and social interaction. On the top floor, there are classrooms for students and open spaces that can be used not only for relaxation and study, but also for active social life at the university.



cross-section of the building
third floor






The addressed site spans an area of 5 hectares, made available following the closure of the Maunter Tepna textile factory in Náchod. Within this territory, a smaller structure has been retained, as it supports an existing vaulted element that relies on its stability. This preserved building represents a remnant of the brownfield site of the former Maunter Tepna industrial complex. The structure comprises four floors, of which only the load-bearing framework remains; at present, the building has no functional utilization.
The preserved building becomes a pivotal element in the activation of the area, serving as a starting point for future development. The ground floor is designated for a café, while the remaining three levels are designed with a flexible layout to accommodate various potential uses. A further proposed intervention includes the construction of a new hall situated on the roof of the existing structure.
The envisioned activation of the site is to be achieved through a range of cultural and social activities, including markets, festivals, exhibitions, film screenings, and other community-oriented events.

details of the roof hall
3 1 6
1 Ocelová trubka 60/60/2,9 mm
2 Izolační zasklení v hliníkovém rámu
3 Konstrukce podlahy: Potěr z litého asfaltu 35 mm, separační vrstva žáruvzdorná 24 mm izolace kročejového hluku
4 Podlaha kontejneru: OSB deska 28 mm
Ocelový žlab S 120/45 mm
details of the boxes
1 Střešní konstrukce:
Trapézový plech 0 8 mm
Extrudovaná pěna 200 mm s mezilehlými ocelovými profily ∑ 60/40 mm, Tepelná izolácia s veternou zábranou 30 mm minerálna vlna 38 kg/m
2 Vlnité plechy polykarbonát s UV vrstvou dvouvrstvé, šroubované
3 Ocelový profil HEB 140
4 Ocelová trubka 100/150 mm
5 Konstrukce stěny:
Ocelový plech VP45 tloušťka 0 5 mm
lakováno (ext 25 μm, int 15 μm)
Tepelná izolace s větrovou zábranou, 30 mm minerální vlna 38 kg/m3
Hydroizolace tl 0 3 mm
Ocelový U-profil
Distanční pásek - izoblok 20x100 mm
minerální vlna 200 kg/m3
Parozábrana PE fólie 0 2 mm
Interiérové obložení sadrokarton tl 12 5 mm
5 Nástěnný stavební kontejner: 36 mm izolovaný trapézový plech
5 mm dutina 12
6 30 mm vakuová izolace
Tepelná izolace z minerální vlny 180 mm s spodní konstrukce
Sádrokartonové panely 2 × 12 5 mm mezi nimi parozábrana
6 Nosný sloup HEB 300 U-profil předražené otvory
7 Okapnice, tloušťka 0,5 mm
8 Konstrukce podlahy Linoleum potah 2 mm na sádrovláknité desce 20 mm podlahové vytápění v minerální výplni 20 mm
Separační vrstva PE fólie 0,2 mm Izolace z tvrdé pěny 40 mm stáv kon-ce železobetonová deska 110 mm
9 Kon-ce LOP
10 Nosný sloup HEB 300, předražené otvory




The design is guided by the concept of a green belt with radiating wedges, ensuring Green areas penetrate all zones, linking them into a cohesive spatial structure. In the of the area, accompanied by new residential buildings and a bus terminal, enhancing
The central zone features new housing clusters with front gardens, shielded from served mature trees, strengthens the green character of the area.

ensuring a fluid transition between the urban fabric and the surrounding landscape. the northern zone, a terrain-integrated transport connection forms the backbone enhancing mobility and accessibility.
the railway by layers of tree-lined buffers. A new park, structured around pre-




















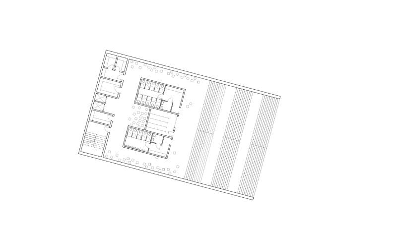
bachelor degrees project


The proposed building is located in a quiet residential area on the southern outskirts of Prague, in the district of Modřany. The serene character of the site arises from its direct proximity to nature, while its connection to the city center remains clearly defined and easily accessible.
The architectural concept builds on the functional clarity and spatial rhythm of the surrounding development. This is reflected in the unified composition of the floor plan and the façade design, which responds to the context through scale, proportion, and alignment.
The building actively engages with the adjacent public space. Two commercial units located on the ground floor reinforce the interface with the square, contributing to street life and enhancing the vibrancy of the urban environment.





DETAIL KOTVENÍ MADLA
DETAIL KOTVENÍ INTERIÉROVÉHO PODESTOVÉHO ZÁBRADLÍ
DETAIL KOTVENÍ INTERIÉROVÉHO PODESTOVÉHO ZÁBRADLÍ
Prýžová
