Interior Design Portfolio

Page 1

MARIJA MOZURAITYTE

INTERIOR DESIGN PORTFOLIO

College of DuPage | Spring 2024

WASHINGTON RETREAT

HOSPITALITY DESIGN | 3D VISUALIZATION TECHNIQUES

Washington retreat weekend getaway focuses on comfort, functionality, and biophilic design.

Nature’s surroundings enhanced natural lighting, open space, and organic element considerations.

This was achieved by creating an open floor plan with wide clearances, and sustainable materials.

AUTODESK AUTOCAD

Drafted floorplan and & placed furniture blocks to scale. exported plan to Sketchup.

SKETCHUP

Imported plan, built 3D model, designed fireplace and kitchen island using modeling tools. sourced products from 3D warehouse.

ENSCAPE

Enhanced 3D model realistic ability by applying materials and textures to scale. added layered lighting & human entourage.

Drawings produced in Autodesk AutoCAD - not to scale. All scales to industry standard.

3. CALIA STONE - Alexandrita

4. BENJAMIN MOORE - Chantilly Lace

5. VISUAL COMFORT - Parkington Sconce

6. WEST ELM - Penn chair

7. ALL MODERN - Jordy 12 chandelier

8. WEST ELM - Jensen coffee table

9. WEST ELM - Pebble jute rug 10. JENNIFER TAYLOR - Knox modern sofa

1. 5. 2. 3. 4. 6. 7. 8. 9. 1. Foyer 2. Powder Room 3. Great Room 4. Kitchen 5. Primary Bedroom 6. Bathroom 7.
8. Guest Bedroom 9.
Laundry
Patio
SCALE: 1/8” = 1’0” GREAT ROOM | 2 - POINT PERSPECTIVE
FURNITURE FLOOR PLAN
1. THREE TREES HARDWOOD - Bespoke
2. DIVISION TWELVE - Black oak
stool
11. FOUR HANDS - Saddle
1 11 2 3 5 4 6 7 8 9 10 EXTERIOR FRONT 2 - POINT PERSPECTIVE KITCHEN | 2 - POINT PERSPECTIVE
PRODUCED IN SKETCHUP | RENDERED IN ENSCAPE | ENHANCED IN ADOBE PHOTOSHOP

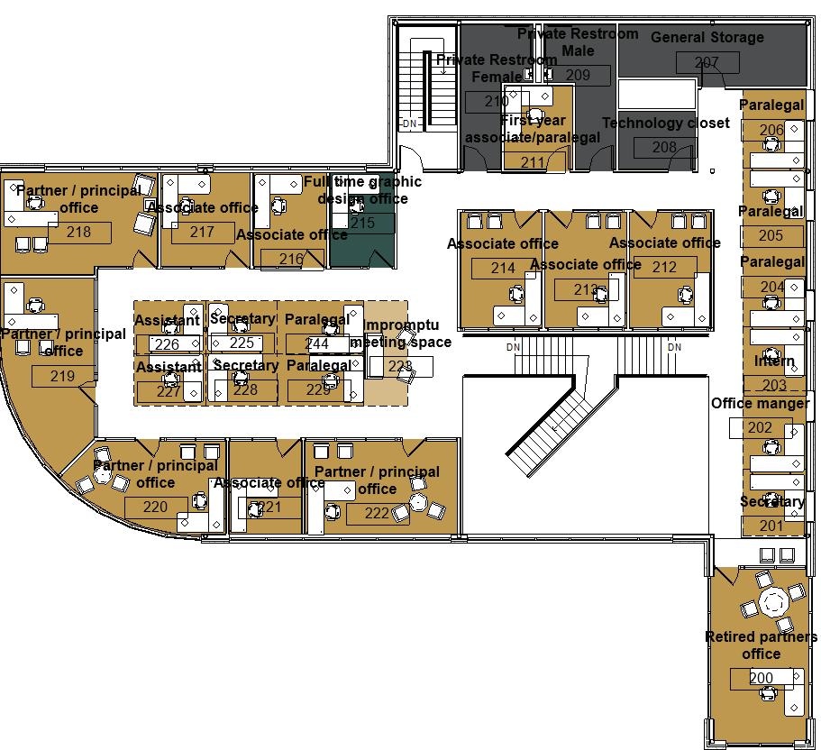
LAW OFFICE: ARUN & PARTNERS

OFFICE DESIGN | AUTODESK REVIT

AUTODESK REVIT

Is a Building Information Modeling (BIM) software. It allows users to design infrastructure and build the components using detailed 2D drafting, then synchronously create a 3D model with parametric accuracy and precision.

CAPABILITIES

The software is able to produce photorealistic renderings, through the cloud or with extensions such as Enscape.

Drawings produced in Autodesk Revit - not to scale. All scales to industry standard.

EXTERIOR SCALE: 3/32” = 1’ 0” LEVEL 2 CONFERENCE SECTION SCALE: 1/4” = 1’ 0” AXONOMETRIC SCALE:
1/8” = 1’ 0”

LUNCHROOM ELEVATION - NORTH

SCALE:

3/32” = 1’ 0”
LEVEL 1 SCALE:
LEVEL 2
SCALE: 3/32” = 1’ 0”
1/4” = 1’ 0”

1. McNICHOLS® - PERFORATED METAL ROUND: ACCENT WALL AND SIGNAGE

Carbon Steel, Cold Rolled, Mill Finish, 20 Gauge (.0359” Thick), 3/16” Round on 1/4”

2. CALIA STONE - VERDE ANTICO MARBLE: COUNTERTOP

Stone: Marble, Finish: Polished, Thickness: 2CM

3. MOMENTUM - PATTERSON: UPHOLSTERY

100% polyurethane / PVC free Flammability: Cal TB 117: meets requirements, Abrasion high traffic / Wear Resistance: ASTM D4157 - 100,000 Double Rubs Antimicrobial Testing: AATCC-147 meets requirements

4. MOHAWK GROUP - BLENDED TWIST DUSK: CARPET Flammability: ASTM E662 smoke density - less than 450 Performance: Foot traffic recommendation TARR rating - heavy Emissions: TVOC range - 0.5mg/m3 or less

5. FORMICA - GOLD ALUMINUM: RECEPTION DESK SURROUND

Flammability: ASTM E84 Class A Emissions: A low-emitting material per GREENGUARD evaluation

Climate Impact: LEED Compliant, Low VOC, UL GREENGUARD GOLD

6. SHERWIN-WILLIAMS - IRON ORE: WALL AND BASEBOARD PAINT Nurturer Collection

V.O.C. (less exempt solvents): less than 50 grams per liter; 0.42 lbs. per gallon

Certifications: LEED® v4 & v4.1 Emissions Yes, LEED® v4 & v4.1 V.O.C Yes

7. WAC LIGHTING - ELEMENTUM PENDANT

Construction: Aluminum hardware with opal glass diffuser Power: 18W, Input: 48 VDC, Dimming: ELV: 100, Light Source: Integrated LED

8. KICHLER LIGHTING - INDECO WALL SCONCE

ADA Compliant: Yes, Light Source Integrated LED,

9. PASARGAD LIGHTING- RHODA TABLE LAMP

Input Voltage: 120 V, Watts: 16 W

LEVEL 1 SECTION SCALE: 1/8” = 1’ 0” LEVEL 1 LIGHTING PLAN SCALE: 1/8” = 1’ 0” LEVEL 2 LIGHTING PLAN SCALE: 1/8” = 1’ 0”
1 2 3 4 5 6 7 8 9 LEVEL 2 SECTION SCALE: 1/8” = 1’ 0”

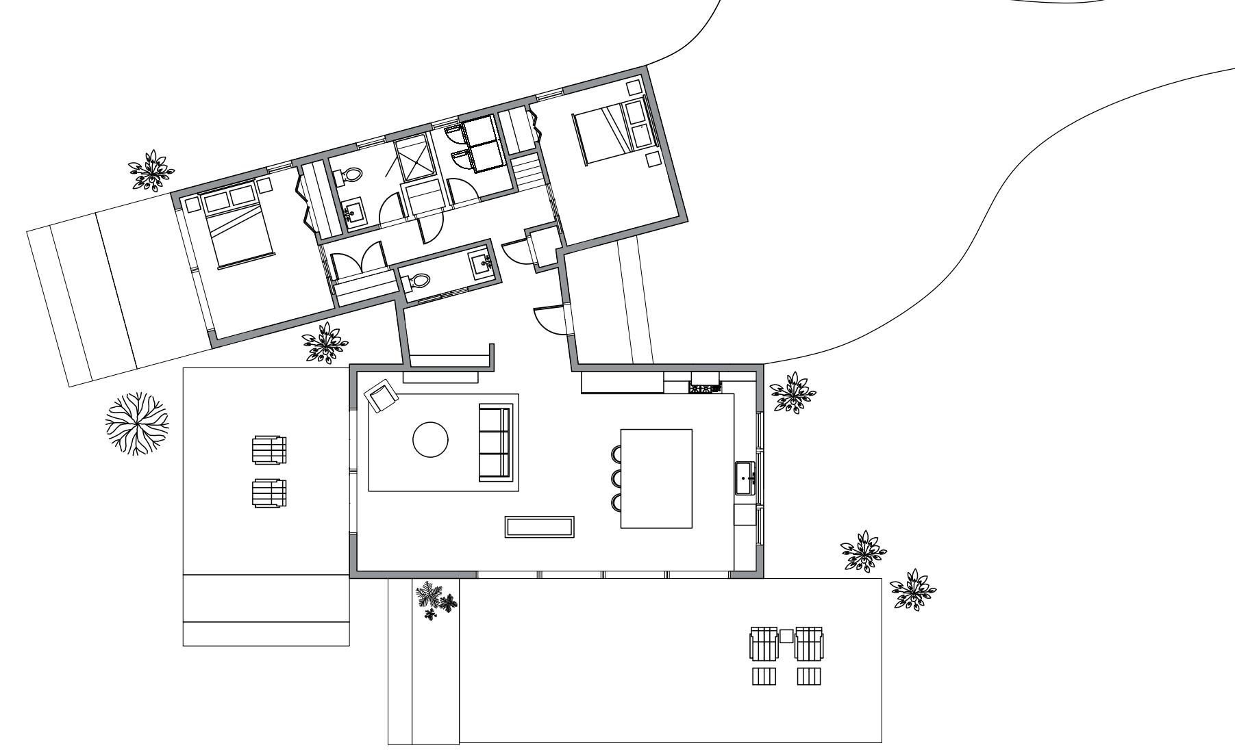
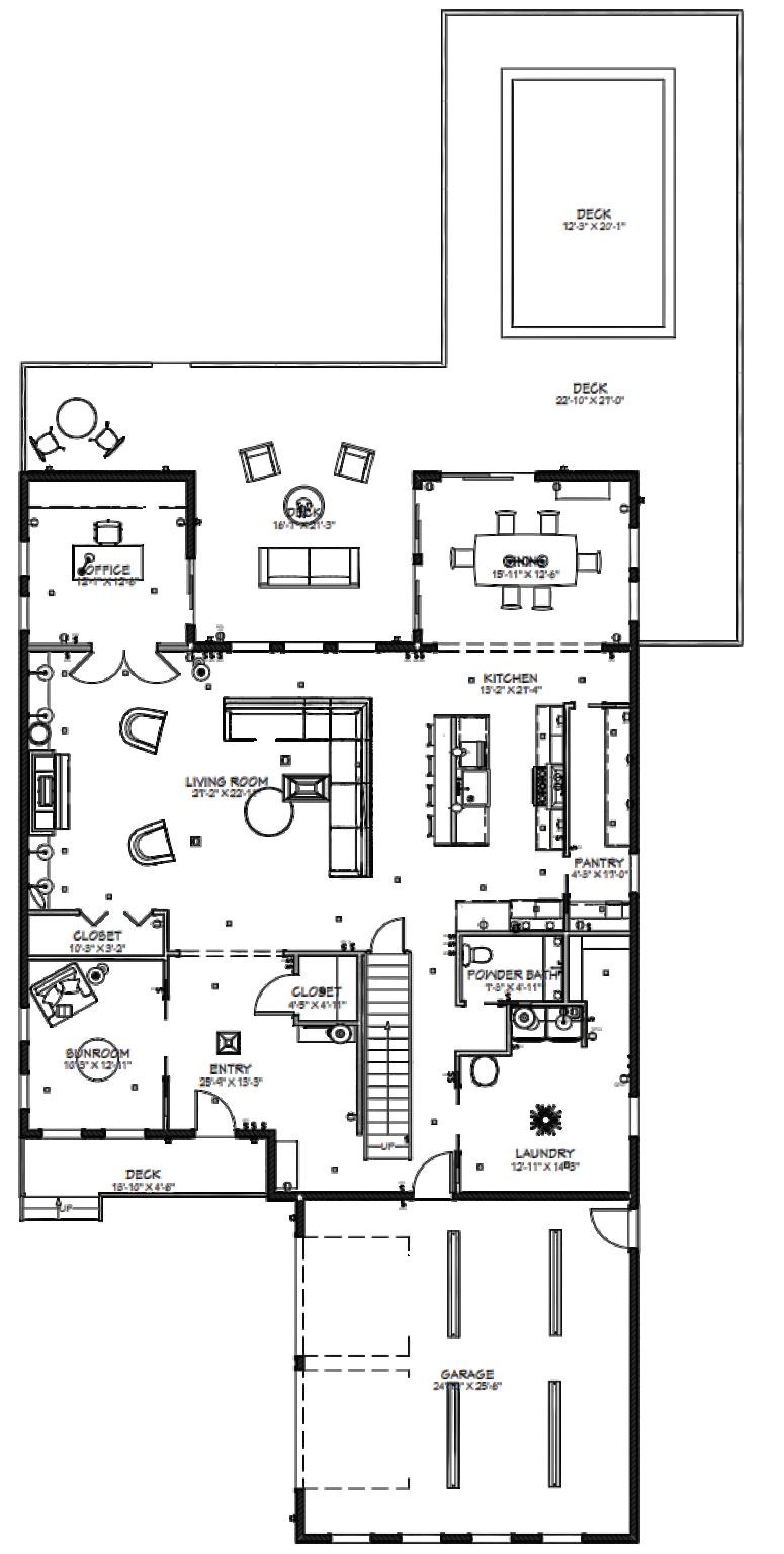
THE PLATEAU ESTATE

KITCHEN & BATH DESIGN | CHIEF ARCHITECT

CHEIF ARCHITECT

Is a 3D CAD software that has automatic building tools such as detailed 2D construction drafting, and 3D renderings.

CAPABILITIES

Chief Architect uses parametric capabilities that allow the user to generate floor plans, 360-degree panoramic views, and elevations. It uses unified interface as you draw walls, doors, windows it creates a 3D model in real time.

Drawings produced in Chief Architect - not to scale. All scales to industry standard.

EAST SECTION SCALE: 1/8”
= 1’ 0”
BACK ELEVATION SCALE: 1/8” = 1’ 0” SOUTH KITCHEN ELEVATION
1/8” = 1’ 0”
SCALE: EAST KITCHEN ELEVATION
= 1’ 0”
SCALE:
1/8”
1/8” = 1’ 0” TYPICAL CMU CRAWL SPACE INTERIOR STAIR SCALE: 1” = 1’ 0” CMU BASEMENT FOUNDATION: UNFINSIHED
FRONT ELEVATION SCALE:
EXTERIOR FRONT | 2 - POINT PERSPECTIVE
FURNITURE FLOOR PLAN SCALE: 1/8” = 1’0”

MISSION APPAREL

RETAIL DESIGN CONTRACT STUDIO

Mission Apparel is a military inspired retail store with a mission to cultivate connections between local communities, military families and all those who experience the retail space.

Location:

-Fulton Market, Chicago

Demographics:

-Population: 6.652

Target Market:

-Men

-Women

-Families

-Veterans

-First responders

Merchandise:

-Apparel

-Hiking Boots, Backpacks, Hats

-Custom Embroidered Patches

DESIGN CONSIDERATIONS:

Mission Apparel’s customer attraction is the lifesize soldier and parachute display. The secondary feature is the custom embroidery bar found in the center of the store that aids with wayfinding and circulation. These focal points set the store apart from its competitors and encourages communal interaction which is the mission after all.

The cash wrap is centered on the focal wall in the back of the store to ensure best practice for loss prevention

The suspended parachute ceiling detail highlights the store’s branding and the main inspiration behind the identity.

Locally sourced building materials were used during construction along with sustainable textiles and materials to finish and furnish the interior of the store.

The accent wall features, fixtures, and window display include biophilia that aid with acoustics and further emphasizes the militarian atmosphere throughout the store.

Drawings produced in Autodesk AutoCAD - not to scale. All scales to industry standard.

SCALE: 1/8” = 1’0”

LOGO IDEATION

Dark green color represents blending in natural enviroments while simultaneously making an impact.

Bold font serves as a visual cue. It also signifies courage and braveness.

Militarian entourage captures target market attention and is also familiar to those within the military community.

SCALE: 1/8” = 1’0”

WEST ELEVATION EAST WALL ELEVATION
BRANDING IDENTITY & PACKAGING DESIGN
OPTO International Reveal - cube set OPTO International Classic - table set
International Edge
frame table
5.
6.
7. ARTIFICIAL SKY - LED Human centric lighting panel 1 2 3 4 5 OPTO International Reveal - graphic holder ONE - POINT | BIRDS - EYE PERSPECTIVE MERCHANDISE| 2 - POINT PERSPECTIVE 7 6 STORAGE PRIMARY PRIMARY IMPULSE SECONDARY SEASONAL IMPULSE
OPTO
-
OPTO
International Reveal - garment holder
1 MOHAWK GROUP - Chromascape LVT
2.
CLARIS - Reclaimed cedar 3. BENJAMIN MOORE - Evening grove
4.
CEASERSTONE - Vanilla noir quartz MCNIKOLAS CO - Perforated metal
PLANTSCAPE, INC - Creeping frog

THE MAXWELL: BOUTIQUE HOTEL

HOSPITALITY DESIGN | RESIDENTIAL STUDIO

Located in the heart of downtown Chicago, The Maxwell Boutique Hotel encompasses sophisticated starlight. The ultimate experience to spend a night out in, gazing at the stars and embracing the art deco inspired atmosphere.

Luxury Amenities:

-Secret speakeasy bar

-Sophisticated Restaurant

-Relaxing water features

-Cozy fireplace

Entertainment:

-Instagrammable moments

-Custom Chicago water fountain

-Lounge areas with games & books

-Designated remote-work lounge

DESIGN CONSIDERATIONS:

ADA Compliance: Considered by incorporating barrier free corridors with wide clearances and accessible bathrooms and seating.

Wayfinding: The different flooring, layered lighting, and custom ceiling details, helped create designated zoning for patrons to navigate with ease.

Acoustics: The use of textiles, furniture, and ceiling details minimizes noise level throughout, ensuring an ultimate experience

Drawings produced in Autodesk AutoCAD - not to scale. All scales to industry standard.

FURNITURE FLOOR PLAN SCALE: 1/8” = 1’ 0” LOBBY ELEVATION SCALE: 1/8” = 1’ 0” 1 2 3 A
KRAVET, INC. DESIGN OF DISTINCTION AWARD

1. CRAFT ARTISAN - Lucca herringbone

2. ANN SACKS - Small mosiac

3. ALEXANDER TILES - Large hex

4. KRAVET - Pround 05

5. FORMICA - Polished brass

6. KRAVET - Tavaro

7. CALIA STONE - Solidate

8. KRAVET - Sumptuous Chenille ll

9. GOLDRAY GLASS - Antique mirror

10. BENJAMIN MOORE - Blue Nova

11. KICHLER - Fiber optic pendants

A. KRAVET - Maidenhair sconce

B. KICHLER - Optic fiber pendant

C. KRAVET - Casablanca pendant

D. KRAVET - Jules chandelier

E. KRAVET - Slaughter chandelier

F. KRAVET - Barrows wall sconce

G. KRAVET - Tessa Grande chandelier

H. KRAVET - Dimas stool

I. KRAVET - Brighton Occasional chair

J. KRAVET - Harvest 48” Table

K. KRAVET - Olvera bench

L. KRAVET - Burke Table

M. KRAVET - Oscar sofa

SPEAKEASY

SCALE: 1/8” = 1’0” SPEAKEASY

SCALE: 1/8” = 1’0”

BAR ELEVATION
BAR BOOTH ELEVATION
6 4 5
7 8 9 10 B C D E F G J H I K L M

COLLABORATION - PRELUDE DESIGN COMPETITION

EDUCATION DESIGN | AUTODESK REVIT | KIMBALL INTERNATIONAL, INC

The prelude design competition was an introduction to Kimball International furnishings, and an inspiration for the use of innovative and impactful pieces within collaborative design.

Studio Room design problem: Students spend countless hours working in their studio rooms. They need to be a space where students can work comfortably, for long hours collaboratively and individually.

Professor’s office design problem: Professors spend the majority of their day planning, researching, and grading, They need a space that considers ergonomics, and comfort for their needs. As well as, and inviting space to encourage student and professor interaction.

STUDIO ROOM DESIGN SOLUTION:

-Desks that accommodate 18 students

-Desk and podium for professor

-ADA compliant KOLA Pod

-Material library storage and shelving

-Whiteboards for student collaboration

-Lounge seating

-Student work storage

OFFICE DESIGN SOLUTION:

-Comfortable task chair

-Ergonomic - height adjustable desk

-2 inviting guest chairs

-Ample storage for books and work

COLLABORATION:

Marija Mozuraityte - Furniture and Equipment selection, Space planning, Presentation

Bria Pillow - Material, Furniture and Equipment selection, Space planning, Presentation

Rylee Rowley - Autodesk Revit, Furniture and Equipment selection, Space planning, Presentation

Drawings produced in Autodesk Revit - not to scale. All scales to industry standard.

STUDENT COLLABORATION PLAN SCALE: 1/8” = 1’ 0” STUDENT LOUNGE PLAN SCALE: 1/8” = 1’ 0” STUDENT PRODUCTIVITY PLAN SCALE: 1/8” = 1’ 0” PROFESSOR’S OFFICE PLAN SCALE: 1/8” = 1’ 0”
SMILE CHAIR HOOPLA STOOLS HELIO CHAIR EMBRA SOFA

OAK OASIS: SENIOR LIVING

HEALTHCARE DESIGN | HEALTHCARE STUDIO

Oak Oasis Senior Living Facility focused on providing luxury design and amenities through evidence-based research on aging in place healthcare strategies.

EVIDENCE-BASED DESIGN:

Healthy & Safe Enviorment

-Accommodating apartment options

-Wayfinding

-Low VOC finishes

-Fire-rated furniture

-Slip-resistant flooring

-Commercial durability

Cognitive Health:

-Family centered events

-Social interactive activities in the library

Physical Health:

-Fitness/wellness center

-Indoor/outdoor pool area

-Indoor/outdoor garden

-Salon/spa

Medical Health

-Nurse stations, in-home care

Lighting Considerations:

-Glare resistant

-Residential atmosphere

Drawings produced in Autodesk Revit - not to scale. All scales to industry standard.

3.

5.

6.

8.

LEVEL 1 SCALE: 1” = 20’ 0” LEVEL 2 SCALE: 1” = 20’ 0” ADJACENCY MATRIX
1. SHERWIN WILLIAMS - Majolica green
2.
BENJAMIN MOORE - Simply white AHF CONTRACT - Nod to nature LVT 4. MOHAWK GROUP - Eden Terrace carpet BENJAMIN MOORE - Santorini blue BENJAMIN MOORE - April sky 7. STANCE HEALTHCARE - Carson chair
10.
pendant 11.
Fluid Pendant 7 1 2 3 4 5 6 8 10 11 9
STANCE HEALTHCARE - Carson ADJ chair
9.
KIMBALL INTERNATIONAL - Confide chair MUUTO -
Ambit
MUUTO -
“Space is the breath of art.” - Frank Lloyd Wright

Marija Mozuraitye earned her Associates of Applied Science in Interior Design from the College of DuPage along with her Lighting and Computer Applications Certificate. During her time, she was a student member of professional organizations such as the International Interior Design Association (IIDA), American Society of Interior Designers (ASID), Network of the Hospitality Industry (NEWH), and the National Kitchen and Bath Association (NKBA). She served as the Secretary for the College of DuPage Interior Design Student Society and volunteered at events such as Material Bank. Marija is passionate about both hospitality and residential design as she believes that spaces should be created to be functional, beautiful, and memorable experiences. Marija was awarded the Kravet Design of Distinction Award in Spring 2023 additionally; she was the winner of the Kravet Design of Distinction Award in Spring 2024 for her hospitality project. She values collaborative design and prides herself on her positive and enthusiastic attitude, attention to detail and continuous learning. Throughout her education and internships Marija has acquired strengths in space planning, codes and standards, material selections and specifications. She is proficient in the following software programs such as Autodesk AutoCAD, Autodesk Revit, Sketchup with Enscape, Chief Architect, Adobe Photoshop, and InDesign. She is skilled in 2D technical drawings, 3D models and renderings.

mmarijainteriors@gmail.com

630. 312. 0654

www.linkedin.com/in/marijamozuraityte

www.issuu.com/marijamozuraityte

Turn static files into dynamic content formats.

Create a flipbook
Issuu converts static files into: digital portfolios, online yearbooks, online catalogs, digital photo albums and more. Sign up and create your flipbook.