Portfolio

Page 1

PORTFOLIO Madison Rosser
Renderings Design & Layout Contents Craftsmanship Model & Quality Composition Impression & Variety 01 09 19 Contact Info Details & Communication 30
Synopsis: 615 7 4x 2 HOUSE Completed Fall 2020 Software: Revit 2018 3 4 MODERN LIBRARY Completed: Spring 2021 Software: Revit 2019 5 VENICE HOTEL Completed: Fall 2021 Software: AutoCAD 2020 6 SPANISH FORK CITY LIBRARY Completed Spring 2022 Software: Revit 2021 7 MUSEUM OF ANTIQUITIES Completed: Spring 2022 Software: Revit 2022 PRESBYTERIAN CHURCH Completed:
Software:
Renderings | Design & Layout
Fall 2022
Revit 2023

Renderings

1
2 HOUSE Completed Fall 2020 Software: Revit 2018
3
Revit 2019
MODERN LIBRARY Completed Spring 2021 Software:

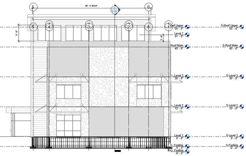
VENICE HOTEL

Completed Fall 2021 | Partner: Ben Varnell

Software: AutoCAD 2020 | see page 13

4
5 SPANISH FORK CITY LIBRARY Completed Spring 2022 Software: Revit 2021

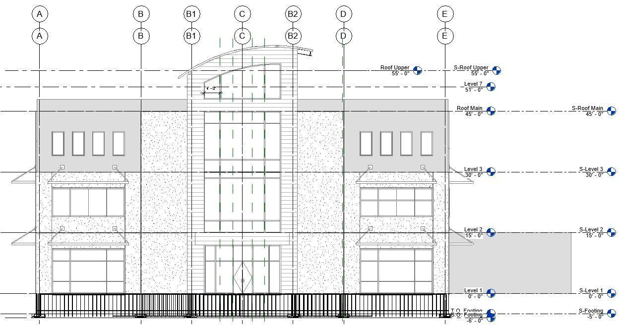
MUSEUM OF ANTIQUITIES

Completed Spring 2022 | Partner: Zac Cooper

Software: Revit 2021 | see page 15

6

Completed Fall 2022

Software: Revit 2023

7
PRESBYTERIAN CHURCH

PARK PAVILION

Materials: Plywood, Balsa Wood & Foam Board

PLASTER MOLD & CAST Materials:

PROVO HOUSE

Materials:

VENICE HOTEL Materials:

SPANISH

MUSEUM OF ANTIQUITIES

PRESBYTERIAN CHURCH

Materials:

GREENHOUSE Materials:

615 7 4 8
10
Model Size: 16” x 48”
10”
x
11
Pencil, Marker, Clay & Liquid Rubber Model Size: 10” x 10” x 2”
12
Plywood,
Wood,
Model Size: 12” x 14” x 12”
Balsa
Wire and Matboard
13
Plywood & Filament Model Size: 10” x 20” x 12” | Partner: Ben Varnell 14
LIBRARY Materials: Plywood & Filament Model Size: 8” x 16” x 6”
FORK CITY
15
Lumber, Steel, Glass Panels Size: 5’ x 7’ x 6’ | Family Project
17
16
Filament Model Size: 8” x 10” x 8” | Partner: Zac Cooper
Materials: Plywood &
& Balsa Wood Model Size: 8” x 10” x 28” | Site Model: 26” x 28” x 6” Synopsis: Craftsmanship | Model & Quality
Plywood

Craftsmanship

7 49

PARK PAVILION

Model Size : 16” x 48” x 10” | 1’ = 1.5” scale

Materials: Plywood, Balsa Wood & Foam Board

10

PROVO HOUSE

Model Size: 12” X 14” X 12” | 1’ = 1/4“ scale

Materials: Plywood, Balsa Wood, Wire & Matboard

11

PLASTER MOLD & CAST

Model Size : 10” X 10” X 2” | 1:1 scale

Materials: Pencil, Marker, Clay & Liquid Rubber

12

VENICE HOTEL

Model Size: 10” x 20” x 12” | 1’ = 1/8” scale

Materials: Plywood & Filament | see page 4

Partner: Ben Varnell

13

SPANISH FORK CITY LIBRARY

Model Size : 8” x 16” x 6” | 1:20 scale

Materials: Plywood & Filament

14

MUSEUM OF ANTIQUITIES

Model Size: 8” x 10” x 8” | 1’ = 1/8” scale

Materials: Plywood & Filament | see page 6

Partner: Zac Cooper

15

PRESBYTERIAN CHURCH

Model Size : 8” x 16” x 28” | 1’ = 1/8” scale

Site Model Size: 26” x 28” x 6” | 1:50 scale

Materials: Plywood & Balsa Wood | see page 7

16

GREENHOUSE

Size: 5’ x 7’ x 6’ | Family Project

Materials: Lumber, Steel, Glass Panels, Cement

17

&

MODERN HOME SKETCH

Materials: Marker Size: 9” X 11” Paper

HOMETOWN BARN

Materials: Colored Pencils Size: 9” x 11” Paper

CLASSICAL SKETCHES

Materials: Pencil Size: 9” x 11” Paper

PERSPECTIVE DRAWING

Materials: Pen Size: 11” x 17” Paper

SCALED DESIGNS

Materials: Pen & Watercolor Size: 24” x 36” Watercolor Paper

MEASURED DRAWINGS

Materials: Pen & Marker Size: 24” x 36” Paper

PAINTINGS

Materials: Acrylic Paint Size: 18” x 24” Canvas

SKETCHES

Materials: Pencil Size: 9” x 11” Paper

LION OF LONGING

Materials: Acrylic Paint Size: 18” x 24” Canvas

MERCY

Materials: Pen Size: 14” x 18” Canvas

20

21

22

23

24

25

26

27

28 29

615 7 4 18
Synopsis: Composition | Impression
Variety

Compositions

19

MODERN HOME SKETCH

Composition Size : 9” x 11” paper

Materials: Marker

20

HOMETOWN BARN

Composition Size: 9” x 11” paper

Materials: Colored Pencils

21

CLASSICAL SKETCHES

Composition Size : 9” x 11” paper

Materials: Pencil

22

PERSPECTIVE DRAWING

Composition Size: 11” x 17” paper

Materials: Pen

23

SCALED DESIGNS

Composition Size : 24” x 36” Watercolor Sheets

Materials: Pen & Watercolor

24

MEASURED DRAWINGS

Composition Size: 24” x 36” Watercolor Sheets

Materials: Pen & Marker

25

PAINTINGS

Composition Size : 18” x 24” Canvas

Materials: Acrylic Paint

26

SKETCHES

Composition Size: 9” x 11” paper

Materials: Pencil

27

LION OF LONGING

Composition Size : 18” x 24” Canvas

Materials: Acrylic Paint

28
29
Size: 14” x 18” Canvas
Pen
MERCY Composition
Materials:
Get in Touch: Madison Rosser E: marierossO98@gmail.com P: 8O1 . 854 . 865O A: Pleasant Grove, UT Instagram: @ms.future_rchitect 4 30 Contact Info

Turn static files into dynamic content formats.

Create a flipbook
Issuu converts static files into: digital portfolios, online yearbooks, online catalogs, digital photo albums and more. Sign up and create your flipbook.