





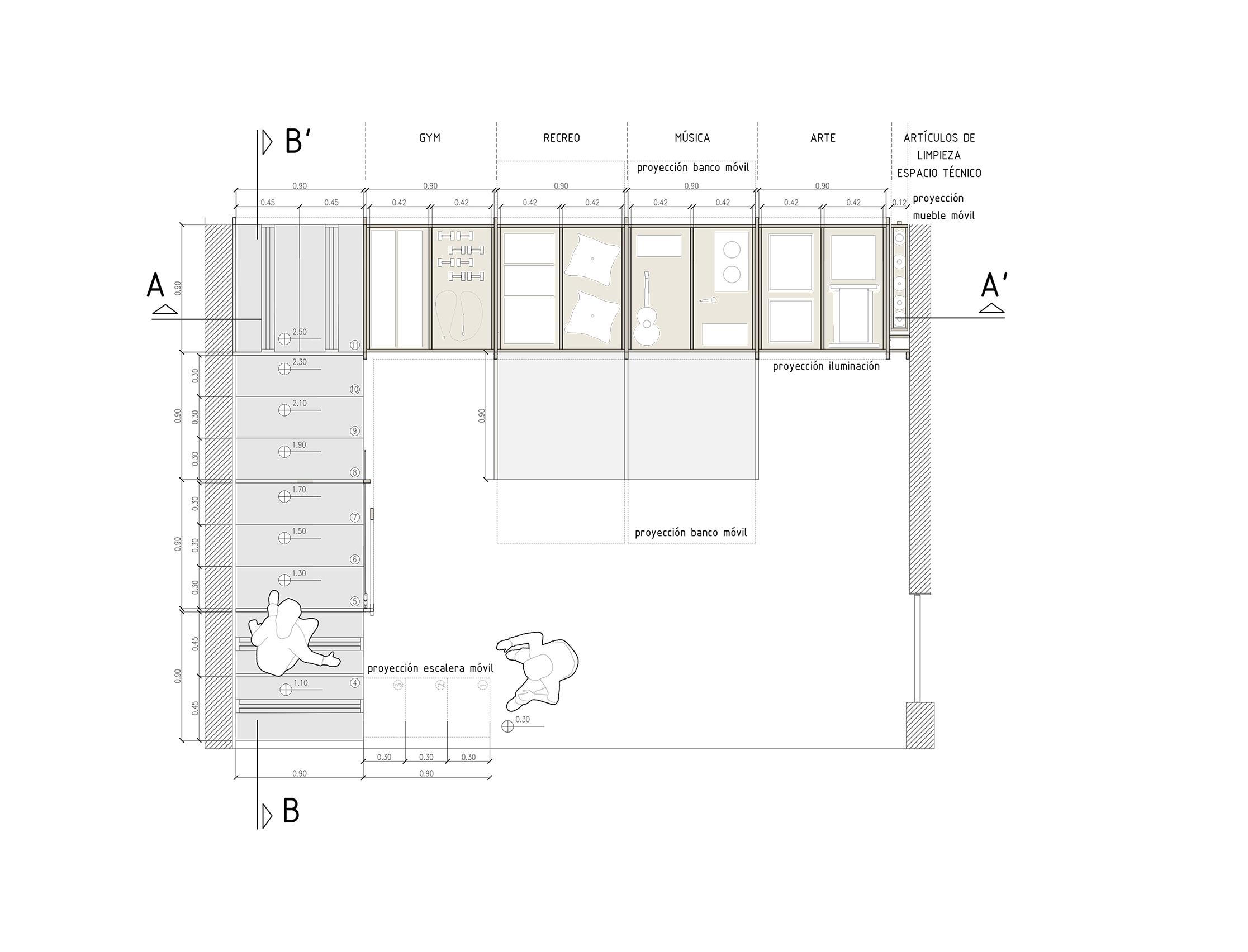
El diseño de este mueble habitable nace de una proyección de mis actividades esenciales en un programa concreto. Se hace referencia al tatami como módulo mínimo, estudiado para ser capaz de contener acciones ilimitadas que permiten definir la ocupación sin etiquetas. Es en esta idea modular en donde surgen cajas programáticas de 0,90m x 0,90m que se ubicarán a distintas alturas.

Los materiales esenciales del proyecto son los tableros alistonados de madera maciza para la estructura vertical y la chapa metálica plegada para puertas y mobiliarios.













CIUDAD EN ESTRATOS
La tesis aborda la problemática de la expansión urbana y la falta de vivienda en la Ciudad de Córdoba, a través de la reutilización de infraestructuras en el centro de la ciudad para densificar áreas consolidadas.


Proponemos aprovechar los terrenos destinados a cocheras en el sector Mercado Norte, que en la actualidad no son eficientemente utilizados, para aumentar la capacidad de plazas de estacionamiento y densificar el área mediante la incorporación de viviendas y otros usos.
Buscamos trasladar la complejidad del sector en altura, mediante el apilamiento de distintos usos traducidos a espesores programáticos que buscan vivir la ciudad en distintos niveles.









Se comparten las premisas de la cuadrícula vinculada al actual tejido de Mi Granja definiendo así un tablero de damas donde las negras son edificios y las blancas patios comunitarios. Se plantean distintos programas exteriores, permitiendo la diversidad y creando cohesión y comunidad, sumado a circulaciones exteriores que pasan a ser las arterias de movimiento.


Se suman al proyecto terrazas comunitarias morfológicamente definidas por sus usos.
La protección de estos edificios está dada por los brise-soleil que adquieren personalidad, absorben las alturas de los edificios y son únicos e identificables, creando así sentidos de pertenencia y rápida lectura.




UN PARÁSITO SOBRE LA UNC
Durante el día, sobre la calle Vélez Sarsfield, nos encontramos con Marco, un objeto arquitectónico introvertido que funde su circulación vidriada con el cielo, desmaterializándose.

Se relaciona con el entorno tomándose de alturas y anchos existentes, pero a la vez busca diferenciarse de un paisaje beige y sólido, con un color rojo de materialidad permeable.
Por la noche se enciende Polo, un objeto arquitectónico extrovertido que busca ser visto desde toda la ciudad.
Con reflectores que imitan un faro, su materialidad permeable y su circulación extruida, además de exhibirse intentan brindar las mejores visuales del Centro y Nueva Córdoba.




PUNTO INTERACTIVO “2050”
Reforma en Ciudad Universitaria
Se presenta como un parque de rol institucional, cuya función es brindar un espacio de encuentro para las distintas facultades de Ciudad Universitaria.

Con entornos dinámicos y atractivos se busca que los usuarios contemplen distintos escenarios mediante un soporte que divide el programa en exposición, recreación y ambiente, con una estructura polifuncional


