
Selected work
![]()

Selected work
mariana.velezl@hotmail.com marianavelez@javerianacali.edu.co Cali, VAC / COL +573234631583
25-11-2002
Spanish C2
English C1 German A2
Portuguese B2 Italian B1
ARCHITECTURE
Emphasis in urbanism

I am an architect from the Pontificia Univesidad Javeriana Cali.
I was born and raised in Colombia, but my passion for architecture and traveling led me to study in Germany and Italy.
My diverse background provides a unique design perspective, creating functional, aesthetically pleasing and cultural sensitive projects.
Additionally, my great team skills enable me to collaborate effectively with colleagues and stakeholders, ensuring successful project outcomes.
Pontificia U. Javeriana Cali
Bachelor of architecture 2020 -2025
Politecnico di Milano / I. Semester
Bachelor of architecture 2023
TECHNICAL SKILLS
AutoCAD
Photoshop
Illustrator
Procreate
Sketch up
Lumion
Revit
As an architect with emphasis in urbanism, I’ve had the privilege of gaining a unique perspective that has allowed me to emphazise the relationship between architecture, public spaces, infraestructure, and community dynamics, enabling me to design spaces that are more responsive to the needs and aspirations of the people who inhabit them.
Through my education and experiences, I have developed a keen eye for design and a deep understanding of how to communicate ideas visually.
One of the most significant advantages of studying in two different countries, such as Colombia and Italy, is the exposure to diverse cultural perspectives and design philosophies. By studying in different regions, I have been able to broaden my understanding of architecture and design, learn new techniques, and gain a global perspective on the field.
Moreover, my experiences in multiple countries have allowed me to develop a high level of adaptability and versatility, which is a valuable asset in the fast-pased and constantly evolving field of architecture and design. I have learned to be flexible open-minded, and able to work effectively with people from different backgrounds and cultures.
I am confident that my skills and expertise will make a valuable contribution to any organization that I work for, and I am excited to continue to grow and evolve as an architect in the years to come.
2022 RENOVACIÓN PARQUE LÍNEAL
Urbanism and paisajism project
2021 PABELLÓN
Structural development
2021 BIBLIOTECA
Architectural design
2024 CDI MAR DE IDEAS
Early childhood spaces: safety and stimulation
2024 PLAN TECHINT
Urban renovation
2023 ABITARE LA PERIFERIA
Construction laboratory
2022 ARQUITECTURA Y CIUDAD
Social housing design: affordability and community
2023 FESTINALENTE
Slow line design: cycle and walk paths
2024 GRAPHIC DESIGN WORKSHOP
Visual communication design
2023 CENTRO CULTURAL
Urban cultural center
Proyecto de grado 2024
Role as a Student Architect in Universidad Javeriana in Collaboration with Juanita Balaguera.
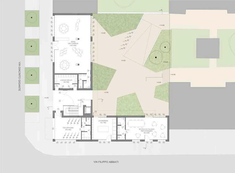
CDI MAR DE IDEAS is a home for children, a place that conveys warmth and welcome, where the goal is to create environments that are not only functional but also foster a sense of belonging and safety. Every element, from the choice of colors to the layout of the spaces, is designed with the purpose of supporting the emotional well-being and healthy development of the children.
It is a space where children grow personally, emotionally, and socially, preparing for the future in an environment that nurtures their potential every step of the way.


Figura inicial:
Extraer y conformar el vacío


Conformar:
Paramentación con preexistencias urbanas y ambientales
Relacionar:
Ejes ambientales







Grapas ambientales:
Vacíos interiores como extensión del paisaje exterior.

Articulación:
Un eje axial de patios interiores conecta el proyecto, tanto en su interior como con el entorno.


Transición:
Se adapta la volumetría al contexto inmediato con cubiertas a dos agua.


Proyecto Urbano II
2024
Role as a Student Architect in Universidad Javeriana in Collaboration with Micaela Aguirre, Nayla Iriarte and Estefania Zenteno.
This ongoing project tackles urban disparity by proposing a radio-centric park as the heart of a transformative development connecting two previously segregated sides of the city divided by a river. The park acts as a radiating center, with new multipurpose buildings strategically placed around its perimeter, encompassing residential, commercial, and cultural spaces, promote vibrant urban life and economic growth.
During this project I have enhanced my representation skills and have made use of technologies such as 3D and resin printing for models.








University Project
Laboratorio di costruzione
2023
Role as a Student Architect in
Politecnico di Milano in Collaboration with Davide Angelo Furioni and Simone Gallo
Redesign of a corner lot located in the San Siro district of Milan, in an area built after the second world war with poor quality materials to replace buildings that had suffered extensive damage. The demolition and redesign of this building is hypotetical, with the design of with the design of new neighborhood services on the ground floor and public residential housing at subsidized rents on the upper floors. The internal open space belonging to the building must be designed to be open to the neighborhood during daylight hours to host activities related to the rooms on the ground floor, with an entrance appropriately separated from that of the homes on the upper floors.

















Proyectos V. Arquitectura y ciudad
2022
This project explored the concept of urban renewal by proposing the transformation of an abandoned industrial site in the north of Cali, Colombia, into a modern residential building.
The design aimed to: Revitalize a neglected area and addressed the issue of urban decay by repurposing an underutilized space. Create sustainable housing: The residential building incorporated sustainable design principles to minimize environmental impact. Foster community integration: The design considered the surrounding context and included features that encourage community interaction.








marianavelez@javerianacali.edu.co
+57 3234631583
