


![]()




2020 2021 2022 2023
•The future of housing.
•Centre of Innovation in Bratislava.
•Refugio temporal para mujeres, sus hijos e hijas en situación de violencia doméstica en la CDMX.
•Remodelación Casa Fresno.
Tipo de edificio: Conjunto habitacional multifamiliar con comercio en planta baja.
Ubicación: Narvarte Poniente, Benito Juárez, Ciudad de México
Equipo de trabajo: Marian Almaguer • Aldair Villanueva
• David Villarruel
Año: 2020



El proyecto se basa en la creación de un conjunto habitacional, donde el concepto es la unidad, es decir, contener todo lo necesario en el espacio dotado para evitar que el habitante salga al exterior, con base en la contingencia mundial de la pandemia por COVID-19 que se vivió en el 2020; por lo tanto el diseño del proyecto va desde la escala más pequeña, el departamento; como a mayor escala, el conjunto habitacional.
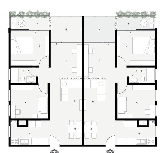
El conjunto habitacional consta de 9 torres, cada una con 8 departamentos (para evitar conglomeraciones en núcleos de circulación vertical) en 6 niveles, cada torre tiene un desplante máximo de 751.50 m2, con dos tipos de departamentos: el primero con capacidad máxima para 4 habitantes, mientras que el
Debido a la alta densidad del proyecto y acorde a la normatividad de uso de suelo, se otorgan 400 cajones de estacionamiento para las 432 viviendas que conforman el conjunto, 48 locales comerciales establecidos en puntos estratégicos del conjunto para activar el negocio local; el área libre y la terraza es aprovechada para espacios de convivencia equipadas con mobiliario adecuado.







El método constructivo en la subestructura está basado en una cimentación mixta, con un cajón de cimentación y zapatas aisladas en respuesta a la dimensión de los volúmenes y características del suelo; y la superestructura consta de marcos rígidos de acero.
Mientras tanto la superestructura se encuentra conformada por marcos rígidos de acero debido a que se establece un entre-eje tipo además buscando una viabilidad en tiempo de construcción, elemento importante en el plan maestro.

Arriba. Axonometrico sistema constructivo en los volumenes tipo. Abajo. Axonometrico sistema constructivo en estacionamiento. Izquierda. Corte por fachada de los volumenes de vivienda.

Abajo izquieda. Estado actual Av. Diagonal San Antonio. Abajo derecha. Propuesta urbana Av. Diagonal San Antonio. Abajo centro. Perspectiva de propuesta Av. Diagonal San Antonio.
Estado actual Propuesta

En ambos sentidos existe estacionamiento en vía pública. El cruce peatonal es excesivamente largo y no existe un resguardo al cruzar. El camellón central está inutilizado.

Respecto al proyecto a nivel urbano se propone el rediseño de las avenidas circundantes al conjunto habitacional, por lo que se propone la implementación de carril doble sentido confinado para el uso exclusivo de la bicicleta, creando un bien social y una actividad recreativa para el público. Cruces seguros. Ciclovía confinada. Ampliación de banqueta en área de estacionamiento para mejor visibilidad. Se hace una intervención al camellón a partir de mobiliario urbano para generar estancia y permanencia.





Arriba. Sala y comedor del departamento familiar. Abajo. Sala y comedor del departamento para solteros. Izquierda. Espacio flexible y terraza de departamentos.

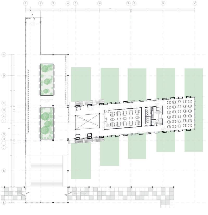
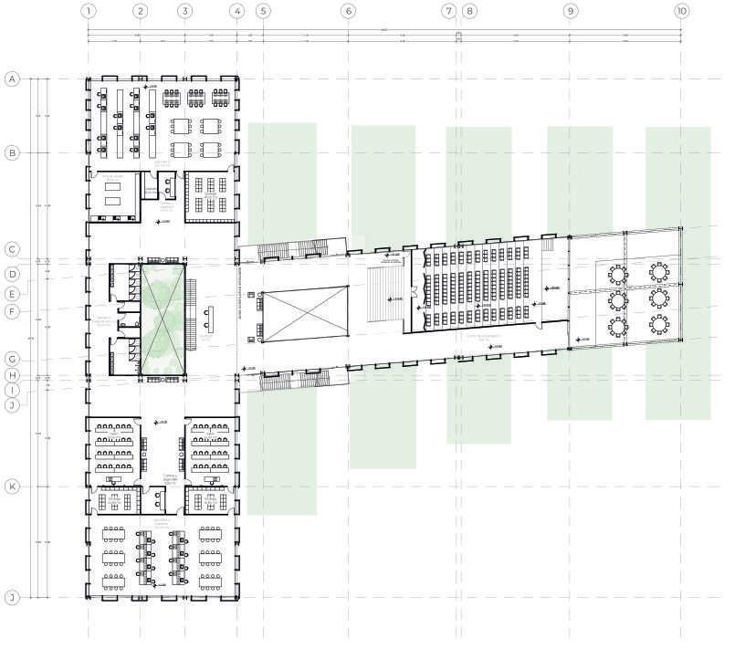
Tipo de edificio: Centro de innovación en conjunto educacional.
Ubicación: Staré Mesto, Bratislava, Eslovaquia.
Equipo de trabajo: Marian Almaguer • Aldair Villanueva • David Villarruel
Año: 2021



La Universidad Tecnológica de Bratislava busca aprovechar el patio interior que se crea a partir de la disposición de sus facultades, por lo que se propone un Centro de Innovación dentro de este, así mismo con el fin de unificar el diseño y articular la Universidad.
Primeramente, se toma como concepto la continuidad, de este modo se desplanta el edificio con una planta libre para continuar con el tránsito peatonal a lo largo de la Universidad.
Enseguida el diseño de fachada se basa en una modulación que no sólo combine con el diseño propuesto para el patio, sino que se cree una permeabilidad de la incidencia solar en los espacios interiores que lo necesiten.
Finalmente, el concepto culmina en el puente que conecta las facultades y puede ser usado como terraza y acceso indirecto al Centro de Innovación.












Para mujeres, sus hijos e hijas en situación de violencia doméstica en la CDMX
Tipo de edificio: Asistencia social Centro de Protección
Ubicación: Álvaro Obregón, CDMX.
Equipo de trabajo: Marian Almaguer
Año: 2022


El proyecto está destinado para mujeres, sus hijos e hijas en situación de violencia doméstica, con el fin de proporcionar un espacio seguro y de protección digno para las víctimas, donde se les dote además de las herramientas necesarias para la recuperación de su autonomía y una vida libre de violencia, a través de la creación de espacios de contención y acompañamiento médico, psicológico y jurídico a familias en situación de violencia doméstica.
La localización de cada espacio además de estar relacionada intrínsicamente con las orientaciones adecuadas, se crean zonas de acuerdo con el uso, facilitando así el funcionamiento, entendimiento, construcción y dotación de servicios, así mismo la disposición es tipo claustro, con la finalidad de tener espacios abiertos y con vistas, y con la posibilidad de ampliar los espacios característicos a través del uso de puertas corredizas que abren al jardín central.






Se opta por el uso de colores neutros y simples, que además de evitar la ostentación, permiten la sensación de paz y serenidad para las víctimas, así mismo, la propuesta de pavimentos se basa en que sean de poco mantenimiento.

Arriba. Pasillo principal, a la izquierda patio principal, a la derecha consultorio médico.
Abajo izquierda. Área de dormitorios.
Abajo derecha. Circulación vertical.







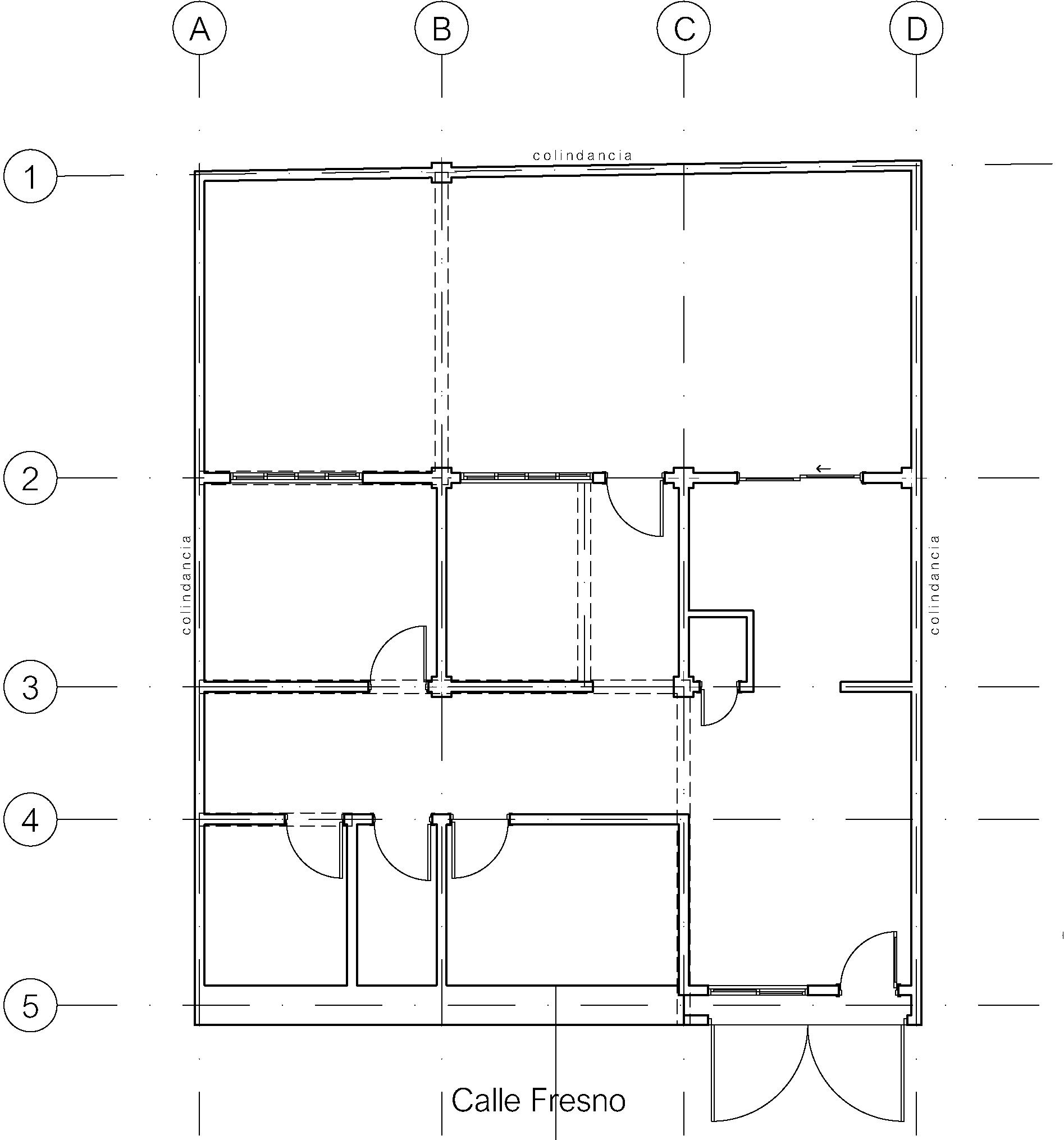
Tipo de edificio: Casa habitación residencial.
Ubicación: Iztapalapa, CDMX
Equipo de trabajo: Marian Almaguer
Año: 2023

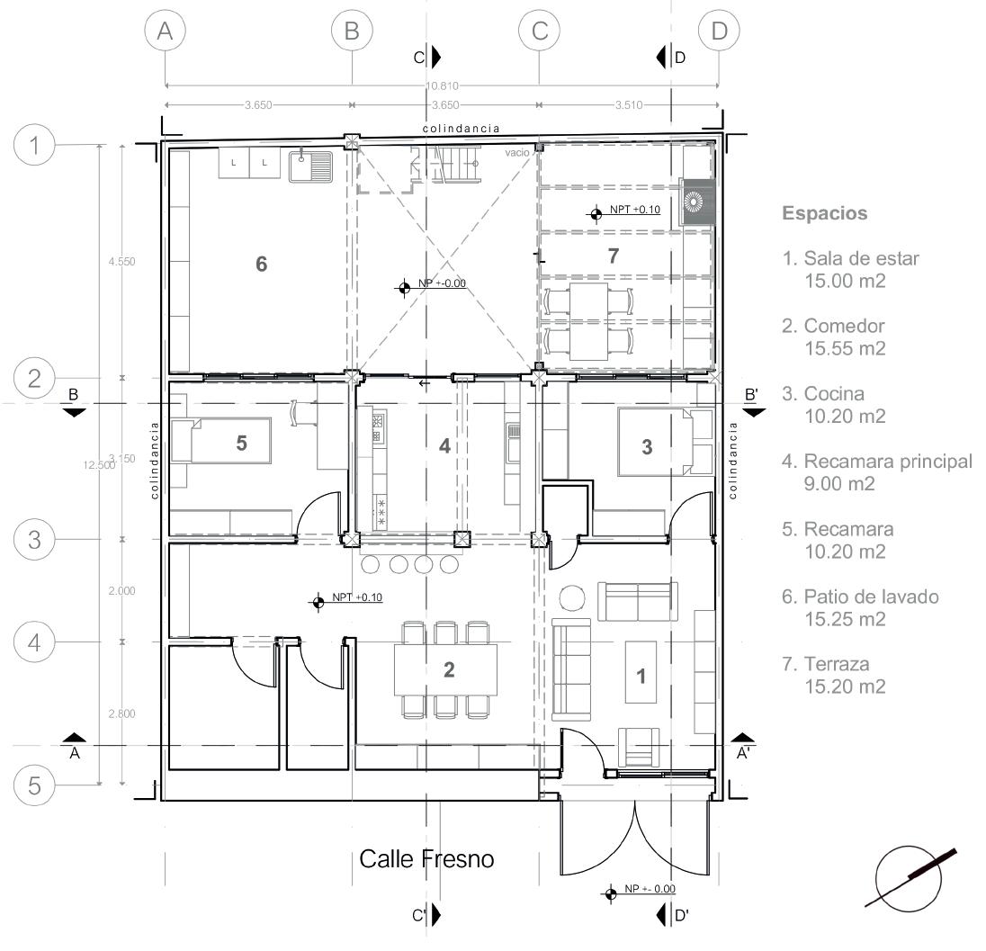
Actualmente la vivienda consta de 3 niveles, donde cada uno es una vivienda particular, la remodelación esta referida únicamente a planta baja (NP. +- 0.00).
Los requerimientos que presenta la vivienda, es luz y ventilación natural, sin embargo, la orientación de la fachada principal es el noroeste y el material de construcción utilizado fue piedra con un grosor de 0.55 m. por lo cual se imposibilita la apertura a vanos a menos de ser consultado con un Ingeniero o Arquitecto especializado en estructura, ya que por el grosor del muro no hay un per l metálico comercial estructural que nos permita modi car la bajada de cargas de los niveles subsecuentes.
Por lo tanto, la remodelación se basa en un reacomodo de espacios, donde lo que se busca es aprovechar al máximo la utilización del espacio y añadir una recamara con el n de mantener espacios privados para los habitantes, así mismo aprovechar la fachada del patio posterior con orientación al sureste para ampliar la ventilación e iluminación de la vivienda.


Fachada estado actual, el área sombreada es la vivienda en la que se concentra la remodelación.













