FINAL PORTFOLIO

Page 1


next FiRM

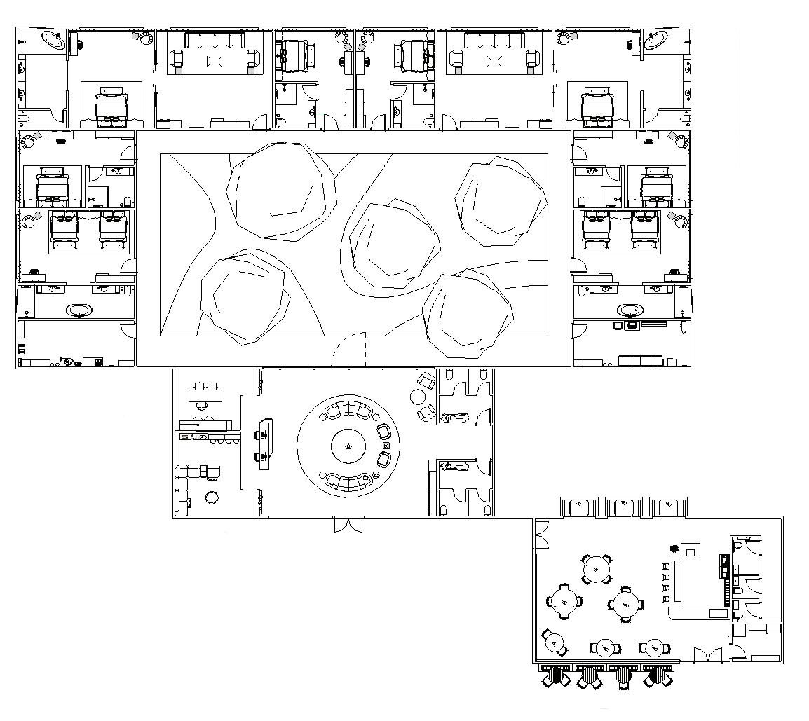
The NEXT Architecture Firm’s Dallas office is inspired by the iconic Thanksgiving Square, where the nondenomenational chapel’s sprial features serve as the central theme, like the staircase featured in the office space. Our workspace embodies the essence of innovation and creativity, mirroring the spiritual tranquility found within the square. Like the chapel’s spiral, our office layout encourages a fluid and evolving work environment, symbolizing growth, progress, and collaboration and colorful aspects like the stain glassed ceiling. The fusion of sacred geometry and modern design principles creates a harmonious and inspiring atmosphere that reflects the firm’s commitment to pushing boundaries and shaping the future of architecture in Dallas and beyond.

Reception

Wellness room

Workstations

Patio

Client Presentation Room

Small Meeting Room

Small Meeting Room 2

Workstations 9. Mothers Room

Private offices

Huddle Space

Work Cafe

Design Library

Training Classroom

Private offices

The private office is a refined, functional workspace featuring a sleek white L-shaped desk with ergonomic dual-monitor arms. A high-backed blush-colored chair provides both comfort and a subtle pop of color. A metal-framed shelving unit behind the desk offers storage and display space, blending white and natural wood tones for a modern, cohesive look. Floor-to-ceiling glass walls maintain an open feel while providing privacy, with natural light filtering through the adjacent large windows.

Steelcase
Designtex
Fabric-Micro Tweed Sunflower Designtex

Small Meeting room & Client Presentation rOom

This intimate meeting space features a light wood oval conference table surrounded by soft pink upholstered swivel chairs with white metal bases. Sliding whiteboards encourage creative brainstorming. Floor-to-ceiling windows allow natural light to enhance the calm and focused atmosphere.

The large conference room is defined by a long, light woodgrain table paired with matching pink upholstered chairs. Sliding whiteboards support presentations and brainstorming sessions. Floor-to-ceiling windows flood the room with natural light and offer expansive views. The white coffered ceiling adds architectural detail, reinforcing the balance between professionalism and creativity.

Acoustic Panel-Silver Gray Clarus Steelcase
Fabric-Era Pink Lemonade Steelcase
Carpet-Vestige Aniline EF Contract

mezzanine work cafe

This open-concept space combines work and social elements with white tables, dark blue chairs, and built-in bench seating. A bold red geometric tile wall serves as a striking focal point behind the white kitchen area, where gold pendant lights add warmth. The floor features a mix of light woodgrain and gray polished concrete, while black metal railings and glass partitions maintain a modern industrial vibe. Expansive windows provide natural light, creating a bright and inviting setting for casual meetings and collaboration.

Lighting-Mirror Ball Pendant Gold Tom Dixon
Fabric-Building Blocks Pink Designtex
Fabric-Distressed Peony Designtex
Concrete-Panbeton Timber LCDA North America Steelcase

Reception

Gender Neutral Bathroom

Janitor Closet

Business Center

Mailroom

Admin Offices

Gym

Gender Neutral Bathroom

Laundry Room

Playground Courtyard

GYm & living unit

At the heart of each private unit is a compact yet thoughtfully designed kitchen and dining space, where functionality meets comfort. Reflecting the overall goal of cultivating community through empathy and connection, this area supports daily routines while encouraging meaningful moments at home. Whether that’s cooking for loved ones or sharing a meal with a neighbor.

Natural light streams in through well-placed windows, creating a bright and inviting environment. The streamlined kitchen layout includes essential appliances and generous counter space, ensuring practicality without compromising aesthetics. Adjacent, a transparent dining set adds a sense of openness to the compact space, fostering a welcoming feel even in smaller square footage.

Every design decision, from the warm wood flooring to the intuitive flow between kitchen, dining, and living zones, supports dignity, comfort, and a sense of belonging. Here, residents can find not just shelter, but a home base for connection and care within a larger, supportive community.

This bright, modern gym serves as both a wellness center and a community gathering space within the affordable housing project. Anchored in the project’s mission to foster connection and mutual support, the gym offers more than physical fitness, it’s a place for residents to grow stronger together.

Large windows flood the space with natural light, creating an inviting atmosphere that encourages participation and inclusivity. The layout accommodates both individual workouts and group activities, with a dedicated area for community-led fitness classes, such as yoga, stretching, or dance.

Sleek, durable finishes and neutral tones promote a calm and approachable feel, while professional-grade equipment supports a wide range of health goals. By prioritizing both form and function, the gym becomes a vital part of the neighborhood’s fabric, where residents come not only to care for their bodies but also to connect, share, and thrive together.

Exec.
Fabric-Levante Ivory 4Spaces
Fabric-Geneva Fabricut Contract
Fabric-Ennis Canary P/Kaufmann Contract
Paint-Powder Sand Benjamin Moore
Fabric-Boundary Boudoir Fabricut Contract
Tile-Zellige Field Coriander Artistic Tile
Tile-Bianco Penny Tile Tile Bar
Flooring-Terracotta Tile Riad Tile

Turn static files into dynamic content formats.

Create a flipbook
Issuu converts static files into: digital portfolios, online yearbooks, online catalogs, digital photo albums and more. Sign up and create your flipbook.
FINAL PORTFOLIO by marianadelarocha - Issuu