Interior Design Portfolio 2023

Page 1

CONTENTS

- Current Work - Kiosk
-
- Residential
Design
Boutique Hotel

ABOUT ME

My passions stem from always having had an enormous admiration for the arts. My love for photography from an early age helped develop my passion for film, music, and design. After a few years of practicing and studying design, I can’t say that my style fits in one specific category. My designs are practical yet sophisticated, The perfect balance of modern eclecticism, with classic accents for a touch of familiarity. My goal is to stimulate and simultaneously sooth all of the senses to create a warm yet exciting environment. By attending higher education programs, traveling, and receiving my Bachelors of Fine Arts in Interior Design, it has become more than just a hobby or a career choice, but instead a way of advancement, growth, and self-expression.

KIOSK DESIGN PROJECT

FALL 2019 - GROUP PROJECT

CONCEPT

Self expression should be a breath of fresh air in our busy lives, The Glossier brand strives to make this possible. Our space will show the playful side of beauty that is as lively as their makeup. The interior should feel like you’re in your dream vanity at home and playing with new products. It will show a simple and honest design through color, geometry, and material.

INSPIRATION

PROJECT DESCRIPTION

Design a small (around 120 square feet) retail kiosk that is located either in an open air mall or an enclosed shopping mall environment. Select the product(s) and mall location for the retail kiosk and will be responsible for incorporating the product(s) existing branding into your design.

SKETCHUP/ENSCAPE

LOCATION

The Shops at La Cantera is a shopping and dining destination in the Northside of San Antonio that offers a vibrant mix of cultural and entertainment attractions. Our kiosk will be surrounded by stores such as Nordstrom, Kendra Scott, Tiffany & Co., and Coach. This is one of the many major entries to the shops and experiences heavy foot traffic.

Store Front Evening Look PHOTOSHOP 15900 La Cantera Pkwy, San Antonio, TX SITE MAP

SELECTIONS

3m Chroma decor planet

LIGHTING

INTERIOR FINISHES

lumens
et2 lighting
muuto
Store Front Panel Details
concrete collab- custom custom Interior Store

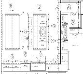
Our initial concept sketches were based on the curves and flow of the Glossier brand and products. The drip effect reminded us of how a lipgloss/lipbalm flows and was therefore our starting point when it came to sketching. We thought of a “drip” window for the front and back of the store to let natural light in so that the products inside “glow naturally” as advertised. The panels were my idea to add some color and dimension to the otherwise typical square kiosk design. I thought the panels could all consist of different flow-like designs to show movement and the different colors would all create a colorful glare inside and outside the kiosk when the sun hits.

EXTERIOR ELEVATION

On the opposite side of the kiosk from the colorful panels, we decided to add a vending machine into a mirrored wall with a decal that says “YOU LOOK GOOD” as it is the company’s signutare mark to write uplifiting phrases on their mirrors. The vending machine contains easy and 24/7 access to their products and adds a fun element to a shopping experience.

FLOOR PLAN INTERIOR ELEVATION
3D CONCEPT K I K I O S O S K D K D E S E S I G N GN

PROJECT DESCRIPTION

Boutique Hotel Design: Avoiding Gentrification by Preserving Historic Spaces. We preserve so that we can pass on to future generations San Antonio’s rich past. In order to do that, we need to save local landmarks, but we also need to preserve the eclectic mix of residential and commercial architecture unique to our community. A lot of history is oftentimes forgotten because of projects that only want to please a certain economic class for financial gain. The goal of this project is to preserve to protect our quality of life, our pride of place and our sense of community.

INSPIRATION

CONCEPT

An intimate Mexican American influenced Luxury Boutique Hotel located on the San Antonio Riverwalk. Reminiscent of the historically fashionable days lived on Houston Street, our goal is to preserve and reignite the vibrant history of The Book Building. We aim to provide an enlightening experience that takes guests and locals back to the carefree times that were lived in our historic saloon and courtyard. Made for the creative souls, the romantics, the curious, and anyone in search of inspiration to enjoy and benefits from the new and the forgotten.

HISTORY

This property was bought and sold many times throughout the 1800’s from people like the Maverick family to the U.S. Army. The Book Building was built in 1906 by Dwight Dana Book, “a civil engineer and veteran of the Spanish-American War, after he bought the property in 1904.” Book resided in the building until he passed in the late 50’s The Coffee House is said to have been the first business on the river level of the building in 1920. The basement level once was home to “The Night Spot”, the first saloon created in San Antonio.

In around 1950, after Dwight Books’ passing, the building was sold to The University of Texas and began using the building for retail and office space for the next coming decades. Attorney’s, realtors, architects, physicians and other tenants leased office space here.

3rd Floor

2nd Floor

Ground Level (Houston St.)

Riverwalk Level

Courtyard

B O O UT I UT I Q UE H UE H O TE L TEL
Historical Map

GRound LeveL (Houston st.)

2nd FLooR

SCHEMATICS

Basement LeveL (RiveR LeveL)

The Book Building was named a Historic Landmark in 1978.

This area of downtown specifically is growing a lot and has a lot of untapped potential. There are a lot of plans for projects in this block specifically with buildings adjacent to the Book building, Clegg building, Solo Serve, and others. The new Frost tower and the Courthouse are around the corner and so are big tech offices next door. It is a high income area, that is not only visited by tourists but by locals daily.

FLooR

“It was frequented mainly by service men. The men were served beer, surrounded by a setting that included wall paintings of huge battleships, beautiful women, and palm trees. With showgirls putting on a show on the patio this became a coloful and well-known place of entretainment.”

COURTYARD
3Rd
RIVERWALK LOUNGE
SITE

Basement LeveL (RiveR LeveL)

GRound LeveL (Houston st.)

not to scaLe

not to scaLe

not to scaLe

not to scaLe

2nd FLooR 3Rd FLooR
BOUTIQUE HOTEL

GENTRIFICATION

The East Side of San Antonio is one of the fastest gentrifying neighborhoods in America. According to research, the East Side experienced a 78.5 percent increase in the median sale price of homes in the last 5 years and only a 8.8 percent increase in the median household income.

Concept Sketches

HISTORIC PRESERVATION

Historic Preservation is about telling the story of our city, neighborhoods, and homes through our built environment. We preserve so that we can pass on to future generations San Antonio’s rich past. In order to do that, we need to save local landmarks, but we also need to preserve the eclectic mix of residential and commercial architecture unique to our community.We preserve to protect our quality of life, our pride of place and our sense of community.

A lot of history is oftentimes gone because of projects that only want to please a certain economic class for their financial gain. In San Antonio, so far, they’ve done a good job of staying true to its history and all of its historic landmarks. I believe we’re barely starting to see these extensive modern projects for big tech companies and such who are looking for the next hub city.Gentrification risks rising and lowering property values and shrinks access to transportation. It overall lowers neighborhoods quality of life.

“The design objectives for RIO-3 are: the historic work of Robert Hugman, CCC and WPA construction work, Ethel Harris tile work, and work of the National Youth Administration shall be respected and preserved in all construction efforts, and adherence to the intent and spirit of those plans is essential in all construction; traditional, formal street level design precedents shall be respected, but at the river level, the more informal, handcrafted style shall be maintained; the integrity of historic properties shall be preserved, and historic differences between street level designs and river level designs shall be respected; the traditional design context of the area shall be respected at two levels: the broader downtown context and the immediate block as it faces the river.”

Map of Historic Districts and Landmarks in the Book Building Area Map of highest affected areas by gentrification in the city
CAFE LOBBY

For Cafe Coucou, I wanted a very easy going system where one can grab a bite or a coffee and sit where they desired around the building. I included seating outside overlooking the courtyard and facing the Riverwalk. This mezzanine also allows access for guests to walk downstairs to the courtyard and exit straight to the Riverwalk or lounge in our courtyard or our bar. Essentially, food and drinks will be served in both the bar and the cafe so with the courtyard and the mezzanine included, there’s many great spots to sit and enjoy the view.

SELECTIONS

Why a Boutique Hotel?

In the past few years, boutique hotels have become more popular across the world providing unique experiences in amazing locations. “This movement was inspired by consumers’ the search for hotels with unique characteristics, customized services, cultural and regional specificities, and ability to generate experiences.” (Parolin. C, 2019)

Usually, boutique hotels are an independent business and are keen on being involved with the community in its location as much as possible.“Boutique hotels are also often rooted in a sense of place — one that appeals not just to travelers, but locals as well.” (Wiley. M, 2020) Overall, their main selling point that sets them apart from chain hotels, is the personalized experience and services offered usually at a more affordable cost. These smaller hotels have the great advantage of intimacy and privacy.

Restrooms

Lagunitas Lounge Florence Knoll Anita Dining Chair Crosshatch Stool Lobby
B O UT I UT I Q Q UE H UE H O O TE L TEL

THE LIBRARY

NEW SPIRIT OLD SOUL

New spirit old soul, was my motto throughout this project, being a historic preservation project it was important for me to keep aspects of it intact and in other words give the space with an old soul, a new spirit. I used warm tones to complement the historic red brick facade and a variety of geometric and organic patterns to bring a sense of the outdoors, indoors and balancing a fresher look.

SUITES

Upholstery Wall / Flooring Swivel Lounge Chair Side Table Three Seater Sofa Coffee Table Cocktail Ottoman Console Table Double Coffe Tables Task Chair Dining Chair Dining Table

1906, is the year the Book Building was built and since then the building has seen many people com through its doors. When I did my research, some documents mentioned the Book Building being home of the first ever saloon in San Antonio. I thought that was an extremley important part of the buildings history and decided to make it home to a bar and lounge, 1906. My inspiration for this space was to combine the basement level of the building with it’s courtyard to be a shared space. I imagined the bar having elements of a speakeasy and conveying that feeling of mischief and being in a place where it truly is about having a good time. The courtyard has spaces for groups to join, as well as more intimate seating arrangements surrounding the stage where live acts can perform or where events can be held. The courtyard connects directly to the Riverwalk and leads you up to Houston St. as well , where the lobby and Cafe Coucou are located so anyone coming in from the River has easy access to the building.

B O UT I UT I Q Q UE H UE H O O TE L TEL

G.V. KITCHEN + PANTRY

ALTAMAR DESIGN PROJECT

LOCATION: THE WOODS SUBDIVISION, BROWNSVILLE, TX

INSPIRATION

PROJECT REQUIREMENTS

Assist with the design of the kitchen and butler’s pantry cabinetry and selection of custom finishes for client.

Client’s Needs:

-Double Island

-Seating for 3-6 people

-Coffee bar in pantry

-Lots of storage

Client’s Wants:

-Neutral tones

-Natural and earthy textures

-Built-in’s at ceiling height

-Hidden pantry entrance

-Open shelves in pantry

Project Parameters:

-12’ ceilings

-~396 sq ft. area for kitchen

-~70 sq ft. for walk-in pantry

COUNTERTOP CABINETS KITCHEN ISLAND WALL COLOR

ALTAMAR DESIGN PROJECT R.M. KITCHEN

LOCATION: COUNTRY CLUB SUBDIVISION, BROWNSVILLE, TX

INSPIRATION

PROJECT REQUIREMENTS

Assist with the design of the kitchen, cabinetry, and selection of custom finishes for client.

Client’s Needs:

-Breakfast bar/Island

-Lots of storage

-Wine fridge (No Dishwasher)

OPTION ONE

FLOOR (Existing)

Client’s Wants:

-Primarily white/bright finishes

-Natural and earthy textures

-Open shelf details throughout

Project Parameters:

-8’ ceilings

-~192 sq ft. area for kitchen

CABINETS

COUNTERTOP/ BACKSPLASH

CURRENT WORK

OPTION TWO

BACKSPLASH

FLOOR

OPTION 2: ADDITIONAL SHELVING

COUNTERTOP CABINETS

Residential Renders

LATEST WORK

LOCATION: ROSEWOOD ESTATES SUBDIVISION, BROWNSVILLE, TX

ALTAMAR

CONSTRUCTION

$270,000 - $350,000

FEATURES:

-3 Bedrooms

-2.5 Baths

-2 Car garage

Living: 1,714.00 SQ. FT

Total: 2,331.00 SQ. FT

FEATURES:

-3 Bedrooms

-2.5 Baths

-2 Car garage

Living: 1,804 SQ. FT

Total: 2,433.00 SQ. FT

FEATURES:

-3 Bedrooms

-S tudy/ Family Room

-2.5 Baths

-2 Car garage

Living: 1,757.00 SQ. FT

Total: 2,371.00 SQ. FT

FEATURES:

-3 Bedrooms

-Study/ Family Room

-2.5 Baths

-2 Car garage

Living: 1,907.00 SQ. FT

Total: 2,527.00 SQ. FT

CURRENT WORK

Turn static files into dynamic content formats.

Create a flipbook
Issuu converts static files into: digital portfolios, online yearbooks, online catalogs, digital photo albums and more. Sign up and create your flipbook.