PORTAFOLIO

Page 8

PORTAFOLIO

ARQ. MARIANA MORA GÓMEZ

Considero que la arquitectura y la comprensión de la ciudad están en un continuo proceso de evolución, especialmente frente a las rápidas transformaciones en las tendencias de estilos y formas de habitar. No obstante, como arquitecta, considero crucial preservar la identidad de los entornos que intervenimos, con el objetivo de crear una arquitectura que no solo evolucione, sino que también trascienda, abordando de manera efectiva las problemáticas sociales

W

ÍNDICE DE PROYECTOS

CASA CZ

CASA SM

CASA VIVERO

MOUNTAIN GATEWAY

HOTEL SAN NICOLAS

CONSULTORIO

HOTEL ROSA

CASA J22

CASA PM

CASA O-D

REDLINE

CASA SOLE

CASA MONTES DE AMÉ

CASA DZITYÁ

ARUBA LOFTS

01-02 03-06 07-08 09-14 15-16 17-18 19-20 21-22 23-26 27-30 31-34 35-36 37-40 41-42 43-46

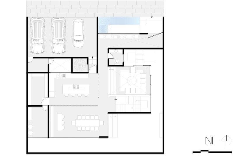
CASA CZ

Proyecto: Casa Habitación

Sitio: Cuetzalan, Pue.

Área: 400 m2

Construcción:180 m2

Año: 2020

La Casa se sitúa en Cuetzalan, un pueblo en la sierra, rodeado de bosques y pendientes pronunciadas. La arquitectura en esta región es muy característica, por lo que se integran los sistemas constructivos y materiales endémicos.

El diseño se adapta al desnivel del terreno, abriéndose a vistas panorámicas hacia el paisaje, integrando un patio interior para aprovechar la luz natural y ventilación.

01

Tanto en el interior como exterior, se proponen muros de piedra, vigas de madera aparentes y estructurales, la teja también es un elemento que no puede faltar en una vivienda de Cuetzalan, así como las bugambilias y cedros que rodean el perímetro. Se integra una chimenea rústica para los días más fríos del año, y cubiertas inclinadas para las lluvias que duran más de la mitad del año.

Colaboración con: Arq. Laura Daniela Camacho Arq. José Ariam Tapia

Planta arquitectónica
02
Corte longitudinal

Plantas Arquitectónicas

03

CASA SM

Proyecto: Casa Habitación

Sitio: Puebla, Pue.

Área: 380 m2

Construcción:235 m2

Año: 2020

La Casa SM se encuentra ubicada dentro de un conjunto habitacional de alta plusvalía en Puebla. Por lo cual el diseño se adapta a la tipología de estilos que la rodean, con detalles minimalistas, integrando elementos naturales, tales como madera, vegetación, cuerpos de agua y mármol, combinados con transparencias que invitan a la contemplación, desde la entrada hasta el interior. Conservando la privacidad de la familia que la habita.

Colaboración con: Arq. Laura Daniela Camacho

Arq. José Ariam Tapia

04

La integración armoniosa de elementos naturales y ventanales panorámicos realza su estética y genera un sentido de conexión con la naturaleza, creando un ambiente acogedor y elegante.

05
06
Habitación

CASA VIVERO

Proyecto: Casa Habitación

Sitio: Cuetzalan, Pue.

Área ampliación: 162.50m2

Año: 2021

La Casa V representa una nueva ampliación concebida para una pareja que busca tanto espacios acogedores para recibir visitas como un área privada apartada del bullicio. En el diseño, se incorpora un corredor exterior en la fachada, enlazando con una terraza privada que funciona como espacio para desayunar junto a la recámara principal.

Los lugares destinados a la interacción familiar, como la sala de televisión y el estudio multiusos, desempeñan un papel crucial como núcleo de separación entre la sección más antigua y el área privada. Es destacable la importancia otorgada a los amplios ventanales, los cuales ofrecen vistas panorámicas al jardín, especialmente significativas ya que la familia cuenta con un vivero en las mismas instalaciones.

Colaboración con: Arq. Laura Daniela Camacho

Arq. José Ariam Tapia

07

Construcción existente

Diagrama de sección Planta arquitectónica
08
Ampliación

REMODELACION MOUNTAIN GATEWAY

Proyecto: Remodelación interior de hotel boutique

Sitio: Cuetzalan, Pue.

Año: 2022

El Hotel Monte Justo inició a partir de un conjunto de cabañas y habitaciones ya existentes, en busca de una renovación específicamente orientada a acoger grupos de misioneros extranjeros.

La propuesta de remodelación se destaca por un diseño cálido que fusiona el estilo mexicano con materiales de lujo, con el objetivo de ofrecer a los huéspedes una experiencia única.

En este entorno, se brindan espacios acogedores y amenidades cuidadosamente diseñadas para invitar a la contemplación y la relajación

Colaboración con: Arq. Laura Daniela Camacho

09

Planta de distribución

10
Diseño de muebles

Re-distribución

Proyecto: Remodelación interior de Cabaña Roja

Mountain Gateway

Área: 80 m2

Cada cabaña en la propiedad demanda redistribuciones espaciales personalizadas debido a sus distintas dimensiones, presentando así un desafío para satisfacer las necesidades del cliente y ajustarse a las variadas características de la construcción.

11

DETALLES INTERIORES

12
Después Antes

Proyecto: Remodelación Fachada Mountain Gateway

Esta espaciosa cabaña, que alberga cuatro habitaciones, necesitaba intervenciones limitadas exclusivamente en los acabados, manteniendo inalterada tanto su estructura como su disposición original. Se optó por utilizar materiales propios de la región con el fin de preservar y resaltar el auténtico estilo de Cuetzalan.

13

DETALLES INTERIORES

Después

Antes
14

DISENO AMENIDADES HOTEL SAN NICOLAS

Proyecto: Diseño amenidades hotel

Sitio: Tlaxcala

Año: 2022

El diseño se adaptó para crear un vestíbulo en un hotel ubicado en el centro de Tlaxcala, buscando un estilo moderno. Se utilizaron muebles y materiales que generan contrastes mientras se integran armoniosamente con la vegetación y las entradas de luz. Se incluyó una fuente central para lograr una sensación de elementos naturales en el interior, creando así un espacio de convivencia que invita a disfrutar del entorno

Colaboración con:

Arq. Laura Daniela Camacho

Arq. José Ariam Tapia

Planta Baja
15
Planta Alta
16
Materiales

CONSULTORIO DENTISTA PEDIATRA

Proyecto: Diseño interior consultorio

Sitio: Cuetzalan, Pue.

Año: 2022

Área: 55 m2

En este proyecto de diseño interior para un consultorio pediátrico, con limitaciones de espacio, se planteó la inclusión de una sala de espera y un área de juegos como protagonista del diseño.

Para el consultorio, se buscó una distribución eficiente del reducido espacio ,de manera que pudiera albergar un escritorio, una silla y un área de lavado sin sacrificar la funcionalidad ni la comodidad del entorno.

17
Colaboración con: Arq. Laura Daniela Camacho
18

DISENO REMODELACION HOTEL ROSA

19

Proyecto: Remodelación hotel

Sitio: Tulum.

Año: 2023

La remodelación se llevó a cabo siguiendo un estilo chuKum, utilizando materiales endémicos de la zona de Tulum, con el objetivo de realzar la experiencia de los huéspedes. Se prestó especial atención a conservar el distintivo color de la fachada que caracteriza al hotel, y se incorporaron elementos naturales para complementar y enriquecer la estética del lugar. Esta combinación de elementos locales y detalles naturales no solo mejora la estética del hotel, sino que también contribuye a una experiencia más auténtica y armoniosa para quienes lo visitan.

Colaboración con: Arq. Laura Daniela Camacho

20

CASA J22

Proyecto: Casa Habitación

Sitio: Jinotega, Nicaragua

Año: 2023

Área:140 m2

Este proyecto de casa, aborda la limitación de espacio en el terreno, maximizando cada rincón de manera inteligente. Se ha logrado una distribución eficiente, cuidando de reservar espacio para un acogedor jardín que aporta frescura y serenidad. Las vistas interiores han sido cuidadosamente planificadas para integrar la naturaleza. Los acabados, una fusión de modernidad y elementos típicos de la región de Jinotega, rescatan la esencia local, incorporando aquellos detalles que son distintivos de la región.

Diagrama Planta
21
Colaboración con: Arq. Laura Daniela Camacho
22

Proyecto: Diseño de casa

Sitio: Pilinchaco, Pue.

Área: 97m2

Año: 2023

La residencia P22 es un proyecto diseñado para una familia de cuatro personas, que busca un refugio en medio de un extenso terreno, rodeado de exuberante vegetación.

Se caracteriza por su estilo de cabaña, que preserva la esencia de Cuetzalan, permitiendo a sus habitantes sentirse integrados en el entorno. Con amplios ventanales de piso a techo, la casa brinda la sensación constante de armonía con la naturaleza, proporcionando un espacio ideal para el descanso y la conexión con el entorno natural.

CASA-CABANA PM

Colaboración con:

Arq. Laura Daniela Camacho

23
24
Diagrama de distribución

Planos arquitectónicos

25
26
Diseño interior

CASA O-D

Proyecto: Casa Habitación

Sitio: Cuetzalan, Pue.

Área: 387 m2

Año: 2023

La composición de esta residencia se inspira en un estilo contemporáneo, utilizando materiales de alta calidad como mármol y madera, complementados con porcelanatos oscuros que generan un ambiente sobrio y elegante. A pesar de esta modernidad, se han conservado elementos tradicionales en la fachada como la piedra, y se han incorporado cubiertas inclinadas con teja para mantener una armonía estética con el entorno. Este equilibrio entre lo contemporáneo y lo tradicional confiere a la casa una presencia distintiva y atemporal.

27
28
Planta baja

Diagramas de distribución

29
Planta alta Planta baja Planta alta
30
Cortes
Materiales

LOCAL REDLINEDEPARTAMENTO

Proyecto: Remodelación

Sitio: Tecamachalco, Pue.

Área: 150 m2

Año: 2023

Esta remodelación se ha adaptado de manera ingeniosa a un terreno limitado de 12 x 6 metros de frente. El objetivo principal es preservar un espacio comercial para la marca Redline, con una planta baja destinada a la exhibición de sus productos. La conexión entre esta área de exposición y una oficina privada se logra mediante una elegante escalera de caracol.

Se ha cuidado mantener la identidad visual de la marca, mediante el tono del logo, combinado con materiales minimalistas.

En la parte trasera del terreno, de manera privada, se enlaza con un departamento de tres niveles. En este espacio, se ha priorizado la comodidad y el estilo, asegurando que ambos aspectos se integren de manera armoniosa. Este enfoque integral aporta una renovada funcionalidad y estética a toda la propiedad, aprovechando al máximo las dimensiones limitadas del terreno.

Colaboración con: Arq. Laura Daniela Camacho

31

Materiales

32
Diagrama de local Plano planta baja
33
Plano planta segundo nivel Plano planta tercer nivel
34
Diagramas de departamento Roof garden Planta baja

CASA SOLE

Proyecto: Remodelación

Sitio: Cuetzalan, Pue.

Año: 2024

Esta remodelación interior, tuvo como objetivo la integración fluida de los espacios del vestíbulo, sala y comedor, con la intención de generar una sensación de amplitud que se extiende hacia la cocina, una parte fundamental de la casa. Se buscó aprovechar al máximo el área disponible. En el proceso, se preservó la esencia del ladrillo original, armonizándolo con madera y colores de contraste, en muros y muebles.

0.85 2.10 0.85 2.10 0.85 2.10 0.85 2.10 ACCESO NPT + 0.00 NPT 0.76 ESTANCIA NPT 0.52 SALA NPT + 0.52 COMEDOR NPT 0.52 COCINA NPT 0.52 RECIBIDOR NPT + 0.52 0.76 2.10 Mueble Proyección Campana Proyección Gabinetes Nicho para hornos Asiento A E D C B A D 1 2 3 1 2 3 9.38m 3.87m 2.2m 4.13m 1.6m 0.6m 0.6m 2.2m 1.02m 0.5m 1.12m 1.45m 0.8m 1.5m 7.69m 3.21m Mueble de blancos Celosia SUBE SUBE 0.7m Diseño y dibujo: AGOSTO 2023 Proyecto: Plano: Acotación: Metros Dirección: Propietario: Firma: No de Plano: Clave: ESC 1:25 PLANTA BAJA Remodelación Interior Planta de distribución Cuetzalan del progreso 1/2 ARQ-01 ARQ.MARIANA MORA GOMEZ NIVEL DE PISO TERMINADO SIMBOLOGÍA: NPT+- 0.00 CELOSIA DE MADERA CAMBIO DE NIVEL
35

AVANCE DE REMODELACIÓN

Antes
Después
36

CASA MONTES DE AME

37

Proyecto: Remodelación y ampliación

Sitio: Mérida, Yucatán. Año: 2024

El proyecto se ha concebido con una visión contemporánea. Comenzando con una readaptación de los espacios ya existentes, se han abierto estratégicamente las entradas de luz y ventilación natural para establecer una conexión fluida con el exterior.

La fachada de la casa ha sido rediseñada para incorporar materiales emblemáticos de la arquitectura de Mérida. Las celosías de concreto ofrecen un juego de luces y sombras que añaden dinamismo y privacidad, mientras que la piedra Galarza y la madera de parota aportan una textura y calidez únicas, integrando la construcción en su contexto cultural y geográfico.

Habitaciones

Piscina- jacuzzi

Pasillo interior/ privado Cuarto de servicio Garage Jardines Sala-comedor Lounge bar Baño Cocina Terrazas Planta
38

Uno de los aspectos más destacados de esta remodelación es la inclusión de un cuerpo de agua que envuelve los espacios comunes como la sala y el comedor. Este elemento solo genera serenidad, sino que también actúa como un espejo natural que refleja la belleza del entorno, convirtiéndose en el corazón de la casa.

Además, se ha ampliado la estructura original para incluir tres recámaras, conectadas mediante un pasillo con ventanales que se abren hacia un patio interior. Este diseño permite una continuidad visual hacia la alberca y el paisajismo cuidadosamente diseñado, creando una atmósfera de armonía y relajación. Los espacios interiores y exteriores se entrelazan.

Este proyecto no solo transforma una vivienda, sino que reimagina la forma en que se habita, priorizando la luz, la ventilación y la conexión con los elementos naturales.

39
Sala-comedor Zona de servicio Cocina Terraza Hab. 3 Piscinazona de interacción Jardin Interior Hab.1 Hab.2 Jardin Interior Jacuzzi
40
Terraza

CASA DZITYA

Proyecto: Remodelación de fachada

Sitio: Mérida, Yucatán. Año: 2024

La remodelación de la fachada de esta casa ha sido un proyecto que armoniza tradición y modernidad, preservando el icónico estilo chukum que caracteriza a la región. El nuevo diseño se ha enriquecido con la incorporación de materiales locales, logrando una integración visual que celebra la esencia del entorno.

La puerta de entrada, fabricada en madera local, combina robustez y elegancia, invitando a los visitantes con un cálido recibimiento. El portón del garage, por su parte, ha sido diseñado con una estructura de herreria con madera, creando un equilibrio perfecto entre lo rústico y lo contemporáneo.

La losa del garage se utiliza como terraza proporcionando un espacio adicional para el disfrute al aire libre. La jardinera que bordea la terraza ha sido diseñada para mantener la naturalidad de la casa, utilizando plantas de la zona.

Colaboración con: Arq. Karla Sosa Miám

41

REMODELACIÓN

42

ARUBA LOFTS

Proyecto: Departamentos

Sitio: Chuburná puerto.

Año: 2024

El proyecto de esta torre de tres niveles, albergando 4 departamentos y una terraza compartida en el rooftop, ubicada a solo un par de cuadras de la playa de Chuburná, se ha proyectado como un oasis de tranquilidad y conexión con la naturaleza. Utilizando materiales cálidos y naturales, cada elemento de la construcción invita a una experiencia de estancia relajante.

El concepto de diseño sigue la fluidez y forma del agua, manifestándose en los volúmenes orgánicos de la estructura. Las líneas curvas evocan la serenidad del mar, integrándose armoniosamente con el entorno costero.

Colaboración con: Arq. Karla Sosa Miám

43
N 0.90 2.20 2.20 1.00 1.00 2.20 2.20 0.90 0.90 2.20 2.20 0.90 2.20 0.90 SUBE SALA NPT 0.30 NPT 0.30 RECÁMARA TERRAZA NPT 0.30 COCINA NPT 0.30 COMEDOR NPT 0.30 NPT 0.30 RECÁMARA BAÑO NPT 0.30 NPT 0.30 RECÁMARA BAÑO NPT 0.30 COCINA-COMEDOR NPT 0.30 SALA NPT 0.30 TERRAZA NPT 0.30 G G B B F F I I L L D D M M A A N N 2 2 4 4 6 6 7 7 9 9 10 10 11 11 13 13 14 14 15 15 16 16 1 1 17 17 2.01m 2.6m 1.05m 0.8m 2.52m 1.65m 3.65m 2.78m 1.3m 2.95m 0.75m 5.95m 5m 6.43m 4.17m 4.44m 2.01m 5.95m 3.16m 0.8m 2.52m 1.65m 3.65m 2.78m 1.3m 2.95m 0.75m 4.83m 2.6m 1.05m 3.64m 3.31m 1.65m 3.65m 4.08m 3.7m 3.16m 4.83m 28.03m 28m 1.39m 3.03m 0.86m 0.9m 1.3m 2.2m 2m 0.27m 4.42m 5.26m 2m 0.27m 11.95m 0.27m 2m 2.2m 1.3m 0.9m 0.86m 3.03m 1.39m 4.47m 2.2m 3.89m 1.39m 11.95m C C B-B' ARQ-04 B-B' ARQ-04 ARQ-04 1-1' ARQ-04 1-1' ARQ-04 2-2' ARQ-04 2-2' ARQ-04 3-3' ARQ-04 3-3' A-A' ARQ-04 A-A' ARQ-04 Planta baja 44

Cada departamento está diseñado para maximizar vistas hacia el jardín central, creando un refugio Los materiales utilizados, como la madera y el chukum, autenticidad.

Este proyecto no solo ofrece un espacio habitable, sensorial que celebra la conexión con el entorno costero

45

maximizar la luz natural y las tranquilo y acogedor. chukum, aportan calidez y habitable, sino una experiencia costero y la naturaleza.

N 2.20 2.20 0.90 1.00 2.20 COCINA COMEDOR NPT 0.30 SALA RECÁMARA NPT 0.30 BAÑO NPT 0.30 BAÑO NPT 0.30 RECÁMARA NPT 0.30 RECÁMARA 3 VESTIDOR NPT 0.30 B B D D H H J J M M N N A A E E L L 2 2 3 3 5 5 8 8 7 7 9 9 10 10 11 11 12 12 15 15 16 16 1 A 17 17 13 13 2.01m C C 0.27m 2m 1.65m 1.7m 1.3m 0.61m 2.62m 0.41m 1.39m 3.92m 2.99m 3.64m 1.39m 11.95m 2.01m 1.45m 1.6m 1.39m 0.76m 1.76m 1.65m 3.65m 1.48m 1.3m 4.25m 0.75m 5.95m 2.01m 4.44m 10.6m 5m 5.95m 28m 3.16m 1.45m 1.6m 1.39m 0.76m 1.76m 1.65m 3.65m 1.48m 1.3m 4.25m 0.75m 4.83m 4.61m 3.75m 3.41m 3.65m 7.03m 5.58m 28.03m 1.39m 0.41m 2.62m 0.61m 1.3m 1.7m 1.65m 2m 0.27m 1.8m 2.62m 7.26m 0.27m 11.95m B-B' ARQ-04 B-B' ARQ-04 A-A' ARQ-04 A-A' ARQ-04 ARQ-04 1-1' ARQ-04 1-1' ARQ-04 2-2' ARQ-04 2-2' ARQ-04 3-3' ARQ-04 3-3' Planta primer nivel
N 0.90 2.20 SALA NPT 0.15 NPT 0.15 RECÁMARA COCINA COMEDOR NPT 0.15 BAÑO NPT 0.15 A A N N L L D D 15 15 14 14 11 11 10 10 9 9 K K 16 16 17 17 1 1 13 13 7 7 2 2 B B G G M M C C 4.47m 6.08m 1.39m 11.95m 3.16m 6.95m 1.65m 3.65m 4.08m 2.95m 0.75m 4.83m 28.03m 2.01m 4.44m 10.6m 5m 5.95m 28m 1.8m 2.62m 7.26m 0.27m 11.95m B-B' ARQ-04 B-B' ARQ-04 A-A' ARQ-04 A-A' ARQ-04 ARQ-04 1-1' ARQ-04 1-1' ARQ-04 2-2' ARQ-04 2-2' ARQ-04 3-3' ARQ-04 3-3' BAJA BAÑO NPT 0.15 ROOFTOP C. DE LAVADO NPT 0.15 Planta segundo nivel 46
ARIANA MORA GOMEZ

Turn static files into dynamic content formats.

Create a flipbook
Issuu converts static files into: digital portfolios, online yearbooks, online catalogs, digital photo albums and more. Sign up and create your flipbook.