ARCHITECTURE




+(506) 8608 4333
mariale23@estudiantec.cr
La Guácima, Alajuela, Costa Rica
EDUCATION
2007 - 2019
2020 - Present 2022
Primary and Secundary Education (Colegio La Salle)
5th year in an Architecture and Urbanism Degree (Tecnológico de Costa Rica)
Specialization in REVITBIM (Véritas - LCI Education Network / https://www. credential.net/e0b5c65d-60ce4d21-94e5-40754d0ae58d#gs. bwwoxi )
ABOUT MYSELF
I´m a 21-year-old student and I´m on my fifth year of Architecture and Urbanism in the “Instituto Tecnológico de Costa Rica” (TEC).
I would describe myself as a very organized, dedicated, communicative, patient and responsible person. I go after the things that I want to achieve and try to always find ways to make them happen.
EXPERIENCE
2020
SKILLS
Revit
Autocad
Adobe Photoshop
Adobe Illustrator
Adobe InDesign
Enscape
Microsoft Office
LANGUAGES
Spanish Native
English Advanced
2022 - Present 2024
Assistant in the project “La construcción social del Centro Histórico de la ciudad de Liberia como insumo para su gestión sostenible”
Member of “Movimiento de Encuentros de Promoción Juvenil”
CISV Volunteer (Leader to a Village in Texas)
INTERESTS
After my years as a student, I have had the opportunity to explore and get acquainted with lots of different fields inside the architectural world. After experimenting with some of them, they are the ones that I would consider that I’m most interested in. A few of them being architectural design, architectural drawing, 3D modeling, interior design, urban design, sustainable design and tropical design.
REFERENCES
MArq. Danilo Valerio Alfaro dvalerio@itcr.ac.cr
MArq. Enmanuel Salazar Ceciliano ensalazar@itcr.ac.cr
01.
COLUMBARIUM
A way to remmember
02.
JACARANDA TOWER
A way to remmember
03. A way to remmember
CEAC - Contemporary Art Teaching Center

In
collaboration with:
María José Rojas
Laboratory of Architecture IV - 2021
COLUMBARIUM
The project was based on an initiative by the Riga´s City Hall (Latvia) to design a columbarium in the Riga Forest Cemetery. It started with the idea of the living and the dead coexisting in a culturally rich environment. From there, the idea of implementing the “dainas” was born. They are defined as songs or poetry very near to Latvia´s culture and with the years they have become a symbol of unity and strength to the nation. They are sung in happiness and sadness life and death; it embraces the living and refugees the dead. The curves in the project imitate the vibrations created by the dainas when they are
sung.
According to pagan traditions, humans come from the earth and return to the earth: the cycle of life. To represent this cycle, the project consist of a path meant to represent all the trials the dead had to go thru and how the living go thru them also, but thanks to memories.







In collaboration with: (other towers)
Carlos Pérez
María José Rojas
Andreína Yumar
Laboratory of Architecture VI - 2023
JACARANDA TOWER
APARTMENT COMPLEX


Located in Hatillo 2, one of the most populated zones in Costa Rica, the project was born of the idea to give an answer to the growing demand for housing to the middle and low class. In general, the towers with their combined zones create a “green hallway” in between the towers, so that locals and visitors can enjoy more of nature in the middle of the city.
The lower floor is used for different stores and amenities. That’s because the project means to give back to the community, allowing people from all places to come shop, enjoy the different stores, amenities and the green areas. ww
That same concept also applies in the heights: nature combined with the built world. Nature not only works on a superficial level, but also to help fight the bioclimatic conditions of the region.










In collaboration with: Carlos Pérez Laboratory of Architecture VII - 2024
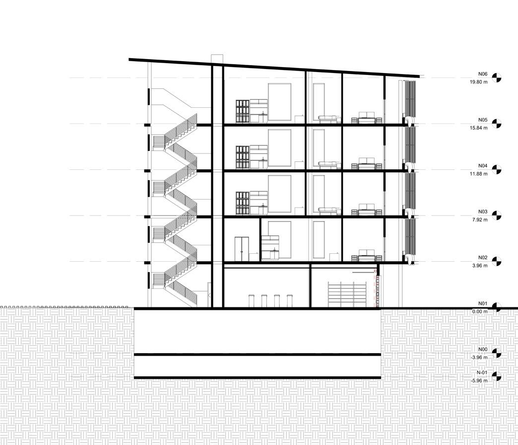
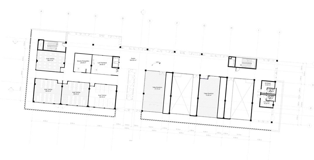
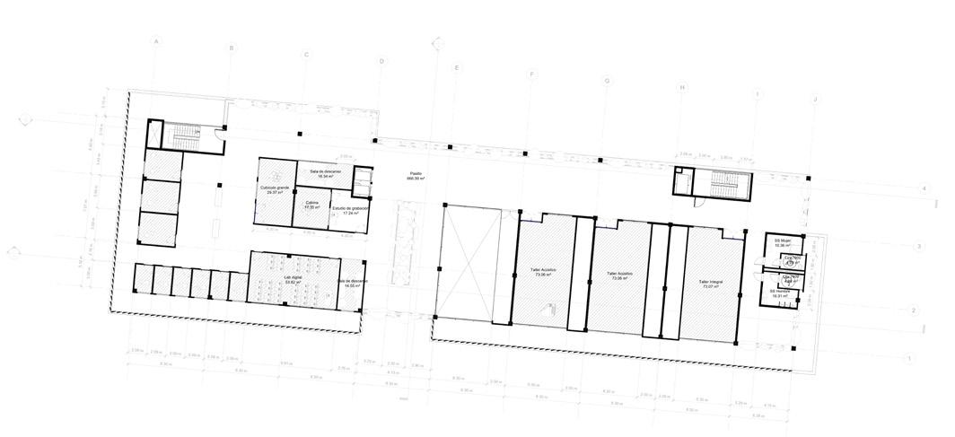
CEACContemporary Art Teaching Center
The “Centro de Enseñanza de Arte Contemporáneo” (CEAC) is located in San José, Hospital District. The zone has been abandoned for some years, left to only a few to utilize, with very little cultural and economical activities. That’s why the idea to make an art school in this specific area was born.
The intention behind it is to give back to the community via the teaching of the arts (music, plastic arts, digital art, scenic arts…) to people from all ages and backgrounds.
Also, the project includes different spaces that allow artists to expose their art, like two auditoriums, an art
gallery and a cloister for outdoor performing. Because of this reason, the project is not only a hook for educational reasons, but also attracts other users for the appreciation of different types of art.
The location of the two buildings makes a type of long courtyard that’s meant
to be used by everyone: students, artists and local people alike. Its another way the project gives a space back to the community.








