

DOLCE apartamentos


DOLCE ARMONIA
Descubre un lugar de Dolce Armonia donde se fusiona perfectamente la vida pública y privada, ofreciendo espacios vibrantes para socializar y rincones tranquilos para la intimidad, además de lujosos departamentos que habitar.






EcuadorPichincha























AMENITIES PRIVADOS











Zona BBQ, gimnasio, Sala de masajes, miradores, zona descanso.








DEPARTAMENTOS










6 tipologías de departamentos para 1, 2 y 3 personas















DEPARTAMENTOS









6 tipologías de departamentos para 1, 2 personas




















AMENITIES SEMIPÚBLICOS
















Coworking, salas de conferencias, cuarto de juegos, restaurante, zonas al aire libre, baños públicos.
















COMERCIO
Galeria al aire libre, mercado comunitario, baños públicos, pet spa.








GARAJE





20 Espacios de estacionamiento por planta y 30 bodegas en total






DOLCE ARMONIA
Edificio de vivienda multifamiliar de 8 plantas con 2 subsuelos para parqueaderos, diversos amenities incluyendo gimnasio, zona BBQ, sala de masajes, etc.

PLANTA NV. -4.00 , -8.00
PLANTA NV. +8,+11,+14,+17
PLANTAS TIPO
- Planta baja
- Primera planta
- Planta tipo 1 / Departamentos
- Planta tipo 2 / Departamentos
- Planta de Amenities privados
- Planta subsuelo
























































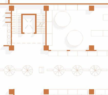
Contiene:
Supermercado (Gran
Recepción
Zona
Juegos infantiles
Zona de descanso
Contiene:
Supermercado (Gran Akí)
Recepción
Zona BBQ
Juegos infantiles
Zona de descanso

























Supermercado (Gran
Recepción
Zona BBQ


Juegos infantiles
Zona de descanso



Supermercado (Gran Akí)

Recepción
Juegos infantiles
Zona de descanso


AMENITIES
-Zona BBQ
-Zonas Aire libre
-Sala de videojuegos
-Sala de coworking
- Restaurante - Cafeteria
-Sala de reuniones
-Gimnasio
-Zonas exteriores
- Mercado comunitario
- Pet Spa
- Galeria al aire libre
-Área verde


ZONA BBQ - ZONA AIRE LIBRE

SALA DE VIDEOJUEGOS





SALA DE COWORKING

RESTAURANTE - CAFETERIA





GIMNASIO

SALA DE REUNIONES




DEPARTAMENTOS TIPO
- Departamento tipo A
A= 70 m2
- Departamento tipo B
A= 90 m2
- Departamento tipo C
A= 50 m2
-Departamento tipo D
A= 70 m2
-Departamento tipo E
A=50
-Departamento tipo F
A= 90 m2
Departamento Tipo A






Departamento Tipo B













Departamento Tipo C
A: 74,25 m2
1. Cocina
2. Comedor 3. Sala 4. Estudio 5. Baño completo 6. Lavandería $100.000 7. Bodega 8. Dormitorio




















Dolce Armonia
“Vive la Dolce Armonia: Experimenta el lujo y la comodidad en nuestros exclusivos departamentos, con amenities que inspiran la vida en comunidad”
ANEXOS
- Planta baja
- Primera planta
- Planta tipo 1 / Departamentos
- Planta tipo 2 / Departamentos
- Planta de Amenities privados
- Planta subsuelo
DOLCE CONSTRUCTORA



