PORTAFOLIO DE ARQUITECTURA
MARÍA JOSÉ AUX TRUJILLO 2021-2024

![]()

/Parte 01/
INTRODUCCIÓN
1.1 Presentación personal
/Parte 02/
PROYECTO 1
2.1 Localización
2.2 Planta pública y renders
2.3 Planta 1 y estructura
2.4 Plantas y cortes
/Parte 03/
RENDERIZACIÓN
3.1 Coworking planta 01
3.2 Coworking planta 02
3.3 Coworking planta 03 y 04
/Parte 04/
PROYECTO 2
4.1 Localización y contexto
4.2 Planta pública, programa
4.3 Planta 02, sistema funcional
4.4 Cortes, renders interiores
4.5 Corte general, bioclimática
4.6 Detalles constructivos
/Parte 05/
PROYECTO 3
5.1 Localización, intención
5.2 Planta urbana
5.3 Planta general
5.4 Cortes
/Parte 06/
PROYECTO 4
6.1 Localización, volumetría
6.2 Planta pública, sótanos
6.3 Planta 02, cubiertas
6.4 Cortes
6.5 Detalles constructivos
/Parte 07/
7.1 Descripción
7.2 Collage en Photoshop
7.3 Composición tridimensional
7.4 Atmósfera en illustrator
7.5 Gráfico en illustrator
7.6 Teoría del color
7.7 Celosía y Baldosa
7.8 Dibujo análogo
8.8 Dibujo digital
Soy estudiante de arquitectura de la Pontificia Universidad Javeriana Cali, en búsqueda de prácticas. Enfoqué mi carrera universitaria en bioclimática y mi opción complementaria es diseño de la comunicación visual, es por eso que destaco en expresión digital; dibujo y expresión de planimetría, creación de gráficos que demuestren la esencia del proyecto arquitectónico, su funcionalidad y especificaciones. Soy capaz de generar renders exteriores e interiores que demuestren la espacialidad y la experiencia de los proyectos. Además, estoy en capacidad de expresar detalles constructivos y considerar elementos estructurales cuando diseño. En mi contexto universitario logré reconocimiento de tres proyectos adjuntos en este portafolio, durante un tiempo fui lider del grupo estudiantil de mi carrera. Poseo alta capacidad emprendedora, destaca mucho mi creatividad, mi identidad visual y mi capacidad para afrontar retos con autocontrol, trabajo en equipo y puedo aprender rápidamente
2008 - 2020 Bachiller - Colegio San Francisco Javier Pasto
2020 - 2021 Academia Cambridge Pasto -Curso inglés completo - Francés Avanzado
2021 - Actualidad Pregrado Carrera de arquitectura - Pontificia Universidad Javeriana Cali

Español nativo
Inglés C1 Francés B2
Contacto:
mariajoauxt@javerianacali.edu.co +57 3045515382

Proyecto de séptimo semestre, se ubica en la plaza San Francisco en el centro cultural y administrativo de la ciudad, en sus bordes cuenta con un edifcio gubernamental y otro de caracter religioso. el propósito es generar un museo de ciencia, tecnología y ambiente bajo ella. Es un reto considerando que la plaza y sus alrededores son patrimoniales y el edificio esta totalmente enterrado, no tiene fachadas y debe ventilar de formas alternativas y tener una estructura bien definida.











El proyecto trata por separado la estructura del parqueadero y del museo, el lado del parqueadero debe funcionar como un cajón, sin columnas en medio para que pueda contener el sistema de parqueo automático, que a su vez cuenta como una estructura diferente

Para poder diferenciar entre ellos se genera una junta constructiva en medio
Losa de Cubierta y piso zona de parqueo
Pantallas laterales en concreto
El proyecto cuenta con muros de contención de .5 m de grosor en todo su perímetro y esta cimentado de manera profunda mediante pilotes



Losa de cubierta zona de parqueo
Pantallas laterales en concreto reforzado
Losa de piso zona de parqueo
-32.4
Cimentación profunda por pilotes
Losa Plaza
Losa Planta -1
Proyecto - Museo enterrado en Cali
El lado del museo funciona con un sistema estructural común de aporticado, las columnas se ordenan de modo que permiten su espacialidad marcada por la diagonal
Se deja el vacío para la gradería del teatro la cual se trabaja en estructura metálica con platinas para fijación de anclajes
Se deja la fosa para los ascensores y escaleras de emergencia y se mantienen los vacíos correspondientes a las torres de viento.










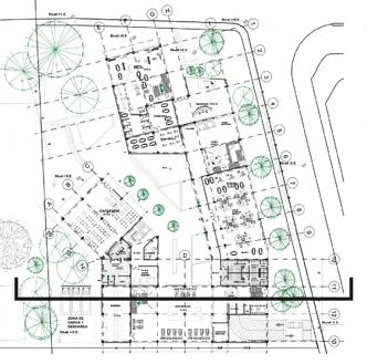
Después de finalizar mi quinto semestre, recibí un encargo de un cliente especializado en diseño de interiores en Medellín para desarrollar un proyecto de oficinas, se trataba de un edificio con estructura de acero y muros de ladrillo que debia adaptarse para dicho fin. Mi labor incluyó la modelación completa en 3D del edificio y la distribución los muebles y elementos en cada nivel de acuerdo con las especificaciones del cliente. Realizado con sketchup y Vray.





























se identificó que la topografía favorece la ubicación de tanques y elementos de almacenamiento en la franja montañosa de la ciudad.

La elección de este lote busca que el proyecto arquitectónico aborde de manera efectiva las necesidades de la comunidad, aprovechando la topografía y conectándose con las infraestructuras de servicios existentes para mejorar el acceso a equipamientos en la zona.


En dos de sus bordes, el lote cuenta con vías locales poco transitadas, mientras que por el frente se encuentra la Avenida Circunvalar, la cual maneja un mayor flujo vehicular y peatonal, esta le conecta con la calle 5, un eje vial importante en la ciudad. Mientras que, en su límite en el norte, existen unas escaleras peatonales que van hasta la parte superior del lote y permiten el acceso a residencias.






































FACHADA AULAS PEQUEÑAS
FACHADA PATIOS TRASEROS
FACHADA PATIOS INTERNOS









Este proyecto, realizado en tres días a nivel de esquema básico, consiste en una actividad académica de la universidad en la que se busca fortalecer el trabajo en equipo, estableciendo equipos con personas de distintos semestres. Trabajo en colaboración con Sebastian Rengifo Izquierdo, Maria Paulina Escobar Campo y Sara Yuliana Franco.
Ganador del tercer puesto de la facultad.


El proyecto busca la revitalización de la Laguna por medio de un sistema de tratamiento y oxigenación de agua en pro de las ods.





1. Laboratorio de calidad de agua 2. tratamiento de aguas residuales 3. Laboratorio de investigacion de recursos hidricos
sala de reuniones
Coworking
Biblioteca hidrica










El proyecto propone un sistema de recirculación aprovechando el flujo natural del agua. Un circuito de piscinas rodea el edificio central, actuando como filtros naturales. Estas piscinas, dispuestas a diferentes alturas, permiten un flujo gradual del agua para su filtración y purificación. Cada piscina cuenta con sistemas de filtración de grava, para al final desenvocar de nuevo al humedal el agua oxigenada.


El proyecto se desarrolla a partir de un modulo de 8x8 de base el cual soporta una cubierta a cuatro aguas invertida para controlar las aguas lluvias por medio de jardines los cuales funcionan como SUDS. Al repetir esta modulacion se conforma la totalidad del proyecto; asi mismo, esto permite que el modulo se acople a las necesidades del lugar, lo cual es beneficioso para utlizarno en diferentes areaas y puntos estrategicos de la laguna para asi recuperar el humedal en su totalidad (proyecto a largo plazo) el cual se convierte en un recorrido educativo del cuidado del agua




Se busca crear una conexión urbana, haciendo que el proyecto parta de la esquina superior, en la cual el peatón puede entrar a un espacio público de estimulación compuesto de espejos de agua, vegetación y mobiliario urbano para despúes poder recorrer el centro de investigación y conectarse con la zona de miradores y el espacio deportivo. La idea original es generar un recorrido por todo el borde de la laguna pero al tratarse de un esquema básico con tiempo limitado se desarrolló esta zona.




01- LONGITUDINAL

PERSPECTIVAS A MANO

CORTE 02- TRANSVERSAL




El lote ya cuenta con una masa
árborea considerable de chiminagnos la cual busca respetarse con la volumetría

Proyecto de octavo semestre, se propone una fábrica de producción de ropa sostenible en la glorieta donde comienza la subida a Siloé, Cali, con una visión integral de impacto social y ambiental. El público objetivo es juvenil, tanto femenino, como masculino. El programa incluye una zona de hilado y tejido para producir hilos de celulosa y fabricar diversos tipos de telas.
Además, contará con espacios para diseño y confección, bordado, estampado y un taller de moda. Para conectar con la comunidad, habrá una tienda abierta al público, donde se venderán las prendas producidas. La propuesta también contempla un patio central. La fábrica busca ofrecer trabajo a personas en situación de necesidad de la zona de Siloé.
Punto urbano importante, a partir de este punto la topografía se vuelve pronunciada.
ASILOE, ubicada frente al proyecto, representa un nodo importante de comercio,

Eje vial que conecta varios puntos importantes de la ciudad. En ella se encuentran varias estaciones del MIO

Centro comercial
Mallplaza, sitio importante para el comercio, altamente transitado.









Protección solar en tela.



Gráfico de Givoni
AGOSTO
temperatura mínima 19 C° con humedad relativa máxima 95% temperatura máxima 29 C° con humedad relativa mínima 64%
OCTUBRE
temperatura mínima 19 C° con humedad relativa máxima 98% temperatura máxima 28 C° con humedad relativa mínima 65%

Del análisis del gráfico se concluye que el edificio debe tener principalemente refrigeración por ventilación natural o mecánica

Ventilación cruzada
sostenible - Cali














Complementé mis estudios de pregrado en Arquitectura con una opción en Diseño de la Comunicación Visual, lo que me permitió profundizar en áreas clave del diseño gráfico. Durante los semestres que cursé, tomé diversas electivas que abarcaron conceptos fundamentales como la teoría del color, la armonía visual, la diagramación efectiva y la expresión gráfica. Además, adquirí habilidades en ilustración, lo que me proporcionó una sólida comprensión de cómo comunicar visualmente de manera clara y atractiva. En esta sección, presento una selección de trabajos destacados que reflejan mi desarrollo en estos ámbitos y demuestran mi manejo de los software de diseño.
Adicionalmente, soy ilustradora y artista autodidacta tanto de manera análoga como digital. Disfruto crear como hobbie. Mis habilidades me permiten dibujar y pintar con atención a los detalles: como componer escenas visuales con armonía y balance estético, pintando en photoshop. Tambien siento profunda pasión por los métodos tradicionales y sus diversas técnicas, desde el dibujo a lápiz, el óleo la acuarela. Reflejando mi profundo amor y compromiso por el arte en sus diversas expresiones.





















Introducción al diseño de la comunicación visual
Pasto - Carnaval de Negros y Blancos


Afiche carnaval de negros y blancos de Pasto 2024