Portfolio

Page 1

PORTFOLIO MARIA HEYERDAHL

Utdanning

2019 - d.d: Påbegynt master i arkitektur ved

NTNU i Trondheim (Foreløpig snitt: 4.56 = A)

2018-19: Årsstudium i Fransk ved Høgskolen i Østfold (Snitt: 4.50 = A)

2018: Fullført generell studiekompetanse ved Oslo

Katedralskole (Snitt: 6.34)

Arbeid

August 2023 - d.d: Praktikantskap hos MAD

Arkitekter Oslo

12.06 - 07.07: Praksis hos Tømrermester

Kjetil Eriksen AS

27.06 - 15.07 2022: Internship hos

Sauerbruch Hutton i Berlin

Oppmålingsarbeider for Dahl & Myrhol

Arkitekter sommeren 2022 og 2021

Kompetanse og kvalifikasjoner

Archicad, Rhino og Autocad. Fullført Graphisoft kurs i ArchiCAD og 3-dagers kurs ved Ole Grødem hos MAD Arkitekter.

Illustrator, Photoshop, Indesign og Twin Motion

Engelsk, Fransk og Tysk flytende. Tysk er morsmål. DELF nivå B2 i fransk.

Engasjement

Aktiv i Studio Beta, et kunst-, design- og arkitekturengasjement, fom. høsten 2022.

Aktiv i Arkitekthjelpen, en linjeforening som arbeider med oppdrag for privatpersoner, høst 2022 - vår 2023

Ballettinstruktør for NTNUI Dans høst 2022vår 2023

Referanser:

Åshild Wangensteen Bjørgvik, arkitekt, partner og daglig leder for MAD Oslo.

+47 477 52 577 | awb@mad.no

Trond Eide, førsteamanuensis ved NTNU, Institutt for arkitektur og teknologi.

+47 90148420

trond.eide@ntnu.no

2
3

Havnerommet

Et område som i dag består av midlertidige lagerhaller og skrapmetalldeponi transformeres til en havneromspark hvor offentlige programmer oppløses og får ta del av det store byrommet.

Bærekraft og varighet står sentralt - gjennom bruk av gjenbrukte takstoler fra Dora, bærekraftig ressursbruk og design for demontering.

Lette og langstrakte paviljongstrukturer er arkitekturen som får lov til å definere diversiteten av intime, aktive og blågrønne byrom.

modellfoto M 1:200 4 Havnerommet | Komplekse bygg | 6. semester

Det offentlige byrommet står sentralt i prosjektet hvor en i Kullkranparken står i knutepunktet mellom byen, Nyhavna og østbyens boligmaskiner.

Prosjektet består av to aktiviserende program: aktivitetshus og folkebad. Aktivitetshuset er et sted for uformell fysisk aktivitet og sosiale møterbåde i grupper og alene. Folkebadet består av et flytende, oppvarmet bad og et friluftsbad, supplert av en paviljong i parken.

5 0 m 15 m 30 m
piren folkebad bibliotek
bibliotekshagen kullkranstupet kobbes gate
lounge kullkranbroa havnepromenade Havnerommet | Komplekse bygg | 6. semester havneromplan
aktivitetshus
(naboprosjekt)
kaffetorget aktivitetsflater
Fosenalpene
0 m 10 m 20 m
Ladehammeren
Situasjonssnitt Kobbes gate 6 Havnerommet | Komplekse bygg | 6. semester
Byen møter vannet Programmet møter stedet Volumer oppløses Nyhavnas identitet og historie viderefø-
0 m 7,5 m 15 m 1. etasjeplan folkebad og aktivitetshus aktivitetshus +1.1 piren +4.1 folkebadplatting +0.7 adkomstlounge/kafè +3.2 +4.1 +1.7 +1.0 overbygd aktivitetsflater +4.1 hc-parkering kobbes gate +4.0 vannkunst sykkelparkering +4.1 bibliotekshagen +4.1 bibliotek adkomst restaurant 7 Havnerommet | Komplekse bygg | 6. semester
0 m 5 m 10 m inngangsplan aktivitetshus
1 adkomstlounge og kafé 2 kafekjøkken 3 kontor 4 møterom/personalrom 5 mesanin
2 1 3 4 5 6 8 Havnerommet | Komplekse bygg | 6. semester
6 utvendige aktivitetsinnstallasjoner
0 m 5 m 10 m underetasjeplan aktivitetshus
1 aktivitetsflater, 540 kvm 2 garderober 3 dusj og omkledning 4 lager og innstallasjoner
5 3 4 2 1 Havnerommet | Komplekse bygg | 6. semester 9
5 teknisk og søppelrom
tverrsnitt aktivitetshus 0 m 5 m 10 m +4.1 +1.1 -1.7 +1.7 +12.1 Havnerommet | Komplekse bygg | 6. semester 10
lengdesnitt aktivitetshus 0 m 5 m 10 m +4.1 +1.1 +12.1 Havnerommet | Komplekse bygg | 6. semester 11

1 påstøp, trykkfast isolasjon, vanntett betongsåle (dimensjonert for oppdrift), trykkfast isolasjon drenerende masser, fiberduk

2 vanntett betongvegg, trykkfast isolasjon, grunnmursplate

3 svevepeler

4 ventilasjonskanal (fortrengningsventilasjon)

5 ombrukte betongdragere fra Dora

6 massivtre (taktro), trykkfast isolasjon, membran, isolasjon, drenerende masser, vekstlag

7 luftet gesims,

8 nedløp (føres på varm side i bærende hulromssøyler)

9 cortenplater, bæring for parapet

10 drenerende tilbakefylling

11 regnbed/vekstlag

detaljsnitt aktivitetshus 0 m 1 m 2 m
1 2 3 4 5 6 7 +4.0 +3.0 +2.0 +1.0 NN 2000 +8.0 +7.0 +6.0 +5.0 +12.0 +11.0 +10.0 +9.0 8 10 11
9 12 Havnerommet | Komplekse bygg | 6. semester
13 fasade mot Kobbes gate aktivitetshus 0 m 5 m 10 m Havnerommet | Komplekse bygg | 6. semester
Havnerommet | Komplekse bygg | 6. semester render eksteriør aktivitetshus 14
render interiør aktivitetshus 15 Havnerommet | Komplekse bygg | 6. semester
plan folkebad 0 5 10 m m m 1
2
3
4
5
6
7
8
9
10
11
12
13
14
15
2 1 3 4 5 6 7 8 9 10 10 10 11 12 13 14 15 16 Havnerommet | Komplekse bygg | 6. semester
resepsjonsluke
personalrom
hc- og flexgarderobe
teknisk rom
herregarderobe
damegarderobe
sansesone (ulike steamdusjer og kulper)
oppvarmet bad
tepidarium
badstuer
boblebad
badeplatting
sjøvannskulp
løftebord (følger flo og fjære)
landgangtrapp
tverrsnitt folkebad 0 5 10 m m m 17 Havnerommet | Komplekse bygg | 6. semester
lengdesnitt folkebad 0 5 10 m m m 18 Havnerommet | Komplekse bygg | 6. semester

1 flyteelementer i betong

2 oppforet innstalasjonsgulv for tekniske føringer

3 keramiske fliser, påstrykningsmembran, påstøp med fall mot slukrenne, spongulv, tilfarergulv (granab el.)

4 terrassegulv, oppforet bjelkelag, påstøp med fall utover membran

5 prefabrikert kar keramiske fliser, påstrykningsmembran, EPS isolasjon

6 tilluftskanaler føres innstallasjonsgulv, og ventileres ut høyt på vegg (omvendt fortrengning)

7 avtrekkskanaler

8 drenering av avtrekksrenne

9 vekstlag sedum, drenering og vannlagring, takmebran, trykkfast isolasjon, massivtredekke

10 falset båndtekking, undertak, taktro, løse utstikk av limtre(ikke gjennomgående konstruksjon)

11 mellombord, sløyfer, vindsperreplate, trefiberisolasjon, dampbrems, bærebjelker

12 bjelkeende (løse utstikk) brutt klimaskall med hensyn til kuldebro

Konstruksjonen i folkebadet er inspirert av pragmatismen vi finner i tidligere stavlinekonstruksjoner med demonterbare søyle-bjelkesystemer i tre med bladforbindelser. Prinsippene er på den andre siden modifisert for blant annet å unngå kuldebroer og følgende kondensproblematikk ved gjennomgående konstruksjoner. Bjelkesystemet danner på den andre siden et ribbedekke i statisk samvirke med massivtredekket i takkonstruksjonen som bidrar tektonisk til interiøret i folkebadets storstue, mens bjelkeendene i takutstikket foreslås som løse utstikk.

Konstruksjon er bygget på flyteelementer av betong. Flytedekket har også en utskutt del som både gir økt badeplattingsareal, men også som stabiliserende element for den ellers smale og avlange formen på folkebadet. Gulvnivået bygges opp innvendig med innstallasjonsgulv for tekniske føringer, og utvendig enkelt trebjelkelag. Dette gir mulighet til kontinuerlige flyteelementer under de større bassengene som krever en viss vanndybde, samtidig som takkonstruksjonen kan holdes slank ved at kanaler føres i gulv. Ventilasjonen i folkebadet foreslås som omvendt fortrengning, hvor tilluft ventileres ut høyt på innstallasjonsvegger, og avtrekket håndteres ved avtrekk i gulv.

detaljsnitt folkebad
0 50 100 cm cm cm 1 2 3 4 5 8 7 6 9 10 11 12 19 Havnerommet | Komplekse bygg | 6. semester
render eksteriør folkebad Havnerommet | Komplekse bygg | 6. semester 20
render interiør folkebad Havnerommet | Komplekse bygg | 6. semester 21
plan og utomhus paviljong 0 9 18 m m m kaffebar grillplass uteservering toaletter utedusjer treplatting kullkranstupet beplantning aktivitetsflater (annen belegning) beplantning gresspark beplantning sesongbasert servering tidevannssone kaffetorget garderober +4.1 +4.1 +4.1 +3.2 +5.5 +2.6 +1.3 +0.6 +3.5 +4.7 Havnerommet | Komplekse bygg | 6. semester 22
tverrsnitt paviljong og tidevannssone 0 9 18 m m m +1.7 +4.1 +7.7 +2.0 Havnerommet | Komplekse bygg | 6. semester 23

konstruksjon paviljong

“Design for demontering” er en strategi som diskuteres og benyttes på veien mot mer omtanke for fremtidens byggeri. Dette er ikke nye prinsipper i tradisjonen vi har med trekonstruksjoner i Norge. Stavkonstruksjoner er et eksempel på konstruksjoner som utnytter oppbyggingen både konstruktivt, men også som estetisk element - og ikke minst er den sammensatt for å kunne demonteres til fullverdig ombrukbare komponenter.

Paviljongen i prosjektet foreslås konstruert med et søylebjelkesystem inspirert av stavlinekonstruksjoner. Paviljongen utgjør en lang og slank form, og stabilitetsutfordringer løses derfor ved bruk av massivtreskiver i tak- og veggkonstruksjoner. Hvor skivekjerner plasseres skal i fremtiden enkelt kunne justeres for å tilpasse seg eventuelle endringer i bruk.

Havnerommet | Komplekse bygg | 6. semester konstruksjonsprinsipp 24
render paviljong og grillplass Havnerommet | Komplekse bygg | 6. semester 25

møter med vann

Prosjektet etablerer et nytt havnerom. Med det menes det at havnebassenget skal fungere som et byrom i seg selv mellom program, bygning og parkrom. I den sammenheng gir ulike tilnærminger og møter med vannet mulighet for en diversitet i topografi, sosiale møter og artsmangfold. Det eksisterende terrenget møter ulike former for bevaring og manipulering i prosjektet for nettopp å underbygge disse.

Det er fire ulike kategoriske måter prosjektet enten treffer eller forholder seg til vannet på. Disse kategoriene er der for å kunne legge til rette for en begrenset masseforflytning og ombruk av eksisterende kaikanter, samtidig som resultatet av prosjektet skal fungere for brukere på tvers av livsorientering, alder og funksjonsnedsettelser. Vi står også ovenfor en endring i vær og klima, som krever robuste og tilpasningsdyktige møter med havet. Av den grunn videreføres kotestrategier fra tidligere utredninger for Nyhavna, og et inngangsnivå på +4.1 meter over normalnull etableres.

Kanten er bevaringskategorien. Her benyttes eksisterende havnekant med kun mindre manipulasjoner og adderinger. Kullkrandekket er et eksempel hvor betongkaien bevares, og benyttes som fundament for en ny treplatting. Natursteinsfyllingen mot nord er et annet eksempel som kun opplever mindre terrengendringer.

Tidevannssonen skal bidra til mer intime sosiale interaksjoner ved mindre plassdannelser. Samtidig skal det være et sted hvor en rekke arter kan få lov til etablere seg naturlig, og at det kan oppleves gjennom taktilitet. Tidevannssonen vil ha ulike former for grunnforhold og belegning for å underbygge nettopp den taktilske tilnærmingen.

Nedtrappinger benyttes hovedsakelig i aktive områder av havnerommet. Nedtrapping skal bidra til at distansen mellom land- og vannaktivitet blir sømløs, og fungerer på tvers av hverandre. Nedtrappingene gir også rom for sitteplasser, og alternative ruter for havnepromenaden.

Flytende konstruksjoner benyttes for aktivsere mellomrommene havnerommet byr på. Det er også en strategi for å beholde kontakten folkebadprogrammet ønsker til vannet, til tross for store variasjoner i flo og fjære. Flytende konstruksjoner er også svært endringsdyktige med hensyn til plassering og aktualitet i fremtiden.

Havnerommet | Komplekse bygg | 6. semester møter med vann 26
havneromillustrasjon Havnerommet | Komplekse bygg | 6. semester 27

Stallen barnehage

Et uthus av øksehogd tømmer fra 1890 i Levanger transformeres til fra lagerrom og sluse til eierens parkeringsplass, til en barnehage for åtte barn og to ansatte. Utgangspunktet har vært å bevare så mye som mulig, samtidig som den nye funksjonen og gamle karakteren av et uthus ivaretas, blant annet ved å la konstruksjonen forbli synlig.

Et avsagd sperrebind i 2.etg løses med en kombinert ny takkonstruksjon og trappeoppgang. Dermed legger konstruksjonen føringer for funksjonen, samtidig som de få endringene som gjøres er fullt reversible. Ved å sette opp to lettvegger kan bygget f.eks lett gjøres om til enebolig.

render storbarnsavdeling
28 Stallen barnehage | Transformasjon | 4. semester
situasjonsplan 0 5 10 m m m 29 Stallen barnehage | Transformasjon | 4. semester
Hagen Barnehage Tverrsnitt C-C Uthuset Håkon den Godes gate 1C Maria Heyerdahl 19.05.2022 C C 6530 mm 2330 mm 5655 mm 4800 mm 41200 mm 0 5 10 m m m 30 Hovedhus Delt bakgård Barnehagen 0 c c tverrsnitt gjennom bakgård og hage Stallen barnehage | Transformasjon | 4. semester
C C 6530
2330
5655 mm tverrsnitt 0 2 4 m m m Stallen barnehage | Transformasjon | 4. semester 31
mm
mm

eksisterende innervegger og åpninger markert i rødt

Over ys Over ys Sovearea Lekearea Grovgarderobe 8,3 m^2 F ngarderobe 4,3 m^2 K økken og felles spisebord Pe sonalrom Sovearea Lekearea Toalett personale 4,2 m^2 Toalett barn og stellerom 3,9 m^2 A A A A B Toalett barn 4 m^2 36 m^2 27 m^2 Over ys Over ys G ovgarderobe 8,3 m^2 F ngarderobe 4,3 m^2 Åpent ned Over ys Over ys og glassfelt ned Pe sonalrom 8,8 m^2 Sovearea Lekea ea Toalett personale 4,2 m^2 Toalett barn og stellerom 3,9 m^2 A A A A B m^2 36 m^2 27 m^2 B B 32 0 5 10 m m m plan 1. og 2.etg barnehage
A B A A Stallen barnehage | Transformasjon | 4. semester A
Ove ys Garderobe Kjøkken Stue Soverom Bad Stue Bad Over ys Garderobe Sove om Åpen ned Over ys Ove ys S ue Soverom Soverom Bad 33 0 5 10 m m m plan 1. og 2.etg enebolig Stallen barnehage | Transformasjon | 4. semester
34 fasader før og etter Stallen barnehage | Transformasjon | 4. semester

Ny tak- og trappekonstruksjon

Ettersom tidligere eier har sagd av det ene sperrebindet, vil taket trenge en ny takkonstruksjon. Løsningen min er å kombinere det med en trappekonstruksjon, hvilket uthuset mangler (kun en stige på utsiden).

Det settes inn to tømmerstolper som forbindes med en drager som holder dem sammen. De sikres av skråavstivere som er felt inn i tømmeret og boltet på plass med 12 mm bolter. Dermed vil lasten gå ned i stolpene heller enn ned i veggene. Trappen støtter seg på den ene stolpen og blir et møbel i seg selv. Under trappen får bare barna plass - en hemmelig hule som man kan krype inn i og titte opp til de store barna i overetasjen.

Barnehage Detalj ny takkonstruksjon, M 1:5 Uthuset Håkon den Godes gate 1C Maria Heyerdahl 19.05.2022
35 ny trappekonstruksjon Stallen barnehage | Transformasjon | 4. semester 150 mm
36 lengdesnitt før og etter 0 2 4 m m m Stallen barnehage | Transformasjon | 4. semester

Barnehage

Skjema labankdør før og etter innsetting av vindusglass, M 1:10 A2

Uthuset i Håkon den Godes gate 1C Maria Heyerdahl

detaljsnitt ny vindusinnsetting bak labankdør

37
Stallen barnehage | Transformasjon | 4. semester

Utvendig panel

Utlekting

12 mm vindsperre

5 cm isolasjon

10 cm isolasjon

Tømmer

Dampbrems

Innevndig panel

Fuktbestandig plate

5 cm isolasjon

Fundament armert betong

Drensrør

Trykkfast isolasjon

Barnehage

Detalj nytt fundament, M 1:5

Uthuset i Håkon den Godes gate 1C

Maria Heyerdahl

19.05.2022

38
detalj nytt fundament og heving av bygg Stallen barnehage | Transformasjon | 4. semester

Takstein

Lekter

Sløyfer

Takpapp

Undertak

Lekter

12 mm vindsperre

5 cm isolasjon og utlekting

10 cm isolasjon

Kondensbrems

5 cm isolasjon

Panel

Sperrebind

Barnehage

Detalj tak isolasjon, M 1:5 i A2

Uthuset i Håkon den Godes gate 1C

Maria Heyerdahl

Barnehage

19.05.2022

Detalj tak isolasjon, M 1:5 i A2

detalj innsetting av takvindu

Uthuset i Håkon den Godes gate 1C

Maria Heyerdahl

39
Stallen barnehage | Transformasjon | 4. semester
40 Stallen barnehage | Transformasjon | 4. semester render ny trappeoppgang
41 render småbarnsavdeling Stallen barnehage | Transformasjon | 4. semester

Parken Borettslag

Parken Borettslag er et boligprosjekt ved foten av Høgskoleparken i Trondheim. Den drivende idéen for prosjektet har vært å utnytte potensialet og mulighetene som ligger i de ulike plasseringene bortover og oppover i bygget - som skaper forskjellige leiligheter av ulik karakter, kvalitet og romlighet.

Prosjektet sikter på å skape gode romlige opplevelser, som oppnås med karnapper, mesaniner, gjennomlysning og siktlinjer.

42 Parken borettslag | Boliger | 3.semester modellfoto M 1:200
43
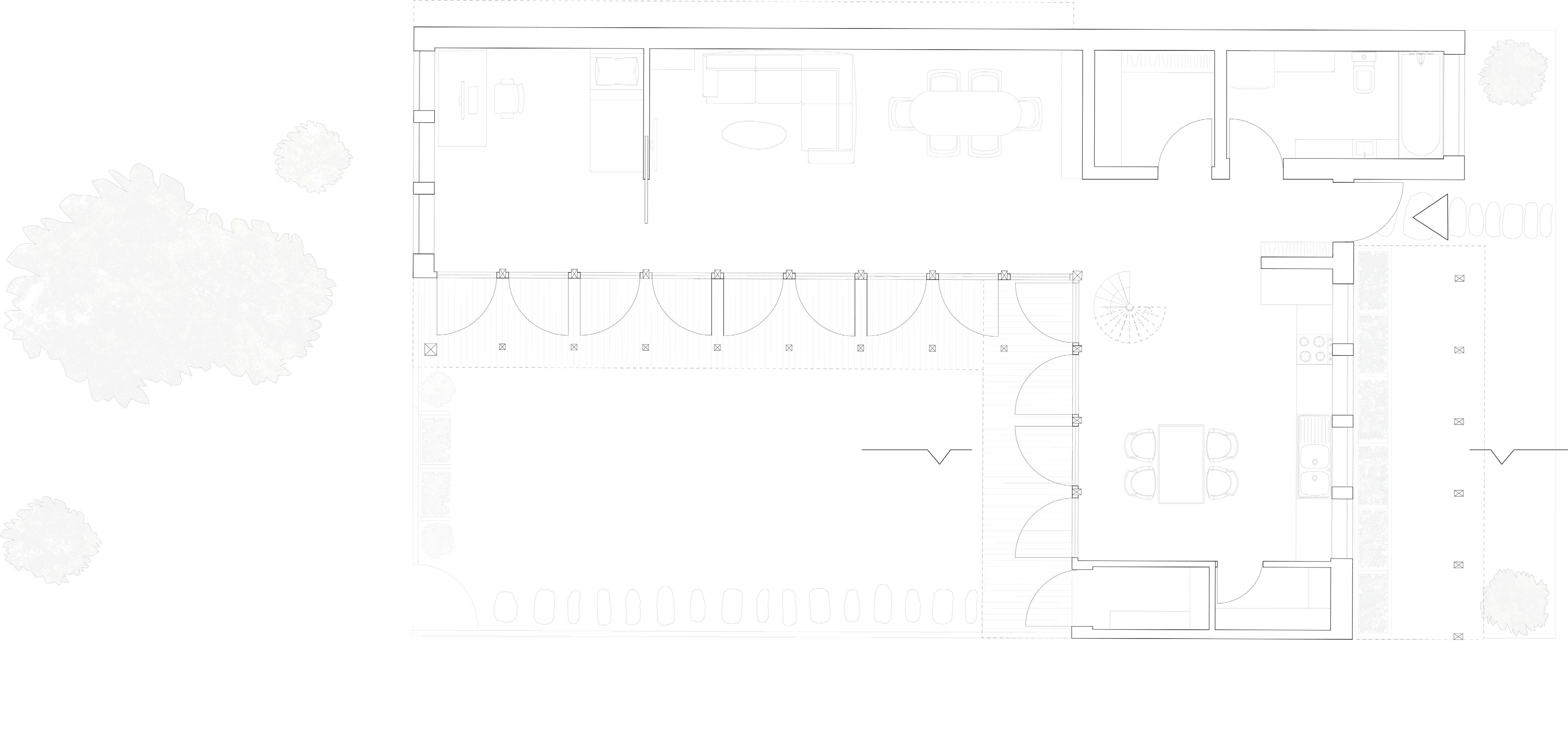
Boligkvartal Klæbuveien Høgskoleparken Døvekirken Private forhager for townhouse leiligheter Kafé- og kontorlokaler over to plan 21,3 moh
utomhus- og førsteetasjeplan (townhouse) Parken borettslag | Boliger | 3.semester
22,3 moh
44 2.etg townhouse og typisk etasjeplan Parken borettslag | Boliger | 3.semester 0 5 10m m m
45 lengdesnitt Parken borettslag | Boliger | 3.semester 0 5 10m m m
46 fasade sør Parken borettslag | Boliger | 3.semester 0 5 10m m m
NTNU Campus Gløshaugen
Klæbuveien oppriss nord Parken borettslag | Boliger | 3.semester
Høgskoleparken

Atriumshus

I dette prosjektet har jeg utforsket uttrykket i møtet mellom tungt og lett, åpent og lukket, lyst og mørkt. De ulike materialene spiller på lag med sine unike kvaliteter for å skape et dynamisk og rytmisk spill i fasaden. Store glassflater gjør stuen og hagen til forlengelser av hverandre. De koblede L-formene skaper lyse og luftige private atrium, som leder ut til en felles stor hage mellom to kjeder av rekkehus.

48 Atriumshus | Boliger | 3.semester tverrsnitt mot nord
49 plan 1.etg 0 2 4 m m m Atriumshus | Boliger | 3.semester
plan 2.etg 0 2 4 m m m Atriumshus | Boliger | 3.semester 50

Vinoteket

Prosjektet tar Louis Kahns berømte sitat om teglens ønsker på ordet. Teglen trives best i buede former, som skaper et lekent uttrykk. Den har også andre egenskaper som gjør den perfekt til lagring av vin. Vinoteket er en kombinasjon av vinlager og en slags paviljong for å nyte den.

Vinoteket | Tektonikk | 2.semester tverrsnitt mot nord
51

Vy og ly

Prosjektet er en hyllest til de fire elementer - ild, luft, jord og vann. Plassert helt ytterst i havgapet på Titran, legger bygget seg ned på bakken og tar del i landskapet. Respektfull mot naturen og inviterende til menneskene inn i varmen. Delt i to mellom en luftig utsiktspaviljong og en skjermet, varm, stue, skapes en enhet mellom de naturlige

Vy & Ly | Introduksjon til arkitektur | 1.semester lengdesnitt mot vest 52

Byggeprosjekt

53 Byggeprosjekt | Introduksjon til arkitektur | 1.semester modell M 1:10 og fullskala prosjekt

Ensjøveien

Tre historiske industribygg på Ensjø skal transformeres til et identitetsskapende torg og grøntdrag for nabolaget, med utadrettet næring på bakkeplan, og kontorplan i etasjene oppover. Et nybygg over to etasjer binder sammen de ulike bygningene med torget og en park på taket til Ensjøveien 22.

Som praktikant har jeg bidratt i design- og konseptutviklingen, tegnet forslag til påbygg, nybygg, plantegninger for transformasjon til kontorlokaler (Ensjøveien 18), og utforming av utomhusplanet.

54 Ensjøveien | MAD arkitekter render Ensjøveien

Hevet bakgård

Nybygg med takhage

Ensjøveien 16 - nybygg med kontorer Ensjøveien 18 - transformasjon av eksisterende industribygg til kontorlokaler

Ensjøveien 20 - eksisterende bygg

Ensjøveien 22 - eksisterende bygg

Landskap 137,3 m Gard/oppbevaring 13,1 m HC-WC 5,8 m WC 2,7 m Stille 5,0 m Vent. IKT/EL 6,7 m Gard/oppbevaring 14,1 m HC-WC 5,1 m Kjøkken 13,3 m Landskap 91,4 m Møterom 23,3 m HC-WC 5,4 m2 WC 2,6 m Vent. WC 2,8 m Møterom 19,6 m Sluse 14,7 m Kjøkken 13,4 m Multi 6,3 m Sosial sone 30,7 m Landskap 110,3 m Celle 10,4 m Celle 10,2 m Stille 6,3 m Print/lager 5,6 m Møterom 11,4 m Teamrom 22,1 m Multi 6,2 m Stille 5,8 m Møterom 15,7 m R-trapp 6,7 m Møterom 17,9 m Multi 6,8 m Multi 6,4 m Gard/oppbevaring 12,0 m Stille 6,4 m WC 2,7 m Landskap 195,8 m Landskap 140,3 m Print/lager 5,1 m Sosial Sone 27,2 m IKT/EL 5,2 m Kjøkken 19,8 m WC 2,1 m WC 2,1 m Forrom 13,4 m Gard 7,0 m Te-kjøkken 4,2 m WC 1,8 m Forrom 5,9 m IKT/EL 5,9 m BK Sluse 15,4 m Vent. HC-WC 5,1 m WC 2,5 m WC 2,4 m HC-WC 4,8 m Gard/oppbevaring 13,6 m Møterom 11,4 m HC-WC 5,8 m Stille 5,3 m Møterom 16,6 m Multi 5,3 m Multi 11,3 m Landskap 180,0 m Landskap 144,0 m WC 2,8 m WC 2,8 m HC-WC 5,5 m Forrom 11,5 m Gard/oppbevaring 17,2 m Sosial sone 21,8 m Kjøkken 14,9 m HC-WC 6,0 m Forrom 7,5 m WC 2,5 m HC-WC 6,0 m Forrom 7,0 m WC 2,5 m Sosial sone 25,9 m Kjøkken 17,0 m2 Print/lager 5,6 m Stille 5,8 m Møterom 16,6 m Print/lager 5,6 m Stille 5,8 m Møterom 16,6 m Gard/oppbevaring 12,5 m Møterom 12,1 m Landskap 25,8 m Kjøkken 38,7 m Landskap 44,0 m Trapperom 12,4 m Cafe 168,4 m Trapperom 11,6 m Lobby 39,7 m plan 3.etg typisk kontorplan Ensjøveien | MAD arkitekter
55

Skisser

Her er et utvalg av håndskisser fra mine tre år på arkitektstudiet. For meg er skissing like mye et verktøy for å undersøke omgivelsene rundt meg som et givende fritidssyssel - enten det er i naturen eller det urbane landskap.

56
57
58
59

Turn static files into dynamic content formats.

Create a flipbook
Issuu converts static files into: digital portfolios, online yearbooks, online catalogs, digital photo albums and more. Sign up and create your flipbook.