Maria Travina. Architectural Portfolio

Page 1

Table of Contents Monastic Life Sleepy Bowel House of Many Walls Bridging the In-Between: Downtown Minneapolis Highschool East Phillip’s Birth Center Pig’s Eye Lake Wetland Bird Sanctuary Arch 5392: Facade Design & Construction Work Experience 2-5 6-9 10-15 16-23 24-27 28-31 32-35 36-47

Monastic Life

B.S.Arch I Fall 2019

Rhinoceros 3D, Adobe Illustrator, Adobe Photoshop

The project comprises a monastery situated on a remote island, characterized by its linear arrangement symbolizing the journey towards monkhood. The monastery’s walls impart a sensation of floating by maintaining a deliberate gap, enabling natural light to permeate from below. Similarly, the roof is ‘detached’ from the walls and selectively peeled away to facilitate the circulation of light, air, and water.

Distinct roof openings serve specific purposes within the monastery’s layout. The initial aperture between points a and b illuminates and aerates the entrance courtyard. Another gap (d,) serves as a divider between the monks’ cells (c) and communal spaces (e, f, g), doubling as storage for timber. A third opening (h) functions as a water source, designed to collect rainwater within a reservoir beneath.

Placing the church at points i, j, k, l, and m ensures visual segregation of fathers and brothers during services, aligning with monastery guidelines. The final gap (o) separates all functions from fathers’ cells (m,) accommodating a floating staircase leading to the primary cloister that interconnects all cells.

The monks’ privacy is preserved within the orthogonal shape of the cell’s exterior, while internally, the organic furniture pieces delineate spaces, and enhance user interpretation of the programmatic use.

Across the fields, a barn provides a visual enclosure with its simple square form. Crop fields and animal pastures within the central area, bounded by the barn and monastery, are divided by a grid mirroring the interior layout’s extension.

physical model 2
3
physical model entrance courtyard brothers’ cells kitchen staircase leading into the main cloister

father’s cell 3/4”=1’-0”

Father’s Cell:

a) Ave Maria

b) Workshop

c) Eating Area

d) Bedroom

e) Prie-dieu

f) Bathroom

g) Study Room

Brother’s Cell:

a) Bedroom

b) Study Room

c) Bathroom

unfolded section 3/32”=1’0” plan oblique

a) Entrance Courtyard

b) Main Entrance

c) Brothers’ Cells

d) Wood Storage

e) Workshop

f) Kitchen

g) Refactory

h) Water Basin

i) Church: Broth-

ers’ Side

j) Altar

k) Church: Fathers’ Side

l) Sacristy

m) Chapeter House

n) Father’ Cells

o) Cloister

p) Roughage

q) Manure

r) Animal Stulls

and Milking Area

s) Dairy Products Storage

t) Sawmill

u) Storage Space

4
brother’s cell 3/4”=1’-0”
a b a a b b d e f g c c
5 c d e f g h i k l m n o j s u p q r t

Sleepy Bowel

B.S.Arch I Fall 2020

Cinema 4D, Adobe Illustrator, Adobe Photoshop

Resembling livestock, “Sleepy Bowel” comprises a series of morphological structures nestled snugly within the terrain and atop one another. Its primary aim is to attract a diverse audience, fostering active engagement with the landscape’s profoundly atmospheric spaces through the integration of light, water, natural elements, and organic material. The program consists of various greenhouses, animal and plant farms, rain gardens, and leisure spaces. The design intends to evoke a range of human emotions and stimulate various sensory receptors.

Encircling the site’s perimeter are elevated mounds that create and maintain an ambiance distinct from the surrounding urban environment, occasionally tapering to suggest points of ingress. A cohesive narrative emerges through the gradual mor-

phological shifts, transitioning from voluminous and structured forms to more relaxed configurations, accommodating human, botanical, and faunal inhabitants within niches and recesses. Narrow apertures are deliberately maintained to preserve the nuanced climate of the interiors, resulting in a tactile experience as individuals navigate through the pliant exterior surfaces.

The interiors are characterized by contained ecosystems, ranging from meticulously managed to untamed environments. The project idealizes rural existence and evokes nostalgia for nurturing nature. Livestock and wildlife coexist harmoniously, seamlessly integrated into the architectural volumes and natural surroundings, grazing freely without the encumbrance of typical farming detritus.

6
section perspective

plan 3/32”=1’0”

a) Lush Green House b) Conventional Green House c) Cafeteria

d) Leisure Mound e) Animal Farm f) Snail Farm g) Where the Wild Things

Are h) Rain Gardens i) Climbing Plant Farm j) Community Farm

humans animals

7
section aa 3/32”=1’0”
section
3/32”=1’0” a c d j b i h g e f b b a a
bb
8
plan 1/4”=1’0” top view 1/4”=1’0”
perspective view
9 top view 1/4”=1’0” plan 1/4”=1’0”

House of Many Walls

B.S.Arch I Spring 2021

Rhinoceros 3D, Adobe Illustrator, Adobe Photoshop

Best in Show Adrian D. Smith Architecture Award

The central concept driving this project is the transformation of personal childhood recollections into surreal architectural expressions. Drawing inspiration from a significant element of familial heritage, namely the ‘furniture wall’ in my grandparents’ home dating back to the Soviet Era, the project unfolds across six distinct spatial configurations or walls. Each space or wall serves as an exploration and reinterpretation of the concept of encapsulating one’s life within a comprehensive floor-to-ceiling furniture ensemble.

Integral to the project’s ethos is the seamless integration of exterior and interior realms, embracing the inherent imperfections of human memory. Some examples include the bed extending outward to merge with nature, juxtaposing a concrete wall adorned with patterned wallpaper that blurs the boundaries between interior and exterior domains. During

usage, the bed bathes the adjoining living room in natural light, while the plush carpeting evokes the sensation of grass underfoot. The design strategy of the living room invites inhabitants to rearrange the soft cushioned elements that form the wall if needed. The bathroom facilities are discreetly concealed behind a tile-patterned wall, offering glimpses of dynamic human presence while safeguarding privacy.

The overarching architectural motif, characterized by a concrete structure with varying wall thicknesses, symbolizes the intricacies and imperfections of human memory, where remnants of the forgotten persist. Illumination from carefully positioned skylights above each space serves not only to illuminate these cherished memories but also to guide occupants through the otherwise dimly lit environment, traversing from one wall to the next.

10 bedroom main entrance bathroom
11
corridor
kitchen living room
12
living room 3/32”=1’0”
section perspectives 1/8”=1’0”
bedroom 3/32”=1’0” bathroom 3/32”=1’0”
13
kitchen 3/32”=1’0” main entrance and corridor 3/32”=1’0” corridor and staircase 3/32”=1’0”

plan 3/32”=1’0”

14 plan obliques 1/16”=1’0”
15
plan 3/32”=1’0”

Bridging the In-Between: Downtown Minneapolis Highschool

M.Arch I Fall 2022

Rhinoceros 3D, Adobe Illustrator, Adobe Photoshop Student Academic Excellence Award

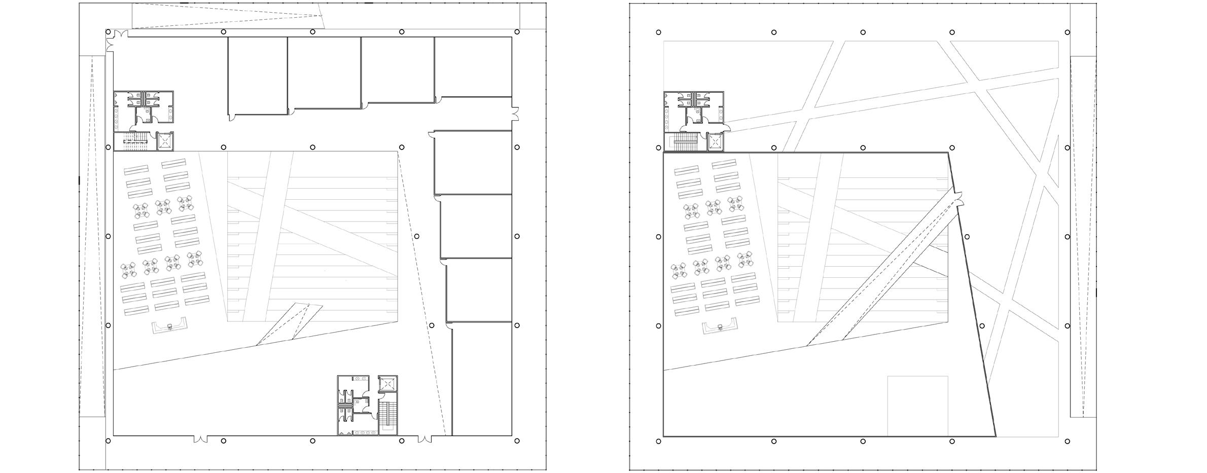
Nestled within the vibrant urban landscape of Minneapolis, the project is a high school situated atop a bustling highway. The architectural concept revolves around the integration of various L-shaped floor plates stacked atop one another, fostering a sense of visual cohesion, and promoting interaction and collaboration among students and faculty. By establishing clear sightlines between different levels, the layout enhances safety and security while cultivating a welcoming communal environment.

Central to the design is an interior courtyard, serving as a focal point for social gatherings. Accessible via three circulation ramps interwoven with standard vertical circulation elements, the courtyard acts as a dynamic hub of student life, encouraging movement and interaction throughout the school day.

Externally, the building is enveloped by a semi-transparent mesh veil, striking

a balance between privacy and openness. This facade not only provides a degree of seclusion for students but also offers views of the surrounding cityscape, fostering a sense of connection to the urban environment.

Another defining feature of the exterior is the continuous ramp that wraps around the building mass. Serving as both a circulation path and a communal space, this spiraling structure encourages exploration and social interaction, blurring the boundaries between indoor and outdoor learning environments.

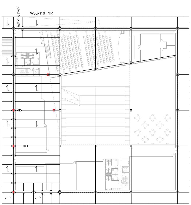
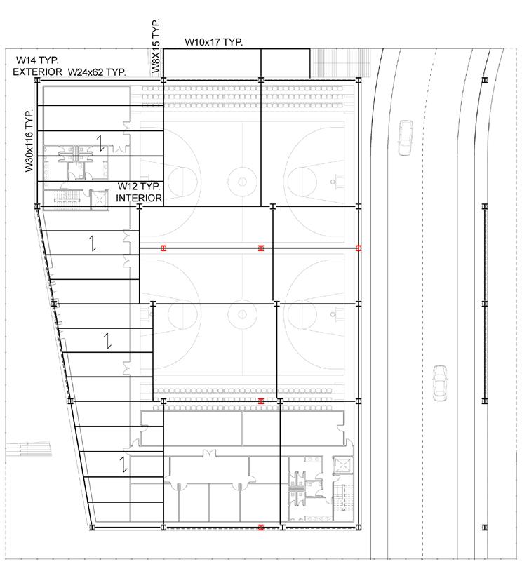
Throughout the design process, close collaboration with the Structures course ensured meticulous attention to detail in the development of structural framing plans. The chosen steel frame with concrete slabs was engineered to provide structural integrity while accommodating the architectural vision seamlessly.

16 concept studies
17
18 site plan section detail
19 1st floor plan 3rd floor plan 5th floor plan main lobby floor plan 4th floor plan roof garden floor plan
20
floor plans
allowable load floor plans
section perspectives framing
max.
21
22
interior courtyard perspective elevations
23
rooftop garden perspective

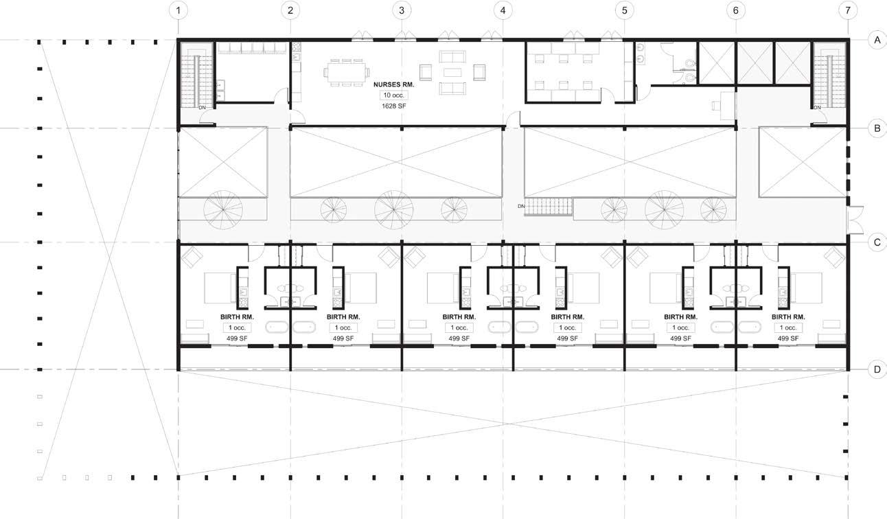
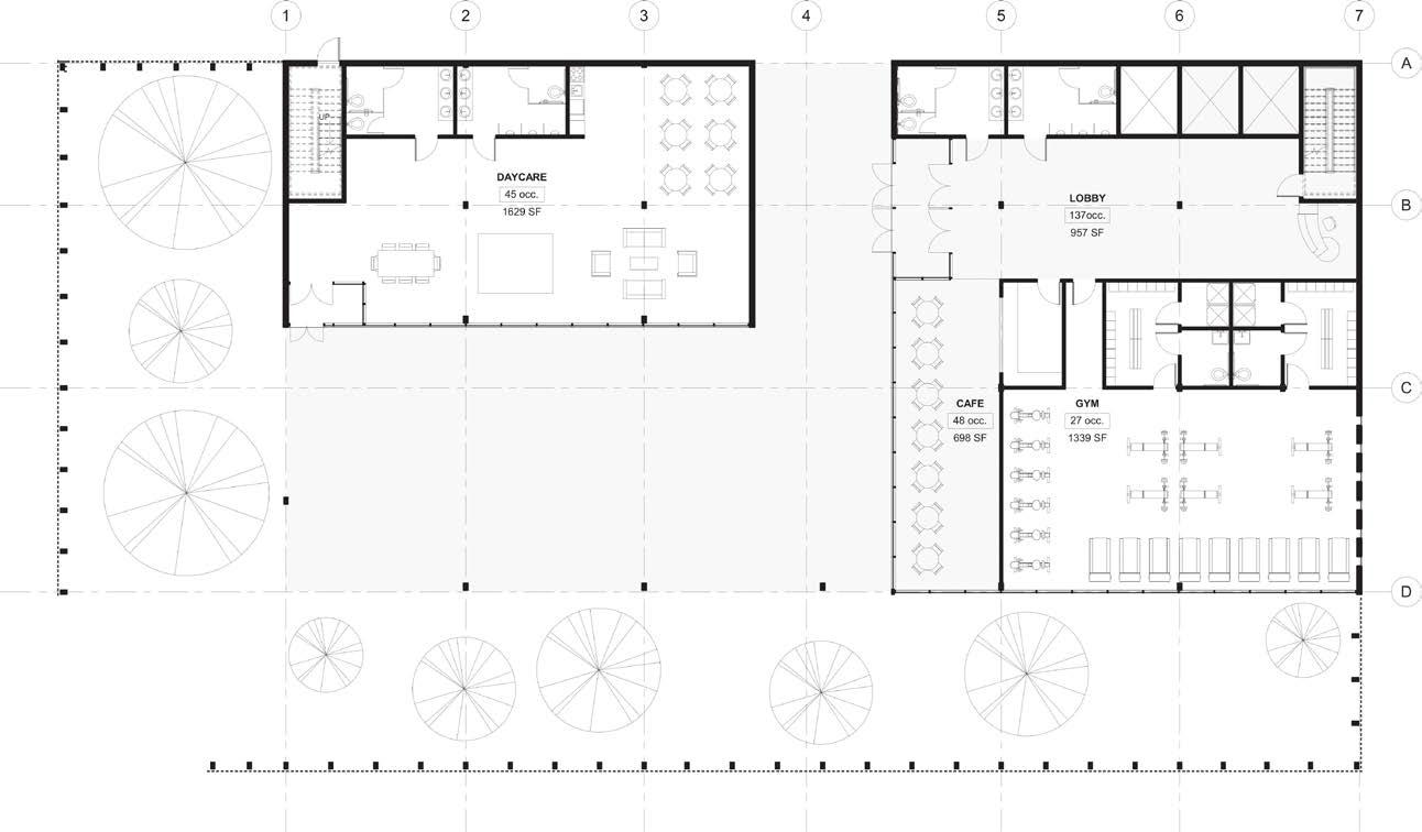
East Phillips Birth Center

M.Arch I Spring 2023

Revit, Enscape, Adobe Illustrator, Adobe Photoshop

“Giving birth is an incredible act of nature and power.” - Michele Obama “Nature holds the key to our aesthetic, intellectual, cognitive and even spiritual satisfaction.” – Dr. Edward O. Wilson

In contemplation of the profound journey of childbirth and the bustling urban surroundings in which the project is situated, the Phillips Birth Center endeavors to craft a tranquil sanctuary for both mothers and the neighboring community by integrating elements of nature and maximizing natural illumination. The encircling wall enveloping the building serves to insulate it from the urban noise while offering views of nature, thereby fostering a sense of detachment and serenity. Simultaneously, it extends outward to embrace the public sphere, accommodating diverse community needs such as communal gardens, daycare, and outdoor and indoor recreational and leisure spaces.

Internally, the incorporation of vegetation and ample natural light, and

the utilization of natural materials like wood into building design offer numerous health benefits, both physical and psychological, contributing to occupants’ overall well-being, as well as creating a soothing ambiance, fostering a connection to the natural world.

The expansive birth rooms, complete with private terraces overlooking lush gardens, transcend the conventional notion of a medical facility, offering an idyllic retreat reminiscent of a leisure destination.

In essence, the design ethos of the Phillips Birth Center seeks to reconcile the transformative journey of childbirth with the restorative power of nature, offering a haven of solace and rejuvenation amidst the urban hustle and bustle.

24
section detail
25
26 3rd floor plan 2nd floor plan 1st floor plan site plan
27 perspective views

Pig’s Eye Lake Wetland Bird Sanctuary

M.Arch I Fall 2023

Rhinoceros 3D, Twinmotion, Adobe Illustrator, Adobe Photoshop

Situated on the Pig’s Eye Lake in Saint Paul, the project addresses the environmental challenges posed by the heavily polluted surroundings due to industrial and infrastructural activities. To effectuate a significant urban-scale environmental intervention, the initiative aligns itself with the ongoing efforts led by the Army Corps Engineers. These efforts aim to establish a series of strategically positioned artificial islands to safeguard the lake’s shoreline and provide a secure habitat for migratory birds and diverse flora and fauna.

At its core, the Pig’s Eye Lake Wetland Bird Sanctuary materializes as a circular wooden dock, spanning a halfmile diameter. Beneath the water’s surface, it accommodates a fingernail mussel habitat, connected to a rigid mesh structure. This not only promotes biodiversity but also serves to

purify the polluted lake water, particularly close to the newly established islands, ensuring a safe environment for both humans and wildlife.

Above the water’s surface, there are educational and recreational facilities, such as exhibition spaces, classrooms, an outdoor cinema, a café, event venues, an outdoor swimming pool, and a boat dock. These amenities not only serve to attract visitors for leisure and recreational pursuits but also seek to educate them about the site’s history and the importance of environmental stewardship.

The project’s waterfront location provides visitors with unparalleled proximity to the lake, offering an immersive experience. While the dock occasionally nears the islands, deliberate measures are taken to avoid disrupting wildlife habitats. perspective

28
views
29

E. outdoor pool plan D. boat deck plan C. cafe plan B. main entrance plan A. outdoor theatre plan

CANADIAN PACIFIC RAIL BATTLE CREEK REGIONAL PARK PIGS EYE ARCHERY RANGE PIGS EYE WOOD RECYCLING Railroad Trail / Bike Path Interstate / Highway 30 site
plan
31 main entrance section outdoor theatre section typical shelter section

Arch 5392: Facade Design & Construction

M.Arch I Fall 2022

Rhinoceros 3D, Twinmotion, Adobe Illustrator, Adobe Photoshop

The subsequent documentation outlines a selected series of thorough material and assembly investigations undertaken within the scope of the Facade Design & Construction Class. Each study encompasses either a one-to-one mock-up or a compact pavilion confined within dimensions of 15x15x15 feet. The semester-long explorations encompass a diverse array of materials, including stone, brick, terracotta, glass, metal, wood, and concrete.

For each assembly, a comprehensive array of detail drawings and exploded isometrics is carefully crafted to investigate the intricate mechanics of the assembly process. Emphasis is placed on identifying the precise methodology of integrating each system.

A significant consideration is dedicated to material supply, with thorough attention given to sourcing from either local or international manufac-

turers. This aspect generates discussions aimed at ensuring the selection of optimal sources for each exercise.

Rendering techniques are employed to achieve highly realistic representations, thereby facilitating the accurate portrayal of the inherent material qualities of each element. These renderings serve as essential tools in visualizing the nuanced characteristics of the materials under scrutiny.

In essence, the material and assembly studies undertaken in the Facade Design & Construction Class embody a rigorous and interdisciplinary approach to architectural education. Through careful investigation and thoughtful analysis, I am now equipped with the required knowledge and skills to navigate the complexities inherent in contemporary construction practices.

32
33
34
35

Reilly Residence

Vladimir Radutmy Architects I 2021-2022 AutoCAD, Rhinoceros 3D, Adobe Illustrator, Adobe Photoshop

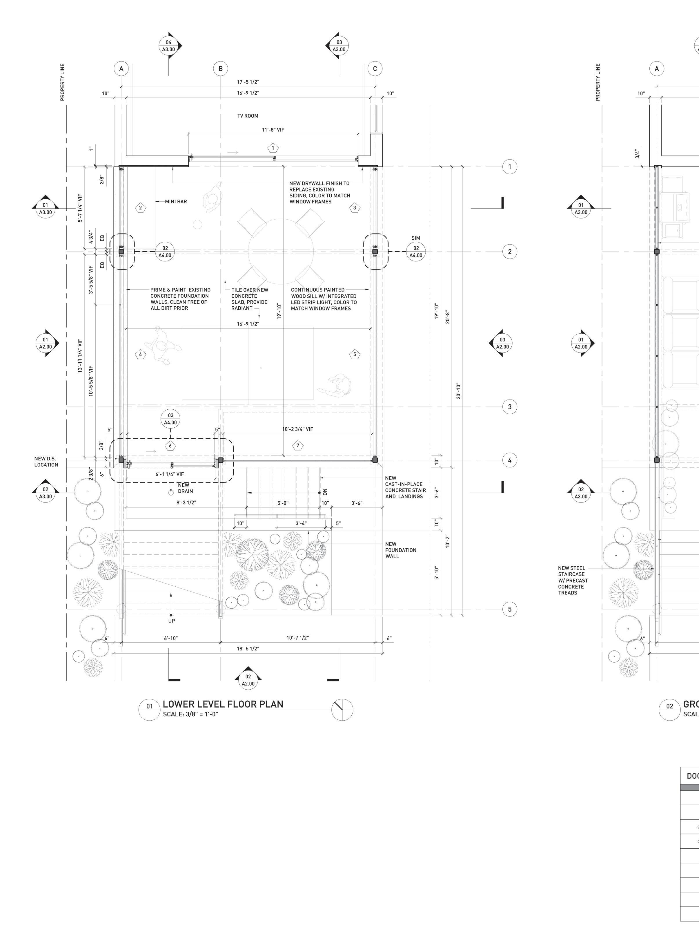
The project is centered on the enhancement of the outdoor patio area, with a dual focus on expanding the gathering space and enclosing the area underneath. Executed collaboratively with a former colleague, the project included meticulous documentation of the existing conditions through site visits and precise measurements. Additionally, my involvement extended to the creation of floor plans and physical models for client presentation, alongside significant contributions to the development of construction drawings.

The project prioritized thorough attention to detail, notably evident in the structural design of the deck. Careful calculations were undertaken to optimize the structural assembly, aiming to achieve the maximum ceiling height possible in the basement space below. To enhance natural illu-

mination in this area, a corner window assembly was strategically incorporated into the design.

Similar meticulousness was applied to ground-level features, with a focus on privacy screening to shield on-deck activities from neighboring properties. Composed of delicately arranged thin wooden elements, these screens afford the required privacy while facilitating adequate airflow and light penetration. Furthermore, an additional railing was introduced below standard height specifications to ensure the safety and comfort of the client’s young children.

In essence, the project embodies a meticulous approach to design and execution, with high consideration given to both aesthetic and functional elements to meet the client’s requirements effectively.

36
physical model
37 option 2 option 1 existing plan existing plan proposed upper floor plan proposed upper floor plan proposed lower floor plan proposed lower floor plan
38 proposed plans sheet n.t.s.
39
40 proposed sections sheet n.t.s.
41

Chabad of Bucktown Religious Furniture

Vladimir Radutmy Architects I 2021-2022

AutoCAD, Rhinoceros 3D, Adobe Illustrator, Adobe Photoshop

The project is a collection of Jewish religious furniture, comprising pieces such as the Bimah, Hazzan, and Torah Ark, destined for placement within a synagogue located in Chicago. The scale of the project allowed me to develop each furniture piece individually. Integral to my involvement was the concept development alongside the thorough creation of construction drawings and visualizations for client presentation.

All three pieces adhere to a consistent stylistic approach to create a unified aesthetic within the sacred space. To facilitate versatility in furniture arrangement, both the Bimah and Hazzan rest upon coasters, enabling effortless mobility. Their design incorporates a subtle elevation of the vertical sides, concealing the coasters and imparting a visually ethereal quality to the otherwise substantial pieces. Moreover, ample storage provisions

comprise open shelves for easy accessibility and enclosed drawers to maintain a tidy appearance.

Attention to detail is particularly pronounced in the design of the Torah Ark, which houses the Torah scrolls. Its facade is adorned with triangular wooden members, meticulously arranged to achieve a textured surface and dynamic interplay of light and shadow. The design of the Torah Ark features sliding doors that gracefully open to the sides, facilitating the seamless movement of individuals during ceremonial proceedings. Positioned at an angle amidst existing drapery and the back wall, thorough planning ensures a harmonious integration within the spatial context, supported by a custom-designed metal plate to securely affix the heavy structure.

42
torah ark section detail sheet n.t.s.

torah ark section detail sheet

n.t.s.

43
44 torah ark drawings sheet n.t.s.
45 guide brackets sheet n.t.s.
n.t.s.
back plate sheet
46
bimah and hazzan bimah and podium
47 torah ark
50

Turn static files into dynamic content formats.

Create a flipbook
Issuu converts static files into: digital portfolios, online yearbooks, online catalogs, digital photo albums and more. Sign up and create your flipbook.
Maria Travina. Architectural Portfolio by maria.travina - Issuu