Collective Housing

Page 1

ARCHITECTURE | PRIVATE HOUSING

Brunel Walk | Residen!al

Stage: Planning Applica!on for 45 new homess

Loca!on: London, U.K

Architect: KC+A

Client: Haringey

Site Area: 9981m² (1Ha)

This project describes the proposal to redevelop a site within the Turner Avenue estate, that will provide a scheme of high quality new Council homes. The proposal is to replace some of the exis!ng houses in the southern part of the site with 5. It will provide a total of 45 new homes with 39 apartments and 6 2-storey mews houses. Landscape improvements are also proposed to the remaining part of the Estate.

The proposal aims to improve access, to improve street frontages, to increase natural surveillance and to improve communal gardens.

The proposal has adopted a fabric first approach with efficiently designed building envelopes and improved u-values and a high air !ghtness. Renewable technologies including PVs and air source heat pumps are proposed. The scheme is designed to be net zero carbon in use.

_Birds eye ar!st impression of the proposal (By others)

Birds eye artists impression of the proposal

_Opportuni!es and Achievements of the proposal

Kirkton
Elmar Road WestGreenRoad Seaford Road TurnerAvenue Braemar Road
Improved play spaces spaces realm: improved in buildings A,B,C and Turner Avenue estate 5. Improved frontages to neighbouring streets
Road
D C B A T
Proposed Building D Proposed Maissone$es with flats on top
N
Proposed Building A Proposed Building B Proposed Building C
_Proposed Site Plan N

_Northern Eleva on of the Site showing the proposed buildings

_Southern Eleva on of the Site showing the proposed buildings

Proposed Building D Shared garden Proposed Maissone!es with flats on topProposed Building CProposed Building BProposed Building A Proposed Building AShared private gardenShared private gardenShared private ga Proposedrden Building BProposed Building CProposed Maissone!es with flats on topProposed Building D Amenity courtyardAmenity courtyard

Step 1.

Proposed area of built form with separa on distance to neighbouring proper es on Seaford Road.

Step 2. Break built form area down into sec ons, preserving outlook from Turner Avenue.

Step 3. Create shared private gardens and enhance exis ng private gardens.

Step 4. Create amenity courtyards within Turner Avenue, complete streets with building line and ac ve frontage.

AccessBrunelWalk Braemar Road Elmar Road Turner Avenue 22m Existing buildings outline Proposed Building Area Step 2. Braemar Road Elmar Road Turner Avenue Facade line overlooking Proposed Building Area Step 3. Braemar Road Elmar Road Turner Avenue Facade line overlooking Proposed Building Area Braemar Road Elmar Road Turner Avenue Step 4. Facade line Proposed Building Area Rationalised parking area Proposed amenity courtyards D C B A _Design
Step 1.
Ra onale- Layout

PROPOSED BUILDING A

TOTAL No of DWELLINGS = 9 (25 hab rooms)

Mix: 5x1B2P (55,5%). 1x2B4P (11%). 3x3B5P (33,5%)

Parking: 18 No. secure Bicycle Spaces

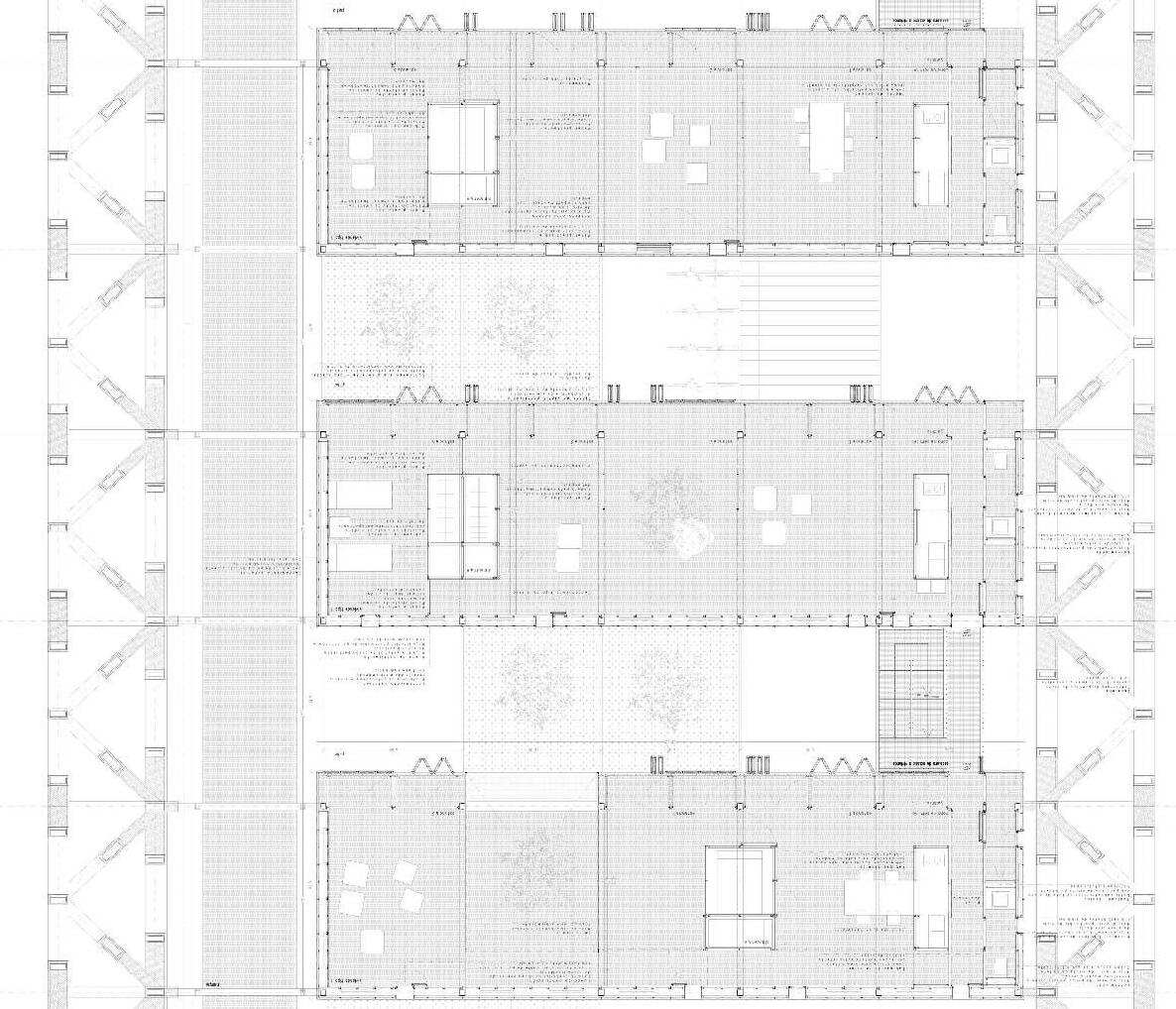
_Proposed Typical Floor Plan

1Brick type 1 - facing brick in stretcher bond

2Decorative brick panel with everyother course protruding by 20mm, in brick type 1

3Brick type 1 - facing brick in soldier course

475 mm reconstituted lime stone strip, 40 mm projecting course to form horizontal banding (with drip)

5300 mm reconstituted lime stone strip, 40 mm projecting course to form horizontal banding (with drip)

6Facing brick type 1 in vertical stretcher bond, in set by 20mm panel over windows

7Reconstituted lime stone in set by 20mm panel over windows

8Double glazed window with full brick 225 reveal. PPC Aluminum, sill & sofit in match colour

9PPC Aluminum louvre panel with glazing window system for night ventilation, RAL to match window scheme

10Metal railing with flat sections - PPC colour to match window frame colour scheme

_Proposed West Eleva on

Proposed Site Elevation -Block A -West 1

_Proposed East Eleva on

11Privacy screen sections to match hand balustrade- PPC colour to match window frame colour scheme

12Balcony panels in stretched metal sheet - PPC colour to match window frame colour scheme

13Double glazed window with full brick 225 reveal and spandrel bottom panel. PPC Aluminum, sill, spandrel panel & sofit in match colour

14Glazed entrance doors with PPC aluminium frames and matching ironmongery

15Rain water goods, RAL to match window RAL

16Wall mounted external light, case colour to match windows and doors colour

1775 mm facing brick type 1 strip, 20 mm projecting course to form horizontal banding

18Timber fence with vertical hit & miss

19Reconstituted stone canopy with external lighting under soffit

20Solar shading formed with stretched metal sheeting- PPC colour to match window frame colour scheme

21Brick type 2 - facing brick in stretcher bond, 20mm recessed

28 Plant enclosure clad in stretched metal sheet to match RAL elsewhere

33 External doors finished in stretched metal and RAL to match metal work elsewhere

20 11 20 2 3 4 1 6 7 20 28 16 15 20 11 10 12 6 7
N

PROPOSED BUILDINGS B & C

TOTAL No of DWELLINGS = 11 (37 hab rooms)

Mix: 1x1B2P (10%). 5x2B4P (45,5%). 5x3B5P (45,5%)

Parking: 20 No. secure Bicycle Spaces

1Brick type 1 facing brick in stretcher bond

2Decorative brick panel with everyother course protruding by 20mm, in brick type 1

3Brick type 1 facing brick in soldier course 475 mm reconstituted lime stone strip, 40 mm projecting course to form horizontal banding (with drip)

5300 mm reconstituted lime stone strip, 40 mm projecting course to form horizontal banding (with drip)

6Facing brick type 1 in vertical stretcher bond, in set by 20mm panel over windows

7Reconstituted lime stone in set by 20mm panel over windows

8Double glazed window with full brick 225 reveal. PPC Aluminum, sill & sofit in match colour

9PPC Aluminum louvre panel with glazing window system for night ventilation, RAL to match window scheme 10Metal railing with flat sections PPC colour to match window frame colour scheme

11Privacy screen sections to match hand balustrade- PPC colour to match window frame colour scheme

12Balcony panels in stretched metal sheet PPC colour to match window frame colour scheme

13Double glazed window with full brick 225 reveal and spandrel bottom panel. PPC Aluminum, sill, spandrel panel & sofit in match colour

14Glazed entrance doors with PPC aluminium frames and matching ironmongery

15Rain water goods, RAL to match window RAL

16Wall mounted external light, case colour to match windows and doors colour

1775 mm facing brick type 1 strip, 20 mm projecting course to form horizontal banding

18Timber fence with vertical hit & miss

19Reconstituted stone canopy with external lighting under soffit

20Solar shading formed with stretched metal sheeting- PPC colour to match window frame colour scheme

21Brick type 2 - facing brick in stretcher bond, 20mm recessed

28 Plant enclosure clad in stretched metal sheet to match RAL elsewhere

33 External doors finished in stretched metal and RAL to match metal work elsewhere

_Proposed Typical Floor Plan

2 28
Proposed Site Elevation -Block B -North Proposed Site Elevation -Block B -South
N

PROPOSED BUILDING D1 - FLATS

TOTAL No of DWELLINGS = 5 (17 hab rooms)

Mix: 3x2B4P (60%). 2x3B5P (40%)

Parking: 17 No. secure Bicycle Spaces

_Proposed North Eleva!on

_Proposed Typical Floor Plan

_Proposed West Eleva!on

26 17 20 20 20 Unknown levels for private gradens Levels be adjusted 10 22 23 17 17 21 20 24 14 32 16 34 36 Proposed Site Elevation -Block D -East 1 Proposed Site Elevation -Block D -West 2 1Brick type 1 facing brick in stretcher bond 2Decorative brick panel with everyother course protruding by 20mm, in brick type 3Brick type 1 facing brick in soldier course 475 mm reconstituted lime stone strip, 40 mm projecting course to form horizontal banding (with drip) 5300 mm reconstituted lime stone strip, 40 mm projecting course to form horizontal banding (with drip) 6Facing brick type in vertical stretcher bond, in set by 20mm panel over windows 7Reconstituted lime stone in set by 20mm panel over windows 8Double glazed window with full brick 225 reveal. PC Aluminum, sill sofit in match colour 9PPC Aluminum louvre panel with glazing window system for night ventilation, RAL to match window scheme 10Metal railing with flat sections PPC colour to match window frame colour scheme 11Privacy screen sections to match hand balustrade- PPC colour to match window frame colour scheme 12Balcony panels in stretched metal sheet PPC colour to match window frame colour scheme 13Double glazed window with full brick 225 reveal and spandrel bottom panel. PPC Aluminum, sill, spandrel panel & sofit in match colour 14Glazed entrance doors with PPC aluminium frames nd matching ironmongery 15Rain water goods, RAL to match window RAL 16Wall mounted external light, case colour to match windows and doors colour 1775 mm facing brick type strip, 20 mm projecting course to form horizontal banding 18Timber fence with vertical hit miss 19Reconstituted stone canopy with external lighting under soffit 20Solar shading formed with stretched metal sheeting- PPC colour to match window frame colour scheme 21Brick type 2 facing brick in stretcher bond, 20mm recessed 2275 mm reconstituted stone strip to form horizonta detail 23Brick type 2 facing brick in vertical stretcher bond, 20mm recessed 24Reconstituted lime stone sill 25Decorative brick panel with everyother course protruding by 20mm, in brick type 26Metal standing seam roof finished in RAL to match all other metal work 2775 mm recessed stip detail standing seam cladding 28Plant enclosure clad in stretched metal sheet to match RAL elsewhere 29Decorative brick 20 mm vertical inset, in brick ype stretcher bond 30Reconstituted lime stone to form canopy with lighting to soffit 31Private entrance doors to be PPC Aluminium composite units with glazing panels 32Ventilation rack to be PPC Aluminium. Colour to match doors and windows 33External doors finished in stretched metal and RAL to match metal work elsewhere 34Decorative brick panel with every other course protruding by 20 mm and with alternating courses in brick type 1 and 2 35External bicycle store in timber to match fencing 36Metal balustrade with metal flats RAL to match elsewhere
N

PROPOSED BUILDING D2 - MAISSONETTES AND FLATS

TOTAL No of DWELLINGS = 9 (32 hab rooms)

Mix: 1x1B2P (11,5%). 2x2B4P (22%). 6x3B5P (66,5%)

Parking: 12 No. secure Bicycle Spaces

_Proposed Ground Floor Plan

_Proposed North Eleva!on

_Proposed First Floor Plan

_Proposed Second Floor Plan

_Proposed South Eleva!on

12700 11900 10 22 23 25 17 17 21 24 34 10 12 1 26 27 17 15 29 30 30 24 2 13 10 10 24 14 31 31 16 16 28 35 16 20 20 20 18 15 29 Proposed Site Elevation -Block D -North 1 1Brick type 1 facing brick in stretcher bond 2Decorative brick panel with everyother course protruding by 20mm, in brick type 3Brick type 1 facing brick in soldier course 475 mm reconstituted lime stone strip, 40 mm projecting course to form horizontal banding (with drip) 5300 mm reconstituted lime stone strip, 40 mm projecting course to form horizontal banding (with drip) 6Facing brick type in vertical stretcher bond, in set by 20mm panel over windows 7Reconstituted lime stone in set by 20mm panel over windows 8Double glazed window with full brick 225 reveal. PC Aluminum, sill sofit in match colour 9PPC Aluminum louvre panel with glazing window system for night ventilation, RAL to match window scheme 10Metal railing with flat sections PPC colour to match window frame colour scheme 11Privacy screen sections to match hand balustrade- PPC colour to match window frame colour scheme 12Balcony panels in stretched metal sheet PPC colour to match window frame colour scheme 13Double glazed window with full brick 225 reveal and spandrel bottom panel. PPC Aluminum, sill, spandrel panel & sofit in match colour 14Glazed entrance doors with PPC aluminium frames nd matching ironmongery 15Rain water goods, RAL to match window RAL 16Wall mounted external light, case colour to match windows and doors colour 1775 mm facing brick type strip, 20 mm projecting course to form horizontal banding 18Timber fence with vertical hit miss 19Reconstituted stone canopy with external lighting under soffit 20Solar shading formed with stretched metal sheeting- PPC colour to match window frame colour scheme 21Brick type 2 facing brick in stretcher bond, 20mm recessed 2275 mm reconstituted stone strip to form horizonta detail 23Brick type 2 facing brick in vertical stretcher bond, 20mm recessed 24Reconstituted lime stone sill 25Decorative brick panel with everyother course protruding by 20mm, in brick type 26Metal standing seam roof finished in RAL to match all other metal work 2775 mm recessed stip detail standing seam cladding 28Plant enclosure clad in stretched metal sheet to match RAL elsewhere 29Decorative brick 20 mm vertical inset, brick ype 1 stretcher bond 30Reconstituted lime stone to form canopy with lighting to soffit 31Private entrance doors to be PPC Aluminium composite units with glazing panels 32Ventilation rack to be PPC Aluminium. Colour to match doors and windows 33External doors finished in stretched metal and RA to match metal work elsewhere 34Decorative brick panel with every other course protruding by 20 mm and with alternating courses in brick type 1 and 2 35External bicycle store in timber to match fencing 36Metal balustrade with metal flats RAL to match elsewhere
N
_Proposed Street Views
_Building B - Street view from West Green Road Building D1 - Street view from Braemar Road _Building A- Street view from Elmar Road

CampsbourneRoad

Eas ieldRoad

Boyton Road | Residen!al

Stage: Planning Applica!on for 15 new homess

Loca!on: London, U.K

Architect: KC+A

Client: Haringey

Site Area: 641m² (0.0641Ha)

The proposal is for the redevelopment of the car park adjacent Wat Tyler House to provide 15 new homes in a part-4, 5 and 7-storey building.

Opportuni!es

. To use brownfield land to provide a mix of high quality dual aspect new homes with good natural daylight.

. Op!mise security and natural surveillance to surrounding areas.

. Promote pedestrian dominated streetscape rather than a hard landscaped car park as street frontage.

. Enhance communal garden to the rear of Wat Tyler house with new plan!ng, trees and street furniture.

. Refurbish the communal play ground that is currently asm a loca!on of an!-social behaviour and gatherings.

. Enhance local alley way routes to ensure greater safety and community feel.

. Provide addi!onal passive surveilance from the new homes over the public realm.

_CGI of the proposal

B o yton Road
N

3. Heights of each element adjusted to suit the context. The tallest sec on of the building rises up to form a book end to Wat Tyler House and at the rear the third part of the building relates in scale to Campsfield House and steps down subservient to the rest.

2. New building composed mof 3 elements where each part responds to the plan depth of the adjoining buildings. Facing Boyton Road the building takes on the building line of Wat Tyler house and Tennyson House crea ng a step in the street frontage.

1. Exis ng Site and surrounding buildings. The layout and massing design approach addresses the main site constraints: Varying heights of surrounding buildings, broken building line on Boyton Road and blank flank walls with no natural surveillance.

_Proposed Site Plan and long Sec on _Design Approach: Form and massing

A BOYTON ROAD ROAD WAT TYLER HOUSE TENNYSON HOUSE CAR PARK CAMPSFIELD HOUSE u BOYTON ROAD BOYTON ROAD
Boyton Road
House Tennyson House Eas iledRoad CampsbourneRoad CampsfieldHouse Campsbourne Road Campsbourne Road BoytonClose
Wat Tyler
Road

TOTAL No of DWELLINGS = 15 (40 hab rooms)

Mix: 6x1B2P (40%). 5x2B3P (33%). 3x2B4P (20%). 1x3B4P (7%)

Parking: 1 No. Vehicle Parking Spaces (for wheelchair userS) & 28 No. secure Bicycle Spaces

_Proposed Ground Floor Plan

_Proposed Typical Floor Plan

_Proposed 6th Floor Plan

Proposed Site Wat Tyler House Tennyson 13 12 10 11 14 16 15 17 18 19 20 21 22 19 23 13 13 37 39 Proposed Site Wat Tyler House 7 14 1 4 3 2 20 32 13 13 20 23 28 19 31 22 34 35 6 30 12 15 36 8 39 obscure glazing Tennyson House (outline infront) obscure glazing obscure glazing Proposed Site Campsfield House Boyton Road Bedale House Wat Tyler House (behind) 2 9 19 8 20 21 20 1 14 24 24 25 26 27 9 28 8 3 30 12 7 31 32 32 15 23 14 33 28 5 19 29 6 34 35 35 36 36 38 39
2 1 3
|1| Proposed West Eleva on|2| Proposed South Eleva on|3| Proposed East Eleva on

_Proposed West Eleva on

_Proposed East Eleva on

_Proposed Materiality: The 3 sec ons of the building are expressed in 3 different types each with a matching mortar colour. The colours which include, red and two shades of buff relate to the red brick found on Wat Tyler House and the buff shades of brick found at Tennyson and Campsfield Houses and in the wider neighbourhood.

To add a layer of detail, recessed panels of brick work linking windows either horizontally or ver cally are highlighted with contras ng brick bonds. Recons tuted stone bands form a sill where windows are linked

1 1 5 5 5 9 9 9 2 2 6 6 6 4 4 4 7 7 3 3 3 3 3 10 10 10 8 8

KEY:

1 Powder coated mild steel balustrade, colour TBC

2- Aluminium capping colour to match brickwork

3 - Soldier course in brick

4 - Stretcher bond brickwork

5 - IG Lintel preformed lintel clad in brick slips in stretcher bond with brick soffit

6 - Vertical stretcher bond brickwork

7 - IG Lintel preformed lintel clad in brick slips in vertical stretcher bond with full brick soffit/reveal

8 - Thermal broken aluminium window exact colour tbd

9 - Insulated aluminium spandrel panel, set flush with outer face of window frame, colour to match windows

10- Aluminium sill to match colour of windows

11 - Sika sanafil single ply membrane with 150mm upstand to manufacturer's detail

12 120mm depth min. green roof

13 Aluminium external louvres in colour to match windows

14 - Reconstituted stone sill

15 Aluminium cladding/soffit panel, colour to match windows

16 - Thermally broken aluminium glazed front door colour to match windows

17 ACO slimline threshold drain

18 - External paviours

1 2 3 4 5 13 8 9 3 10 14 20 20 1 2 3 4 5 6 7 8 10 4 11 12 9 8 25 190 4 5 15 16 18 17
|1| Window reveal- Sec on |2| Window reveal- Sec on|2| Window reveal- Eleva on|3| Entrance soffit- Sec on |1| Window reveal- Eleva on 1 2

Ven la on and overhea ng.

The proposed building also takes into account overhea ng, access to good levels of daylight and sunlight within homes, natural ven la on and security.

The design proposals follow the cooling hierarchy and use passive design measures to reduce poten al overhea ng set out in the London Plan.

. The amount of heat entering the building has been reduced using balconies and external louvres to provide shading, careful sizing and orienta on of windows specified to have low emissivity, high levels of insula on and air ghtness, and the provision of green roofs at all levels to reduce energy absorbed by the roof.

. Internal heat genera on will be minimised through specifica on of energy efficient ligh ng and minimising hea ng pipe runs.

. Heat within the building will be managed through use of the exposed internal thermal mass of concrete staircases and 2.5m high ceilings.

. Passive ven la on is enabled through the design of the apartment layouts and posi oning of windows. Secure ven la on louvres are provided to the ground floor apartments so that ven la on at night is possible.

. Mechanical ven la on is provided which can make use of free cooling when outside temperature is below inside in summer months.

. It has been possible to avoid the need for ac ve cooling systems.

Results from modelling indicate that the scheme is compliant with the overhea ng requirements as set out in Building Regula ons Part O using the current Design Summer Year weather file 2020 DSY1 which is for a moderately warm summer defined by CIBSE.

Overhangs over balconies provide shading.

Ver cal louvres provide effec ve shading against evening sun at the end of a hot day.

Addi onal windows to allow cross ven la on.

Careful considera on of the orienta on of the building ensures appropriate measures have been taken to control the thermal gain at all mes of the day, as the sun moves.

Secure louvres ensure ven la on at night; cooling

_Diagram of proposed measures to prevent overhea ng

2 3 4 5 1
Proposed Aerial View from the Revit model Proposed Street View from Boyton Road looking South- CGI Proposed Aerial View from the Revit model

Summerhill Road | Residen!al

Stage: Planning Applica!on for 8 new homess

Loca!on: London, U.K

Architect: KC+A

Client: Haringey

Site Area: 1271m² (0.1271Ha)

This project describes the proposal to redevelop a site that will provide a small scheme of high quality new Council homes. It has its main access from Summerhill Road as well as frontage to West Green Road.

It will provide a total of Eight new homes with 6 apartments over 3 floors, and Two 2-storey mews houses.

The proposed built form closes the ‘frontage gap’ and bare flank wall of 1-20 The Redlands facing Summerhill Road. The new massing fron!ng West Green Road covers a bare flank wall whilst introducing an a#rac!ve ac!ve frontage that acknowledges the juxtaposi!on of building line with that of West Green Bap!st church.

The communal open space to the rear of Redlands will be enhanced to be provided as communal gardens.

Shrmmeu i l l Rdao
WestGreenRoad _Aerial View from Revit model
Exis!ng Residen!al Building 1-20 Redlands Proposed Building Block B Proposed Building Block C Communal Garden for exis!ng+proposed residen!al buildings Proposed Building 2No. Mews Houses Exis!ng Building Church Hall Exis!ng Building Church
SummerhillRoad
N
WestGreenRoad
_Aerial View of Exis ng Site_Opportuni es Plan_Proposal: Shadows study- 1st of June at 1pm. Area de opportunity for new building Area de opportunity for so! landscape Posibility for outlook ProposedSiteAccess ProposedSiteAccess West Green Road Exis ng Res i den a l Bu i l ding Exis ngBuildingChurch Sub Stat. SummerhillRoad SITE West Green Road West Green Road Exis ng Res i den a l Bu i lSummerhillRoad SummerhillRoad N

TOTAL No of DWELLINGS = 8 (24 hab rooms)

Mix: 2x1B2P (25%). 4x2B4P (50%). 2x3B5P (25%)

Residen!al communal garden: 600 sqm

Parking: 2 No. Vehicle Parking Spaces (for wheelchair users) & 15 No. secure Bicycle Spaces

_Proposed Ground Floor Plan

_Proposed 1st Floor Plan

_Proposed 2nd Floor Plan

F F/ Station H P U n t H P U H P U i H P U Access Block C Access Block B Access Access
N
_Proposed Street Views from Revit model Proposed Block B - View from West Green Road Proposed Mews Houses - Front Facade and Private Gardens Proposed Block C - View from Summerhill Road

Brick Type 1: Petersen Tegl D190, Flemish bond.

Decorative brick banding of vertical soldier coursi

VMZINC Pigmento Standing Seam wall/Roof panels

PPC Aluminium composite windows and balcony doorsPPC Aluminium composite windows with 200mm projecting metal reveal, colour to match zinc PPC Aluminium window with spandrel panel inset as part of window system to match colour of

Decorative brick panel 2: 25mm recessed brick panel to create shadow line in brick work Laser cut metal balustrading with decorative pattern fixed to proprietary concealed fixing brackets onto primary steel guarding frame fixed down to str

Communal entrance doors to be PPC Aluminium composite units with glazed panels

Pressed PPC Aluminium coping, colour to match windo

Decorative brick detail: Extruded horizontal brick banding with one course extruded and two

Decorative brick detail: Extruded horizontal brick banding with one course extruded and one

1 2 3 4 5 6 2 5 7 1 9 3 10 12 2 Adjacent Building 1 - 20 Redlands 8
_Street Views from Revit model_Proposed Eleva on 1 to West Green Road
1 3 4 10 8 12
_Street Views from Revit model_Proposed Eleva on_ Block B and Mews Houses Adjacent Building 1 - 20 Redlands

Brick Type 1: Petersen Tegl D190, Flemish bond.

Decorative brick banding of vertical soldier coursi

VMZINC Pigmento Standing Seam wall/Roof panels

PPC Aluminium composite windows and balcony doors - colour to match zinc

PPC Aluminium composite windows with 200mm projecting metal reveal, colour to match zinc PPC Aluminium window with spandrel panel inset as part of window system to match colour of zinc standing seam

Decorative brick panel 2: 25mm recessed brick panel to create shadow line in brick work Laser cut metal balustrading with decorative pattern fixed to proprietary concealed fixing brackets onto primary steel guarding frame fixed down to structure.

Communal entrance doors to be PPC Aluminium composite units with glazed panels Pressed PPC Aluminium coping, colour to match window colour scheme.

Decorative brick detail: Extruded horizontal brick banding with one course extruded and two courses recessed.

Decorative brick detail: Extruded horizontal brick banding with one course extruded and one recessed.

2 12 1 5 4 11 10 1
Adjacent Building 1 - 20 Redlands Adjacent Building 1 - 20 Redlands _Street Views from Revit model_Proposed Eleva on 2_Block C _Street Views from Revit model_Proposed Eleva on 3_Block C _Street Views from Revit model_PProposed Eleva on 1 to Summerhill Road_ Block C
7 8 9 10 11 12

Primary material of brick work

Zinc cladding used to !e Block B in with the mews houses behind and so crea!ng a consistent and a$rac!ve language to the architecture.

Inset balconies giving depth to the facades

Zinc standing seam cladding to first floor of mews houses, helping to propor!on the facade and ‘descale’ ones experience of moving from the main road into the mews.

Extruded window reveals to animate facade, create shade from west facing sun in warmer months and to relate to pitched

Laser cut pa$ern to panelling of balcony balustrades. Colour to match in with zinc cladding and window frames.

Consistent banding of ver!cal brick coursing across development, which scales the facades and !es the development together.

Brick work to ground floor of houses ac!ng as a visual plinth to the mews and development.

Simple ppc aluminium coping sec!ons to parapet to match colour of cladding and window frames.

Primary material of brick work

Primary material of brick work

Extruded horizontal brick coursing between windows to add propor!on and ver!cality to facade and animate / add interest

Ver!cal coursing panel between first and second floor to add propor!on and ver!cality to facade and animate / add interest

Extruded window reveals to animate facade, create shade from west facing sun in warmer months

Laser cut pa$ern to panelling of balcony balustrades. Colour to match in with zinc cladding and window frames.

Consistent banding of ver!cal brick coursing across development, which scales the facades and !es the development together.

Window propor!ons to the ground floor to be taller and emphasised by the brick banding above

Brick work to ground floor of block B to incorporate extruded horizontal brick coursing,

Simple ppc aluminium coping sec!ons to parapet to match colour of cladding and window frames.

Primary material of brick work

The northern wall of Block C is ar!culated with panels of fenestra!on and horizontal extruded brick banding to create interest to the flank of the building

Consistent banding of ver!cal brick coursing across development, which scales the facades and !es the development together.

Extruded horizontal brick coursing wrapping around the ground floor to visually highlight the entrance within the street scene

_Proposed Mews House_Proposed Block B_ South Eleva!on_West Eleva!on_Proposed Block C_East Eleva!on_Proposed Block C_North Eleva!on

1-LowprofilePPCaluminium copingsectiononproprietaryfixing systemovercavitywall-colourto match window frames and panels.

2-BrickType1:PetersenTegl D190.

3-Thermallybrokenstructural supports such as lintel beams.

4-Pre-formedextrudedmetal surroundtowindowincorporating topandbottomfallstohorizontal pieces-Anodisedcoatedfinishto match zinc.

5-Thermallybrokenaluminium PPCcompositewindowsystemCoating to match zinc.

6-Thermallybrokencavitycloserto allopenings,withstructuralsupport tosupportextrudedrevealsurround sill.

7-Schemedesignisbasedona traditionalformofconstructionwith externalcavitywalls,andprecast floor planks and screed topping.

8-ZincstandingseamcladdingVMZINC'Pigmento'StandingSeam systemfixedbacktoaventilated rigidboardandbattensover continuousinsulationboardsand structure.

9-Coatedmetalframingfixeddown tothermallybrokenjointwitha sealed membrane over fixing plate.

10-Lasercutbalustradepanels fixedwithconcealedcleatsbackto main frame.

11-Terracetoachievelevel threshold between flat and terrace.

12 - Non slip paving tiles.

13-3no.soldiercoursevertical brick banding.

14-Externalnonslippaversto entrance walk ways.

15-Decorativebrickpanelsof extrudedandrecessedFlemish bond set at 25mm.

2500 2500 2175 2400 2175 F.F.L 1st Fl F.F.L 2nd Fl 2500 F.F.L Gr Fl Internal 1500 1125 1125 665 1125 Internal Internal 1 5 7 8 9 2 10 12 11 13 14 15
KEY:
3
2nd Fl Internal Internal Internal 2500 2400 1100 2500 2175 1100 1 2 5 7 15
_Proposed Detailed Sec on and Eleva on - Block B _Proposed Detailed Sec on and Eleva on - Block C

187 Ewell Road | Residen!al

Stage: Planning Applica!on for 59 new flats

Loca!on: Surbiton, Kingston Upon Thames, U.K

Architect: KC+A

Landscape: KC+A

Client: NHS Property Services

Site Area: 3703.7m² (0.3703Ha)

This project describes the proposal to redevelop the site at 187 Ewell Road in Surbiton, Kingston. The proposal involves the demoli!on of exis!ng office building and erec!on of a 5 storey new residen!al scheme of 59 new flats with generous communal garden and on site parking area. The scheme will include a percentage of affordable homes.

TOTAL No of DWELLINGS = 59 (174 hab rooms)

10% of the dwellings to be wheelchair users. 90% to be adaptable.

Mix: 37% 1B. 42% 2B. 20% 3B

Residen!al communal garden: 600 sqm

Parking: 39 No. Vehicle Parking Spaces (10% of which are wheelchair users)

110 No. secure Bicycle Spaces

Ewel l Road
_Street View from Sketchup model

The scheme is divided into three cores, accessed directly from the internal road/shared surface. Cores A and B are accessed via the west of the site and Core C to the south via the internal access road.

Each of the wheel chair accessible dwellings are located at ground floor level and are accessed via internal protected corridors.

Two communal bin store are located within the proposed building and accessed externally. One serves Core A and another one serves cores B and C.

The cycle store is a communal facility located within the proposed building. It is shared by all residents and is easily accesible.

Windows from the flats within the proposed scheme have adequate separaÅon distances from exisÅng adjacent properÅes.

To the rear of the development (eastern boundary), the exisÅng trees form a buffer with Kingfisher Court (to the East) as well as with Millbanlk House (to the North). These trees are to be retained.

101112 20212223 34 37 10 11 20 21 22 23 27 1234 2 6 19 78 5 1 Refuse A Refuse B&C Plant Plant No. 12 Bikes (Two Tier) No. 38 Bikes (Two Tier) No. 66 Bikes (Two Tier) N
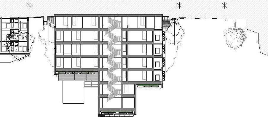
187 Ewell Road Kingfisher Court SITE Chalford Court EXISTING TREE ON SITE Topographical levels information unavailable for this area 25° 31.32 Interior Floor levels Building not surveyed OUTLINE OF PROPOSED BUILDING FFL Gr FFL 1st FFL 2nd FFL 3rd FFL 4th EXISTING TREES EXISTING FENCE GREEN ROOF ExisÅng trees to be retained as vegetal screening _Proposed Ground Floor Plan _Cross SecÅon East-West showing most affected window building Ewell Road Proposed building Kingfisher Court
_Proposed 1st & 2nd Floor Plan _Proposed 4th Floor Plan _Proposed Front Eleva on to Ewell Road _Proposed Side Eleva on

_Appearance: Massing / Facade Ar cula on & Brick Details

_Appearance: Access to Site & Signage design

Ground Floor Ar cula on- Change of material & Brick detailing Ground Floor Ar cula on- Colonade Top storey set back- Change of materials and brick detailing Bay design & Inset Blaconies Horizontal brick banding for ar cula on Inset Blaconies Change of Material- Contrast Ar cula on by brick detailing Ar cula on by brick detailing Access to Block A - View from Ewell Road Access to Block B - View from Ewell Road Access to Block C- View from Ewell Road

_Proposed Landscape

• Landscape & Outdoor Space Strategy

- Promote good Health and Wellbeing for the residents and neighbours

- Create communal spaces that have good surveillance

- Promote biodiversity in retaining exis ng trees

- Provide high quality landscaping

- Provide private amenity spaces at ground floor level to maintain privacy and ownership

• Communal Amenity Strategy

1.- Proposed extensive lawn area with the poten al of specimen trees to add height and interest to the amenity space.

2.- Majority of exis ng trees to be retained on eastern and northern boundaries.

3.- Private gardens create landscaped defensible spaces to include mixed hedge and ornamental shrubs.

4.- Landscaped defensible perimeter for apartments windows on the ground floor to include shrubs and ornamental shrubs.

• Private Amenity

Strategy

5.- Private gardens at the ground floor with a landscaped defensible space and with direct views to the proposed communal amenity space. To include mixed hedge and ornamental shrubs.

6.- Addi on of plan ng between parking bays which reinforce the general green aspect of the development but it also visually reducesthe presence of cars.

7.- Addi on of new trees to the front of the site to create an aÅrac ve ‘green aspect’ to the site frontage and the streetscape

8.- Shared surface vehicle/pedestrian/cycles to provide texture and reduce speed on site.

_Open Space Strategy

Public road

Parking for vehicles

Shared Surface (pedestrian/cyclist & vehicles)

Pedestrian/Cyclist dominant

Pedestrian only

Pedestrian access to building

N 7 7 7 3 1 4 4 4 4 8 1 2 2 2 3 5 5 6 6 6 6
*Visualiza on by others

EAST BAY | Residen al

Stage: Planning Applica on Loca on: Colchester, UK

Architect: KC+A

Client: Regent Land

Site Area: 3742m² (0.3742Ha)

Development of a Residen al Scheme in Colchester, with the proposal to restore the exis ng grade II listed granary mill and to provide a total of 20 new family dwellings with private and communal amenity spaces as well as associated car parking.

The process has involved two pre-applica ons and members feedback following a presenta on mee ng. Prior to the detailed planning applica on, a public consulta on was also carried out.

Site characteris!cs:

- The northern p of the site falls within the Colchester no 1 Conserva on Area

- The site falls with an area of flood risk

- Town Centre Loca on

- Exis ng cycle route currently dissects the site.

- Exis ng TPO trees within and neighbouring the site. _Aerial View from Revit model

Listed
Conserva on Area
Building exin ng on site
EastStreet EastBay
EastBridge
Listed
Exis ng
on
TPO
RiverColne
Building neighbouring context
trees
site
The Mill Hotel Landmark Residen al development
Conserva!on Area

Site Strategy: The analysis of the site’s local context provides an opportunity to create an a racÅve riverside development. The development generates a built form that addresses the natural features of the site and its riverside seçng.

The development principles are highlighted along the river’s edge to the east (areas 1 and 2) and a secondary area along the southern boundary adjacent to the allotments (areas 2 and 3). The proposed perimeter form on two boundaries also define a green central space where a communalamenityarea is located (area 4) and highlights the protected tree at its centre. This strategy also provides car parking access, which is hidden where possible. The locaÅon of the terraces also makes the development visually permeable, helping to re-instate a local listed asset, create a sense of place and also give the river a presence from the cycle route.

The proposed terraces are sensiÅvely posiÅoned and orientated away from the neighbouring properÅes on the western boundary so that their direct outlook is kept as clear and open as possible.

This results in a considered with a careful approach in order to protect the enjoyment of neighbouring amenity on what is a unique and constrained piece of the land.

The primary trees on site are retained and conÅnue to make a valuable contribuÅon to the green aspect and feel of the its seçng. This ulÅmately helps the neighbouring residents to conÅnue to enjoy their private amenity and outlook and also allow cyclists ho enjoy what will be an a racÅve cycle route through the site.

Pre-Applica!on 1: Proposal for a fla#ed scheme of 48 flats

Context buildings Protec!on of Na!onal Cycle Route Riverfront enhancemnt 18th c. Granary Bran to be restored Exis!ng Trees part of communal green space Listed buildings Public open space Allotments ExisÅng tree ExisÅng tree on site River Colne East Street EastBridge Main access Sub sta!on Riverfrontagedesign Exis ng building frontage
Cycleroute Vista Vista River frontage design 1 2 3 4
Proposal for
Scheme of
Listed Building Listed Building Listed Building Mill Hotel EastStreet EastStreet EastStreet RiverColne RiverColne River ne
Proposal for
Existingbuildingfrontage
*By others. Pre-Applica!on 2:
Housing
19 dwellings
Pre-Applica!on 2:
a scheme of 47 flats & 2 Houses
View of the North area of the development form the access road and cycle route *Ar
st impression by others.
View of the River front treatment from the East Bridge View of the South West area of the proposed development from the cycle route

EVOLUTION DIAGRAMS

Proposed Building Line: Main Frontage & Organiza!on of Open space:

• Proposed dwellings along cycle route to create a more ac ve frontage

• Green central space where a communal amenity area is located and highlights the protected tree at its centre.

• Green strip to receive new trees / shrubs at Riverfront.

• SoÅ landscaping to rear garden boundaries

Proposed Footprint & Enhanced landscaped vistas towards the Site

• Access via an un-adopted surface track off East Hill, part of Na onal Cycle Route No 1

• Flood risk zone 3.

• Requirement of 5m acces zone to riverfront by the Environmental Agency

• Car parking broken up by soÅ landscaping in between further contribu ng to the ‘green feel’ of the cycle route

Proposed access to Site & Permeabillity of proposed footprint:

• Space has been introduced between the listed barn and the eastern terrace, crea ng a be"er rela onship with the barn.

• Visual links betwen the cycle path and the river. Internal access road within the site to accommodate servicing and fire access

Building frontage and outlook:

• Careful posi oining to the new built form to create an a"rac ve building line within constrained site.

• Exis ng and proposed privacy is maintained through careful considera on of window posi ons at upper floor levels.

• Surveillance, which promotes safety aspects of the area.

Access junc!on to be upgraded to serve vehiclar access as well as an improved experience for cyclists

Refuse

Private Open Space Private Open Space Communal Amenity Communal Amenity Commun Amenit Commun Amenit
Na!onal cycle route Listed Building Listed Building 5m EA access zone from boundary approx Communal Green Space
collec!on point
Grade II Listed Building on Site Residents Riverside Walk
indica!ve loca!on for riverside access
Exis!ng
Proposed
House Type 3 Communal Amenity National Cycle route & Access Road PLOTS 2 - 7PLOT 15 PLOT 19 PLOTS 16 - 18 House Type 3 & 3CHouse Type 5 House Type 3B Deep reveal for windows 6 Loading Bay Door 7 Dark stained wooden cladding board Light weight roof tiles Indicative brick detailing Plinth Lower level Indicative brick type 2 Indicative brick type 1 1 1 1 2 2 2 2 5 4 4 4 3 3 3 3 _Street Views from Revit model
Street Eleva on Sout West - From Road/Cycle route
Street
on North West - From Communal Amenity Space House Type 1: Listed BuildingHouse Type 3 House Type 3 Residents Riverside Walk PLOT 11 PLOTS 2 - 7 PLOT 1 Material Pale!e , Features and Appearance
Proposed
Proposed
Eleva

HOUSE TYPE 1HOUSE TYPE 2HOUSE TYPE 3HOUSE TYPE 4

Kitchen Dinning/Livingr. Cloack Room Bedroom 1 Bedroom 2 Bathroom Master Bedroom En-suite Storage Garden Roof Terrace Total: Units: 8 m² 17 m² 3 m² 14 m² 12 m² 6 m² 16 m² 4 m² 3.5 m² 49 m² 12 m² 109 m² 1 Kitchen Dinning/Livingr. Cloack Room Bedroom 1 Bedroom 2 Bathroom Master Bedroom En-suite Storage Garden Roof Terrace Total: Units: 8 m² 17 m² 3 m² 14 m² 12 m² 6 m² 16 m² 4 m² 3.5 m² 26 m² 12 m² 109 m² 1 Kitchen Dinning/Livingr. Cloack Romm Bedroom 1 Bedroom 2 Bathroom Master Bedroom En-suite Storage Garden Roof Terrace Total: Units: 8 m² 17 m² 3 m² 14 m² 12 m² 6 m² 16 m² 4 m² 3.5 m² 20-50 m² 12 m² 109 m² 9 Kitchen /Dinning/ Livingroom Bedroom 1 Bathroom Garden 36m² 12 m² 5 m² 26 m² Bedroom 2 Master Bedroom Bathroom Storage Total: Units: 12 m² 12 m² 5 m² 3 m² 102 m² 1 Privacy screen Opaque Glazing Roof Terrace Open Plan Master Bedroom Living/Dining Area open to Private Garden Recessed Access Refuse Store

CranbrookRoad

EASTERN AVENUE | Residental

Stage: Constructon

Locaton: Eastern A enue, London, U.K

Design Architect: Do etail

Constructon Architect: SBA

Client: Guildmore L.T.D

Site Area: 669m² (0.0669Ha)

Eastern Avenue

DESIGN:

Do etail Architects are the designers of this building. The proposal consists of 25 ats, of hich no. 1 bed, no. 2 bed ats no. 3 bed ats.

DEVELOPMENT OF THE EXTERNAL FACADE:

SBA is commissioned to build the fa ade and external elements of the building

SBA ta es o er the pro ect hen the constructon of the building has already begun. Therefore parts of it, li e the concrete structure and steel frame already exist on site. SBA reali es a sur ey of the existng elements and adapts any or accordingly along ith referencing the appro ed planning documents.

A BIM 3d model is used to coordinate both the design and the constructon management.

The designed facades combine a ariety of openings and outside amenity spaces, such as pri ate balconies, terraces and inter gardens.

A mixture of di erent fa ade systems li e bric or , insulated render and rain screen cladding are used to punctuate di erent sectons of the building.

1 2 2a 3 5 6 4 8 A B C D E F G H J A B C D E F G H J 1 2 2a 3 5 6 4 8
_Revit Model: Rear ast levaton _Revit Model: Front ast levaton

RESIDENTIAL DEVELOPMENT FOR AGRICULTURAL WORKERS

| Mixed Use

Educa!onal Project

Loca!on: Almeria, Spain

Designer: Maria Boyer

Site Area: 281453m² (28.1453Ha)

Mixed use development in Almeria, Spain:

A large mul -use building is envisioned, to accommodate thousands of people who are currently vulnerably housed.

The proposed loca on is a rural farming area in the South of Spain. The design changes the previously low-rise nature of the surrounding area by introducing a high-rise scheme.

A high-density development is suggested in order to reduce the footprint of the construc on. Therefore a new green area is possible on the site. A mixed-use program is included to ensure quality of urban life

The ver cal development would be self-sustained, genera ng the most of the energy and processing its waste. It would need its own internal transport system. The junc ons of which would be ar culated with terraces and gardens to encourage a sense of space. An urban space is reproduced inside the building interspersed with leisure facili es and gardens along with viewing plaÅorms to exploit the views.

The project is an example of a building that combines living, working and enjoying life in one loca on. The aim is not to create separate zones for residen al, and the other uses. The project açempts to demonstrate that high-density or high-rise living does not necessarily mean overcrowding or hardship. Rather it can lead to an improved quality of life.

Turn static files into dynamic content formats.

Create a flipbook
Issuu converts static files into: digital portfolios, online yearbooks, online catalogs, digital photo albums and more. Sign up and create your flipbook.