Marcus van Vuuren Architecture Portfolio (2021-2023)

Page 1

/// architecture
portfolio
Marcus van
Vuuren
2021 - 23

Marcus van Vuuren

marcusvanv@gmail.com
0439183828

Education

Bachelor of Biomedical Science

University of Queensland

2017 - 2019 (Graduating with a Credit)

Commenced Doctor of Medicine in 2020

Bachelor of Architectural Design

University of Queensland

2021 - 2023 (Graduated with a GPA of 6.565)

Dean’s List (GPA <6.5) 2021, 2022, 2023

Employment

Production Manager (Kustomize It)

Produce and design custom garments and merchandise

Ensure quality control and timely production

Inventory and dispatch

Machine maintenance

Research Assistant (UQ)

360 degree photography on construction sites

Construction of virtual teaching environments

Documentation of specific construction techniques

Reading of construction documents

Volunteering

EAIT Ambassador (UQ)

Representative for the Architecture faculty at UQ

Run workshops for school students to introduce design thinking

Generate interest in the field of archtiecture in future students

Provide tours of the facilities

Skills

Adobe Photoshop

Adobe Illustrator

Adobe InDesign

Autodesk Revit

Grasshopper Enscape
Rhinoceros 3D

New UQ School of Architecture

& Flood Resilience Centre

Indigenous Arts Centre

//contents
Gallery Gununa
006 012 018
West End Abstract Eco-Cafe CBD New School of Architecture Brisbane’s Most Runnable Street 024 028 030

//new uq school of architecture

Development through Tectonics & Precision

Coordinator: Dr Kristina Knox

Date: 24/10/23

The goal for the proposed new School of Architecture is to create a learning environment which, rather than being an insular private experience, opens the students up to the archi tecture and environment of the city around them. By taking advantage of the height of the towers and specific geometry of the floorplates as the two distinct towers ascend, views of the city skyline, the river and UQ’s famous sandstone Great Court are framed in the learning spaces.

The courtyard acts as the void between the two major structures, shaped by the connecting bridge walkway. Central circulation around the courtyard encourages connection between students as well as the faculty. This ensures visual connection between horizontal and ver tical circulation at all times to allow a constant understanding of the building and its current users for students.

The view to the North aims to frame the silhouette of the Brisbane City skyline that is visible above the hill across the river, connecting the library and 1st year studio to the city beyond the campus. The view to the West visually highlights the sandstone centre of the UQ campus, connecting students in the studio to the heritage and materiality of the campus.

The circulation, both vertical and horizontal, occurs centrally around the courtyard. This allows students to see their peers as they travel through the facility and wait for classes, creating a connection between staff, students and the building itself. The East facing studio provides a framed view of the river and Eleanor Schonell Bridge, connecting visitors to the natural aspects of Brisbane and its transportation network.

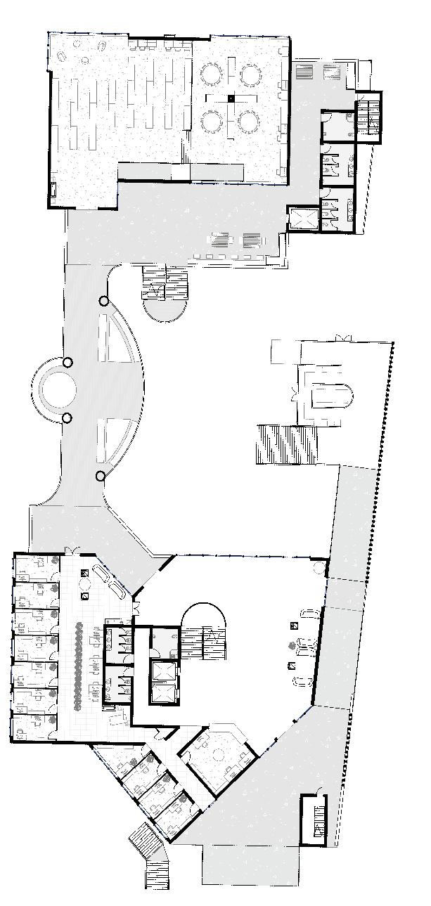
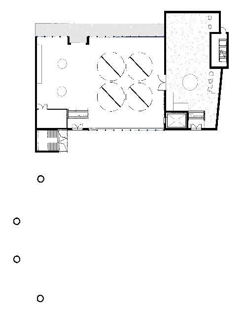
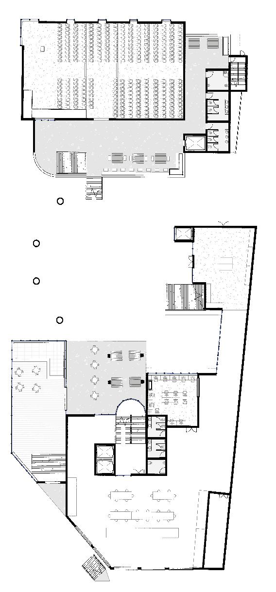
6
8 Visual Lab Workshop Cafe Exhibition Lecture Theatre Staff Library Lobby ground 1 ground 2 level 1
9
Yr Studio
Staff HDR Lobby Studio 1 Computer Lab Studio 2 Collab level 2 level 3 level 4 level 5
1st
Rooftop
10 0m 20m 10m 5m
north elevation (external) north elevation (inside courtyard)
11
connection to campus (west view) connection to city (north view) connection to faculty (central view) connection to river (east view)

//gallery & flood resilience centre

Preservation through Memory & History

Coordinator: Dr Aparna Datey

Date: 27/10/22

The aim of the flood resilience gallery was to create a space on the river at the University of Queensland that educates about the river, its history and the future importance that it has to the city of Brisbane. To achieve this, two goals were denoted during the design phases: to use the architecture to allow the river itself to communicate its story and to connect the isolate walkway across the bridge to the network of nodes that are planned to be constructed along the river.

The goal of highlighting the river as a piece of art, always on display and changing in the gallery, was achieved in a number of ways. The use of concrete for the major construction material allows the pigments of the river to stain the exposed walls, showing the progression of tides and flooding over time. Concrete extrusions on the exterior and the internal river passage are designed to capture and amplify the sounds of the flowing water.

The connection between the bridge and the river lies at the core of the design philosophy. The aim is to change this portion of the campus from a zone of transportation to a point of interest. The system of circular ramps downward emulates the downwards directionality of water, furthering the connection of visitors with the river. The ramp system guides visitors to constantly cross the river that travels through the gallery, educating and binding the experience to the water.

The interior experience further builds upon the theme of the gallery being a reflection of the river and its conditions. Interior walls are also designed to be stained, showing tides and flooding events of the past. Light wells that travel through the gallery vertically create an internal light gradient, as the light wells decrease in quantity at the lower floors. This emulates the gradient created from the pigment staining of the river on the exposed walls.

12
13
west elevation north elevation
14
15
ground level 1 level 2 level 4/bridge
16
17
south facing section east facing section east section

//gununa indigenous arts centre

Engagement through Client & Culture

Coordinator: Ms Caroll Go-Sam

& Dr Kelly Greenop

Date: 23/05/23

The proposed design was for an Arts and Cultural Centre in the remote indigenous island community of Gununa, Mornington Island. The pieces produced by the artist are important for funding the community as well as telling their unique stories, hence the centre is an essential part of the township.

The goal of the proposed new design was to facilitate connection to Country, allowing the artists to have a physical connection to what they are painting, while also surrounding a central gathering space to be used by the community at large and encourage future engagement with the arts. This connection to the surrounding environment and the internal gathering space, in conjunction with an angled grid of tiered privacy, creates a space to facilitate production of art and connection to culture. Careful consideration into cultural aspects and gender separation has been implemented into the layout and design.

A harsh tropical climate, as well as the constraints of the limited electrical grid in the township of Gununa made passive design and climatic factors a major design consideration. This was investigated through detailing, particularly in the artist studios that are not air conditioned. Natural ventilation, shading overhangs, material choices and construction techniques as well as utilisation of renewable energy technology were all considered and communicated through detail studies.

18
19
southeast elevation section through courtyard
20
21
men’s art studio dance area & outdoor gathering area main entry gallery entry & kitchen
22
vernacular architecture detail
southwest elevation
23 climate control detail

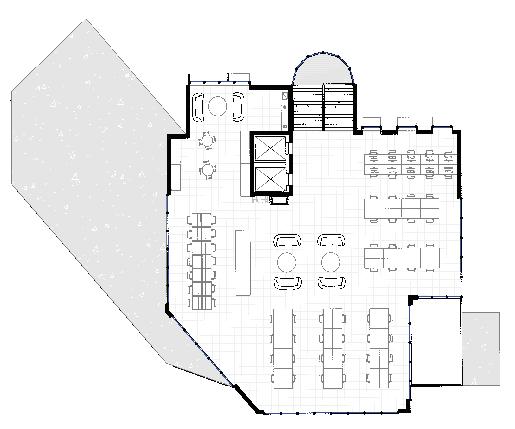
//west end abstract eco-cafe

Abstraction through Plan & Section

Coordinator: Frederico Fialho

Date: 26/10/21

The design process centred around analysing the existing physical site features and deriving the basic structure for an eco-café through the process of abstraction. A series of abstraction studies were conducted, taking existing elements to produce the design. Each stage of abstraction was first drawn and 3D modelled before being constructed as a basic physical model.

The first abstraction series aimed to represent the existing site as a purely linear series of joined lines, varying in weight to represent physical elements such as surrounding buildings, fences and vegetation. This linear product was then further abstracted upon, adding surfaces to represent the shadows that are cast by the physical site elements. The final product from the series of abstractions was used to derive the eco-café. The challenge was to find volumes in the structure to use as spaces in the final design, with only minor changes to the form being allowed.

24
26
west elevation
27
two dimensional three dimensional model

new school of architecture

Building through Integration & Detailing

Coordinator: Dr Paul Matthew

Date: 16/11/23

A new building for the School of Architecture was proposed in the Brisbane CBD. The design process for the new building occurred over three weeks, hence was supported and accelerated through group work and three allocated practises to use as inspiration. Once the basic designs was established, groups further developed through detailing analysis.

At the core of the proposed new School of Architecture is the idea of students achieving growth and development as they ascend the building. This is represented by the circular podium levels, signifying the trunk of a tree, housing the first- and second-year students.

The tower features large salient external planter boxes, representing the foliage of a tree and signifies the growth and development of the students throughout their study. The tower houses the learning areas for more senior students, including masters’ and PhD students.

Views of the surrounding buildings, as well as exposed structural elements such as the CLT columns in the new school itself, are intentionally framed to provide examples and inspiration to the students.

28 600 x 600 GLT Column Metal Attachment Plate (Mounted into Concrete Slab) Mounting Dowls Unitised Heat Strengthened Double Glazed Laminated Glass with Low E Coat (Unitised Aluminium Framed Glazed panels are assembled off site, allowing units to be easily joined into a curtain system on site) 25mm Thick Panes of Glass in Glazing System Aluminium Glazing Framing Aluminium Glazing Footing Angled Aluminium Door Footing Heat Strengthened Double Glazed Laminated Glass with Low E Coat with Aluminium Frame and Handle 600x600mm Floor Panel 250 mm Computer Floor Steel Spacer 300 mm Reinforced Concrete Transition Plate Slab Steel Reinforcement 560 x 500 mm Reinforced Concrete Beam (Double the depth of other beams to fascilitate concrete to CLT transitions) Treated Timber Decking Steel Joist to Mount Timber Decking Polyurethane Waterproof Membrane 1000 x 560 mm Reinforced Concrete Column
//cbd

Biophilia , Biomi mi c

tnemevoMgnitaerC

Pri

29
HOKARCHITECTS KOICHITAKADA VOKES&PETERS
ert i c al M o v ,tneme tsartnoC
Heritage , V
r y
, ,ytilibaniatsuS
Public
vat e I nt e r f a c ,e ,dirG stnemelEgnitaepeR

//brisbane’s most runnable street

Advanced Environmental Analysis

Enhanced by Artificial Intelligence

Coordinator: Dr Dan Lou

Date: 07/06/23

Machine learning is a controversial yet powerful tool in all fields of design. While AI driven design and art is rightfully frowned upon, machine learning can be effectively and ethically utilised to conduct mass site analysis. This project aimed to harness Google Maps API and Google Street View imagery to find the “most runnable street” in the Brisbane CBD.

Machine learning was used to analyse and collate data of the streets in question, including solar exposure, number of street crossings and proximity to cafes. This data was then visualised on a map through the use of Grasshopper in Rhino. Similarly, screenshots from Google Street View were gathered and processed through a machine learning algorithm in Grasshopper. This allowed percentage of greenery, average footpath width and number of pedestrians. This data could then be added to the visualisation.

Data was then used to conducted thorough site analysis, using the criteria to define the best street through the CBD to run. This result was also tested by a physical run through the top three contending streets.

30
script
grasshopper
31
results

Turn static files into dynamic content formats.

Create a flipbook
Issuu converts static files into: digital portfolios, online yearbooks, online catalogs, digital photo albums and more. Sign up and create your flipbook.
Marcus van Vuuren Architecture Portfolio (2021-2023) by marcusvanv - Issuu