CURSO

Page 1

PRESUPUESTO

3Q-22
ESTUDIANTE: MARCOS CORTES GARCIA

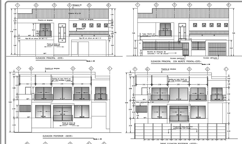
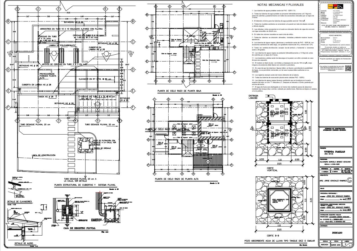
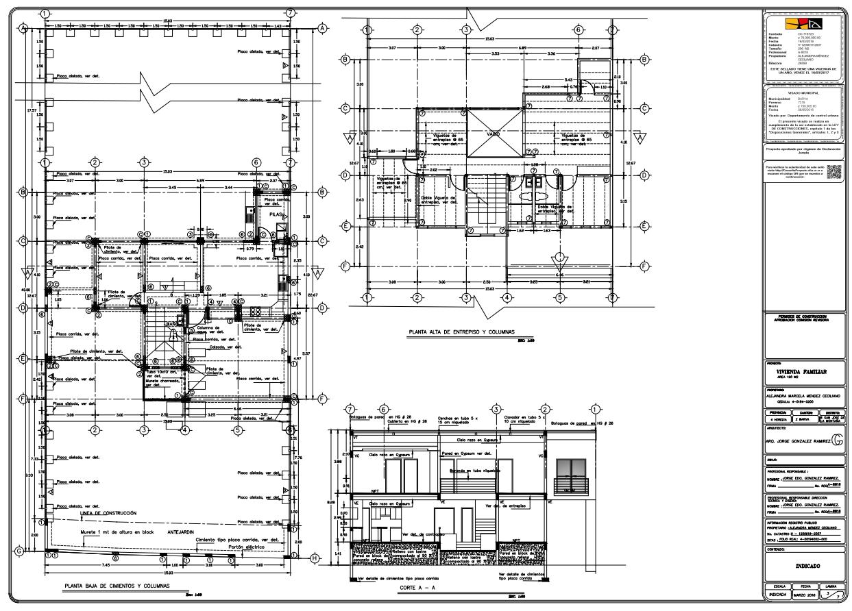
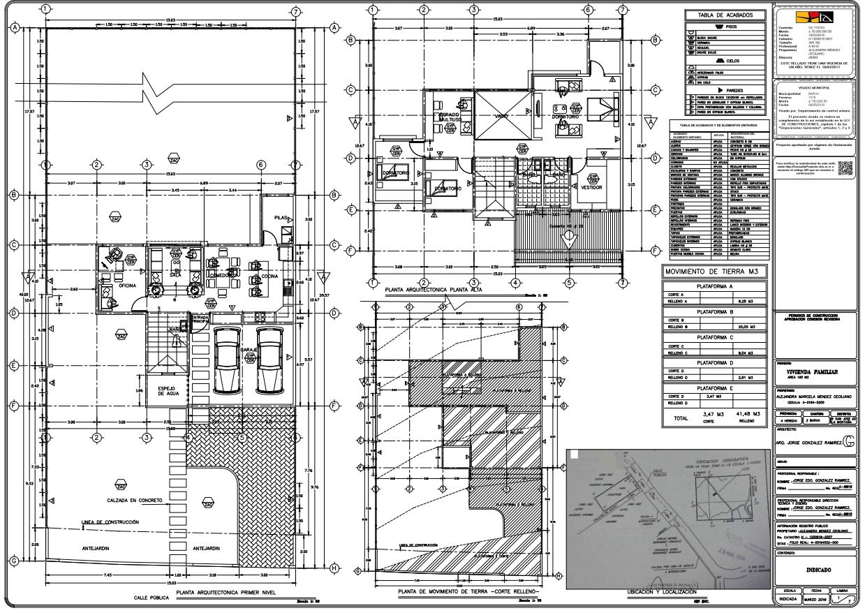
Planos del Proyecto

Casa habitacional 2 niveles
ALTURA 0,67 mt AREA 0,34 MT2 BASE 0,5 mt LONGITUD 69,3 ML VOLUMEN 23,2 M3 ABULTAMIENTO 6,96 M3 VOLUMEN TOTAL 30,18 M3 LONGITUD 12,07 ABULTAMIENTO 2,07 30 -35 3 0,3 9,89 0,35 4,1 1,3 3 8,96 5,6 2,5 6,46 ZANJA CALCULO TIERRA ALTURA 0,2 mt Area Cimiento 0,10 MT BASE 0,5 mt Longitud de placa 69,3 ML Volumen de concreto 6,9 M3 Cemento 53,03 53 sacos M3 Arena 2,96 3 M3 Piedra 5,92 6 M3 69,3 CALCULO DE CIMEIENTOS CIMIENTO PLACA CORRIDA 210 KG/CM2 Longitud de Cimiento Calculo Cimientos
69,3 ALTURA 0,05 mt Area 0,03 BASE 0,50 mt Longitud 1,10 Volumen 0,03 Area * Metro Lineal 1,73 Cemento 10,60 11 sacos Arena 0,79 1 m3 Piedra 1,58 2 m3 CALCULO CONCRTEO POBRE CONCRETO POBRE RESSISTENCIA 175 Longitud de Cimiento 64 Sacos 4 m3 7 m3 Total de Cemento Total de Arena Total de Piedra Total de Material
4,37 0,486 0,972 105
5,10 0,472 0,944 140
6,12 0,456 0,912 175
7,65 0,427 0,854 210
0,756 245 Resistencia a 28 dias (kg/cm2) Tabla de dosificación para concreto
Arena m3 Piedra m3 Calculo Cimientos
1.-3.-6
1.-2,5.-5
1.-2.-4
1.-1,5-.3
1.-1.-2 10,2 0,378
Dosificación concretoarena-piedra Cemento sacos
# 3 1,16 # 4 1,18 # 5 1,20 # 6 1,22 # 7 1,24
DOBLES 1 C 0,10 91,65 92
DOBLES 2 C 0,10 159 # 3 Total de Varillas
0,45 0,20 0,15 0,50 0,45 0,20 0,50 Calculo para Varilla Horizontal Cant de Varillas * Largo de Cimientos * Factor largo de varilla Factores para varillas Horizontal Factor de Varilla Vertical 1,40 0,15 Calculo Varilla Horizontal
Cantida de Varilla Horizontales 5 69,32 ml Formula 1,16 6 m Formula
69,32 ml 6 m 1,40 4,29 4 Pedasos de v 347 20 366,6
varillas#3
Varillas Largo de varilla 6m Largo de Cimientos Espacios entre aros Largo de Varilla para 1 aro Cantidad de aros en 1 varilla Cantidad de Espacios entre aros 67 ml Cantidad total de Varillas para aros Calculo de Varilla para placa Corrida Cantidad de tramos Cantidad de aros totales Largo de Varillas Facor de varilla Largo de Cimientos 67,01
2,6 ml Altura 0,12 Cantidad Columas base 0,40 10 Altura 0,12 Cantidad Columas base 0,40 7 Altura 0,24 Cantidad Columas base 0,40 1 Altura 0,80 Cantidad Columas base 0,12 3 Altura 0,40 Cantidad Columas base 0,12 1 Altura 0,12 Cantidad Columas base 0,40 10 Altura 0,10 Cantidad Columas base 0,10 24 Tubo Cuadrado Hierro Negro Pintdo Aros # 3 @ 0,15 m Columa Tipo # 5 Aros # 3 @ 0,15 m Columa Tipo # 6 Aros # 3 @ 0,20 m Columa Tipo # 3 Aros # 3 @ 0,15 m Columa Tipo # 4 Aros # 3 @ 0,15 m Columa Tipo # 1 Aros # 3 @ 0,15 m Columa Tipo # 2 COLUMNAS Calculo de Volumen de Concreto Longitud de Columna 1.-3.-6 4,37 0,486 0,972 105 1.-2,5.-5 5,10 0,472 0,944 140 1.-2.-4 6,12 0,456 0,912 175 1.-1,5-.3 7,65 0,427 0,854 210 1.-1.-2 10,2 0,378 0,756 245
de dosificación para concreto
concreto-
Arena m3 Piedra m3 Resistencia a 28
(kg/cm2)
Tabla
Dosificación
arena-piedra Cemento sacos
dias

Calculo de Volumen de Concreto Columna Tipo # 1

ALTURA 0,12 mt Area Columna 0,05 MT

BASE 0,40 mt Longitud deColumna 2,6 ML

Volumen de concreto 0,1248 M3 Cantida de columnas 1,248

Cemento 9,55 10 sacos Arena 0,53 1 M3 Piedra 1,07 1 M3

Calculo de Volumen de Concreto

Columna Tipo # 2

ALTURA 0,12 mt

Area Columna 0,10 MT

BASE 0,40 mt Longitud deColumna 2,6 ML

doble 2 Volumen de concreto 0,2496 M3 Cantida de columnas 1,747 Cemento 13,37 13 sacos Arena 0,75 1 M3 Piedra 1,49 1 M3

Calculo de Volumen de Concreto

Columna Tipo # 3

ALTURA 0,24 mt Area Columna 0,10 MT

BASE 0,40 mt Longitud deColumna 2,6 ML

Volumen de concreto 0,2496 M3 Cantida de columnas 0,250 Cemento 1,91 2 sacos Arena 0,11 1,00 M3 Piedra 0,21 1,00 M3

Calculo de Volumen de Concreto

Columna Tipo # 4

ALTURA 0,80 mt Area Columna 0,10 MT

BASE 0,12 mt Longitud deColumna 2,6 ML

Volumen de concreto 0,2496 M3 Cantida de columnas 0,749

Cemento 5,73 6 sacos Arena 0,32 1 M3 Piedra 0,64 1 M3

Calculo de Volumen de Concreto

Columna Tipo # 5

ALTURA 0,12 mt Area Columna 0,05 MT

BASE 0,40 mt Longitud deColumna 2,6 ML

Volumen de concreto 0,1248 M3 Cantida de columnas 0,125 Cemento 0,95 1 sacos Arena 0,05 0,05 M3 Piedra 0,11 0,11 M3

Calculo de Volumen de Concreto

Columna Tipo # 6

ALTURA 0,12 mt Area Columna 0,05 MT

BASE 0,40 mt Longitud deColumna 2,6 ML

Volumen de concreto 0,1248 M3 Cantida de columnas 1,248

Cemento 9,55 10 sacos Arena 0,53 1 M3 Piedra 1,07 1 M3

2,6
2,6
2,6
Cantidad
Cantidad Viga
7
Cantidad
0,10 Cantidad Viga
3 Altura 0,20 Cantidad Viga
1
2,6 ml
ml
ml 2,6 ml
ml Altura 0,40
Viga Aros # 3 @ 0,20 base 0,12 10 Altura 0,40
Ganchos # 3 @ 0,15 base 0,15
Altura 0,20
Viga Aros # 3 @ 0,20 base 0,12 1 0,10 Altura
Aros # 3 @ 0,20 base 0,12
Aros # 3 @ 0,20 base 0,20
Long de Viga Corona Long de Viga Medianera VIGA CORONA VIGA DE ENTREPISO VIGA TAPICHEL VIGA BANQUINA VIGA MEDIANERA Calculo de Volumen de Concreto Vigas
VIGAS
Long de Viga Entrepiso Long de Viga Tapichel Long de Viga Banquina

Calculo de Volumen de Concreto Vigas Viga Corona

ALTURA 0,40 mt Area Viga 0,05 M2

BASE 0,12 mt altura de Viga 2,6 ML

Volumen de concreto 0,1248 M3 Cantida de viga 1,248 m3

Cemento 9,55 10 sacos

Arena 0,53 0,05 M3 Piedra 1,07 1,07 M3

Calculo de Volumen de Concreto Vigas Viga Entrepiso

ALTURA 0,40 mt Area Viga 0,06 M2

BASE 0,15 mt altura de Viga 2,6 ML

Volumen de concreto 0,1560 M3 Cantida de viga 1,092

Cemento 8,35 8 sacos

Arena 0,47 0,05 M3 Piedra 0,93 0,93 M3

Calculo de Volumen de Concreto Vigas Viga Tapichel

ALTURA 0,20 mt Area Viga 0,04 M2

BASE 0,22 mt Altura de Viga 2,6 ML

Volumen de concreto 0,1144 M3 Cantida de viga 0,114

Cemento 0,88 1 sacos

Arena 0,05 0,1 M3

Piedra 0,10 0,1 M3

Calculo de Volumen de Concreto Vigas Viga Banquina

ALTURA 0,10 mt Area Viga 0,01 MT

BASE 0,12 mt Longitud de Viga 2,6 ML Volumen de concreto 0,0312 M3 Cantida de viga 0,094

Cemento 0,72 1 sacos Arena 0,04 0,05 M3 Piedra 0,08 0,08 M3

Calculo de Volumen de Concreto Vigas Viga Medianera

ALTURA 0,20 mt Area Viga 0,04 MT

BASE 0,20 mt Longitud de Viga 2,6 ML Volumen de concreto 0,1040 M3 Cantida de viga 0,104

Cemento 0,80 1 sacos Arena 0,04 0,05 M3 Piedra 0,09 0,09 M3

1.-3.-6 4,37 0,486
105 1.-2,5.-5 5,10
140 1.-2.-4 6,12
175 1.-1,5-.3 7,65
210 1.-1.-2 10,2
Tabla
para
Dosificación concretoarena-piedra
0,972
0,472 0,944
0,456 0,912
0,427 0,854
0,378 0,756 245 Resistencia a 28 dias (kg/cm2)
de dosificación
concreto
Cemento sacos Arena m3 Piedra m3 Calculo de Volumen de Concreto
CALCULO DE AROS COLUMNAS PULGADA 0,025 2,6 ml Altura 0,12 Cantidad Columas 0,07 Aros # 3 @ 0,15 base 0,40 10 0,35 Altura 0,12 Cantidad Columas 0,07 Aros # 3 @ 0,15 base 0,40 7 0,35 Altura 0,24 Cantidad Columas 0,20 Aros # 3 @ 0,15 base 0,40 1 0,35 Altura 0,80 Cantidad Columas 0,75 Aros # 3 @ 0,15 base 0,12 3 0,07 Altura 0,40 Cantidad Columas 0,35 Aros # 3 @ 0,15 base 0,12 1 0,07 Altura 0,12 Cantidad Columas 0,07 Aros # 3 @ 0,15 base 0,40 10 0,35 Altura 0,10 Cantidad Columas base 0,10 24 Factor de Varilla Vertical 1,40 Longitud de Columna Columa Tipo # 1 Columa Tipo # 2 Columa Tipo # 6 Tubo Cuadrado Hierro Negro Pintdo Columa Tipo # 3 Columa Tipo # 4 Columa Tipo # 5 # 3 1,16 # 4 1,18 # 5 1,20 # 6 1,22 # 7 1,24 Factores para varillas Horizontal

Altura de Columna

Largo de varilla 6m

Calculo de aros columna tipo 4

Calculo de aros columna tipo 1

Cantidad de aros en 1 varilla

Cantidad de Espacios entre aros Espacios entre aros Varillas por columna Cantidad total de Varillas para aros

Longitud de Aro ml Total de Varillas

Tramos

DOBLES 1 C 0,10 31,778 32 varillas#3 DOBLES 2 C 0,10 32 # 3

Calculo de aros columna tipo 2

Longitud de Aro ml

Cantidad de aros en 1 varilla

Tramos 2,08 2,9 3 Pedasos de v 17 1 18 12,71 DOBLES 1 C 0,10 88,978 89 varillas#3 DOBLES 2 C 0,10 89 # 3 Total de Varillas

Varillas por columna Cantidad total de Varillas para aros

Longitud de Aro ml Total de Varillas

1,84 3,3 3 Pedasos de v 17 1 18 5,62

DOBLES 1 C 0,10 16,867 17 varillas#3 DOBLES 2 C 0,10 17 # 3

Calculo de aros columna tipo 5

Longitu de Aro ml

Cantidad de aros en 1 varilla Cantidad de Espacios entre aros Espacios entre aros 1,04 5,8 6 Pedasos de v 17 1 18 3,18

DOBLES 1 C 0,10 3,178 3 varillas#3 DOBLES 2 C 0,10 3 # 3

Longitud de Aro ml

Cantidad de aros en 1 varilla

Cantidad de Espacios entre aros Espacios entre aros Tramos Varillas por columna Cantidad total de Varillas para aros 1,30 4,6 5 Pedasos de v 17 1 18 3,97

Cantidad de Espacios entre aros Espacios entre aros Tramos Varillas por columna Cantidad total de Varillas para aros Total de Varillas

Calculo de aros columna tipo 6

Largo de Varilla para 1 aro ml

Cantidad de aros en 1 varilla Cantidad de Espacios entre aros Espacios entre aros Tramos

Cantidad de aros en 1 varilla Cantidad de Espacios entre aros Espacios entre aros Tramos Varillas por columna Cantidad total de Varillas para aros Total de Varillas 1,04 5,8 6 Pedasos de v 17 1 18 3,18

Varillas por columna Cantidad total de Varillas para aros Total de Varillas

2,6 ml 6 m 1,04 5,8 6 Pedasos de v 17 1 18 3,18
DOBLES 1 C 0,10 3,972 4 varillas#3 DOBLES 2 C 0,10 4 # 3 Calculo de aros columna tipo 3
DOBLES 1 C 0,10 31,778 32 varillas#3 DOBLES 2 C 0,10 32 # 3
177 #3
CALCULO DE AROS COLUMNAS
Total de Varillas
ENTREPISO 52 VIGAS 2,5 VIGUITAS @ 0,65 m 20,8 21 ML Viguetas 140,14 ml 39 m2 0,6 0,15 0,75 vigueta de concret0 Volumen de concreto losa de entrepiso Cantidad de laminas HG Cantidad de laminas HG Area Util de lamina HG Area de piso Cantidad de malla electrosoldoda 49,34 4 1,18 6 38,8141333 39 49,34 2 1,16 6 19,0781333 19 Largo de varilla Total de VH # 3 Largo de varilla Total de VH # 4 ML de entrepiso Cantida de Varillla # 3 Factor varila # 3 CALCULO DE VARILLA HORIZONTAL ML de viga entrepiso Cantida de Varillla # 4 Factor varila # 4 # 3 1,16 # 4 1,18 # 5 1,20 # 6 1,22 # 7 1,24 Factores para varillas Horizontal
PARED DE MAMPOSTERIA 0,4 0,2 0,4 0,2 PADED PRIMER PISO Block 15*20*40 Area de block Block 12*20*40 Area de block PADED SEGUNDO PISO 54,31 63,14 117,45 0,80 22 31 Tramos Tramos # 3 Refuerzo Vertical @ Metros Lineales de de Pared Calculo de Cantidades de Elementos Verticales Primer y Segundo Nivel Se contempla la reduccion de buques de ventana y puertas ML 0,40 0,40 2,20 2,60 0,85 Varilla Verticales Altura de Pared Segundo N Altura de Pared primer N Altura de Cimientos Altura de Viga Corona ML Altura de Elementos Verticales Primer y Segundo Nivel Altura desde los cimientos hasta la viga Corona 6,45 Altura de Viga entrepiso 117,45 0,40 4,80 Altura de 2 paredes 29 0,6 8 Varillas Horizontales Varillas ML de Pared, 2 paredes Traslape Max 3 Hildas cd hilada es de ,20 Varillas Horizontales Prmer Nivel 67,89 89,89 90 Elementos Verti Segundo Nivel 78,93 109,93 110 Elementos Verti 200 6 Largo de Varilla Total de Elementos Verticales Total de Elemenos Verticales Total de Elemenos Verticales

BASE

Pared
2,6 mt Area de Pared 141 MT
ALTURA
54,31 ml Area de Block 0,08 ML
de
M3 Pared
2,2 mt Area de Pared 139 MT
63,14 ml Area de Block 0,08 ML Cantida de Bloks 1736 M3 3501 280,114 PRIMER PA 141,206 SEGUND PA 138,908 PARED DE MAMPOSTERIA PRIMER PISO PARED DE MAMPOSTERIA SEGUNDO PISO Total de Bloques M2 DE PARED Cantidad de Varillas Verticales # 3 301 Cantidad de Varillas Horizontales # 3 182 Kgs / m 0,249 0,56 182 0,994 301 1,552 6 4% 611,52 24,4608 kg 1011,36 40,4544 kg Factor de Crecimiento N° 4 (1/2) Tamaño de Varilla N° 5 (5/8) Calculo de Alambre Varilla Horizontal Varilla Vertical Tabla para Calculo de Alambre Tipo de Varilla N° 2 (1/4) N° 3 (3/8) Varilla Horizontal Varilla Vertical # 3 1,16 # 4 1,18 # 5 1,20 # 6 1,22 # 7 1,24 1,4 Varilla # 3 0,40 cm Varilla # 4 0,50 cm Varilla # 5 0,60 cm Varilla # 6 0,70 cm Factores para varillas Horizontal Factor de Varilla Verical Traslape Varilla Horizontal
Cantida
Bloks 1765
ALTURA
BASE
Area de Celda 0,0132 m2 0,080 0,165 Altrura 4,80 ml 0,110 0,165 0,06 ml 0,160 0,165 Cantid Elem Verti 200 12,66 m3 block altura 0,20 CONTRAPISO base 0,40 ml parede 54,31 largo de Blok 2 0,2 0,4 Canti blocks 135,775 136 Canti Celdas 2 272 Areas d Celd 4,9286325 4,93 m2 0,9857265 0,99 1.-3.-6 4,37 0,486 0,972 105 1.-2,5.-5 5,10 0,472 0,944 140 1.-2.-4 6,12 0,456 0,912 175 1.-1,5-.3 7,65 0,427 0,854 210 1.-1.-2 10,2 0,378 0,756 245 Cemento 104,39 104 sacos Arena 5,83 6 M3 Piedra 11,65 12 M3 15*20*40 20*20*40 TOTAL M3 DE CONCRETO PARA CELDAS 13,65 Tabla de dosificación para concreto Dosificación concretoarena-piedra Cemento sacos Arena m3 Piedra m3 Resistencia a 28 dias (kg/cm2) Seccion de Celda Sección de Celdas Relleno De Celdas Tipo de Bloque 12*20*40

REPELLO DE PARED

m2 pared 280,114 Cemento 67,23 67 sacos Arena 12,61 13 M3 CAL 1983,21 1983 KG

Tabla de maetriales por m2 de repello Mortero m3 cemento sacos Arena m2

Cal kg

Una cara 0,015 0,12 0,0225 3,54 Dos Caras 0,030 0,24 0,045 7,08

Area de Techo 190 m2

Cubierta

Espesificaciones

Lamina HG # 28

Botaguas HG 28 Canoa HG # 28

Espesificaciones

Lamina HG # 28

Botaguas HG 28 Canoa HG # 28

Clavador RT 3/16 @ 0,85 cm

Clavador RT 3/16 @ 0,85 cm

Cercha tubo 5x15 cm en 1:80 HG 3 m

Cercha tubo 5x15 cm en 1:80 HG 3 m 15,03 12,67 8,10 35,80 ml 1,83 0,12 20,93567251 21 Pieza de Bota agua Canoa 15,03 6,46 21,49 ml largo de canoa 6 3,581666667 4 canoas de 6

Ml de bota Agua 28 HG

Area techo 190 Cubrimiento Util 1,19 Cantidad de Lami 159,6639 160 Cantidad de tornillos de neopreno Cant torni 28 11 TOTAL 1756,30252 1756 Distancia techo 1 15,03 m Dis ent Clavadores 0,85 m 18 factor 1 19 Distancia techo 2 10,47 196 ml tamaño lamina 6 32,6007059 Total tubos RT 33 Largueros lado a 15,03 distancia de larg 3 5,01 factor 1 6,01 lado b 9,73 metros lineales 58,4773 ML 6 9,746217 Total de tubos 10

Cantidad de RT 3/16 @ 0,85 Clavadores Cantidad de laminas Esmaltatas HG #28
Cubierta
PARED LIVIANO Alt de Pared 2,2 m ML de Pared 63 ml Liviano Segundo Nivel Pared Exterior tipo Blanco Pared Exterior tipo Densglass 63 63 Durock 53 11,16 24 31 Laminas de Durock Puertas + ventanas Tramos Ml 1,22 altura 2,44 base Lamina Medida Track ml*04/3,05 53 ml 2 arriba y abajo 3,05 formula 34,75 35 tracks ml/0,4 53 ml 0,4 formula 132,5 132,5+24 24 espacios 156,5 157 clavos Clavos de Acero 53 ml 11,16 41,84 ml -P y V 41,84 ml Studs calibre 20 puertas y ventanas ml* h 41,84 ml 2,2 h 92,048 m2 92 m2 Lamina de Durock b*h 1,22 altura 2,44 base 2,98 m2 lamina Lamina de Durok medida Cant de laminas de Durock m2 / m2 lam 92,048 m2 total 2,98 m2 lamina 30,92 31 total de laminas 35 Formula 31 Cant Lam 2 Formula Tornillo Frijolito PB 35 * Cant Lam /2 Total de Tornillos PB 541 35 formula 31 Cant lamina 1082 Tornillo PB Tornillo 1 1/4 35 * cant lam 31 cant lam 7,5 Formula 45,75 Largo de rollo 5,08 5 Rollos Cinta Malla 10cm cant lam *7,5/45,75 Muro seco m2 / 4 92 m2 4 formula 23,012 23 Total Sacos ml / formula 22 Esq Pared Ext 2,2 Altura de Pare 48,4 ml 3,05 formula 15,87 16 Esquinero de pared Esquineros Plasticos pared ml / formula 26,4 ml esqui vent 3,05 formula 8,6557 9 Esqui Plasticos Ventana Esquinero de pared ml /0,40 48,4 Ml pared 26,4 Ml ventana 74,8 Total ml 0,40 Formula 187 Total tornillos Tornillo Para Esquinero
Standart 65,7 11,16 0 49 Laminas de Durock Ml Puertas + ventanas Tramos 1,22 Altura 2,44 Base 2,98 m2 Lamina Standart Ml pared standart 65,7 Altura 2,2 m2 Lam Stand 2,98 m2 de pared 144,54 144,54 m2 de pared 2,98 m2 lamina 48,503 49 Total de laminas m2 de pared / m2 lamina Total de laminas 49 Totaslde Laminas 7,5 Formiula 367,5 ml 76 largo del rollo 4,84 5 Cinta de malla de 5 cm Total de Rollos 144,54 m2 de pared 15 rendimiento 9,636 10 cubetas Pasta GYPSUM 35 Formula 49 Cant Lam 2 Formula 849 Total de Tornillos PB Tornillo Frijolito PB 35 * Cant Lam /2 Track ml*04/3,05 65,7 ml 2 arriba y abajo 3,05 formula 43,08 43 tracks ml/0,4 65,7 ml 0,4 formula 164,25 132,5+24 12 espacios 176,25 176 clavos Clavos de Acero 65,7 ml 11,16 54,54 ml -P y V 54,54 ml Studs calibre 20 puertas y ventanas 49 cant lam 7,5 Formula 45,75 Largo de rollo 7,95 8 Rollos cant lam *7,5/45,75 Cinta Malla 10cm 35 formula 49 Cant lamina 1698 Tornillo PB Tornillo 1 1/4 35 * cant lam ml / formula 65 Esq Pared int 2,2 Altura de Pare 143 ml 3,05 formula 46,89 Esquineros Plasticos pared interior y ventanas Muro seco m2 / 4 145 m2 4 formula 36,135 36 Total Sacos ml /0,40 143 Ml pared 0 Ml ventana 143 Total ml 0,40 Formula 357,5 Total tornillo Tornillo Para Esquinero
Cielo 53 Ml 3,05 Largo del Ang 17,38 Total de angulares 17 ANGULARES ML 15,03 ml lado 1 0,41 formula 37 ml * formula 10,25 Ml lado 2 375,75 ml de Furring 3,66 Larg de Furring 102,664 103 Total de Furring FURRING 10,25 Ml lado 2 1,22 Formula 8,40 ml / formula 15 ml lado 1 126,28 ml for * ml l 1 126 ml furring 3,05 Largo de cana 41,40 42 Total de Canal CANAL 101 Total m2 10,24 m2 baño 90,76 2,97 30,56 31 LAMINAS DE GYPSUM STAND Total de laminas Tamaño de Lamina m2 dormitorios 10,24 M2 baño 2,97 m2 lamina 3,45 4 LAMINAS MR Total de laminas 31 4 35 7,5 Formula 259 Ml 76 Largo de rollo 3,41 4 Rollos Laminas Gypsum Lamina MR Cinta Malla 5cm Total de laminas 35 35 2 formula 605 Tornillo Frijo PF Total de laminas total de tornillos por lamina total de tornillos por lamina 35 35 1225 Tornillo 1 1/4 Total de laminas total de tornillos por lamina total de tornillos por lamina
2,2 ml de pared 53 Interior Altura 2,2 ml de pared 65,7 116,6 Area M2 3 # manos 35 Rendimiento 9,994 10 total de Galones Pintura en Aceite Exterior 144,54 Area M2 2 # manos 40 Rendimiento 7,227 8 total de Galones Pintura latex Interior 261,14 Area M2 2 # manos 40 Rendimiento 13,057 13 Sellador Interno y Externo total de Galones
PINTURA Exterior Altura

Turn static files into dynamic content formats.

Create a flipbook
Issuu converts static files into: digital portfolios, online yearbooks, online catalogs, digital photo albums and more. Sign up and create your flipbook.