








COLLIN COLLEGE - WYLIE CAMPUS SO, DD, CO & CA
This is a brand new campus for Collin College in Wylie Texas. t consist of three main buildings and a central utility plant. The program of the buildings consist of Library, Science Labs, Campus Center, Student Center.Cafeteria and Cafe, Barnes & Nobles book store, administration offices, musical rooms and flexible space classrooms. The campus will be approximately 300,000 square feet and will accommodate more than 7,500 students. This project is currently under construction and is due to open for enrollment for Fall 2020

Contract was awarded for design of exterior and interiors, Programming, Site Planning, and Structural Design by Page. Each building on the campus has its unique character expressing the program it holds. At the same time it will contribute in forming a cohesive campus experience.
My time on this project was from Schematic Design to Construction Administration with a focus on the interior of the project. Some of my role task were as followed:
Assisted with the Interview presentation physical model
Assisted with SO drawing package
Assisted in programming and spatial layout
Assisted with DO drawing package
Participated in design meetings with internal Page team,
Coordination with Page consultants & outside consultants
Collaborated with design and BIM modeling solutions
Collaborated with material selections
Assisted with CO drawing package
Assisted with interior details
Assisted with answering RFIS's and Submittals





SUNDANCE WEST LUXURY APARTMENTS
Construction Documentation & Construction Admin.
This project was divided into two different Interior and Exterior Architects, where Page was selected to participate as Architect of Record for the Interior team. The lead designer was David M Schwartz Architects based in Washington D.C.
My responsibilities were to work with the Page team after the DD handover to coordinate the Construction Documentation phase. I participated with a small select team to synchronize the design drawings to a technical Construction Documentation level while working with consultants, design architects and Page architects. I also participated in the early Construction Evaluation of the project.
The project is a 1 2 floor multi-use existing building located a block away from Fort Worth's historic Sundance Square. The scope of the project includes a renovated apartment lobby, amenity space, newly designed typical units, penthouse units, redesigned mechanical level, and a new mechanical platform in the attic.Some of my project role task are as followed:
Participated in design meetings with internal Page team,
Coordinated with Page consultants and outside consultants
Coordinated with Design Architect
Collaborated with design and BIM modeling solutions
Collaborated with material selections
Assisted with CO drawing package
Assisted with interior details
Assisted with answering RFIS's and Submittals
Attended in some CA meetings
Attended Site visits




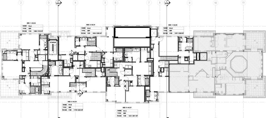
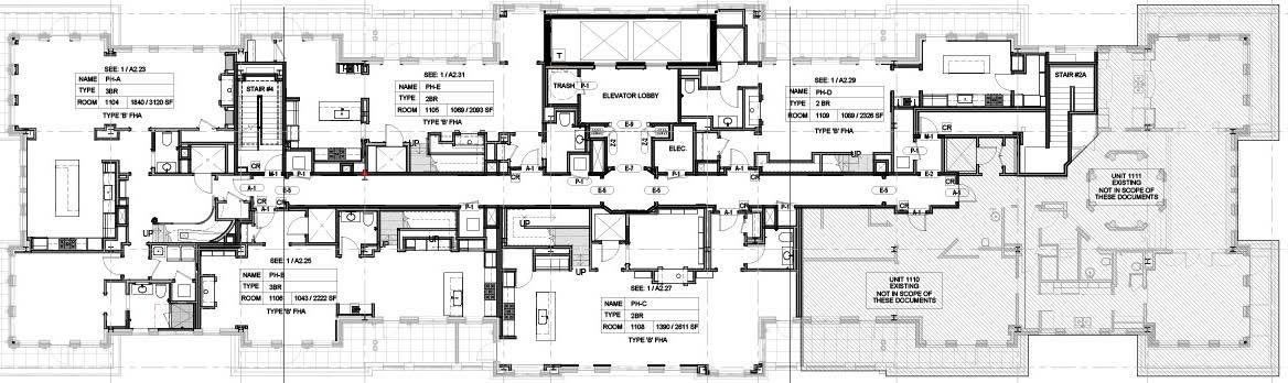
PENTHOUSES/ SPECIALTY UNITS

APARTMENT UNITS

BUILDING SECTION
Building section illustrates how the apartment units begin on level 7 and the penthouse follow above. One of the biggest challenges was to coordinate the existing building conditions with new and existing structural and MEP locations with the design layout of the apartment units, penthouses and mechanical platforms in the attic.





The design of the units were arranged into 1 5 different apartment units and 5 custom penthouse units. The inherited geometry of the building allowed for a design of 4 core units that would stack on the 4 main floors while the units at the ends varied in size. The penthouse units were designed to be multistory and situated on the top floors. The project required extensive coordination with consultants due to unknown existing conditions.


SAMMONS CENTER FOR THE ARTS
Programing & Early Schematic Design
The following drawings are a series of diagrams that were developed as a Programming study. My task was to develop a set of diagrams and massing studies for an internal discussion. The drawings illustrate the program's relationship through massing studies and demonstrate how it fits on site. All drawings were made using Revit.
PERFORMANCE SPACE PROGRAM


PROGRAM DIAGRAMS
TheProgramwasbrokenintothreefocalparts,PerformanceSpace,ArtGroups ResourceSpaceandAdministrationOffices.Mytaskconsistedofcreatingstudy diagramsthatshowthesymbioticrelationshipoftheprogramingneeds.Thefollowing setofdiagramswerecreatedforadiscussionontheprogramsizeandsquare footage,aswellasthestudyoftherelationshipsbetweenthe programandthesite.







