Skip to main content

BOOKLET CASA MISTELA

Page 1


Casa Mistela nace de la iniciativa de crear un proyecto en un terreno que cuenta con una de las vistas sino es que la mas, privilegiada de todo el pueblo de Parras. Para esto hemos decidido abrazar la historia de este pueblo mágico y su gran apego con el vino y así crear un concepto que se adecue al contexto y que transmita todo lo que este representa. Nuestro diseño esta inspirado principalmente en la mision de parras epoca de la coquista espoñola en la que se colonizaron tierras antes de indigenas, con la finalidad de crear vino para sacerdotes, conocido como “Mistela” de ahi nuestro nombre.

Para nosotros que preservar las formas, colores, texturas y materiales de aquella epoca a sido nuestro mayor objetivo e inspiracion, sin embargo tambien hemos aumentado la comodidad y hemos mejorado la manera en la que se realizaban cierto tipo de acabados asi tambien como el uso de muebles e iluminacion moderna logrando asi una sinergia entre lo colonial, rustico y el lujo-confort moderno.

PLANTAS

PLANOS

RENDERS CASA MISTELA

PLANOS

INTEGRANTES

SOLAMIENTO

El mes de septiembre cuenta con la mayor precipitación, mientras que el mes de Marzo con la menor.

VIENTOS DOMINANTES

Mayor carga de vientos por parte del este durante la mayoria del año

VIALIDAD CIRCULACION

Vialidad Principal

Vialidad Secundaria

PLANTAS DE PRESENTACION - Single

PLANTAS DE PRESENTACION -

Cada una de las Cabañas se encuentran en posiciones estrategicas alrededor de la superfecie de la montaña, en donde se priorizo la vista hacia el exterior y el aprovechamiento del asoleamiento, ya que de esta manera se tendra una vision directa de los hermosos atardeceres de Parras con una vista a los viñedos increible.

Ademas de esto esta organizacion ayuda a eficientizar el uso de los servicios de agua y drenaje ya que todo fluye por inercia.

El Hotel esta distribuido

de la siguiente manera:

12 unidades en total

8 unidades single

4 unidades duplex

Y el Lobby en la parte mas alta de la montaña.

single

Sección - Single

Cortes - Single

Cortes - Single

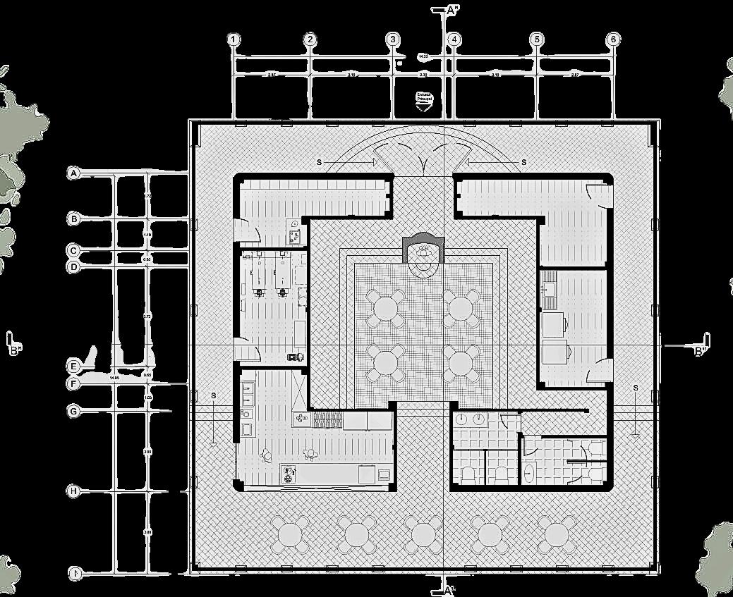
planta lobby

Lobby

Aqui podemos observar la fachada principal con arcos de medio punto, una entrada en tunel simulando las puertas de las iglesias de aquella epoca, el arco muy utilizado en haciendas coloniales en toda Latinoamerica, tambien decidimos diseñar un drivethru tipo redondel en la que su centro es una pileta, Ademas todo el lobby esta rodeado de jardines exuberantes que aportan un toque de frescura y color al entorno. Este diseño busca evocar la grandeza de tiempos pasados, integrando elementos arquitectónicos que nos transportan a la época colonial.

Alrededor de la pileta las luces cálidas y estratégicamente ubicadas iluminan suavemente el espacio al caer la noche, creando un ambiente acogedor y mágico que invita a quedarse un poco más.

Cabe recalcar que el Lobby cuenta con una carpa electrica que cubre el patio interior en caso de requerirse.

Cocina Restaurant

En la cocina se busco ademas de la funcionalidad del espacio, un diseño elegante y vibrante con el concepto del vino y el concepto antes mencionado de la Mision de Parras. Esta cocina cuenta con una cava enfriadora para vinos especializada, la cual nos ayuda a mantener los vinos en buen estado y acceder a ellos de una manera mas rapida e eficiente, ademas esta eficiencia tambien pasa al trabajo en cocina donde contamos con un pizarron en la que el mesero podra escribir las ordenes de forma que sea mas visible para los cocineros y que ellos no tenga que estar agarrando papeles sucios o preguntando sobre la comida a cada momento, como digo aqui se trata de eficientizar todo lo que se pueda, por lo que no podia faltar un lavaplatos, para asi en conjunto con un diseño de calidad lograr un ambiente de trabajo agradable lo cual a su vez mejorar aun mas la eficiencia, todo esto mientras disfrutas de las vistas hacia las montañas, haciendolo tambien un espacio digno para nuestros colaboradores.

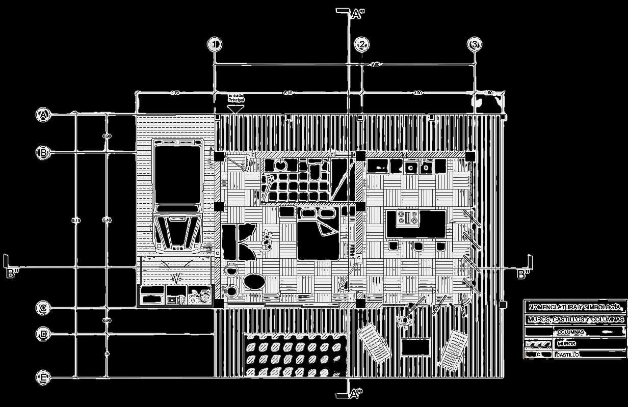
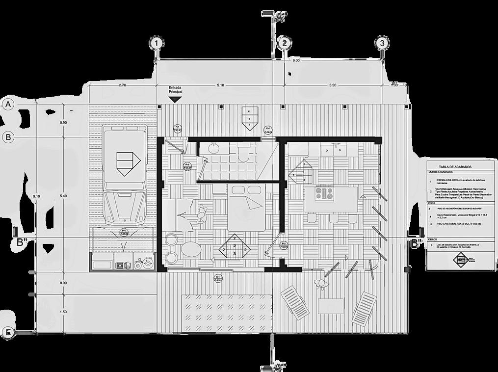
Single y Duplex

El espacio del pasillo es super importante ya que la intención principal es canalizar la vista a un túnel que enfoque el hermosos paisajes de Parras, además, la separación de las habitaciones permite que cada una tenga una privacidad probada, esto ya que Casa Mistela, busca también la mística de tener un espacio que evoque al romance por lo que es primordial darle la capacidad al usuario de tener su espacio a pesar de estar acompañado ya sea en caso de familias con hijos, grupo de amigos, etc. Sin embargo las puertas corredizas pueden deslizarse de tal forma que eliminamos toda barrera y podemos conectar tanto las habitaciones como la cocina y la alberca, dándonos esa versatilidad dependiendo de la ocasión. En cuanto a la elección de materiales y colores, inspirados en pared de barro y acabados de tierra compactada, en conjunto con una técnica de acabado espejo en concreto para algunos muros, usando colores claros, haciéndolo resaltar del entorno, así también con detalles en mármol y piedra que le dan cierta elegancia y serenidad al espacio.

Cocina y Sala

La cocina fue ambientada para que esta tenga la mayor cantidad de ventilación posible, es por eso que usamos un sistema avanzado de puertas corredizas diseñado por nosotros, que permite la apertura total del espacio sin ningun tipo de interrupcion hacia la vista lo que a su vez también conecta en el caso del duplex con la otra recamara formando asi un patio que termina a su vez conectando con la piscina, lo que es una genialidad ya que nos permite privacidad y dinamismo segun nos convenga dandole ese valor versatil a nuestra cocina.

Habitacion

Llegamos al espacio mas importante de todos, el lugar en el nuestros huespedes descansaran, se relajaran y podran vivir y sentir experiencias muy agradables, en el diseño se busco utilizar una serie de materiales y texturas que se han ocupado en varias tipologias de la colonia, en diferentes edificios y en diversas partes de los mismos. Quisimos condesar todo eso en un solo espacio que nos cuente varias historias, y que al mismo tiempo sea confortable y de una calidad excelente.

Baño

Aqui decidimos romper un poco con la estetica general de todo el proyecto, sentimos que era necesario un equilibrio con texturas y colores mas modernos, Nos enfocamos en ciertas un poco mas en las sensaciones que nos da un espacio al momento de diseñarlo ya que al ser un baño en blanco se siente mucho mejor ya que este transmite pureza, limpieza entre otras cosas, sin embargo ocupamos la madera y la piedra, las cuales mantienen la conexion con el contexto general

single - pluvial

PLANOS COLUMNAS, CASTILLOS Y MUROS - single

COSTO BAÑO HABITACION

Los costos de construcción del baño se realizaron considerando que se trata de un baño de lujo ubicado en una ciudad en la que debemos mandar a pedir casi todos los componentes a otras ciudades al igual que mano de obra especializada, llegando a tener un gasto indirecto de transporte bastante alto.

COSTOS PROYECTO GENERAL

Los costos se dividen directos e indirectos

Análisis Financiero (Modelo de Negocios Hotel)

El siguiente Analisis Financiero se realizo bajo conceptos empíricos de personas expertas en esta rama utilizando datos y numeros muy conservadores. Con la finalidad de saber si nuestro proyecto es rentable en comparación con otras formas de inversion seguras (CETES, SP500, etc).

Analisis Mensual (Considerando que este patron se repite o se distribuye 15 dias al mes)

Como podemos observar superamos el retorno de inversion anual de CETES (12.1%) y el SP500(8%), aun cuando se usaron numeros y datos conservadores al momento del analisis por lo que podemos concluir que nuestro proyecto es una gran eleccion para las personas que deseen invertir.

También cabe recalcar que el tiempo de retorno total de la inversión sigue siendo bajo el modelo de negocio de hotel por lo que al haber pasado ese tiempo seguiremos siendo dueños de la propiedad, la cual tambien fue adaptada para cambios en el modelo de negocio si es que se da una emergencia una crisis se suscita o simplemente por querer cambiarlo, esto ya que podemos vender cada cabaña como un bien independiente ya que fueron diseñadas para tener esa versatilidad.

Quiero agradecer primeramente a mi compañero de equipo que fue una persona que en conjunto logramos darle la vuelta a como ibamos con el proyecto, fue algo que nos costo mucho trabajo pero nos sentimos muy orgullosos del resultado, lo terminamos como realmente lo quisimos, tambien agradecer al maestro Raul, una persona muy inteligente que supo entender y responder nuestras dudas de la manera mas breve y eficiente posible, realmente nos gusto trabajar asi, agradecer a la maestra Clau por apoyarnos y permitirnos llevar el proyecto a nuestro ritmo, ademas de confiar en nosotros y siempre estar ahi cuando surgia alguna duda, al maestro Ernesto por hacer la clase lo mas amena posible y enseñar siempre con una actitud positiva. Asi tambien agradecemos a nuestra amiga Victoria que no esta en en este curso, pero que gracias a ella su apoyo y enseñanzas pudimos lograr nuestro objetivo, y por ultimo agradecernos a nosotros mismos, por haber llevado este proyecto con nuestras altas y bajas, pero nunca dejandolo de intentar y siempre apoyandonos mutuamente, mas allá del aprendizaje, siento que lo mas valioso que me llevo es una bonita amistad y eso es lo mas importante. Sin mas que decir nos despedimos, gracias y hasta la proxima..

Planos Membretados

Turn static files into dynamic content formats.

Create a flipbook