Marc Yiheng Zhao's Selected Portfolio (2022–2024)

Page 1


PORTFOLIO

Selected Works 2021-2024

Marc Yiheng Zhao

Architectural Designer | Columbia M.Arch '25

Architectural Designer

435 West 119th Street, New York, US, 929-496-1867, yz4373@columbia.edu

Architecture Intern, May 2024 - August

Shenzhen New Land Tool Planning & Architectural Design Co., China

Shenzhen-Hong Kong Modern Service Industry Cooperation Zone

• Conducted site analysis and research to inform design decisions.

• Assisted in 3D modeling and rendering in Rhino and Enscape.

• Contributed to the design of a mixed-use development, integrating office, retail, and residential spaces to enhance functionality and connectivity.

Architecture Intern, Oct 2021 - May 2022

Tongji Architectural Design(Group) Co.,Led Xi'an Branch, Landscape Architects Institute

Qin Chuang Yuan Eco-City Competition Project

• Assisted in site analysis and research.

• Supported 3D modeling and rendering in Rhino and Lumion for the competition.

• Contributed to the creation of the design booklet presented to the jury.

Xixia Stork River Ecological Culture Park – Phase 2

• Assisted in site analysis and research.

• Helped develop 3D models using Rhino and SketchUp.

• Contributed to the design and modeling of a visitor center.

• Assisted in producing the construction drawing set in Revit and AutoCAD.

Master of Architecture, Sep 2022 - May 2025

Columbia University Graduate School of Architecture Planning and Preservation

Honours Bachelor of Arts with Distinction in Architectural Studies, Sep 2017 - May 2021

University of Toronto John H. Daniels Faculty of Architecture, Landscape and Design

Specialist with a focus on the theory of Modernism within the Comprehensive Stream Certificate in Global Studies of the Built Environment ( UofT Global Scholar)

Rhinoceros 3D (Expert), Enscape (Expert), Adobe Photoshop (Expert), Adobe lllustrator (Expert), Adobe InDesign (Expert), Adobe Premiere (Expert), Revit (Skillful), V-Ray (Skillful), Lumion (Skillful), Grasshopper (Skillful), Sketchup (Skillful), Autocad (Skillful), Climate Studio (Skillful), Ladybug (Skillful)

Languages Additional Information

Professional Experience EDUCATION Skills Honors

PHOENIX ACADEMY 1

A School and a Sanctuary: A Community of Learning, Resilience, and Belonging

Greenhouse Living: Blending Agriculture and Residency for Sustainable Urban Spaces THE URBAN HOMESTEAD 2

CLUB MOGADOR: HOUSE CLUB REMIX 3

Redefining Nightlife with Sustainable Innovation

ELEVATE NOMAD 4

Designing for Vertical Equality

English (Highly proficient). Mandarin (Native).

F rom Syrian Refugee City to Jordanian Affordable Housing

Undergraduate Architectural Project was Recommended and Presented in University of Toronto Architecture Faculty for the School's End of Year Exhibition: Specimens and Fragments

1. PHOENIX ACADEMY

A School and a Sanctuary: A Community of Learning, Resilience, and Belonging

Function: Community Resilience Hub (Refugee Housing, Education)

Location: Enterprise Ave, Brooklyn, NY

Date: Jan 2024 - May 2024

Course: GSAPP Advance 4 Studio

Instructor:Håvard Breivik-Khan

Group Member: Yiheng Zhao, James Churchill

Historically, schools have served as emergency shelters, but are rarely designed to accommodate large influxes of visitors without disruption Our proposal reimagines the public school as a flexible space that not only educates the young, but also supports the elderly, infirm, and displaced. Phoenix Academy aims to transform the school into a welcoming, expansive, and adaptable public space that responds to shifting needs, offering shelter in an ethical and comfortable way. Our research explores the overlap between residential and educational functions, introducing a new typology that balances residential, common, and educational spaces across a 24-hour cycle.

Diagram

Integrating the Existing Structure:

The design incorporates the site's abandoned building as a key element. part of the project.

Expanding:

Five new volumes are added --- three for a K-12 charter school and two for 500 refugee families.

Elevating + Central Hub: All volumes are linked by a central public space with a library, café, auditorium, and communal areas. The structure is elevated 16 feet to address flood risk.

Time-Based Strategy: The landscape integrates school and housing with time-based use: public spaces serve students by day and refugees by night. Classrooms are adaptable, doubling as emergency shelters for sudden displacements.

Red - Sanded Thin Brick 1/2"
Champagne Thin Brick 1/2"
School Facade
50% Filled Perforated Brick
Milwaukee Thin Brick 1/2"
Arbor Rose Thin Brick 1/2"
Refugee Quater Facade
Refugee Quater Facade

Ultra-EmergencyHallwayBeds:9pmto7:30pm

Left: A standard classroom with bookshelves, a whiteboard, and a TV for student use.

Right: Convertible into an emergency shelter, the classroom features fold-down wooden frames for beds and partitions to create two separate rooms for refugee families. Hallway frames can extend to provide additional sleeping spaces during extreme emergencies.

School hallway rendering featuring classrooms and the atrium.
Upper-level common space rendering featuring the auditorium.
Lower-level common space rendering featuring the café and library.

2. THE URBAN HOMESTEAD

Greenhouse Living: Blending Agriculture and Residency for Sustainable Urban Spaces

Function: Green Living (Housing + Indoor Farming)

Location: 454 W 128th St, New York

Date: Sept 2023 - Dec 2023

Course: GSAPP Core 3 Studio

Instructor: Lily Wong

Group Member: Yiheng Zhao, Alex Faza

This project centered around integrating nature into residential housing. The designated site was situated in Harlem, with extensive research involving local garden organizations. Our project aimed to explore the incorporation of a fully functional farm production system into residential housing. Our goal is to focus on striking a balance between providing affordable housing and encouraging residents to actively engage with and benefit from caring for plants in their daily lives.

Typical Floor Plan
This section drawing illustrates the diverse layers within the building and the spatial relationships between various zones
The planting diagram
Planting Zone – A
garden for each family
Rendering of the building's exterior and outdoor terraces between various zones
Rendering of the upper level showcasing a shared kitchen space and illustrating the interconnection between outdoor terraces, indoor farm areas, and individual units

The drawings illustrate the transition from public to private spaces on each floor: garden space, hallway, buffer zone, living room, bedroom, and private balcony. This arrangement signifies a transition from public to private spaces.

Program Diagram
Rendering view from the living quarters of the unit, highlighting how residents can visually engage with the garden from within their home
Rendering of the lower level, featuring expansive farm spaces alongside individual units.

3. CLUB MOGADOR: HOUSE CLUB REMIX

Function: Adaptive Reuse (Resi + Nightclub)

Location: 101 St Marks Pl

Date: Jan 2024 - May 2024

Course: Tech IV Integrated Building Systems

Instructor: Berardo Matalucci

Group Member: Yiheng Zhao, Benjamin Vassar, Carter Horton, Dana Mor, Mohammad Zowqi, Xinyan he

Club Mogador reimagines nightlife by converting Café Mogador into a six-floor nightclub with a central atrium for improved circulation and interaction. Emphasizing sustainability, the design uses passive cooling, the stack effect for natural ventilation, and a tensile green façade with gray water reuse. Fully code-compliant, it transforms the space into an eco-conscious nightlife hub.

Exploded Isometric Facade System
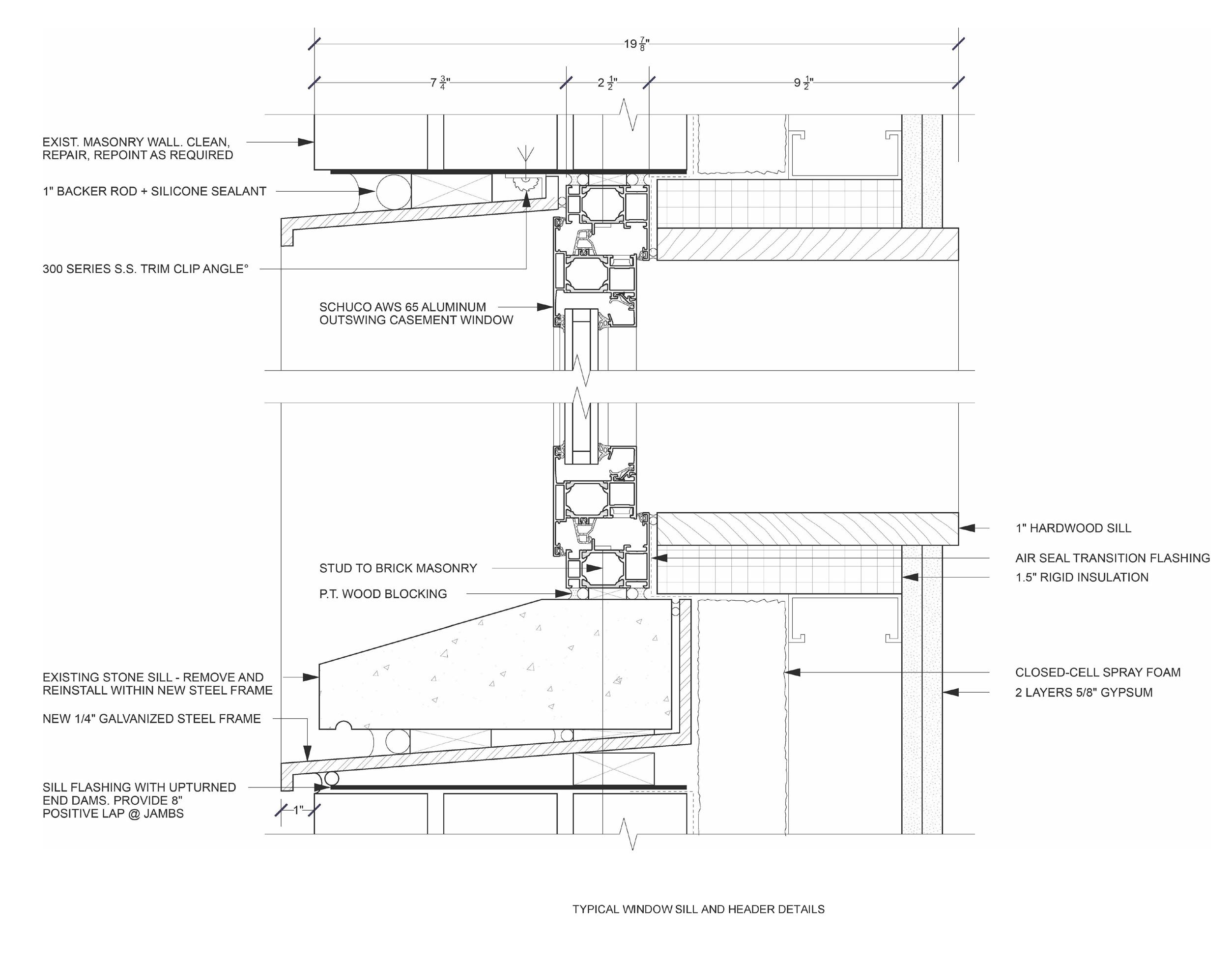
Typical Window Sill and Header Details

4. ELEVATE NOMAD: DESIGNING FOR VERTICAL EQUALITY

Function: Mixed-Use (Residential, Office, Retail)

Location: 120 W 30th St

Date: Jan 2024 - May 2024

Course: Re-Thinking BIM

Instructor: Joseph Brennan

Group Member: Yiheng Zhao, Zitao Yang, Aliza Mehnaz, Yilin Wang

The studio brief for this course challenges us to design a highrise building in downtown Manhattan that integrates retail, office, and residential spaces. This project employs multiple analytical techniques to optimize views and maximize natural sunlight, ultimately enhancing comfort for occupants. The choice of façade aligns with our goal of creating an affordable yet high-quality design that also resonates with the character of the nearby historic district.

Massing Iteration Based on Sunlight Analysis

Incorporating two towers on the site. Twisting the tower to create a ground-level plaza.
Introducing rounded corners to the form and rotating the tower to maximize daylight in the living spaces.
Further optimizing sunlight exposure in the living spaces by twisting each individual floor.
Left: Daylight analysis shows the building achieves optimal daylight exposure, with units receiving ~12 hours of sunlight annually.
Right: View distance analysis reveals most units will enjoy enhanced views.
Avg Daylight (yearly) Analysis & View Analysis

Massing, Public Space and Programs

The simulation indicates 93.4% of upper-floor spaces will have access to high-quality city views.

Upper- Floor Quality View Analysis

5. A TIME-BASED SOLUTION

Function: Adaptive Refugee & Social Housing

Location: Zaatari Syrian Refugee Camp, Jordan

Date: Jan 2021 - May 2021

Course: Arc453 Informal Urbanism

Instructor: Tara Bissett

Situated in Jordan near the Jordan-Syria border, the Zaatari refugee camp has emerged as the largest Syrian refugee settlement, providing shelter for approximately 120,000 refugees since its establishment in 2012. Over the years, it has evolved into the sixth-largest city in Jordan. While the current situation in Zaatari presents a complex challenge involving various stakeholders, this project aims to offer an alternative perspective. It seeks to reconsider the notions of permanence and temporariness, introducing a solution rooted in the concepts of time and process.

Permenant Core and Self-Built Tent

The project addresses the refugee dilemma by focusing UNHCR resources on the core structure, providing essential infrastructure: a kitchen, bathroom, small shop, and garden. By envisioning development as a dynamic process, it optimizes resources and creates a win-win-win scenario for refugees, Jordanians, and UNHCR.

SELF-BUILDING

NEEDS RESOURCES

Resources vs. Needs Permenant Core Built by UN Temporary Tents Developed by Refugees

HOUSING DEVELOPMENT

REFUGEES RETURN HOME JORDANIAN

97% of refugees wish to return to their homeland once the Syrian civil war ends.

Affordable Community for Jordanian

New Solution Developing Housing for Jordanian

A Three-Win Approach

In this scenario, each party benefits: UNHCR minimizes costs to address refugees' immediate needs, refugees access facilities in separate spaces, and Jordanians build affordable housing at lower costs. Post-refugee return, the camp can be redeveloped into affordable housing for Jordanians, ensuring a long-term three-win outcome.

The core serves as the camp's permanent structure, with refugee households building their own tents around it, leveraging the skills of many men in the camp. Once the Syrian civil war ends, refugees can dismantle their tents and return home, while the core is repurposed into affordable housing for Jordanians through further construction.

A Time-Based Solution Premenant Core

BUILDING THE CORE

SELF-BUILDING THE TENT

DEMOLISHING THE TENT

REFUGEES RETURN HOME

CORE HANDED TO JORDANIAN GOVERNMENT

REDEVELOPING AFFORDABLE HOUSING

Temporary Tent

MOVING TO THE NEW COMMUNITY

Refugee Life in TentCore Scenario:

The drawing depicts daily life in a typical lot: tents surround the core, which refugees can later enhance. The core provides clean water, baths, toilets, and cooking facilities on the second floor, ensuring a healthy environment. It also includes an informal shop for trading, fostering a self-sustaining micro-economy within the camp.

JORDANIAN

HOUSING FOR JORDANIANS

Utilizing the same core, the redeveloped affordable house provides a generous living room, an inner courtyard, and a roof garden for the Jordanian family.

REFUGEE UNIT
Life in the tent is simple, but the core infrastructure provides essential facilities, while the garden offers dignity and moments of enjoyment during their journey of exile.
AFFORDABLE HOUSING FOR JORDANIANS

Turn static files into dynamic content formats.

Create a flipbook
Issuu converts static files into: digital portfolios, online yearbooks, online catalogs, digital photo albums and more. Sign up and create your flipbook.