Marah's portfolio

Page 1

PORTFOLIO

Academic 2018-2023

My name is Marah, I’m an Architectural Engineering student with interior design concentration from Birzeit University. From what I have learned in college, I believe architecture is about problem solving and structural thinking, rather than just a good, eye-catching out-look.

This portfolio is made up of architectural carried out during my studies at the School of Architecture at Birzeit University. The projects included a reflection of the skills acquired and developed throughout my schooling period. I have developed a solid foundation in conceptualization, space planning and construction documentation.

0592427756 marah.msallam@gmail.com

Marah Musallam

Architect | Interior Designer

marah.msallam@gmail.com

0592427756

linkedin.com/in/marah-musallam

issuu.com/marahmusallam

EDUCATION

2018-2023 2017-2018

EXPERIENCE

Birzeit University

Bachelor’s Degree, Architectural Engineering

Ranked Very good Birzeit, Palestine

Al-Bireh Al-Jadeedeh Secondary Girls School

High School Diploma, Scientific Stream 99.6% Ramallah, Palestine

LICENSES & CERTIFICATIONS

Apr. 2024 Jan. 2024

SKILLS

Certification of completion an online course in Revit: Rendering - Linked in Learning

Licensed member of the Palestinian Engineers Association

July-Augest 2022

ARCADA - Architecture & Interior Design

Trainee

Ramallah, Palestine

- Acquired experience in preparing architectural engineering drawings in accordance with the standards and requirements of the Engineers Syndicate.

- Conducted frequent site visits to ongoing construction projects.

- Assisted in the process of taking measurements of the spaces for the purpose of proposing interior design solutions.

- Collaborated on preparing as-built architectural drawings and performig interior design proposals.

Software

Personal

Time management

Model making

Hand drafting

Multitasking

Teamwork

LANGUAGES

Arabic

Native

English

Toefl

French Delf

800\900
A2 85\100
Microsoft Office AutoCAD Revit 3Ds Max SketchUp Photoshop Illustrator InDesign Rhino Lumion
Architectural Design Interior Design 3D Modelling and Rendering Miscellaneous Transportation Hub Mixed-use Complex Community Center Residential Complex 8-19 20-23 24-27 28-33 34-41 42-49 50-55 Hybrid Cafe Eaves House Sketches CONTENTS Interior Design Architectural Design
Miscellaneous
3D Modelling and Rendering

Transportation Hub

This project is located in a critical area in the city center of the twin cities of Ramallah and Al-Bireh. That zone witnesses a high level of diversity of activities and stakeholders. Thus, designing a transportation hub should take into consideration the social, cultural, historical and economic value of the site.

Such a project aims to create an active public space that responds to people’s needs. A waiting area, childern space, recreational and commercial zones are placed in order to improve the quality of public experience for people in Ramallah.

Architectural Design 8

Project Statement

Jerusalem bus station is one of the major bus stations in Ramallah located in Al-Nahda street in Ramallah.

Despite all the positive conditions of that site such as being event-oriented space with high diversity of activities. practicies and people.

Our attempt to enhancs the current situation and improve the public experience quality for people required full understanding and analysing of the existing conditions and problems.

First step included: conceptual model for the public transportation system working in the hub and city.

Second step: urban solutions for the public intities like streets, plazas, open markets and sidewalks.

Spatial and Architectural Characteristics

Al-Nahda street had combined several architectural styles and characteristics due to the existance of buildings from various eras. Conventional buildings and traditional style could be seen in Al-Bireh Cultural Center which refer to 1950s. Mixed used typology also exists in which the commercial stores are in the ground street level and the upper ones had the residential spaces.

Amidst the trend towards more modern commercial buildings with totally utilized land parcels to achieve the maximum profit, historical buildings and handicrafts are struggling to remain intact. In spite of the “developments” of spaces and buildings, public and pedestrian friendly spaces are still marginalized.

Architectural Design 10 11 1- Social
2- Socio-economic
3- Organizational
4- Traffic
Challenges
Challenges
Problems
Challenges
During The Ottoman Rule Period, the development statred from the center of the old town of Ramallah then it expanded towards the main streets. 1918 Jordanian Rule Period Ramallah became a small city, streets from AlManara had rapid urban growth such as Al-Nahda street, Ein Musbah street so that residential buildings with commercial activities at the ground level were built. 1961 the last 3 decades the city center became a central business district with residential suburbs surrounding it. 2000 Throughout history, buildings development have been alongside the streets with a commercial activity in the ground level and offices or residents in the upper levels.
Historical Development and location

In this masterplan scale, attempts to connect between open plazas and markets were made in order to improve the public space experience and its quality. The special seperated routs for the buses and the prevention of car parking alongside the sidewalks helped to organise the circulation of vehicles as well as respects the peoples’ right of the public experience.

Architectural Design 12 13

The first mass consists of two levels, the ground and the first floors. The ground floor was designed considering its function as the major public space in the building. It creates a harmonic transition between the outdoor area and the interior space, so a glazed facade was suggested in the design to provide the user with an uninterrupted experience. A waiting space, reception zone, ticket booths, cafe bar and bathrooms are the main components of this floor.

The first floor was designed to provide the user with a continuous public experience, also it is connected spatially with the ground floor by a double-volumed void.

A central bar with a dining area, children’s playing zone and bathrooms are the components of this floor.

The second mass consists of one floor level, connected with the lower levels spatially by escalators in addition to the main circulation element.

This floor contains administration offices serving for the bus station and retail shops.

Architectural Design 14 15

Underground car parking floor plans

plan

The program mainly consists of three functions: transportation, services and commercial.

The building was configured according to the the required space for buses interchange process.

The rotated third floor creates shade on the outdoor platform at the ground level, which has direct relationship with the indoor waiting area.

The building has two underground car parking floors with an entrance from the secondary street.

Warren truss structure was used in the third floor to provide flexibile internal spaces.

Architectural Design 16 17
Structural Section
Architectural Design 18 19

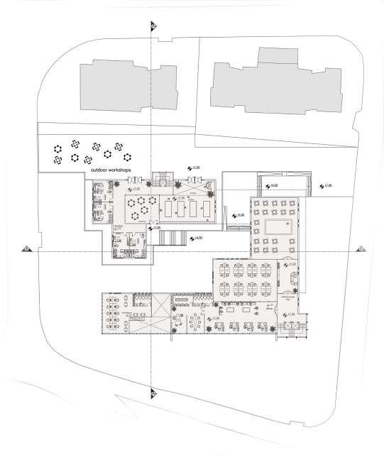
Mixed-use Complex

The project is a mixed-use complex that aims to create an open public green space taking into consideration peoples’ interaction with the site, moreover corresponding to the diverse needs of residents and users. The complex mainly included three main functions, commercial, community centre and residential spaces.

Architectural Design 20

Basement floor contains recreational activities and communal functions with the lower street level. Also, the parking of cars and trucks.

The ground floor has the main core of the project, the central plaza. This core plaza connects to the several functions and public spaces of the project creating a socializing, active and dynamic space.

Upper floors contains community oriented spaces such as: community kitchen and studios for students besides a workspace, library and exhibition for them, in addition to hostels, multi-purpose hall and offices. The most private spaces are the residents in the most upper spaces.

Architectural Design 22 23

Community Center

This project aims to create a spatial experience and functions in attempt to solve social media addiction among teenagers. This could be achieved by spaces to make them feel like a leaders & spaces to meet their needs & spaces to show their talents.

The need to such project emerged from the lack of spaces and activities for children and teenagers, as a result, technology and social media addiction has increased. moreover, children have become violent and severe. In addition, the absence of waiting areas for people, especially students. as a result, students after school utilize unsecure and unsafe spaces to wait for their parents.

Architectural Design 24

One of the most important aspects of site analysis, is understanding and studying the peoples’ behavior and activities in that area in addition to their flow during different times of the day.

Architectural Design 26 27

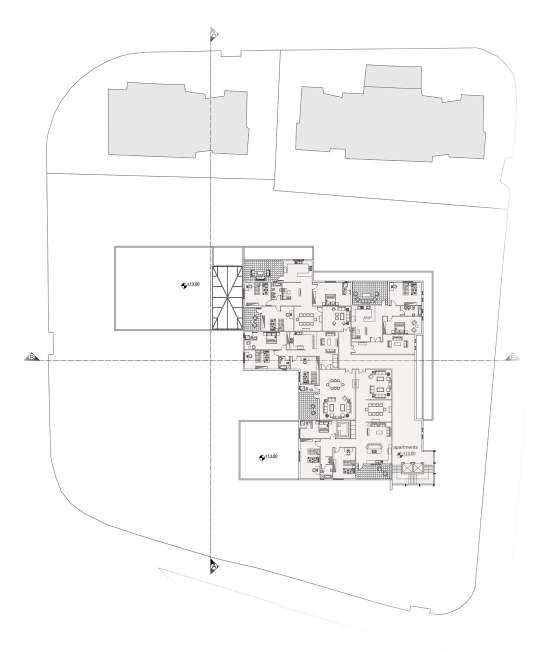
Residential Complex

This project is located in Ramallah near the old city “Ramallah Al-Tahta”. The design process took into consideration the situation of current reality that witnesses capitalist residential projects. Such projects often courages social segregation and individual interest as well as their poor design and atmosphere quality.

Architectural Design 28

The ground floor contains public functions for the complex’s residents such as a laundry space, grocery, afterschool space and gathering outdoor court. As well as, it contains three douplex apartments and two studios.

Architectural Design 30 31
Architectural Design 32 33

Hybrid Cafe

This project is located in Ramallah. The design aims to create a hybrid environmevt where the whole process of making a meal or a product is completed at the same place.

34 Interior Design

Pomegranate and apricot are planted in the landscape of the cafe, several natural, organic and traditional products and meals are made of these crops, which makes the cafe and its atmosphere and products special.

36 37
Interior Design Plans
39 Interior Design
40 41 Interior Design

Eaves House

This project is characterized by the positioning of the eaves and the style of roofing. Designed by mA-style architects in Japan.

42 3D Modelling and Rendering
3D Modelling and Rendering
Sectional perspective
3D Modelling and Rendering
Exterior shot
3D Modelling and Rendering
Interior shot

Sketches

The following section shows some sketches done during the first years at university.

50 Miscellaneous
52 53 Miscellaneous
54 55 Miscellaneous

marah.msallam@gmail.com

0592427756 Thank You !

Turn static files into dynamic content formats.

Create a flipbook
Issuu converts static files into: digital portfolios, online yearbooks, online catalogs, digital photo albums and more. Sign up and create your flipbook.