MAP - Portafolio 2023

Page 1

portafolio 20232024.

map. es un estudio de arquitectura enfocado en el usuario final, que busca diseñar productos inmobiliarios desde la necesidad del consumidor. Creemos en la combinación de marketing y arquitectura como fórmula perfecta para concebir un producto rentable, funcional y eficiente.

El proceso de diseño inicia con el análisis de las variables cualitativas y cuantitativas, lo que nos permite realizar la cabida; y a través de un estudio de mercado se aterriza la ventaja competitiva, que dan como resultado el concepto del proyecto y su desarrollo. Esto logra un producto con alto valor para el usuario final, así como rentabilidad para el desarrollador, la construcción de su marca y posterior posicionamiento.

Nicolas Majluf Abdala

Arquitecto (UPC - 2013)

MBArch (IE University - 2018)

Gestión de Proyectos inmobiliarios (UPC - 2020)

Docente de Taller de Diseño (UPC)

Daniella Guimarey Cornejo

Licenciada en Administración de Empresas (UPC - 2012)

Especialización en Marketing (UPC - 2013)

Diplomado de Marketing Digital (ESAN - 2021)

Arquitecto (UPC - 2019)

Ernesto Vergara Pérez Maria Jose Alvarado Chavez

Arquitecta (UPC - 2021)

blue.

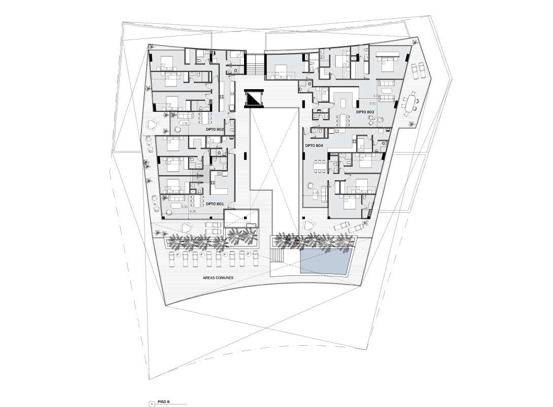
Con más de 113 metros de altura, el segundo edificio de vivienda más alto del Perú.

Multifamiliar

San Isidro, Lima.

Área del terreno: 929.14 m2

Área construida: 26,981.10 m2

Área vendible: 15,279.64 m2 (ratio av/ac = 56.63%)

Niveles: 7 sótanos, 40 pisos y azotea

Unidades: 260 departamentos y 124 estacionamientos

Cliente: Esparq Inversiones SAC.

Estado: Licencia aprobada

Ubicado en el corazón de San Isidro, el centro financiero, “Blue” se emplaza en un terreno en esquina frente a la Av. Paseo de la República y Calle Chacarilla de 929 m2.

Cuenta con 260 departamentos de 1, 2 y 3 dormitorios; de 40, 50 y 70 m2 respectivamente. Por otro lado, cuenta con áreas comunes como lobby con techo a doble altura, coworking, sala para niños, business center, sala de juegos, sky bar, urban kitchen, 4 sky bar, 2 salas de usos múltiples, gimnasio, terrazas, entre otros.

MAP. Propone una fachada limpia, de fácil lectura, económica, y a su vez con movimiento. Compuesto por una base de 2 niveles en madera y vidrio, un cuerpo con losas vistas y muros diagonales, y un remate compuesto por un cubo de vidrio con una coronación que lo envuelve.

Remate
Lobby
Sky bar Rooftop

santa maría.

Un

diseño que logra maximizar las vistas a la bahía de Santa María del Mar.

Multifamiliar

Santa Maria del Mar, Lima.

Área del terreno: 1,735.74 m2

Área construida: 7,790.01 m2

Área vendible: 5,170.87 m2 (ratio av/ac = 66.38%)

Niveles: 11 pisos y azotea

Unidades: 34 departamentos, 6 estacionamientos simples y 43 estacionamientos dobles

Cliente: Espinosa Arquitectos SAC.

Estado: Cabida y desarrollo de fachada

Emplazado en la Bahía de Santa María del Mar, una de las playas mejor urbanizadas y bien mantenidas del sur de Lima, el proyecto multifamiliar “Santa María“ se encuentra sobre un terreno de 1,735 m2 frente al Club Esmeralda.

Es conformado por 34 departamentos de 90, 150 y 180 m2 respectivamente, donde su diseño, disposición en el terreno y alturas ha permitido que todos tengan vista directa al Océano Pacífico. En el octavo nivel cuenta con una terraza común, solárium y piscina.

MAP. Propone una fachada traslucida compuesta por vidrio y, en especial, por terrazas en ángulos que envuelven cada nivel generando dinamismo.

tudela y varela.

Su fachada protege al habitante del fuerte soleamiento de las tardes mientras permite disfrutar de las vistas exteriores.

Multifamiliar

Miraflores, Lima.

Área del terreno: 915.00 m2

Área construida: 7,682.92 m2

Área vendible: 4,485.21 m2 (ratio av/ac = 58.38%)

Niveles: 03 sótanos, 09 pisos y azotea

Unidades: 34 departamentos, 42 estacionamientos simples y 14 estacionamientos dobles

Cliente: Fraspau Inmobiliaria

Estado: Cabida y desarrollo de fachada

Ubicado en la Av. Tudela y Varela, vía residencial en el distrito de Miraflores límite con el distrito de San Isidro, el proyecto multifamiliar “Tudela y Varela” se sitúa sobre un terreno de 915 m2.

Cuenta con 34 departamentos de 60, 90 y 120 m2 al haberse desarrollado bajo la Ord. 588 de la Municipalidad de Miraflores. En su distribución destacan departamentos eficientes donde se logra el mayor provecho espacial en cada uno.

MAP. Diseña una fachada que busca el confort de los habitantes. Su composición se resume a losas vistas y parasoles diagonales que cubren los espacios interiores del fuerte asoleamiento de las tardes y permiten a su vez las vistas exteriores. La composición rítmica de estos elementos y las sombras que generan logran dinamismo y elegancia en este proyecto.

robles.

Materiales, volúmenes, texturas y, en especial, sombras nos permiten explorar y componer una fachada diferente.

Multifamiliar

San Isidro, Lima.

Área del terreno: 439.00 m2

Área construida: 3,178.46 m2

Área vendible: 1,735.48 m2 (ratio av/ac = 54.60%)

Niveles: 03 sótanos, 7 pisos y azotea

Unidades: 13 departamentos, 24 estacionamientos simples y 01 estacionamiento doble

Cliente: Fraspau Inmobiliaria

Estado: Cabida y desarrollo de fachada

Situado en una vía residencial del distrito de San Isidro, Calle Los Robles, se encuentra el proyecto multifamiliar “Robles” sobre un terreno de 439.00 m2. Cuenta con 13 departamentos de 115, 150 y 250 m2 caracterizados por su eficiencia y espacios generosos.

MAP. Plantea una fachada con una vasta materialidad, compuesta por losas vistas en color charcoal, jardineras en concreto expuesto, barandas con balaustres diagonales y un mosaico lateral. La composición rítmica de estos elementos y las sombras que generan logran una fachada atractiva y diferente.

hermano

lobo. Retranque lateral, una nueva fachada.

Multifamiliar

San Borja, Lima.

Área del terreno: 600.00 m2

Área construida: 3,241.70 m2

Área vendible: 1,777.95 m2 (ratio av/ac = 54.85%)

Niveles: 02 sótanos, 5 pisos y azotea

Unidades: 14 departamentos, 13 estacionamientos simples y 08 estacionamientos dobles

Cliente: Fraspau Inmobiliaria

Estado: Cabida y desarrollo de fachada

En una zona residencial del distrito de San Borja y sobre un terreno de 600.00 m2 se ubica el proyecto multifamiliar “Hermano Lobo”. La edificabilidad del terreno y sus parámetros permitió desarrollar 3 departamentos por piso, por ello, MAP toma un partido diferente al típico edificio con pozos de iluminación.

¿Y si generamos un retranque lateral?

MAP. Propone un edificio retrancado lateralmente para que todos los departamentos tengan vista exterior y, a su vez, generar un espacio interesante donde los balcones de los departamentos cruzan como puentes en diferentes ubicaciones. Por el frente, un edificio bastante tradicional, espera a ver el interior.

miller.
Más espacios, en el mejor metraje.

Multifamiliar

Lince, Lima.

Área del terreno: 561.44 m2

Área construida: 4,338.13 m2

Área vendible: 2,391.61 m2 (ratio av/ac = 55.00%)

Niveles: 03 sótanos, semisótano, 6 pisos y azotea

Unidades: 14 departamentos, 13 estacionamientos simples y 08 estacionamientos dobles

Cliente: Fraspau Inmobiliaria

Estado: Cabida y desarrollo de fachada

En el Jr. Mariscal Miller, vía residencial del distrito de Lince límite con el distrito de San Isidro, se ubica el proyecto multifamiliar “Miller” sobre un terreno de 561.44 m2.

Cuenta con 27 departamentos de 45, 65, 75 y 85 m2, de 1, 2, 3 y 3 dormitorios + sala de estar respectivamente. En su distribución destacan departamentos eficientes donde se logra el mayor provecho de cada m2.

MAP. Plantea una fachada cálida y contemporánea. Su composición se resume a un marco que busca partir la fachada en 2 secciones y ventanas de proporción vertical. En cuanto a la materialidad, la fachada se compone por el marco metálico en color charcoal, microcemento entablillado y pigmentado en color madera y color gris.

pdb.

Departamentos amplios en una de las mejores zonas residenciales.

Multifamiliar

San Isidro, Lima.

Área del terreno: 427.00 m2

Área construida: 2,109.52 m2

Área vendible: 1,060.00 m2 (ratio av/ac = 50.25%)

Niveles: 2 sótanos, semisótano, 4 pisos y azotea

Unidades: 5 departamentos y 14 estacionamientos simples

Estado: Cabida y desarrollo de fachada

Ubicado en la Calle Paul de Beaudiez, en una de las mejores zonas residenciales del distrito de San Isidro, se ubica el proyecto Multifamiliar PDB sobre un terreno en esquina con la Calle Octavio Espinosa de 427.00 m2.

Si bien los parámetros del predio permiten una altura máxima de edificación de 3 pisos, se aplica el concepto de “mayor altura por consolidación” logrando 4 niveles dado que los lotes colindantes sobre esa cuadra han logrado desarrollar esta mayor altura por tener sus linderos posteriores hacia el Parque La Fuente.

Por el área del terreno y sus parámetros, solo se pudo desarrollar un departamento por nivel, por lo que cuenta con 5 departamentos generosos de entre 115 y 265 m2, con amplias salas y comedores, cocinas y dormitorios.

Para este proyecto, MAP propone una fachada elegante de mármol y losas vistas en concreto expuesto. Una base de listones de madera (wpc) y un cuerpo simple y elegante.

los ángeles.

Limpio y modular.

Multifamiliar

Miraflores, Lima.

Área del terreno: 1,130.20 m2

Área construida: 7,920.42 m2

Área vendible: 4621.78 m2 (ratio av/ac = 58.35%)

Niveles: 3 sótanos, semisótano, 6 pisos y azotea

Unidades: 54 departamentos, 48 estacionamientos simples y 12 estacionamientos dobles

Cliente: Espinosa Arquitectos SAC.

Estado: Cabida y desarrollo de fachada

Situado en la Calle Los Ángeles, en una zona residencial del distrito de Miraflores, se ubica el proyecto Multifamiliar “Los Ángeles” sobre dos terrenos que componen un área de 1,130.20 m2.

Cuenta con 54 departamentos de 60, 90 y 120 m2 al haberse desarrollado bajo la Ord. 588 de la Municipalidad de Miraflores.

En este caso, MAP propone una fachada modulada y limpia, que refleja el orden interior de sus espacios. Compuesto por una base de altura y media con parasoles, un cuerpo ordenado y un remate que continua la misma modulación.

2 de mayo.

Una arquitectura que se integra al barrio.

Multifamiliar

San Isidro, Lima.

Área del terreno: 608 m2

Área construida: 5, 250.51 m2

Área vendible: 3,095.70 m2 (ratio av/ac = 58.96%)

Local comercial: 140. 21 m2

Niveles: 03 sótanos, 09 pisos y azotea

Unidades: 51 departamentos y 30 estacionamientos simples

Estado: Cabida y desarrollo de fachada

Situado en la Avenida Dos de Mayo, un eje que abarca tanto actividades comerciales como residenciales en el distrito de San Isidro, se erige el proyecto 2 de mayo en un terreno de 608 m2. Este comprende un establecimiento comercial de 140.21 m2 en el primer nivel, así como 51 departamentos con dimensiones que oscilan entre 45m2 y 85.57m2, distribuidos del piso 2 al 9. Por otro lado, las áreas comunes se encuentran en la azotea.

La fachada presenta un diseño de estilo clásico, compuesto por una base, cuerpo y remate. La aplicación de molduras aporta una sensación de calidez y elegancia al edificio, confiriéndole un carácter distintivo. Para complementar este estilo, se han incorporado vanos verticales y balcones, elementos que no solo enriquecen visualmente la fachada, sino que también proporcionan ambientes interiores ventilados y confortables.

gavilanes.

Sus retranques laterales permiten un edificio de múltiples fachadas.

Multifamiliar

San Isidro, Lima.

Área del terreno: 1, 036.75 m2

Área construida: 9, 888.71 m2

Área vendible: 6, 399.28m2 (ratio av/ac = 64.71 %)

Niveles: 2 sótanos, 11 pisos y azotea

Unidades: 107 departamentos, 57 estacionamientos simples y estacionamiento doble

Cliente: Espinoza Arquitectos SAC.

Estado: Cabida y desarrollo de fachada

Situado en una zona residencial contigua al centro financiero de San Isidro, se erige el proyecto multifamiliar “Gavilanes” en un terreno de 1,036.75 m2, con tres fachadas, una de ellas orientada hacia un parque privado.

Este desarrollo alberga 107 departamentos de 1 a 3 dormitorios, cada uno meticulosamente diseñado con patios o balcones que maximizan las vistas y favorecen ambientes más ventilados. El acceso al edificio cuenta con una entrada secundaria desde el parque, presentando en el primer nivel un área pet friendly, mientras que la azotea alberga espacios comunes, como zona de parrillas, coworking y un Salón de Usos Múltiples (SUM).

El diseño propuesto por MAP destaca por un impresionante lobby en la esquina principal del edificio, junto con un juego de losas expuestas en tonalidad charcoal que organizan horizontalmente la estructura, complementadas por muros exteriores revestidos de ladrillo rococho.

Boutique. rubens.

Multifamiliar

San Borja, Lima.

Área del terreno: 300 m2

Área construida: 1,317.98 m2 (ratio av/ac 58.61%)

Área vendible: 772.52 m2

Niveles: 2 sótanos, 4 niveles y azotea

Unidades: 8 departamentos, 7 estacionamientos simples, 2 estacionamientos dobles

Cliente: Origen Inmobiliaria

Estado: Cabida y desarrollo de fachada

Ubicado en la Avenida Pedro Pablo Rubens, una vía residencial del distrito de San Borja, se erige el proyecto multifamiliar “Rubens” en un terreno de 300.00 m2.

Este desarrollo consta de 8 departamentos que varían en tamaño desde 96.74 m2 hasta 269.54 m2, todos ellos con 3 o 4 dormitorios. Se distinguen por ofrecer espacios amplios y diseñados meticulosamente para satisfacer las necesidades de un público familiar, incluyendo salas de estar y balcones o terrazas.

El enfoque arquitectónico de MAP se refleja en una fachada dinámica y acogedora. Su composición incorpora un marco metálico en color charcoal, con balcones y elementos divisorios que generan un dinamismo visual gracias a variaciones de forma y orientación en cada piso.

El uso de un revestimiento en ladrillo rococho culmina la composición, aportando calidez y carácter al conjunto arquitectónico.

Edificio que se une al paisaje del Valle de Chilina. cayma.

Multifamiliar

Cayma, Arequipa.

Área del terreno: 437.24 m2

Área construida: 3,010.05 m2 (ratio av/ac 61.87%)

Área vendible: 1862.46 m2

Niveles: 2 sótanos, 1 semisótano, 6 pisos y azotea

Unidades: 26 departamentos, 16 estacionamientos simples, 1 estacionamiento doble

Cliente: Anden Inversiones

Estado: Cabida y desarrollo de fachada

En el distrito de Cayma, Arequipa se encuentra el proyecto multifamiliar “Cayma” el cuál está ubicado en un terreno de 437.24 m2 cuyo frente principal se encuentra en la Av. Miguel Grau y frente posterior hacia el valle de Chilina, área de conservación por su valor como reserva ecológica.

El edificio cuenta con balcones y terrazas desde los departamentos, así como, un sistema de aterrazamiento paisajístico, hacia el valle. El multifamiliar de seis pisos y una azotea cuenta además con un semisótano y dos sótanos, aprovechando los desniveles topográficos para obtener mayor área vendible y vistas hacia el valle. Contiene 26 departamentos, de 45m2 para un dormitorio, de 55 m2 aprox. para dos dormitorios, de 80 m2 para tres dormitorios, y de 98.91 m2 a 152.36 m2 para 4 dormitorios, que se encuentran en dúplex y flats.

MAP propone un edificio con una concepción ligera gracias a una predominancia de superficies vidriadas y losas delgadas en voladizo.

hospedaje institucional.

Comunidad.

Hospedaje Institucional

La Molina, Lima.

Área del terreno: 1,480.40 m2

Área construida: 1,188.24 m2

Niveles: 2 pisos y azotea

Unidades: 70 dormitorios y áreas comunes

Cliente: Fundación para el Desarrollo Agrario (UNALM)

Estado: Propuesta aprobada

En el interior de la Universidad Nacional Agraria La Molina, sobre un terreno de 1,188.24 m2, se desarrolla este proyecto de residencia universitaria.

Cuenta con 70 habitaciones distribuidas en 10 módulos residenciales acompañadas de un módulo de áreas comunes y de servicio.

El proyecto parte de 2 conceptos. En primer lugar; en cuanto al concepto formal, está inspirado en rocas (módulos) de las cuales florece vegetación (escaleras curvas y paisajismo).

En segundo lugar; en cuanto al concepto funcional, los módulos buscan generar el sentido de comunidad en 2 escalas dado que cada alumno pertenecerá a la comunidad de su modulo compartido con otros 6 alumnos y, a si vez, sentirá que forma parte de una comunidad mayor con lugares de encuentro, una alameda central y áreas comunes.

MAP. Diseña una arquitectura modular que conjuga perfectamente el concepto del proyecto con una construcción económica de placas de concreto.

edenica.

Un condominio en un bosque de árboles de naranja.

Habilitación Urbana

Ica

Área bruta del terreno: 90,641.18 m2

Área neta del terreno: 81,522.60 m2

Área vendible: 45,788.85 m2 (ratio av/at = 56.17%)

Unidades: 288 lotes y áreas comunes

Cliente: Qaray Inmobiliaria SAC.

Estado: Licencia de Habilitación Urbana

Ubicado en un terreno de 9 hectáreas en el distrito de Pachacutec, a 45 minutos al sur de la ciudad de Ica se encuentra “Edénica”, un condominio de lotes de 120, 160 y 200 m2 rodeados de vegetación.

Nuestra propuesta urbana es dejar los aportes a un lado para lograr consolidar un macro lote que nos permita desarrollar un condominio privado. Este condominio tiene un anillo vehicular que remata en el Club House y un parque central. Además, se propuso que las vías internas sean de carácter peatonal.

Como parte del encargo nos solicitaron desarrollar un modelo de casa para cada tamaño de lote. Por ello, se desarrolló una vivienda que parte de un módulo básico y según las necesidades del habitante pueda ir evolucionando y aumentando su área construida y espacios.

Club House Zona de fogata Área de parrillas Vivienda en 120m2 Módulo básico Ampliación- Primer Nivel Ampliación- Segundo Nivel Vivienda en 160m2 Módulo básico Ampliación- Primer Nivel Ampliación- Segundo Nivel

house of the future.

Repensando la vivienda hacia el futuro.

Concurso de ideas

Dubái, Emiratos Árabes Unidos

Organizador: Buildner/ Gobierno de Dubai

Estado: Concursante

Dubái, la capital del Emirato de Dubái en los Emiratos Árabes Unidos, ha experimentado un crecimiento demográfico y territorial exponencial en los últimos años, impulsado en parte por el desarrollo de su destacado puerto marítimo, que se encuentra entre los principales del mundo.

Ante esta rápida expansión, es evidente la anticipación de una construcción continua para dar cabida al crecimiento demográfico y expansión territorial. La posibilidad de una densificación urbana vertical se convierte en una consideración lógica. En consecuencia, es imperativo que los desarrollos futuros de viviendas en Dubái posean la adaptabilidad y flexibilidad necesarias para satisfacer las necesidades cambiantes, al tiempo que priorizan la sostenibilidad ambiental a través de la reutilización.

Una de las tendencias emergentes de construcción es la impresión 3D, pero sus limitaciones inherentes en flexibilidad y adaptabilidad nos llevan a explorar soluciones alternativas. Dada la condición de Dubái como sede de un importante puerto marítimo, la posible utilización de contenedores de carga como recurso de construcción se convierte en una propuesta atractiva. A nivel mundial, se estima que existen entre 30 y 40 millones de contenedores de carga, con 1 a 1.5 millones retirándose del servicio anualmente. Esto plantea una pregunta crucial: ¿Qué se puede lograr con estos contenedores retirados?

Ciudad del futuro

Estrategias

Construcción y transporte sencillo

Composición volumétrica

Paneles solares

Malla de enfriamiento

Columnas modulares de acero

Piezas recicladas de containers como barandas

Contenedores con armadura de tijeral para lograr una altura interior de 3 metros y ventilación cruzada

Único y expandible

Paneles giratorios con malla de enfriamiento

Sustentable

Filtro natural de radiación solar

Paneles solares

Luz solar filtrada por malla de

Energia solar

Tratamiento de aguas grises

Composición de fachada

Se emplea una malla de enfriamiento con anillos de policarbonato interconectados mediante un ensamblaje líquido, reduciendo hasta un 70% el calor y la temperatura interior hasta 12 grados Celsius, manteniendo una conexión visual.

Columnas que unidas forman arcos tradicionales

Ingreso marcado

Paneles giratorios con malla de enfriamiento

Paneles fijos con malla de enfriamiento

Vanos tradicionales

Ventanas altas horizontales

Armadura de tijeral

Primer nivel Segundo nivel Fachada exterior Patio posterior Corte A Corte C Majlis o sala de estar Corte longitudinal Corte B Corte D

sede institucional caja huancayo.

Tradicional y a la vanguardia.

Concurso de anteproyectos Huancayo, Junin.

Área del terreno: 1,270.24 m2

Organizador: Caja Huancayo

Estado: Concursante

El proyecto arquitectónico busca fusionar armoniosamente la tradición con la modernidad al integrarse al contexto monumental de Huancayo. Exteriormente, reflejará la arquitectura local tradicional, mientras que interiormente se enfocará en principios contemporáneos de vanguardia, tecnología y sostenibilidad.

Aunque la intervención no será evidente desde las calles cercanas, se ha diseñado un edificio tradicional con retranqueo lateral en los niveles superiores para ser visible desde la Plaza de la Constitución, brindando una fachada agradable. Este retranqueo, junto con techos inclinados, aprovecha los vientos del sur-este como estrategia bioclimática.

Además, se ha integrado una apertura en la fachada inferior para acceso durante la construcción y facilitar el ingreso vehicular, sirviendo también como atracción para los peatones hacia la plaza cultural. Para preservar edificios monumentales cercanos, se evitan excavaciones profundas, cumpliendo con el programa arquitectónico mediante un único nivel subterráneo retirado lateral y frontalmente.

Centro cultural

Servicios

Operaciones

Esquema volumétrico

Negocios

Subgerencia de sistemas

Subgerencia de negocios

Directorio

Gerencia mancomunada

Secretaria de gerencia

CUARTO DE SISTEMAS CUARTO DE MANTENIMIENTO CUARTO DE LIMPIEZA CONTROL PERSONAL SERVICIO TÓPICO CUARTO GRUPO ELECTRÓGENO CUARTO DE BASURA CASETA VIGILANCIA 18 11 ESTACIONAMIENTO 10 AUTOS ESTACIONAMIENTO 20 MOTOCICLETAS NPT 1.70 OFICINAS RESIDUOS PELIGROSOS RESIDUOS APROVECHABLES RESIDUOS ORGÁNICOS RESIDUOS NO APROVECHABLES B C D A B CENTRAL DE MONITOREO SEMISOTANO ACCESO VEHICULAR RUTA OFICINISTA RUTA SERVICIO D A A B CISTERNA DE AGUA TRATADA CISTERNA DE AGUA TRATADA 01 CISTERNA DE AGUAS GRISES CISTERNA DE AGUA DE CONSUMO CISTERNA DE AGUA CUARTO DE MAQUINAS CUARTO DE ARCHIVOS GENERAL ALMACEN LOGISTICA NPT 4.40 ALMACEN INFRAESTRUCTURA TECNOLOGICA ESC. VESTÍBULO SÓTANO 1 RUTA SERVICIO PISO 1 3 VESTUARIO HOMBRES NPT 0.00 ANTESALA PATIO CULTURAL SH.M SH.H SH.M INGRESO OFICINAS NPT -1.70 NPT 1.00 NPT 1.00 CAJEROS AUTOM. ASISTENTE DE BOVEDA PREBOVEDA SALA DE REUNIONES SALA DE ESPERA FORMATERIA A B OPERACIONES VENTANILLA VENTANILLA PLATAFORMA PROMOCIONES PENDIENTE 9.61% 2.10 para discapacitados templado incoloro CAFETIN NPT +0.10 SH.H DEP.2 DEP. SALA DE EXPO. NPT +0.10 pluvial PRES. ESC. 01 Elevador para CALLE REAL A2 NPT 1.00 DEMOLICIÓN MUROS DE ADOBE CONSTRUCCIÓN NUEVOS MUROS INTERVENCIÓN EN PATRIMONIO: ACCESO VEHICULAR ACCESO PEATONAL RUTA VISITANTE RUTA OFICINISTA RUTA SERVICIO RUTA INTERPRETE

Sala de

desde la plaza
Vista
exposición CENTRO DE COMPUTO COWORK AREA TECNOLOGICA DUCTO IISS RECEPCIÓN SH.M NPT 8.00 SH.H LIMP SH. DISCAP. PISO 3 ESC. 02 B proyección viga postensada proyección viga postensada A2 RUTA SERVICIO RUTA OFICINISTA COCINETA ALMACEN ESCENARIO SH.M NPT 4.20 HALL D. LIMP. C A C C 500 personas PUENTE conexión salas exposiciones PISO 2 ESC. 01 ESC. SALA DE EXPO. SALA DE EXPO. NPT +4.35 A2 DEMOLICIÓN MUROS DE ADOBE INTERVENCIÓN EN PATRIMONIO: CONSTRUCCIÓN NUEVOS MUROS INNOVACIÓN INFORMÁTICA GESTIÓN DE PROCESOS DPTO DE INFRAESTRUCTURA TECNOLÓGICA vidrio templado vidrio templado lamina pavonada SISTEMAS SH. DISCAP. RECEPCIÓN SALA DE ESPERA CAFETIN JEFE DE CREDITOS MINORISTAS EMPRESARIAL JEFE DE CREDITOS JEFE DE CONSUMO INTELIGENCIA DE NEGOCIOS SUB GERENTE JEFE DE CREDITOS NO MINORISTAS SALA DE REUNIONES DE NEGOCIOS PISO 4 DEP. DEP. ESC. 01 ESC. 02 A con lamina pavonada RUTA SERVICIO RUTA OFICINISTA

Conexión con inmueble de valor patrimonial

Corte A DUCTO SH. DISCAP. SALA DE ESPERA SALA DE JUNTAS MODULABLE 02 SALA DE MODULABLE 01 SALA DE JUNTAS MODULABLE 03 PISO 8 A C C TERRAZA ESC. 01 lamina pavonada proyección postensada A2 RUTA SERVICIO RUTA OFICINISTA VIENTOS VIENTOS LIMP. SH. DISCAP. SALA DEL PRESIDENTE DEL DIRECTORIO SECRETARIA GERENCIA DE ADMINISTRACIÓN GERENCIA DE FINANZAS GERENCIA DE NEGOCIOS COWORK AUXILIARES ARCHIVO PISO 5 TERRAZA ESC. canaleta con rejilla proyección viga postensada proyección postensada A2 RUTA SERVICIO RUTA OFICINISTA VIENTOS VIENTOS LACTARIO COMEDOR SALA DE SH. PISO 7 9 ESC. A B Paneles fotovoltaicos 440 Wp RUTA SERVICIO RUTA OFICINISTA TECHO

Contáctanos:

Turn static files into dynamic content formats.

Create a flipbook
Issuu converts static files into: digital portfolios, online yearbooks, online catalogs, digital photo albums and more. Sign up and create your flipbook.
MAP - Portafolio 2023 by maparquitectos - Issuu