INTERIOR DESIGN PORTFOLIOS

Page 1

INTERIOR DESIGN PORTFOLIOS

黃茂軒

undergraduate selected work by mao-xuan

ABOUT ME

HUANGMAO

XUAN

黃茂軒

National Taichung University of Science and Technology

INTERIOR DESIGN

GMAIL:yaaa911108@gmail.com

Instagram:mao_xuan118

目前就讀國立臺中科技大學室內設計系三年級

,已有學習平面及3D製圖操作、人因工程、基 本設計、施工圖等課程。以及PS、AI。

自我評價SELF ASSESSMENT

工作負責,喜歡嘗試新事物,掌握專業基礎及知 識,目前想要培養實務方面的能力,拓展知識面 的同時,也能開始著手與應用。

希望在未來可以進入貴公司實習,學習不同的設 計思維,及專業知識。為日後規畫能多一份見聞 與視野

實習經驗 台中尚緹室內設計 2023/7~2023/8

得獎紀錄 四校聯評-佳作 兩岸手繪獎-一等獎

AUTO CAD SKETCH UP ENSCAPE AI PS

新生活思考-

舊糖廠活化新生-

探尋密所 漫遊新巷往

PROJECT1

新生活思考

漫遊新巷往

最大化開放空間與多層次視角營造生活驚喜感 感受生活的當下

透過在盒子框架中置入事件盒擠壓成多變及流動的垂直巷弄,穿插虛實 的縫隙,多變的轉折帶領著參訪者去發掘。

讓人能以不約束,打破框架的觀賞視角,感受日常美好事物與空間的融 合,並重新擁有專注於當下的生活態度

-

/DESIGN STRATEGY 設計手法

/銷售策略

大程度的使人停留與進入,並在無意間透出

預售屋資訊,引發好奇心,開始漫遊其中

盒子 裡面有甚麼?

/量體生成

STEP1.框架生成

STEP2.錯開置入事件盒並連接

STEP3.延伸暗示入口

遊走者

看房者

將遊走者與看房者的動線分

開,確保看房品質的同時, 使遊走者在進出空間時,互 相交錯的視線也增加有趣性

STEP4.綠意置入與滲透

垂直向外延伸的階梯,沿 路的平台端點放置綠植與

展品,圍繞整體建築,感 受漫遊氛圍,觀看建築不 同面向

入口以如公園般輕鬆的 交誼空間,吸引人群入 內遊走

遊走者與看房者不經意 視線交集

/DESIGN STRATEGY 設計手法

一樓層做到最大開放,吸引人流進入,停留與遊走
/1 FLOOR PLAN一層平面配置圖
麗水街9巷 1.交誼廳 2.飲料廚房 3.警衛室 4.廁所 5.宴會廳 6.停車場

1.接待大廳

2.洽談室1

3.員工休息室 4.放映空間

二樓外部開始進入開放的平台與廊道,內部則開始讓 遊客與看房的人管制

三樓外部能看見些許樣品屋與近距離接觸材質,內部則為洽談空間與 樣品屋 /3FLOOR

1.樣品屋 2.洽談室2、3 3.廁所 4.模型展示

PLAN三層平面配置圖
/2FLOOR PLAN二層平面配置圖

/DESIGN STRATEGY 設計手法

1F交誼空間 2F廊道空間 2F廊道空間

25坪 一房一廳

多變化的家具,讓我在

家中能自在的選擇尺度 35坪

二房一廳
1F藝術空間 2F接待大廳

PROJECT3 咔脆食驗室

後疫情新餐廳模式

加入科技精準測量你的心,滿足所有人的味蕾

-滿足所有人味蕾的TACO-這家餐廳,打造完全個性化飲食,從點餐結合科 技使配料比例更精準,調製(實驗出)專屬自己的配方(配方小卡片)到入座的 自由選擇。 當平時作為難接近的空間如果被打開來在街頭會是甚麼樣子?把科技實驗室 意象與街頭的自在感融入空間,人人都能進入實驗的歷程創作自己的TACO ,成為科學家,

THE TACOS LAB

/販賣品項 專屬個人口味的TACO

當街頭食物結合嚴謹的科技實驗室 能夠掌控專屬個人的配方

/消費旅程

/自在的時間與距離

1.讓顧客擁有社交距離自主權

-

2.因應用餐密集時段補充食材

-

3.營業時間:24H

4.線上點餐:快速外帶自取

STEP1.建築塊體 STEP2.塊體分割 STEP3.製造層次 STEP4.置入物件 STEP5.加入外牆(完成)
觀看機械手臂運作製餐 等待製作 獲得餐點-找到心儀座位,與朋友分享 領取餐點 Hey bro do you have this card? NO? FUCK YOU
/量體發展 看見入口意象被吸引 QR CODE 或電子螢幕-獲得配方
Delicious big mushrooms Delicious big eggplant YUMMY carrot THE TACOS LAB Your food recipes THE TACOS LAB. 2023
站立式 倚靠式 座位式 /DESIGN STRATEGY 設計手法

1F天花板圖

2F天花板圖

CH:300 CH:265 CH:265
1.點餐空間 2.等待區 3.虛擬投影 4.取餐區
/2FLOOR PLAN二層平面配置圖 /1FLOOR PLAN一層平面配置圖
1.座位區 2.取餐區 3.製餐區 4.廁所

/DESIGN STRATEGY 設計手法

取餐區-管道送餐

按鈕形式,手機及螢幕通

知取餐

LED燈條

入口意象-三向的開放出入口

親子教室-配置活動 平時作為座位區,假日 作為活動空間

將氛圍延伸至室外,並引導視線入

內至點餐區,即使不用餐也能進來

走走逛逛

即時投影-透明化料理過程

吸引目光,傳遞安心意象

製餐區-機械手臂製餐 可觀賞的亮點空間,實際 看見製餐過程

可變動座位型態

自動清潔 調整使用尺度

2F用餐空間 2F製餐區 局部 1F點餐區

PROJECT2

探尋秘所

探索與尋找記憶的場所

在舊糖廠以每個人記憶中擁有的”秘密基地”為起點,透過層次堆疊與虛實變 化串聯起整個空間,能自在的探索並尋找安逸的所在。連結在地,並共同創造 集體記憶

THE HIDEOUT

舊糖廠活化新生

/DESIGN STRATEGY 設計手法

/量體發展

創造入口意象

空間退縮,吸引並引發好奇心 STEP1. 垂直面交疊

創造氛圍與連結外部 STEP4. STEP3. 水平面延伸

控制尺度,加強角落感受

創造自由動線與散落節點 營造探索感 STEP2. 光線與植栽引入

/材料虛實關係

將材料分為五個層級

在空間上營造不同程 度的光影變化與虛實 交錯。能在空間中感 受有趣的視覺互動

實 虛
80 - 60 - 40 - 20
100 -
1.廚房空間 2.咖啡角落
/FLOOR
3.沙發觀影 4.入室玄關
PLAN平面配置圖

/DESIGN STRATEGY空間設計手法

/A-A’剖立面圖

/B-B’剖立面圖
飲料吧檯 內用座位 內用座位 展演舞台 外部景觀

PROJECT4 浮嶼敘境 居家設計

/DESIGN STRATEGY空間設計手法

/業主設定

兩人-一對3、40歲的夫妻

兩人都非常好客,重視社 交生活,時常邀請親友前 往家中一同聚會。

/材質計畫

STEP1.-漸層高低差

創造場景感與主次關係,向室外 層遞帶來開闊感

低反射不鏽鋼-映 射海面的蔚藍感 ,及置身於島嶼 中的感受,櫃體 相互呼應,新型 態島嶼 白乳膠漆塗料-襯 托出紋理材質

洞石-呼應週邊環 境,營造如身處 海島般,料理的 自然感

木頭-溫潤暖和的 質感中和海洋的 清冷嶼

STEP2.-散落節點

增加使用可能性,流動的動線使空 間鮮活、不死板,並創造更多交流 機會

將空間比 喻 為島嶼般擁有多樣性且能自在遊走,廚房作為家的中心(聚會的中心)能 夠 滿足各個 使用面向。

STEP3.-內外融合

材質與部分鋪面創造延續性,空間 相互呼應

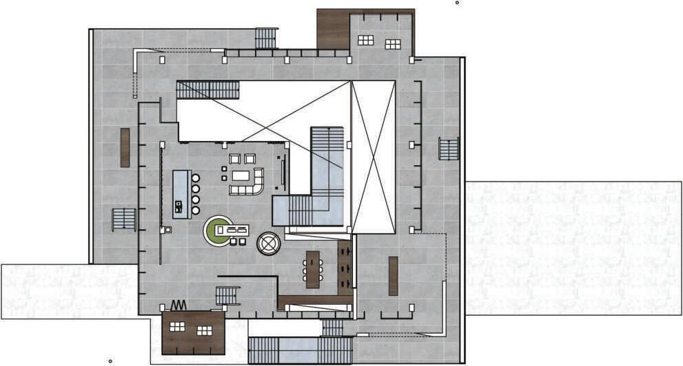
1.廚房空間 2.咖啡角落 3.沙發觀影
/FLOOR PLAN平面配置圖
4.入室玄關
1. 2. 3. 4.

/DESIGN STRATEGY空間設計手法

/影廳地坪分界

退縮牆面創造戶外空間,並在室內延伸戶外地坪使用 ,在視覺上模糊室內外界線

/置入物件打破方正格局

自由動線造就流動空間,石頭材質彼此之間相互呼應

元素增強與室外的連結感。

/BBQ燒烤PARTY

切割島台,分出功能區,增加使用 尺度

燒烤台使用側排式抽油煙機,避免 油煙散出

/咖啡角悠閒午後

在動線與吧檯之間安排一處小空間, 彷彿置身於咖啡廳,人多的時候融入 環境,人少的時候則是屬於自己的一 方天地。

中間凹槽處能作冰桶使用 /等角圖

中島廚房視角 看海視角 看海視角 局部

PROJECT5

2023THD Award

光景 茶事

一本書,一 杯茶,悠閒 於其中,隨 心閱讀,在

一方天地享 受禪意人生

透過光景引入室內,加入木材、 枯枝、植栽等自然元素交織出互 動式家具體驗所。以景生禪,帶 給使用者靜心享受氛圍。一本書 ,一杯茶,一席座位,悠閒於其 中,隨心閱讀,在一方天地,享 受蟬意人生

INTERIOR DESIGN

PORTFOLIOS

undergraduate selected work by mao-xuan

Turn static files into dynamic content formats.

Create a flipbook
Issuu converts static files into: digital portfolios, online yearbooks, online catalogs, digital photo albums and more. Sign up and create your flipbook.
INTERIOR DESIGN PORTFOLIOS by 黃茂軒 - Issuu