Portafolio de trabajos

Page 1

PORTAFOLIO

DE TRABAJOS DE DISEÑO, DIBUJO EN AUTOCAD Y MODELADO EN REVIT

MANUEL GUERRERO LÓPEZ

Presentación

Soy Manuel Guerrero López, un joven arquitecto en búsqueda de adquirir nuevos conocimientos y experiencias que enriquezcan mi quehacer profesional y que hagan de un mí un profesionista. más completo.

Hasta ahora he participado en proyectos residenciales de carácter unifamiliar y de departamentos, así como proyectos de índole cultural y comercial.

Lo que presento en este portafolio es una muestra del trabajo que he realizado en cuanto a modelado, documentación y diseño tanto en Autocad como en Revit.

2
3 La Moria, España 4 Casa de Celorio, España 8 Centro Cultural Kino 70, Rep. Checa 12 Departamentos en Cd. de México 16 Sucursales Walgreens, E.E.U.U. 18
CONTENIDO

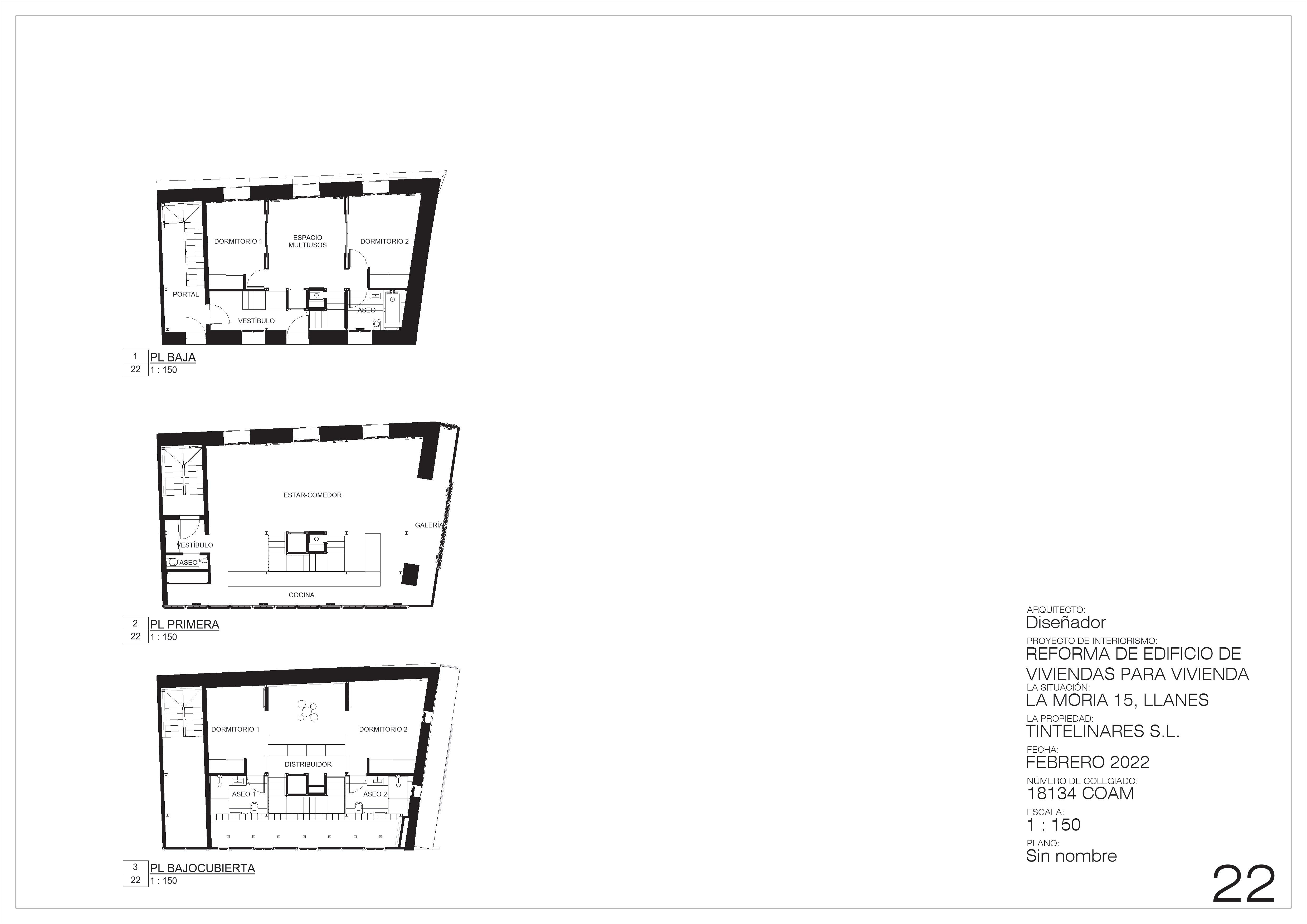
La Moria, España

Se trata de un proyecto de remodelación de interiores de una vieja casona. Este proyecto se hizo originalmente en Autocad, y tiempo despúes, al retomarse, se modeló también en Revit; produje plantas, secciones y vistas 3d que se renderizarían más tarde para presentación del proyecto.

4
5

El proyecto contaba con un acceso común a una propiedad vecina, por lo que se contempló también remodelar dicho acceso. Las siguientes imágenes corresponden a las plantas arquitectónicas de la casona y la estructura de la nueva escalera para el portal.

7

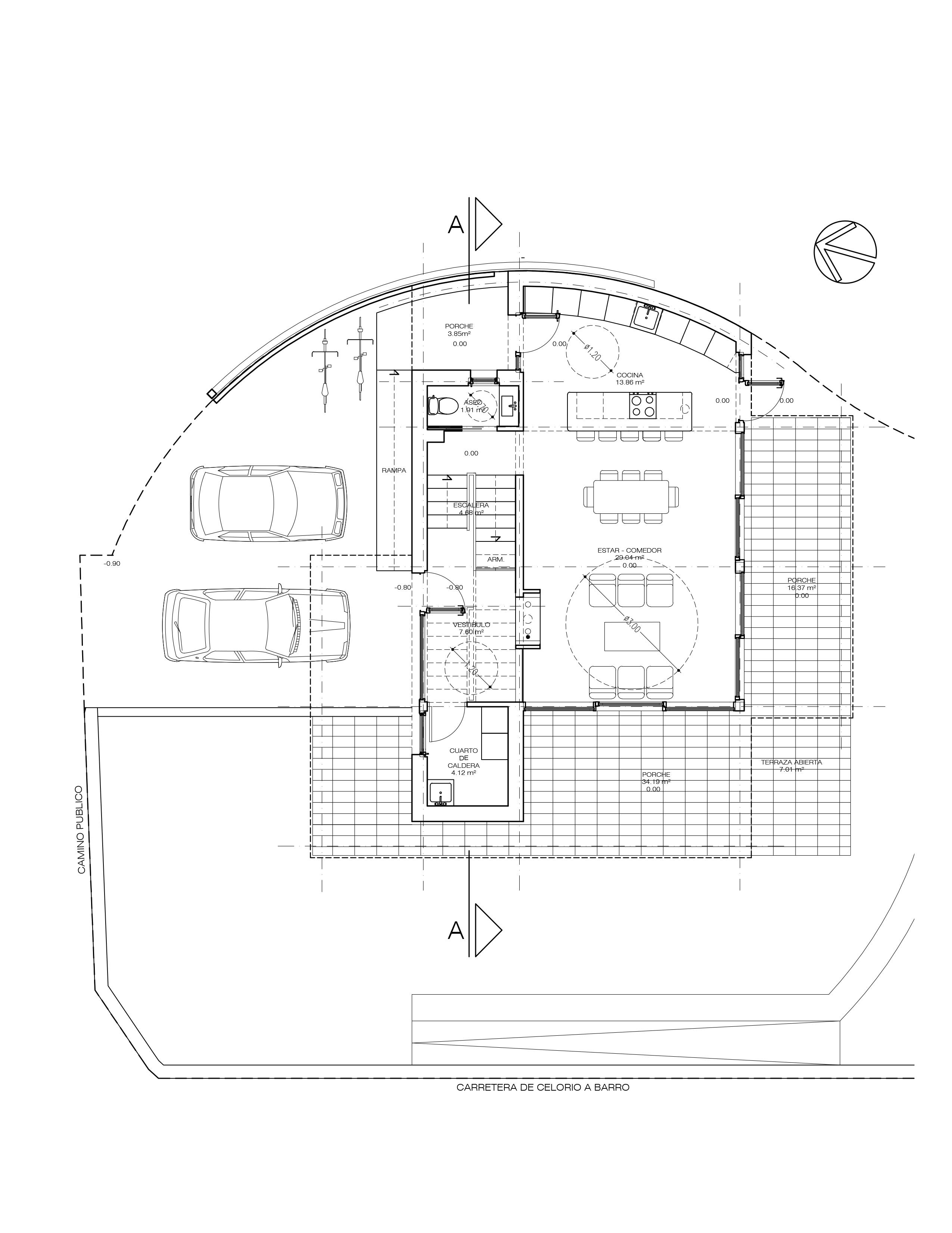
Casa de Celorio, España

Este fue un proyecto de obra nueva que contempló los estándares Passivhaus para un adecuado rendimiento energético, por lo que es esencial asegurarse de aislar correctamente el edificio y coordinar las instalaciones de ventilación mecánica, para lo cual Revit ha sido una excelente herramienta.

Al igual que el proyecto anterior, éste fue proyectado en Autocad originalmente, y conforme se ha desarrollado el modelo se han ido realizando cambios al diseño relativos al sistema constructivo.

Planta baja

9

Para este proyecto de casa habitación modelé la estructura con base en los planos que el estructurista elaboró.

Se incluyeron elementos como los módulos para el forjado sanitario, lo cual le da mucha más precisión al modelo y a las futuras cuantificaciónes de concreto.

Tambien modelé familias paramétricas de puertas y ventanas, con el fin de adaptarlas en caso de cambios y de reutilizarlas en nuevos proyectos.

La atención al detalle fue notable en este modelo, ya que incluso la cubierta de zinc está modelada de acuerdo a los detalles de instalación proporcionados por los proveedores de dicho material.

Vista isométrica del modelo, vista noreste

10
11
Sección isométrica del modelo, vista noreste Vista isométrica de la estructura

Centro Cultural Kino 70, República Checa

Esta fue la propuesta para un concurso de ideas cuyo objetivo era obtener el nuevo diseño para la rehabilitación de un antiguo cine en la ciudad de Nové Město nad Metují, en República Checa.

De manera general, el proyecto contempla el centro cultural con una gran sala multifuncional, un salón multiusos de menor escala, un café, una gran plaza pública, y un patio de servicio.

Se utilizó Autocad para dibujar los planos, Revit para el modelo 3d, Illustrator para los diagramas y Photoshop para las láminas.

Modelo 3D, vista suroeste

Diagramas de la propuesta

12
13
Planta baja

Vista sur

Vista este

Sección A-A

Sección C-C

14
15
Gran salón multifuncional Modelo 3D, vista sureste Salón flexible

En este proyecto había que diseñar dos departamentos en la parte superior de dos torres de departamentos de 4 niveles ya existentes. El dueño del proyecto, el señor Roberto, especificó que quería que los deparmentos brindaran una sensación de gran amplitud, grandes ventanales y un roof garden privado en la azotea.

Una parte importante a considerar fue la ubicación ya dada de los ductos de instalaciones, misma que el proyecto nuevo respetó adecuándose a ella.

16
VACIO VACIO ducto VACIO b VACIO VACIO VACIO b ducto A C E G F B D 1 2 3 4 5 6 7 8 9 10 11 A C E G F B D 1 2 3 4 5 6 7 8 9 10 11 3.33 9.80 0.98 1.35 0.68 1.38 1.95 3.10 1.08 4.50 1.65 4.30 4.85 4.30 1.65 4.50 1.08 4.18 4.50 4.85 1.05 2.10 2.80 1.05 2.80 2.10 4.50 31.00 3.33 9.80 0.98 1.35 0.68 1.38 1.95 3.10 1.08 3.85 2.30 1.45 4.85 4.18 4.50 4.85 1.05 2.10 2.80 1.05 2.80 2.10 4.50 31.00 1.38 0.83 7.38 3.33 3.00 3.33 2.85 1.08 3.85 2.30 1.45 2.85 RECAMARA 3 ESTANCIA COMEDOR COCINA N.L.A.L +12.50 N.L.A.L +10.00 N.L.A.L +10.00 N.L.A.L +10.00 N.L.A.L +10.00 N.L.A.L +12.50 RECAMARA 1 RECAMARA 2 RECAMARA ESTANCIA COMEDOR COCINA RECAMARA RECAMARA BAÑO 1 BAÑO BAÑO 1 BAÑO BALCÓN BALCÓN C' C D D' A B' A' B C' C D D' B' A' B BAÑO BAÑO ASADOR ESPACIO MULTIUSOS ESPACIO MULTIUSOS ASADOR CUARTO DE SERVICIO CUARTO DE SERVICIO SIMBOLOGÍA UBICACIÓN ESCALA PROPIETARIO PROYECTÓ Y DIBUJÓ FECHA PLANO CLAVE COTAS 1:100 METROS DEPARTAMENTOS CON ROOF GARDEN SR. ROBERTO VELASCO GONZALEZ SEPTIEMPRE 2021 MANUEL GUERRERO LÓPEZ CALLE 12 No 46, COL. MOCTEZUMA 3a SECCIÓN PROYECTO NLAL: NIVEL DE LECHO ALTO DE LOSA NP: NIVEL DE PRETIL NB: NIVEL DE BARDA SÍMBOLO DE NIVEL EN PLANTA A-1 PLANTAS ARQUITECTÓNICAS PLANTA ROOF GARDEN PLANTA DEPARTAMENTO VACIO ducto ducto 2 3 4 5 6 7 8 9 10 11 3.10 1.08 3.85 2.30 1.45 4.85 4.18 4.50 4.85 1.05 2.10 2.80 1.05 2.80 2.10 4.50 31.00 2.85 1.08 3.85 2.30 1.45 2.85 COCINA N.L.A.L +10.00 N.L.A.L +10.00 RECAMARA 1 COCINA RECAMARA BAÑO 1 BAÑO BAÑO 1 BAÑO C' D A A' CUARTO DE SERVICIO CUARTO DE SERVICIO SIMBOLOGÍA
Departamentos en la Cd. de México
17 A C E G B D F 2.50 1.00 0.30 2.50 2.50 2.20 N. P. 15.20 N.L.A.L + 15.00 0.30 2.20 0.30 0.90 0.30 1.20 1.30 2.20 0.30 1.10 0.57 0.83 LÍMITE DE LA ACTUACIÓN ESTANCIA-COMEDOR BAÑO 1 BAÑO ESPACIO MULTIUSO BAÑO A B E G F D C 2.50 1.30 0.30 2.50 2.50 2.20 N.B. + 15.00 0.30 2.50 0.90 0.30 1.30 1.25 0.30 1.10 0.57 0.83 0.90 0.95 LÍMITE DE LA ACTUACIÓN ESPACIO MULTIUSO ESTANCIA-COMEDOR COCINA CUARTO DE SERVICIO ESTACIONAMIENTO ESTACIONAMIENTO separación de colindancia 0.10 m. separación de colindancia 0.10 m. A B E G F D C 15.20 N.L.A.L + 5.00 N.L.A.L + 2.50 N. P. 13.60 N.L.A.L + 10.00 N.L.A.L + 7.50 2.50 2.20 13.60 1.10 2.50 1.40 2.50 1.10 1.40 1.10 2.50 1.40 0.30 2.50 2.50 N.L.A.L + 12.50 2.20 N. P. 15.20 1.40 LÍMITE DE LA ACTUACIÓN JARDIN N.J. -0.15 separación de colindancia 0.10 m. separación de colindancia 0.10 m. A C E G B D F 15.20 N.L.A.L + 5.00 N.L.A.L + 2.50 N. P. 13.60 N.L.A.L + 10.00 N.L.A.L + 7.50 2.50 2.20 13.60 1.10 2.50 1.40 2.50 1.10 1.40 1.10 2.50 1.40 0.30 2.50 2.50 N.L.A.L + 12.50 2.20 N. P. 15.20 1.40 LÍMITE DE LA ACTUACIÓN UBICACIÓN ESCALA PROPIETARIO PROYECTÓ Y FECHA PLANO 1:100 DEPARTAMENTOS SR. ROBERTO SEPTIEMPRE MANUEL COL. MOCTEZUMA PROYECTO NLAL: NIVEL DE NP: NIVEL NB: NIVEL SÍMBOLO EN CORTES Y FACHADAS FACHADA PRINCIPAL FACHADA POSTERIOR CORTE C-C' CORTE D-D' 2 3 4 5 6 7 8 9 10 11 N.L.A.L + 7.50 2.50 1.40 0.30 2.50 2.50 1.10 N.B. + 15.00 0.30 1.10 0.80 1.10 N.P. + 13.60 1.40 0.30 1.10 1.10 0.80 1.10 0.30 N.P. + 15.20 LÍMITE DE LA ACTUACIÓN RECAMARA 1 RECAMARA 1 BAÑO COCINA COCINA RECAMARA 1 RECAMARA 1 BAÑO COCINA COCINA BALCON BALCON 2 3 4 5 6 7 8 9 10 11 N.L.A.L + 10.00 N.L.A.L + 7.50 2.50 1.40 0.30 2.50 2.50 N.L.A.L + 12.50 1.10 N.B. + 15.00 0.30 1.10 0.80 1.10 N.P. + 13.60 1.40 0.30 1.10 1.10 0.80 1.10 0.30 LÍMITE DE LA ACTUACIÓN ESPACIO MULTIUSO ESTANCIA-COMEDOR BALCON SALA DE ESTUDIO/TV CL RECAMARA 2 COCINA ESTANCIA-COMEDOR BALCON SALA DE ESTUDIO/TV CL RECAMARA 2 COCINA ESPACIO MULTIUSO SR. CORTE A-A' CORTE B-B' 2 3 4 5 6 7 8 9 10 11 N.L.A.L + 10.00 N.L.A.L + 7.50 2.50 1.40 0.30 2.50 2.50 N.L.A.L + 12.50 1.10 N.B. + 15.00 0.30 1.10 N.P. + 13.60 1.40 0.30 1.10 1.10 0.30 LÍMITE DE LA ACTUACIÓN RECAMARA 1 RECAMARA 1 BAÑO COCINA ESPACIO MULTIUSO COCINA RECAMARA 1 RECAMARA 1 BAÑO COCINA ROOF GARDEN COCINA BALCON BALCON 2 3 4 5 6 7 8 9 10 11 N.L.A.L + 10.00 N.L.A.L + 7.50 2.50 1.40 0.30 2.50 2.50 N.L.A.L + 12.50 1.10 N.B. + 15.00 0.30 1.10 0.80 1.10 N.P. + 13.60 1.40 0.30 1.10 1.10 0.80 1.10 0.30 LÍMITE DE LA ACTUACIÓN ESPACIO MULTIUSO ESTANCIA-COMEDOR BALCON SALA DE ESTUDIO/TV CL RECAMARA 2 COCINA ESTANCIA-COMEDOR BALCON SALA DE ESTUDIO/TV CL RECAMARA 2 COCINA ESPACIO MULTIUSO SR. CORTE A-A' CORTE B-B'

Sucursales Walgreens

Modelé sucursales de las farmacias Walgreens a partir de planos As-is y archivos de nube de puntos. Se modelaba (siguiendo los criterios arquitectónicos dados por la empresa) la arquitectura exterior, interior, se sembraban familias de mobiliario y equipamiento electrónico, esto con el fin de crear una base de datos con las sucursales existentes y sus características actuales, de la cual poder partir para futuros proyectos de remodelación e inventarios.

Yo como modelador de arquitectura entregaba planos de áreas, de dimensiones, de plafones, fachadas y de acabados en pisos.

18
19 Square Foot Area Summary General Sales Pharmacy Photo Rx Service Rx Waiting Service Stock 4 E D C B A 3 2 1 9924 SF General Sales 797 SF Pharmacy 435 SF Photo 206 SF Rx Waiting 118 SF Rx Service 1222 SF Stock 940 SF Service 698 SF Service Square Foot Area Summary General Sales Pharmacy Photo Rx Service Rx Waiting Service Stock DN 4 E D C B A 3 2 1 22' 6" 5" 13' 5" 10' 0" 5" 15' 0" 3' 8" 13' 0" 12' 0" 5" 25' 7" 10" 2" 35' 35' 33' 6" 33' 6" 138' 1' 2" 4" 7" 14' 10" 3' 4" 14' 0" 45' 9" 4' 0" 12' 0" 12' 0" 39' 0" 63' 7" 7" 11" 2" WALGREENS DATE: CADD PLOT: REVIEWED: DRAWN BY: REVISIONS NO. DATE BY DESCRIPTION STORE PLANNING + DESIGN DEVELOPMENT 106 WILMOT ROAD DEERFIELD, IL 60015-5105 HEREBY CERTIFY THAT THIS PLAN AND SPECIFICATION WAS PREPARED BY ME OR UNDER MY DIRECT SUPERVISION AND THAT AM A DULY REGISTERED ARCHITECT OR ENGINEER UNDER THE LAWS OF THE STATE OF AS SIGNIFIED BY MY HAND AND SEAL. (ADD LOGO.JPEG TO TITLEBLOCK FAMILY HERE) 17/10/2023 01:59:51 m. 5301 HARDING PIKE NASHVILLE, TN 37205 STORE 05395 A-111 DIMENSIONAL FLOOR PLAN M. GUERRERO (BRICKLAB) A. RATHSACK (ACS) 11/30/2023 EDITABLE FIRM ADDRESS LINE FIRM ADDRESS LINE FIRM CITY, STATE FIRM ZIP CODE FIRM PHONE NUMBER FIRM FAX NUMBER MASTER TEMPLATE SCALE: 1/8" = 1'-0" Dimensional Plan 1 4 E D C B A 3 2 1 SCALE: 1/8" = 1'-0" Ceiling Plan 1 -New 1 Level 1 0" Roof 19' - 2" Parapet 24' - 6" Grade -6" Grade 2 -2' - 4 7/8" TOP 32' - 8" 4 3 2 1 Level 1 0" Roof 19' - 2" Parapet 24' - 6" Grade -6" TOP 32' - 8" E D C B A Level 1 0" Roof 19' - 2" Parapet 24' - 6" Grade -6" TOP 32' - 8" 4 3 2 1 Level 1 0" Roof 19' - 2" Parapet 24' - 6" Grade -6" TOP 32' - 8" E D C B A SCALE: 1/8" = 1'-0" North -New 1 SCALE: 1/8" = 1'-0" East -New 2 SCALE: 1/8" = 1'-0" South -New 3 SCALE: 1/8" = 1'-0" West -New 4 Level 1 0" Roof 19' - 2" Parapet 24' - 6" Grade -6" Grade 2 -2' - 4 7/8" TOP 32' - 8" 4 3 2 1 Level 1 0" Roof 19' - 2" Parapet 24' - 6" Grade -6" TOP 32' - 8" E D C B A Level 1 0" Roof 19' - 2" Parapet 24' - 6" Grade -6" TOP 32' - 8" 4 3 2 1 Level 1 0" Roof 19' - 2" Parapet 24' - 6" Grade -6" TOP 32' - 8" E D C B A SCALE: 1/8" = 1'-0" North -New 1 SCALE: 1/8" = 1'-0" East -New 2 SCALE: 1/8" = 1'-0" South -New 3 SCALE: 1/8" = 1'-0" West -New 4 Plano de dimensiones Plano de plafones Fachadas Plano de áreas

Turn static files into dynamic content formats.

Create a flipbook
Issuu converts static files into: digital portfolios, online yearbooks, online catalogs, digital photo albums and more. Sign up and create your flipbook.