Architecture Portfolio 2024

Page 1


ARCHITECTURE PORTFOLIO SELECTED WORK

awatram2@uwm.edu

01. RARE BOOKS ARCHIVE

Comprehensive Design Studio | Spring 2024

02. GEOMETRIE DER RUINEN

Historic Preservation Studio | Fall 2023

03. SINGER PAVILION

Kahler Slater Studio | Fall 2022

04. MIXED USE DEVELOPMENT

Bachelor of Architecture Thesis| 2020

CONTENT

05. KULSHRESTHA RESIDENCE

Professional work | 2021

06. CONSTRUCTION DETAILS

Building Construction| Fall 2022

07. PARAMETRIC PAVILION

Emerging Digital Technology | Spring 2023

Emerging Digital Technology | Spring 2023 and Fall 2023 design construction visualization

08. MISC VISUALIZATION

As a recent graduate with a Master’s in Architecture from the University of Wisconsin-Milwaukee, combined with nearly three years of professional experience in both India and the United States, I bring a unique global perspective to architectural design.

I believe in crafting human experiences that positively impact mental and emotional well-being through design. Throughout my academic journey, I have explored the transformative power of adaptive reuse to minimize environmental impact, reduce waste, and achieve a more responsible approach to architectural development. My vision extends beyond the aesthetic, incorporating a deep understanding of sustainability and inclusivity.

As you peruse my portfolio, you will find a curated collection of projects that showcase my diverse skill set, from conceptual design to meticulous execution. Each project reflects my dedication to creating spaces that seamlessly blend nature and architecture, focusing on design excellence.

EDUCATION

University of Wisconsin- Milwaukee

Master of Architecture (STEM-designated), Concentration: Preservation Studies

2022-2024

Indira Gandhi Delhi Technical University

Bachelor of Architecture

2015- 2020

SKILLS

Drafting and 3D Modeling

AutoCAD

Revit

Sketchup

Rhino

Grasshopper

Presentation and Rendering

Photoshop

Illustrator

InDesign

Lumion

Twinmotion

Enscape

Blender

Documentation

Microsoft Office Suite

Reality Capture (photogrammetry)

AutoDesk ReCap

Digital Fabrication

3D Printing

Laser Cutting

CONTACT

Milwaukee, Wisconsin

E. awatram2@uwm.edu

RESUME

QUALLIFICATIONS

M.Arch from NAAB accredited school | B.Arch | Experience with BIM and 3D rendering techniques

| Space Planning | Experience with Schematic Design, Design Development and Construction Documentation for commercial, single-family and multi-family housing and civic projects | Interior Design | Urban Design | Working knowledge with local building codes, zoning regulations, and ADA requirements | LEED, structural systems, materials, and construction methods | Motivation to produce creative and high-quality work

EXPERIENCE

C-Wise Design & Consulting LLC February 2024 – Present Green Building Design Intern | Iowa City

• Spearheaded the development of schematic drawings and comprehensive documentation for LEED-certified residential projects, advancing sustainable building practices.

• Designed 3D site planning models for the ongoing Resilient Sustainable Future Iowa City project, aligning with client specifications through iterative physical models and detailed renderings

• Prepared and submitted comprehensive documentation for city permits, facilitating project approval and ensuring alignment with building codes, local regulations, and ADA requirements.

• Conducted zoning analyses for multiple commercial projects.

Historic Preservation Institute, UW- Milwaukee July 2023 – September 2023

Student Worker | Milwaukee

• Produced detailed drawings for the Historic American Buildings Survey (HABS) documentation, utilizing expertise in Autodesk Revit, ReCap, and CAD to preserve a historic church in Milwaukee.

• Collaborated on the prototyping of architectural elements through cutting-edge techniques such as photogrammetry and 3D printing, enhancing accuracy and efficiency in restoration efforts.

Team3

Junior Architect | New Delhi

October 2020 – July 2022

• Engaged in all phases of design, including programming, schematics, design development, construction documents, and interior packages using AutoCAD, SketchUp, Photoshop, and MS Office.

• Managed the preparation of bills of quantities by accurately assessing material selection, ensuring cost-effective and efficient resource allocation.

• Designed interior and architectural details for single-family and high-density multi-family housing

• Collaborated closely with the design team on a range of commercial and mixed-use projects, driving innovation and cohesiveness in design execution.

• Engaged with clients to develop tailored design strategies, effectively translating their vision into tangible project outcomes through clear communication and visualization techniques.

Tata Consulting Engineers Ltd.

Trainee Architect | Delhi NCR

January 2019 – July 2019

• Assisted in the development of conceptual drawings, construction documents, 3D models, renders, and walkthroughs for a variety of civic and urban-scale projects, leveraging AutoCAD, Revit, and Lumion to create visually compelling and technically accurate representations.

• Conducted in-depth research and created presentations for Smart Cities in India, contributing valuable insights and visual content to support urban planning initiatives.

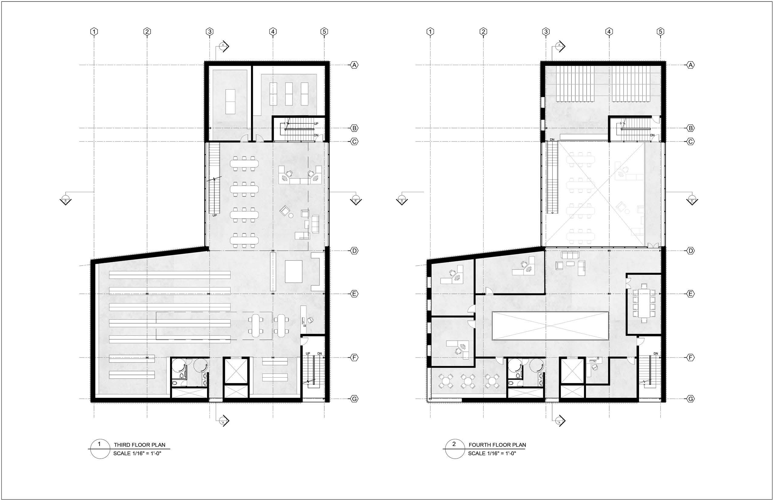
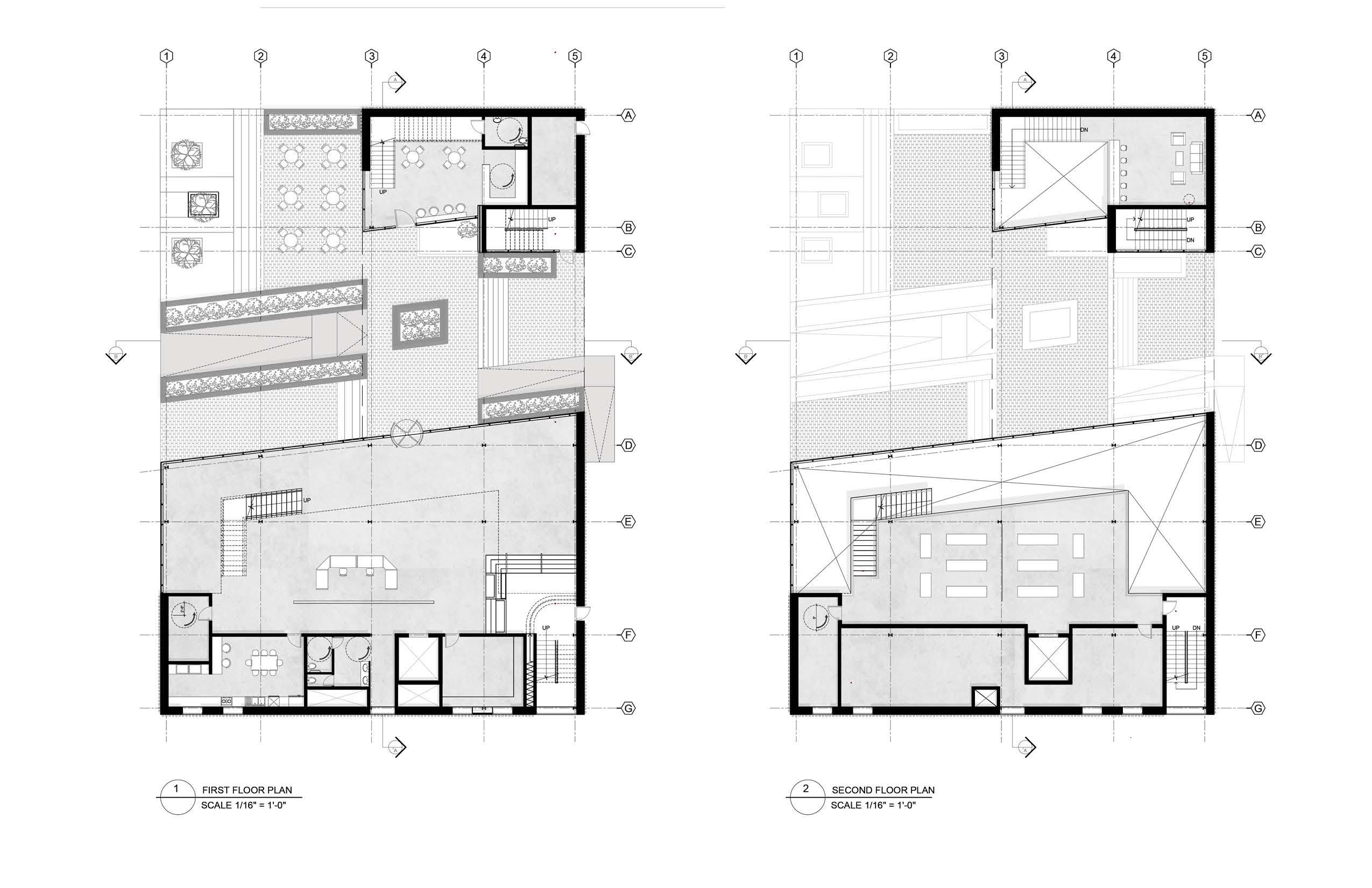
RARE BOOKS ARCHIVE

Comprehensive Studio| Spring 2024

Site location: Milwaukee, Wisconsin

Typology: Education

With its prominent and welcoming plaza with double-height ceiling serving as the entrance to both the Rare Books Archive and the café the design creates a seamless pedestrian network between the Milwaukee City Hall and the Milwaukee DCD Building.

With its alternating composition of brick patterns, the façade of the building brings in the human-scale experience, creating interesting shadows. The dark brick texture also seamlessly blends with the site’s surroundings.

In addition, the building prioritizes sustainability, incorporating eco-friendly elements such as energy-efficient lighting and sustainable materials, ensuring a minimal environmental footprint while enhancing the overall quality of the space. The design not only allows a smooth pedestrian flow between the Milwaukee City Hall and the Milwaukee DCD Building but also prioritizes accessibility features, ensuring comfortable and safe navigation for individuals of all abilities. The incorporation of vision glass in the plaza enhances transparency, forging a strong connection with the surroundings and offering pedestrians a glimpse into the activities going on within the gallery. Furthermore, the accessible green space not only caters to users of the building but also welcomes the public, promoting inclusivity and fostering community engagement.

The design of the elevated reading room optimizes natural light penetration through expansive two-story windows wrapping the east and west façades, ensuring a well-lit interior space. A strategically placed skylight in the reading room provides a visual connection with the surrounding environment, offering stunning views of the Milwaukee City Hall. The inclusion of communicative staircases between multiple levels not only facilitates movement but also promotes physical activity among users. The tight envelope with high wall system R-value combined with high performance triple element low-e glazing assemblies with UV filtration allows the building to maintain temperature and humidity requirements.

Section
Section BB

GEOMETRIE DER RUINEN

Historic Preservation Studio | Fall 2023

Site location: Manitowoc County, Wisconsin

Typology: Adaptive Reuse

Maribel, once a forgotten relic in Manitowoc County, has been adaptively reused in this project, transforming the ruins into an exquisite boutique hotel and achieving a harmonious blend of history and contemporary luxury.

The original structure, characterized by weathered dry stacking stone walls, now houses charming guest rooms that effortlessly marry the past with the present. At the heart of the revitalized hotel is a chic coffee shop, combined with an observatory that rises from the ruins and seamlessly integrates into the historic façade. This unique design leaves the ruins underneath to take on a new form—a beautiful landscape garden.The elevated observatory allows guests to immerse themselves in the beauty of the surroundings.

The overall site design showcases a thoughtful integration of architecture and nature through a skywalk, creating a poetic link that gracefully weaves through the dense canopy of trees. This skywalk seamlessly links the two ruins within the county park. The smaller ruins, once a bath house supporting the hotel, have now been transformed into a beautiful wine tasting lounge with a book club on the second floor. This thoughtful repurposing breathes new life into every corner of Maribel, turning it into a captivating destination that honors its history while embracing modern elegance.

First floor Floor Plans
Wall Sections
Sectional Elevation A
West Elevation Section B
East Elevation
Wine Tasting Lounge - Elevation
Wine Tasting Lounge - Section

SINGER PAVILION

Kahler Slater Studio | Fall 2022

Site location: Bronzeville, Chicago, Illinois

Typology: Adaptive Reuse

Team: Anya Vanecek, Sneha Nallagonda, Alex Vite

Role in Project: Concept design, section drawings and renders

When we talk about wellness, we often speak about “healing from within” and “uniting body, mind, and soul.” Inspired by this approach to wellness, we propose a similar approach to adaptively reusing the Singer Pavilion and turning it into a Wellness Center.

This structure currently sits as a ruin of the Michael Reese hospital system, of Walter Gropius, and of Bronzeville. Once vibrant and exemplary, both Singer Pavilion and the surrounding community have faced years of neglect, if not purposeful antagonism.

Our project transforms the Singer Pavilion into a beacon of wellness. The body heals by removing the decrepit interior structure, preserving and reinforcing the skin, and inserting a new, brighter, healthier structure inside. The mind heals by implementing Living Building Challenge standards are incorporated, adopting best practices around healthy building design and programming.

The project was also displayed at the Chicago Architecture Center in collaboration with Kahler Slater architecural firm.

Remove all interior construction, preserving the facade with a reinforcing glulam structure.

Insert a glass enclosure to replace tempered space.

Introduce natural, open-air spaces by selectively “cutting out” nodes of floor plate and surrounding them in open-able Nanawalls.

RAINWATER COLLECTION JUICE BAR

COMMUNITY GARDEN

DISCOVERY GARDEN

LIGHTWELLS

ENTRANCE

ART GALLERY

ART GALLERY PATIO

@ GRADE+3’

WATER PROCESSING

POOL 80°

ACUPUNCTURE STONE WADING POOLS SOUND BATH

RELAXATION DECK

FLOWER BATH 85°

COLD BATH : 53°

HOT BATH 102°

DRY SAUNA

MIXED USE DEVELOPMENT

Bachelor of Architecture Thesis| 2020

Site location: Karkardooma, New Delhi, India

Typology: Mixed-use

Thesis: Research & documentation, concept, planning, final drawings and presentation

The project focuses on breaking through the existing land-use patterns and allow new synergies to be developed, to increase the viability of the space. A variety of spaces that provide the opportunity to enhance the quality of living of the residents residing in the complex, people who walk-in as well as the surounding localities, are planned for the mixed-use complex. Located in close vicinity to the metro station and an inter-state bus terminal, mixed-use can be considered as a smart choice, especially in a city like Delhi.

The aim was to break the stereotypical land-use patterns and increase the viability of the transit- oriented development. It is important to efficiently integrate these land use patterns with the transport infrastructure and other social infrastructure facilities to make the cities livable and smart.

KULSRESHTHA RESIDENCE

Professional work | 2021

Site location: Noida, Uttar Pradesh

Typology: Residential

Project Status: Under construction

Role in Project: Facade working drawings, interior concept, interior drawings, renders

Situated in Delhi NCR region, India, the residence resides in the posh locality of Noida. It is planned based on client requirements one of which was to segregate public and private area of the residence.

The ground floor level comprises of the public areas including the living room, dining room, guest rooms and visitor’s room whilst the upper floors include more of private spaces. The basement offers spaces for entertainment, salon, massage room and gym .

The residence also needed to be and is Vaastu compliantfollowing the ancient Indian design practices related to space, sunlight, flow and function. The facade has two layers consisting of screens and terraces to shade the spaces and also enhance the aesthetics of the residence.

Exploded Facade

CONSTRUCTION DETAILS

LOAD BEARING MASONRY

PRECAST RAINSCREEN ON SITE CAST FRAME

GLASS ON STEEL FRAME

PARAMETRIC PETAL PAVILION

This Parametric Pavilion was designed for Veterans Park along Lake Michigan in Milwaukee, WI.  It is a temporary structure erected as part of the celebration of Independence Day over the threeday weekend of the annual Milwaukee Lakefront Fireworks event.

Software used: Grasshopper

MISC VISUALIZATION

Observation Tower
Software used: Grasshopper

awatram2@uwm.edu

Turn static files into dynamic content formats.

Create a flipbook
Issuu converts static files into: digital portfolios, online yearbooks, online catalogs, digital photo albums and more. Sign up and create your flipbook.
Architecture Portfolio 2024 by mansiawatramani - Issuu