Architecture Portfolio

Page 1

20202023 Architecture Projects
Mălina-Oana
PORT FOLIO
Voinescu

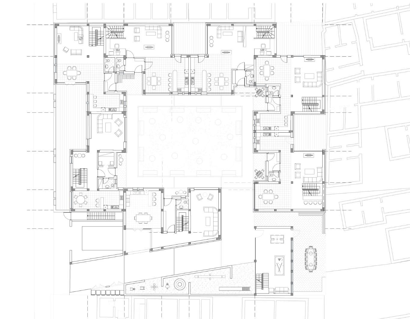
A cluster of houses and a courtyard

Why do we meet such “common courtyards” in the central areas of Bucharest and not in the neighborhoods / slums? – although the presence of a common (blind) wall and the semi detached construction regime is very common in slums, the fundamental difference being that the legal regime of the land is strictly related to a single dwelling, and not to several. Or: why did this typological model remain deeply anchored in the vernacular, disappearing since the interwar period, with the rise of the first collective housing buildings – the first “blocks”? On the one hand, one has to admit that density is an essential barometer of the city’s development. However, the very attainment of certain density parameters for a land (read also: economic parameters) has led to the agglutination of several houses / several families there, even if, by its dimensions, in another urban situation (more peripheral) that land would have been used for just one house. On the other hand, in the mentioned historical interval (late 19th / early 20th century), living in the city center involved rooms for servants and all sorts of small added buildings – which, over the time, ended by being adapted for other residents (they were extended, bathrooms and kitchens were added, etc.), and being used as permanent homes even today

Starting from these premises, we will have to conceive a contemporary housing project, but based on the morpho-typological model of the “common courtyard”, at least 100 years old in the case of Bucharest – or several hundred years in the case of other European cities.

4
5

Moodboard

Wood

It was used on facades that are detached from the structure.

Concrete 1

Concrete was used for the structure. The finish from above can be found from the ground floor to the top floor.

Concrete 2

The finish from above can be found in the underground parking, and it has a rougher appearance.

Pavement Outdoor tiles

Each house has a secluded entrance, which forms a small covered relaxation space, where this pavement is located.

They were used on every terrace, private or shared.

Color

The general color that we see everywhere in the exterior space of these 7 houses.

6
7
8
9

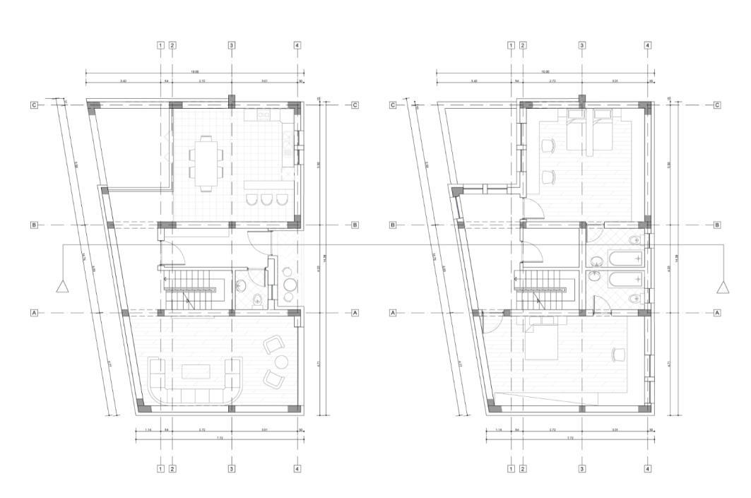
The House of a Family

How can we talk about dwelling today? The ways, in which people have seen themselves living, the very conceptions of what “public” and “private” mean have undergone many changes throughout history. The modern notion of “intimacy” - whose archetypal spatial pair is the bourgeois apartment of the nineteenth century - seemed to resist convincingly in the postmodernity of the late twentieth century, but only until the 128 widespread connectivity of the information society began to radically redefine the ways in which we place ourselves in the world, in which we relate to others and behave in society. However, the simple fact that, most of the time, we keep saying “I go home” when we go to even the most transient rented shelter can give us a temporary answer to the above question. And the forced and very recent retreat into the domestic universe has made us critically re-evaluate a certain euphoria of detachment from place, family, what is stable and settled. We still see each other dwelling. The understanding of dwelling can therefore start from one’s own body, from the way one sits in space, from the gestures and movement of the body. These are not rational actions upon an absolute exteriority. The house and myself: together we act, together we generate and fulfil the gestures of living. And, as Jean-François Lyotard says, we get along well. This layer of understanding leads us to the good detail of architecture, to the active detail, which responds to one’s touch and touches one carefully in return. The second layer is that of the relationship with the world. A third layer of understanding starts from the social nature of our being.

10

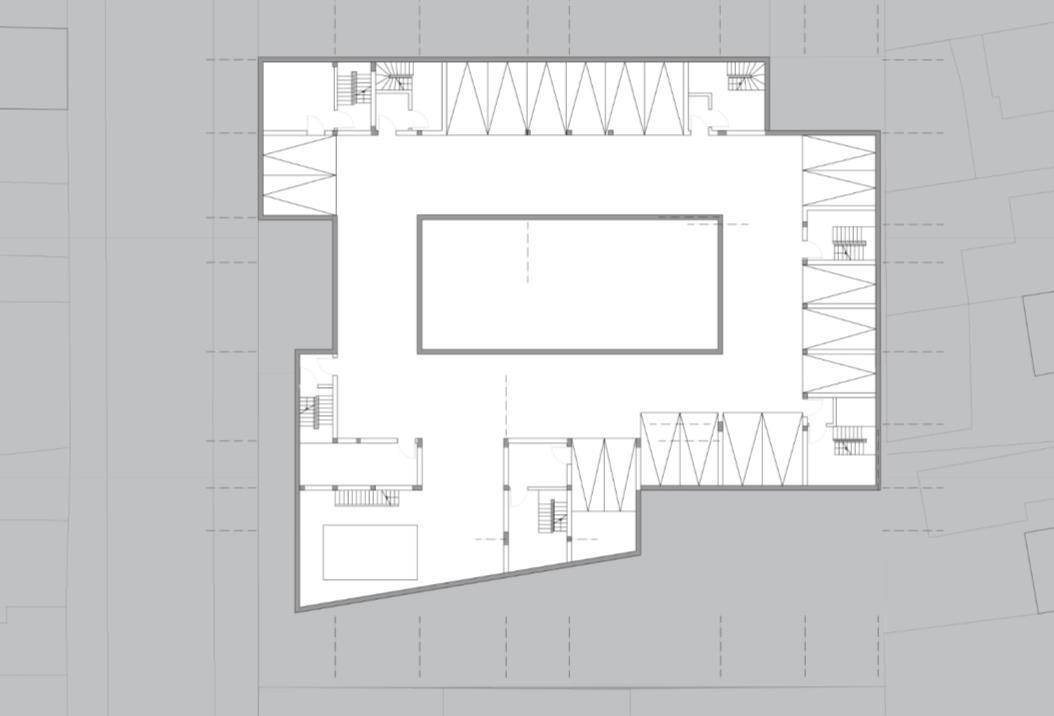
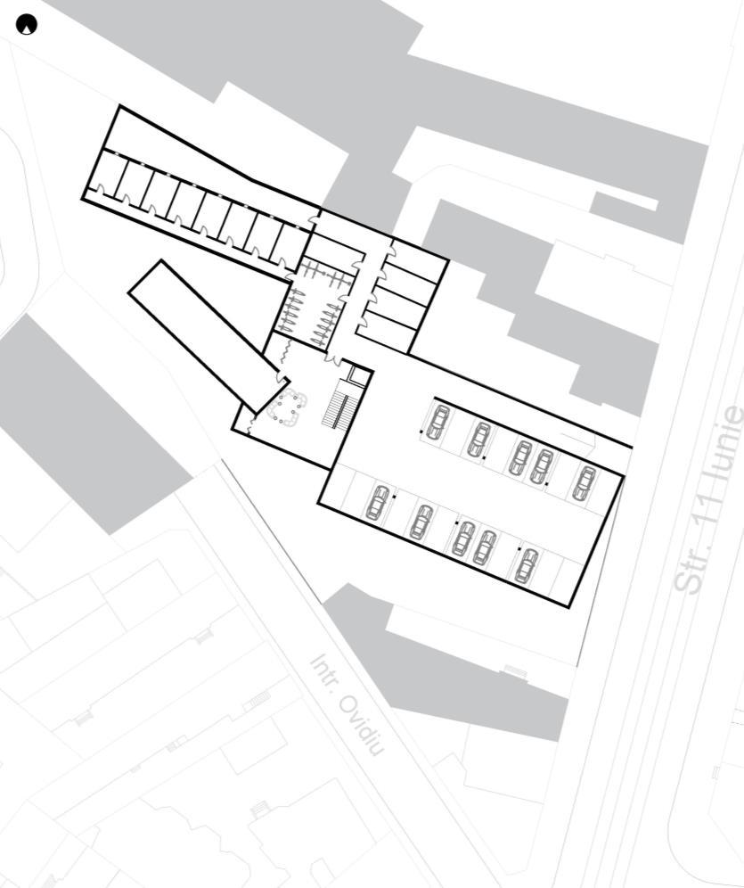
Ground floor & underground parking

12

Sections

13

Facades

14

Places of the City

The concept of place has a basis for understanding in the way we directly receive the lifeworld through various actions in space and time, or, better formulated, through actions of our body in space-time. In this sense, the place is a space traveled (bodily, through a physical effort) in which we perceive approaches and distances (through proximity, topological relations), pursuing specified goals or maybe just a flâneur drift.

Publicplaceasprojectandbuilding

A project concerning the public place involves first of all an awareness of the urban experience through a series of fundamental values identified and synthesized in the lifeworld direct experience, which now appears as a context. Secondly, it proposes the intelligibility and clarity of a formal composition, a coherent configuration, a composition or appearance. Thirdly, it is fulfilled by establishing relationships with other formal compositions, configurations or similar appearances by joining, comparing, confronting in a wider horizon of available precedents, with a consolidated tradition in our discipline through historiography and architectural theory.

Publicplaceasanexperienceoflifeworld
16
17

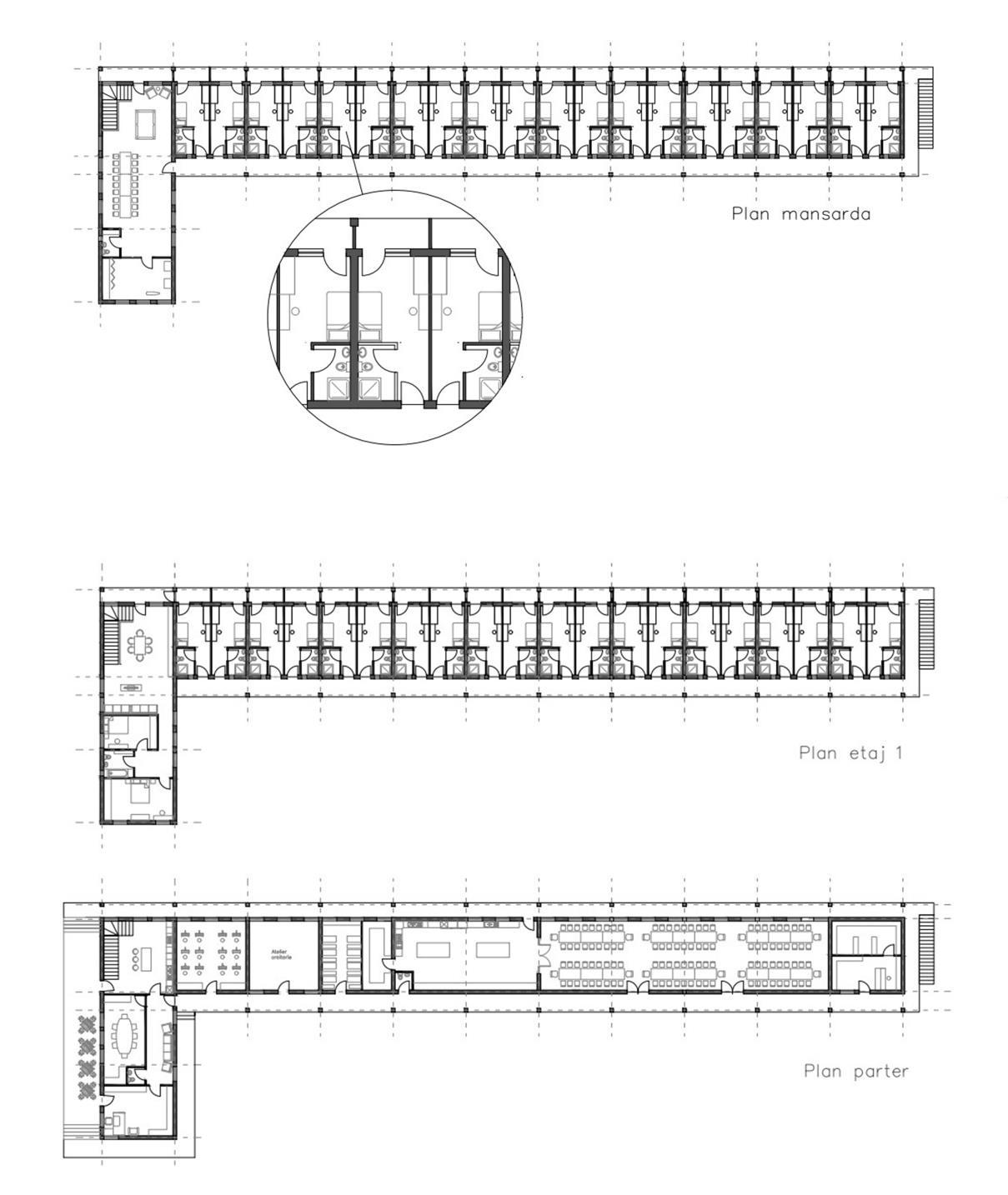
In this project, we carried out several interventions in the urban fabric, namely in the Old Center in the city of Bucharest, Romania Thus, I created numerous functions that the area of the Old Center needed, in my opinion. These interventions were: total (on empty lots, or that were freed considering the demolition of some buildings in bad condition) or partial (working with existing buildings, which could not be demolished due to their character as monuments). I created the following functions:

1.Parking 2.Aparthotel 3.ArtGallery 4.Officebuliding 5.InfoPoint
1 1 2 2 3 3 4 4 5 5 6 6 20
6.Thecoverageofablindwall.
21
Parking

Aparthotel

24
25
Blind wall 26

The places of the city II. Bucharest Architecture Center

Architecture should not be only a problem for architects, but a daily concern of each citizen. After all, architecture is the one producing and transforming the places in which these citizen lives. While obviously a part of the high culture, it also shapes daily life. Therefore the city dweller would like to have a place where he can be upto-date with „what`s what” in the world of construction, in extenso with how his living space evolves. Mainstream information channels certainly don’t cover these aspects, whith the exception of some sensational reportages about some abuses or exotic constructions; as a daily and natural phenomenon and as a subject of debate and civic involvement, architecture is not sufficiently present.

On the other hand, in Romania, besides the ultra-liberal, ultra-individualistic mentality and coruption, the destruction or mishandling of the heritage and the extremely poor quality of the majority of the built environment is a result of a general lack of architectural culture (even among the educated public). However, the problem also lies with us architects: we have strong have difficulties in addressing society, listening to others, making ourselves, our production and our ideas about the city clear to society.

28
29
32
33
34
35
36
37

Personal Project – Hermitage & the abbot's house, Părhăuți Monastery

The "Duminica Tuturor Sfintilor" monastery in Părhăuți is a church founded in 1522 by the great logofater Gavriil Trotusan in the village of Părhăuți in Todirești commune (Suceava county). It was built in place of an older one.

The "Duminica Tuturor Sfinților" monastery in Părhăuți was included on the List of historical monuments in Suceava county in 2015, at number 313, with the classification code SV-II-mA-05580

At the end of the 17th century, during the two campaigns in Moldova (1686 and 1691) of the Polish king Ioan Sobieski III, the church in Parhăuți was deserted. For a long time (according to some authors several decades, according to others almost a century), the place of worship was abandoned, remaining without a roof. Trees and grass grew on the outer vault of the church; following the rains, the plaster fell and the painting was destroyed

38
39

Personal Project – The Challange Academy Competition “University of Architecture

The home. A place known to each of us, isn't it? But when you are not at home, where are you? Everyone has a second "home". And for most of us, that is where we work or we study. ArchiHub is specifically designed to be the second “home" of some of us. Starting from the idea of time and the importance of efficiency, I visualized the life of an architecture student as an athlete's race against time. Thus, the treadmill became our concept, in the idea that ArchiHub aims to make more efficient the progress of things from all points of view, to improve the life of the student or the future student. ArchiHub has several crucial elements:

BAND: Exactly as in the case of an athlete, the route is one and the same. The main shape of the construction is that of an athletics lane, the shape that helps to pass the ones 4 levels much more efficient, the route being an intuitive one, due to the location of the elements.

THE CUBES: The cubes that parasitize ArchiHub function as the heart of the university of architecture: the workshops of design and more. Developing vertically and in a dynamic rhythm, each set of 2 cubes, each class is assigned to one Inspiration from nature is important, and that's why I didn't want it to endanger the student's interaction with it and we chose glass as the main material for the cubes

40
41
44

Programs used:

• AutoCAD

• Rihno

• ArchiCAD

• SketchUp

• Lumion

• Twinmotion

• Photoshop CC

46

Turn static files into dynamic content formats.

Create a flipbook
Issuu converts static files into: digital portfolios, online yearbooks, online catalogs, digital photo albums and more. Sign up and create your flipbook.
Architecture Portfolio by Mălina Voinescu - Issuu