Małgorzata Smołka – CV oraz Portfolio

Page 1


ARCHITEKT

KRAJOBRAZU

PORTFOLIO
MAŁGORZATA SMOŁKA

MAŁGORZATA SMOŁKA

ARCHITEKT KRAJOBRAZU

malgorzata.k.smolka@gmail.com

+48 730 490 950

DOŚWIADCZENIE

Właściciel 2024/04 - do dziś

Kolaż kolektyw

linkedin.com/company/kolazkolektyw Rybnik, Polska

Architekt krajobrazu 2023/04 — 2024/03

Freelancer

Rybnik, Poland

Architekt krajobrazu 2021/07 - 2023/04

RS Architektura krajobrazu krajobraz.com.pl

Warszawa, Polska

Architekt krajobrazu 2018/09 — 2021/07

Freelancer

Wrocław, Poland

Architekt krajobrazu 2015/12 — 2018/08

Młodszy Architekt krajobrazu 2015/07 — 2015/11

Pracownia projektowa ”LAND-ARCH”

Małgorzata Tujko in Cracow landarch.pl

Kraków, Polska

OSIĄGNIĘCIA

2020 Wygrana projektu

Rowerowy Park Mamuta - wyczynowe tory treningowe (etap II) w ramach Wrocławskiego Budżetu Obywatelskiego.

2017 Honorowe wyróżnienie

w konkursie na opracowanie koncepcji urbanistyczno-architektonicznej nowego zespołu budynków dydaktycznych Akademii Muzycznej w Krakowie.

2014 Wygrana projektu Park Wspólnotowy „Ślężański Mamut” (etap I) w ramach Wrocławskiego Budżetu Obywatelskiego.

WYBRANE PROJEKTY

Zagospodarowaie przestrzeni publicznej ulicy Chmielnej oraz ulicy Brackiej w ramach programu Nowe Centrum Warszawy

Przebudowa ulicy Złotej oraz ulicy Zgody w ramach programu Nowe Centrum Warszawy

Port i Marina Wrocław

„Rowerowy Park Mamuta” (etap 2)

Projekt partycypacyjny “Superścieżka”

Komplekts biurowy „High five” przy ulicy Pawiej w Krakowie

Młodszy Architekt krajobrazu 2014/04 — 2015/07

Freelancer

Wrocław, Poland

„Park Mamuta” Park wspólnotowy „Ślężański Mamut” (etap1)

UMIEJĘTNOŚCI

AutoCAD

Adobe InDesign

Adobe Photoshop

Adobe Lightroom

Adobe Illustrator

Sketch-up

KOMPETENCJE PERSONALNE

Zaangażowanie, odpowiedzialność, umiejętność konstruktywnego i kreatywnego myślenia, umiejętność zarządzania własną pracą, umiejętność pracy w zespole.

FAZA

• Koncepcja pokonkursowa;

• Inwentaryzacja dendrologiczna;

• Projekt budowlany;

• Projekt wykonawczy;

• Opinie i uzgodnienia dokumentacji.

• Projekt budowlany;

• Opinie i uzgodnienia dokumentacji.

• Opracowanie przedprojektowe;

• Wstępna koncepcja projektowa;

• Inwentaryzacja dendrologiczna.

• Placemaking.

• Placemaking;

• Inwentaryzacja dendrologiczna;

• Projekt koncepcyjny;

• Projekt wykonawczy.

• Projekt konkursowy oraz koncepcja pokonkursowa;

• Inwentaryzacja dendrologiczna;

• Projekt budowlany;

• Projekt wykonawczy.

• Placemaking;

• Inwentaryzacja dendrologiczna i architektoniczna

WYKSZTAŁCENIE

Uniwersytet Przyrodniczy we Wrocławiu Studia magisterskie 2013/02 — 2014/06

Kierunek: Architektura krajobrazu

Specjalizacja: Kształtowanie i ochrona krajobrazu

Uniwersytet Rolniczy w Krakowie Studia inżynierskie 2009/10 — 2013/02

Kierunek: Architektura krajobrazu

OBOWIĄZKI

• Zagospodarowanie terenu, inwentaryzacja i gospodarka drzewostanem, opracowanie materiałów graficznych, uzgodnienia inwestycyjne, rysunki techniczne i wykonawcze;

• Współpraca z klientem, urzędnikami oraz specjalistami branżowymi;

• Współkoordynajca projektu oraz zespołu;

• Publiczna prezentacja projektu na konferencji 4Design Days w Katowicach.

• Opracowanie materiałów graficznych, częściowe uzgodnienia inwestycyjne, rysunki techniczne;

• Współpraca z urzędnikami oraz specjalistami branżowymi;

• Wsparcie zespołu projektowego.

• Analizy terenu i krajobrazu, inwentaryzacja drzewostanu, wytyczne projektowe, opracowanie materiałów graficznych. wstępna koncepcja projektowa.

• Współtworzenie kampanii promocyjnej;

• Współkoordynajca projektu oraz zespołu;

• Zagospodarowanie terenu, inwentaryzacja i gospodarka drzewostanem, opracowanie materiałów graficznych, rysunki techniczne i wykonawcze wybranych elementów zagospodarowania terenu.

• Zagospodarowanie terenu, inwentaryzacja i gospodarka drzewostanem, opracowanie materiałów graficznych, rysunki techniczne i wykonawcze.

• Współpraca z klientem, urzędnikami oraz specjalistami branżowymi;

• Współkoordynajca projektu.

• Współtworzenie kampanii promocyjnej i warsztatów partycypacyjnych;

• Inwentaryzacja drzewostanem, inwentaryzacja architektoniczna, opracowanie materiałów graficznych.

SPIS PROJEKTÓW:

Zagospodarowaie przestrzeni publicznej ulicy Chmielnej oraz ulicy Brackiej w ramach programu Nowe Centrum Warszawy

Projekt partycypacyjny „SUPERŚCIEŻKA”

Park kultur regionu „TAJEMNICZY OGRÓD”

„PARK MAMUTA” Park wspólnotowy „Ślężański Mamut”

Kompleks biurowy „HIGH FIVE” przy ulicy Pawiej w Krakowie

Ogród sensoryczny przy Centrum Autyzmu

Partycypacja społeczna

Inwentaryzacja dendrologiczna i gospodarka drzewostanem

Projekt koncepcyjny

Projekt budowlany / budowlano-wykonawczy / wykonawczy Realizacja

W portfolio wykorzystano wybrane zdjcia realizacji ze stron internetowych pracowni landarch.pl, vstk.eu, pebek.pl oraz materiały ze strony thenounproject.com.

„(Współczesnemiastomatendencję)dorozluźnianiawięzów, którełączą(jego)mieszkańcówzprzyrodą orazprzekształcać,eliminowaćlubzastępowaćelementyśrodowiskanaturalnego, sztucznymicowzmacniadominacjęczłowieka iwspierailuzjęcałkowitejniezależnościodnatury(...)”.

Lewis Mumford

ZAGOSPODAROWAIE PRZESTRZENI

PUBLICZNEJ ULICY CHMIELNEJ ORAZ ULICY

BRACKIEJ W RAMACH PROGRAMU NOWE

CENTRUM WARSZAWY

WSPÓŁPRACA: RS ARCHITEKTURA KRAJOBRAZU ADRES: ŚRÓDMIEŚCIE, WARSZAWA

INWESTOR: MIASTO STOŁECZE WARSZAWA BUDŻET: 21 600 000 ZŁ POWIERZCHNIA: 12 158 M² DATA WYKONANIA PROJEKTU: 2020 — 2023 DATA REALIZACJI PROJEKTU: W TRAKCIE REALIZACJI

FAZY PROJEKTOWE:

Zagospodarowanie ulic Chmielnej i Brackiej jest jedym z etapów, najważniejszej inwestycji ostatnich lat w stolicy, jaką jest Nowe Centrum Warszawy.

W latach 50. i 60. XX wieku na ulicy Chmielnej znajdowały się jedne z najbardziej prestiżowych i luksusowych sklepów w Warszawie. Na początku XXI wieku postanowiono zmodernizować ulicę tak, aby priorytetowo potraktować rowerzystów i pieszych. Podjęto wówczas decyzję o przekształceniu ulicy w deptak. Transformacja ta przyniosła wiele wyzwań, które nie wytrzymały próby czasu.

Projekt rewitalizacji ulicy jest wielopłaszczyznowy i uwzględnia zmienność oraz

dynamikę miejskich przestrzeni, urbanistykę, architekturę, komunikację, ma za zadanie poprawić bezpieczeństwo, a także wspierać lokalnych przedsiębiorców. Ważnym celem projektowym była poprawa warunków środowiskowych, w tym mikroklimatu.

Jednym z najbardziej innowacyjnych aspektów projektu jest wdrożenie założeń zielono-błękitnej infrastruktury uwzględniająca charakter miejsca. Rewitalizacja w sposób szczególny traktuje historyczną tkankę miejską, wytyczając wizjonerski kierunek na rzecz zrównoważonej, dostępnej i tętniącej życiem kulturowo przestrzeni w samym sercu Warszawy.

SCHEMAT GOSPODAROWANIA WODAMI OPADOWYMI DLA ULICY CHMIELNEJ ORAZ BRACKIEJ

Ulice zostały poddane analizie i podzielone na wnętza. Rodzaj zastosowanych elementów został oparty o specyfikę każdej z części.

ZIELONE PLACE I SKWERY

Z bujną zielenią wysoką, średnią i niską, tworzą malowniczą przestrzeń miejską pełną różnorodności biologicznej.

Profil jest charakterystyczny dla środkowych części ulicy Chmielnej i Brackiej. Zieleń wysoka w znaczący sposób poprawia lokalny mikroklimat.

WSCHODNIA CZĘŚĆ ULICY CHMIELNEJ

RETENCJA ULICZNA

Aby ułatwić komunikację i wesprzeć usługi lokalne, niektóre odcinki ulicy Chmielnej mogą zostać tymczasowo zmienione. Jest to możliwe dzięki zastosowaniu innowacyjnych podwieszanych modułów.

Na placach i terenach otwartych zdecydowano się wprowadzić systemy zarządzania wodą deszczową, których podstawową funkcją jest przekierowanie wód w miejsca przeznaczone do ich dalszej retencji.

ZIELONE ULICE PLACE

MODUŁOWE ZAGOSPODAROWANIE TERENU

Odpowiedzią na zmiany użytkowania przestrzeni miejskich są wizjonerskie modułowe nawierzchnie. Istnieje możliwość reorganizacji miejsca bez konieczności prowadzenia zaawansowanych prac budowlanych. To innowacyjne rozwiązanie zapewnia elastyczną relokację w oparciu o aktualne potrzeby, promując lokalne usługi i poprawiając środowisko miejskie oraz przyrodnicze.

AKTUALNY
„Miastotodługotrwałyproces,

wktórymgłównąrolęodgrywająmieszkającywnimludzie.

Budynkiimsiętylkoprzyglądają.”
Jan Gehl

PROJEKT PARTYCYPACYJNY „SUPERŚCIEŻKA”

WSPÓŁPRACA: PRACOWNIA ’LAND-ARCH’ ADRES: DZIELNICA III, KRAKÓW

INWESTOR: SKANSKA PROPERTY POLAND, GMINA MIEJSKA KRAKÓW

POWIERZCHNIA: 9 395 M² BUDŻET: 700 000 ZŁ

DATA WYKONANIA PROJEKTU: 2016 — 2017

DATA REALIZACJI PROJEKTU: 2017

FAZY PROJEKTOWE:

PK PW R

„Superścieżka” jest pierwszym krakowskim projektem placemakingowym.

W związku z planowanymi inwestycjami, na terenie przyległym do al. Powstania Warszawskiego, powstała możliwość ujednoliconego zagospodarowania terenu uwzględniającego potrzeby użytkowników. Projekt koncepcyjny poprzedzony był warsztatami z udziałem mieszkańców miasta, specjalistami z zakresu dziedzin architektonicznych i planistycznych, w tym również ekspertami z pracowni Jana Gehla.

Ze względu na złożoność zadania, całość podzielona została na 9 części-stref. Skwer im. Mariana Eile stał się pierwszym etapem realizacyjnym projektu „Superścieżka” i objął powierzchnią 9 395m².

W ramach nowej aranżacji przestrzeni wprowadzono alternatywny układ komunikacyjny dla pieszych i rowerzystów. Stworzono niewielkie wzniesienia izolujące przestrzeń od hałasu i ulicznego zgiełku wraz z kameralnymi wnętrzami sprzyjającymi odpoczynkowi. Plac w centrum założenia wyposażono w elementy autorskie, takie jak rzeźba pt. „Wierszownik” autorów Aleksandra Rokosza oraz Szymona Ruszczewskiego, modułowe betonowe ławki, czy fontannę w postaci „wodnego lustra”. Projekt placu zabaw podzielony został na dwie strefy. Pierwszą ogólnodostępną dla dzieci w różnym wieku oraz wydzieloną dla dzieci młodszych. Wkomponowane w otoczenie konstrukcje oraz elementy zabawowe zapewniają warunki do swobodnej, kreatywnej zabawy.

ID

SCHEMAT ZEWNĘTRZNYCH POWIĄZAŃ KOMUNIKACYJNYCH

„Superścieżka” jest projektem urbanistycznym, mającym na celu powiązanie terenów zieleni miasta oraz poprawę komunikacji w dzielnicy i pomiędzy terenami sąsiednimi.

SCHEMAT WEWNĘTRZNYCH POWIĄZAŃ KOMUNIKACYJNYCH

Oprócz placów, skwerów, bulwaru zaprojektowano szereg rozwiązań służących poprawie jakości użytkowania przestrzeni w tym przejścia piesze, przejazdy rowerowe czy woonerfy.

STREFY

Ze względu na złożoność projektu, Inwestycję podzielono na 9 etapów.

ZIELEŃ

Całość założenia uzupełniają malownicze, naturalistyczne kompozycje zieleni atrakcyjnej przez cały rok. Rabaty bylinowe uzupełniono krzewami okrywowymi oraz licznymi nasadzeniami zieleni wysokiej.

FUNKCJE

Dzięki przeprowadzonym warsztatom partycypacyjnym z mieszkańcami, inwestorami i przyszłymi użytkownikami, powstał spis aktywności, które zostały uwzględnione na etapie koncepcyjnym. W rezultacie powstała przestrzeń, w której każdy znajdzie coś dla siebie.

ELEMENTY DODATKOWE

Motywem przewodnim projektu jest sztuka. Powstała infrastruktura, odwołuje się do różnych możliwości jej ingerencji w przestrzeń miejską oraz wirtualną. Wykorzystując przy tym najnowsze technologie.

0 5 15 30m

Maskownica
Fontanna
Plac zabaw
Hamaki
Poczekalnia
Rzeźba
Wzniesienia

„„Wielemożnazobaczyćdziękisamejobserwacji”. Mógłbymjeszczedodać:„usłyszećwięcejdziękisłuchaniu”. Każdymożesięzdumiewającodużonauczyćoprzestrzenipublicznej poprzezobserwacjętego,codziejesięwokółidziękisłuchaniuludzi, którzyzniejkorzystają.”

PARKU KULTUR REGIONU „TAJEMNICZY OGRÓD”

WSPÓŁPRACA: PRACOWNIA ’LAND-ARCH’ ADRES: DZIELNICA III, KRAKÓW INWESTOR: GMINA MIEJSKA KRAKÓW POWIERZCHNIA: 78 753 M²

BUDŻET: 6 000 000 ZŁ DATA WYKONANIA PROJEKTU: 2016 DATA REALIZACJI PROJEKTU: 2019

Istotnym założeniem nowo powstałego parku, było budowanie świadomości ekologicznej i przyrodniczej za pomocą narracji i czynników składowych parku. Kilkutygodniowe warsztaty partycypacyjne przyczyniły się do sprecyzowania i wyodrębnienia potrzeb oraz oczekiwań lokalnej społeczności.

Wyłoniona podczas głosowania idea parku, przyczyniła się do stworzenia niepowtarzalnego projektu „Parku Kultur Regionu”, który przybrał nową nazwę „Tajemniczy Ogród”.

Podczas tworzenia koncepcji zagospodarowania terenu uwzględniono narracyjny charakter zwycięskiego „pomysłu” na park, rozszerzając go o nowe postacie pochodzące z mitologii dawnych Słowian.

Wdrażanie idei zrównoważonego rozwoju zrealizowane zostało poprzez ochronę bioróżnorodności i zachowanie rolno-leśnego krajobrazu, a także wykorzystanie parku, jako zaplecza wodnego dla systemu rzecznego Miasta Krakowa.

Uzupełnienie terenu o dopasowane do charakteru parku elementy małej architektury oraz bogaty program uwzględniający wszystkich użytkowników, ma ostatecznie doprowadzić do poprawy komfortu użytkowania i bezpieczeństwa.

Koncepcja projektowa swoim zakresem objęła działania twarde w postaci zagospodarowania terenu, jak i działania miękkie za których przeprowadzenie i koordynację będzie odpowiadać zarządca pawilonu oraz parku.

P PK R

Uwzględnienie dotychczasowego charakteru i walorów rolniczego krajobrazu.

Trzy ścieżki obwodowe dla rolkarzy, narciarzy biegowych i biegaczy.

Podział aktywności parkowych ochronę przyrody doliny rzecznej.

BŁONIA: 2,7 ha

Wielkie tereny otwarte, niegdyś użytkowane rolniczo, zostały przekształcone na łąkowo-trawiaste błonia.

W ich obrębie znajduje się pawilon wielofunkcyjny, łąka piknikowa, plac spotkań, boisko oraz siłownia.

TAJEMNICZY OGRÓD MARZANNY: 1,2 ha

Ideą tej części, jest stworzenie galerii sztuki na wolnym powietrzu, prezentujące dzieła typu land-art. „Wystawiennicze” wnętrza krajobrazowe zostaną wykonane w młodniku za pomocą tz. „przecinek” Przewidziano ekspozycje stałe oraz tymczasowe.

KRAINA SZEPTÓW: 1,73 ha

Podstawową funkcją obszarów przyległych do rzeki, jest ochrona i promowanie środowiska przyrodniczego Doliny Potoku Sudół Dominikański, w tym celu wprowadzono budki lęgowe dla zwierząt oraz ścieżkę dydaktyczną.

STREFA HISTORYCZNA: 0,39 ha

Szaniec stanowi element centralnie zlokalizowany względem wejścia, od strony ulicy Reduta. Kompozycyjnie, pełni funkcję bramy krajobrazowej, wprowadzając gości do wnętrza parku.

OGRÓD ZMYSŁÓW BALLADYNY: 0,7 ha

W tej części zaprojektowano ogrody etnobotaniczne oraz nasadzenia drzew owocowych. Przewidziane są tu grzędy z roślinami jadalnymi dziko rosnącymi. Atrakcją sadu będzie mała ścieżka pomologiczna.

PSI PARK 0,5 ha

W oddaleniu od otaczającej zabudowy, pośród drzew, znajduje się psi park. Znajduje się w nim tor do agility.

POLETKA ALINY: 0,23 ha

Obszar nastawiony na hortiterapię. Strefa obejmuje ogród ziołowy, modelowy ogród permakultury (przylegający do pawilonu), ogrody społecznościowe wraz z łąkami kwietnymi koszonymi zgodnie z zapotrzebowaniem lub czasowymi projektami artystycznymi.

STREFA SPORTU: 0,1 ha

W parku zaplanowano również wielofunkcyjne boisko z siłownią zewnętrzną, które wykonane będzie z materiałów naturalnych, wpisujących się w otaczający krajobraz.

PLAC ZABAW BZIONKA I CHOWAŃCA: 0,1 ha

Inspiracją placu zabaw dla dzieci starszych są słowiańskie duchy „Bzionek” i „Chowaniec”. Atrakcją będą ażurowe domki na palach, wielopoziomowe systemy lin, siatek do wspinaczki, wiklinowo-drewniane „gniazda”, zjeżdżalnie oraz tunele.

JULKOWY PLAC ZABAW: 0,07 ha

Motywem przewodnim placu są słowiańskie duszki „Juki” zamieszkujące ziemne jamy i doły. Atrakcją placu zabaw dla najmniejszych są obsadzone trawą pagórki, podziemne przejścia, zjeżdżalnie, bujaki oraz huśtawki.

„Miastamajązdolnośćdostarczaniaczegośkażdemu, tylkodlategoitylkowtedy, gdysątworzoneprzezwszystkich.”
Jane Jacobs
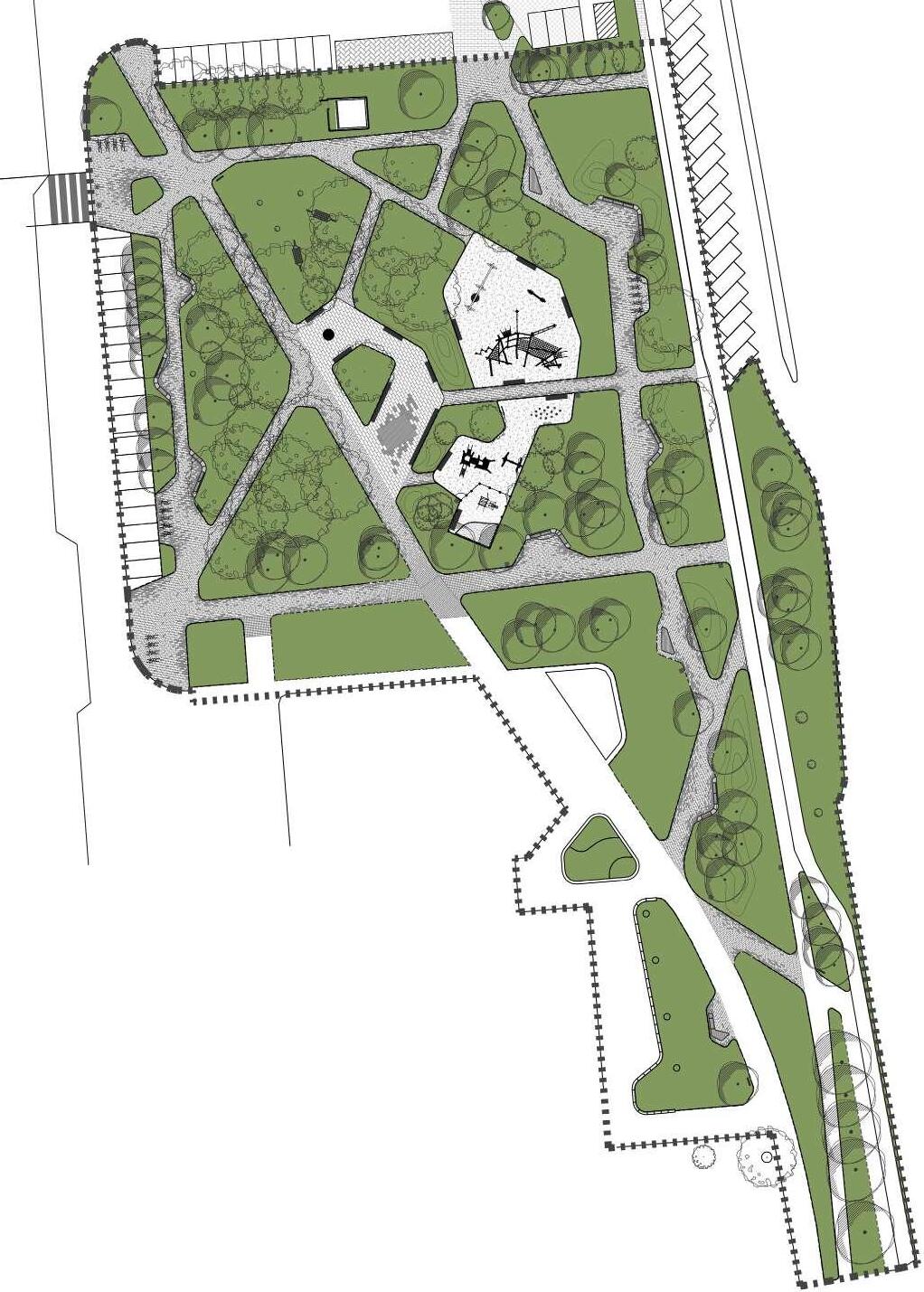
„PARK

MAMUTA”

PARK WSPÓLNOTOWY „ŚLĘŻAŃSKI MAMUT”

WSPÓŁPRACA: DDK SP. Z O.O. ADRES: DZIELNICA OPORÓW, WROCŁAW

INWESTOR: GMINA WROCŁAW POWIERZCHNIA: 125 969 M²

BUDŻET ETAP I: 2 000 000 ZŁ DATA WYKONANIA PROJEKTU ETAP I: 2014

DATA REALIZACJI PROJEKTU ETAP I: 2018 BUDŻET ETAP II: 750 000 ZŁ DATA WYKONANIA PROJEKTU ETAP II: W TRAKCIE DATA REALIZACJI PROJEKTU ETAP II: W TRAKCIE

FAZY PROJEKTOWE:

Park Mamuta jest pierwszym parkiem wspólnotowym we Wrocławiu i wyjątkową inicjatywą w skali całego kraju. Był finalistą Wrocławskiego Budżetu Obywatelskiego w 2014 i 2020 roku.

Park Wspólnotowy „Ślężański Mamut” od samego początku zakładał partycypację społeczności w procesie jego tworzenia. Promocja projektu, a w konsekwencji wygrana w 2014 i 2020 roku była możliwa dzięki ścisłej współpracy projektantów, aktywistów i mieszkańców dzielnicy Oporów. Pomimo trudnej do wykonania koncepcji oraz rozciągniętej w czasie realizacji, park tętnił życiem od pierwszych dni jego ustanowienia. W tym ikresie zostały przeprowadzone różne inicjatywy obywatelskie: parkowe sprzątanie, rodzinne sadzenie drzew, uroczystości upamiętniające pionierów

akademickiej społeczności Wrocławia. Park powstał dzięki sile i zaangażowaniu ludzi chcących stworzyć własną, przyjazną przestrzeń do wspólnego wypoczynku.

Zaangażowana byłam w przygotowanie i prowadzenie kampanii promocyjnej w 2015 roku. Na etapie projektu koncepcyjnego byłam zaangażowana w inwentaryzację architektoniczną oraz dendrologiczną.

W 2020 roku byłam współliderem projektu zgłoszonego w ramach Wrocławskiego Budżetu Obywatelskiego. Projekt o nazwie „Rowerowy Park Mamuta – wyczynowe tory treningowe” jest kontynuacją wizji parku i obejmuje wschodnią cześć terenu. Obecnie należę do tzw. „grupy działania” podejmującej i kierującej inicjatywy w parku oraz współtworzę media społecznościowe.

bezOPORÓW

zgłoszony do WBO 2013

8 styczeń Piknik Oporowski inauguruje rozpoczęcie kampanii wyborczej!

Powstaje pierwsza koncepcja i nazwa parku Mamuta

Nawiązanie koalicji z trzema sąsiednimi osiedlami

maja

PARK MAMUTA przechodzi do kolejnego etapu WBO!

7 października

wrzesień MAMY MAMUUUUUUTAAA! Ogłoszenie wyników

Sadzimy pierwsze w parku MAMUTA! 23 października

PIERWSZE POMYSŁY, PIERWSZE PRACE pod kampanie promocyjną

MAMUTA dostaje się do III etapu WBO

INWENTARYZACJA DENDROLOGICZNA

W celu wpisania, w istniejący krajobraz, proponowanych elementów architektury, w pierwszej kolejności sporządzono szczegółową inwentaryzację dendrologiczną. Całość terenu podzielono na sektory, uwzględniając ich specyfikę i charakter. Badania prowadzone były w okresie pełnego ulistnienia. Łącznie zinwentaryzowano 522 jednostki.

PIERWSZE POMYSŁY, PIERWSZE PRACE POD KAMPANIĘ PROMOCYJNĄ

W ramach kampanii promocyjnej WBO 2014 stworzono spójne materiał promocyjne obejmujące m.in.: logo, kolorystykę, krój pisma, wizualizację oraz planszę z lokalizacją atrakcji parku. Przed rozpoczęciem kampanii zaprojektowano i założono stronę internetową: http://www.parkmamuta.pl/ wraz z aplikacją do pobrania na smartfony oraz funpage: https://www.facebook.com/ parkmamuta/.

Dalsze wydarzenia i

październik

MAMY MAMUTRACK! Ogłoszenie wyników WBO

Powołanie parkowej Grupy Działania

ZRÓBMY SOBIE PARK MAMUTA warsztaty konsultacyjne

MAMUTA – projekt koncepcji

- listopad

Dalsze wydarzenia, warsztaty i spotkania partycypacyjne

Oficjalne otwarcie parku wspólnotowego

REALIZACJA PARKU: WBO 2013 etap I - WBO 2014 etap II - WBO 2020

FAZA: przygotowawcza kampanii partycypacji projektowa

PIKNIK OPOROWSKI

INAUGURUJE ROZPOCZĘCIE KAMPANII WYBORCZEJ!

SADZIMY PIERWSZE DRZEWA W PARKU MAMUTA!

Pierwszą „doraźną” inicjatywą na terenie parku Mamuta stały się nasadzenia projektowanej alei drzewami o rodzimym pochodzeniu. Udało się to dzięki współpracy zaangażowanych mieszkańców z fundacją EKOrozwoju oraz wolontariatem pracowniczym firmy Hewlett-Packard. Przy nasadzeniach pomagali rada osiedla oraz uczniowie z lokalnego gimnazjum. Podczas osiedlowego wydarzenia aktywiści informowali mieszkańców o złożonym w WBO projekcie. W kolejnych dniach kampanii organizowano wydarzenia promujące projekt wśród mieszkańców Wrocławia oraz punkty, w których mieszkańcy mogli oddać swoje głosy.

ZRÓBMY SOBIE PARK MAMUTA - WARSZTATY KONSULTACYJNE

Wraz ze zbliżającym się terminem przygotowania dokumentacji projektu koncepcyjnego, zostały stworzone kolejne formy partycypacji, pozwalające sformułować konkretne wytyczne do projektu. Tym razem przeprowadzone w formie warsztatów składających się z czterech części.

PARK MAMUTA - PROJEKT KONCEPCJI ZAGOSPODAROWANIA PRZESTRZENNEGO

Wyznaczone zostały strefy zagospodarowania przestrzennego uwzględniające wytyczne przeprowadzonych warsztatów konsultacyjnych. Projekt koncepcyjny swoim zasięgiem objął również działania o charakterze nieinwestycyjnym.

1 WEJŚCIOWE

2. SADOWNICZA

3. POLODOWCOWA

4. ŁĄKOWA

5. LEŚNA

6. DZIAŁKOWA

7. IZOLACYJNA STREFY

„Wroślinachnajistotniejszejestto, bybyłyatrakcyjnenawetpoprzekwitnięciu.

Pięknojestwcałymokresie. Nietylkowjednymmomencie,alewoczekiwaniu.

Jeśliniebędziesezonowychzmian, pocoludziemielibywrócićwtomiejsce”.

KOMPLEKS BIUROWY „HIGH FIVE”

PRZY ULICY PAWIEJ W KRAKOWIE

WSPÓŁPRACA: FUNDACJA AKTYWNYCH OBYWATELI IM. JÓZEFA DIETLA; NSMOONSTUDIO; PRACOWNIA ’LAND-ARCH’; VOSTOK

ADRES: DZIELNICA I, KRAKÓW INWESTOR: SKANSKA PROPERTY POLAND POWIERZCHNIA: 10 447 M² BUDŻET (ZIELEŃ): 260 000 ZŁ

DATA WYKONANIA PROJEKTU: 2017 DATA REALIZACJI PROJEKTU: 2018

FAZY PROJEKTOWE:

PK PW R

Projekt zagospodarowania terenu wokół biurowców High Five przy ulicy Pawiej był projektem nie tylko architektonicznym, ale również społecznym. Powstał po analizie potrzeb mieszkańców miasta. W efekcie jest to pierwsza w Krakowie przestrzeń miejska, nie tylko dla użytkowników biurowców, ale również dla mieszkańców miasta.

Projekt zieleni obfituje w różnego typu nasadzenia krzewów i bylin, dostosowanych do warunków miejskich i cennych przyrodniczo. Projekt ma służyć polepszeniu życia w mieście oraz wpłynąć na poprawę

odbioru estetycznego miejsca. Rabaty bylinowe utrzymane są w charakterze łąkowym zmieniając otoczenie biurowców, w przyjazne miejsca do życia. Wprowadzono rośliny atrakcyjne dla ptaków, motyli oraz owadów.

Nasadzenia częściowo znajdują się na stropodachach a częściowo na gruncie.

Projekt biurowców został podzielony na trzy etapy. Poniżej zaprezentowany został realizowany projekt koncepcyjny oraz wykonawczy budynków D i E.

ID

A | INNOWACJA PLAC AKTYWNY

integracja spotkania wydarzenia koncerty wykłady

B

| SZCZĘŚCIE

ZAKAMAREK

wypoczynek woda

miejsca spotkań instalacje artystyczne kameralna przestrzeń

C | KREACJA INNOWACYJNE GADŻETY

czytelnia na powietrzu stanowiska coworkingowe gry terenowe siłownia terenowa beacony

D

| RÓŻNORODNOŚĆ ARKADY UŻYTKOWE

stoliki z siedziskami hamaki i huśtawki zadaszone stojaki rowerowe skrzynki inpost panele do ładowania telefonów koncerty wykłady

E | MIASTO PAWILON EVENTOWY

integracja miejsca spotkań spotkania wydarzenia wykłady koncerty

ZIMA

W miesiącach zimnych dominują zimozielone krzewy oraz półzimozielone byliny. Odpowiednio zaprojektowane maskują dalsze plany widokowe w okresach bezśnieżnych. W sezonie wegetacyjnym roślinność wiecznie zielona stanowi jednolite połacie będące tłem dla rabat bylinowych.

WIOSNA

Okres wiosenny zainaugurowany jest przez kwitnące na przełomie kwietnia i maja świdośliwy. Bogate kobierce bylinowych liści przełamane są poligamicznymi gatunkami traw. W projekcie nie zabrakło wiosennych osobliwości oraz gatunków typowych dla nasadzeń naturalistycznych.

LATO

Podszyt w miesiącach letnich zdominowany jest przez rośliny kwitnące w odcieniach błękitu oraz różu. Całość kompozycji można podzielić na gatunki dominujące stanowiące lokalne centra kompozycji, gatunki sezonowe okalające dominanty, rośliny tła będące wypełnieniem kompozycji oraz rośliny przełamujące podszyt.

JESIEŃ

Dobór gatunkowy bazuje również na atrakcyjności gatunkowej roślin przekwitniętych. Całość zagospodarowania przybiera stonowane ciepłe barwy utrzymujące się do późnej jesieni.

„Lekarzleczy,naturauzdrawia.” Hipokrates

OGRÓD SENSORYCZNY

PRZY CENTRUM AUTYZMU

WSPÓŁPRACA: PRACOWNIA ’LAND-ARCH’ ADRES: DZIELNICA III, KRAKÓW

INWESTOR: GMINA MIEJSKA KRAKÓW POWIERZCHNIA: 2 200 M²

BUDŻET: 120 000 ZŁ DATA WYKONANIA PROJEKTU: 2017 DATA REALIZACJI PROJEKTU: 2018

FAZY PROJEKTOWE:

Ogród zmysłów bazuje na dwóch zasadniczych odłamach terapii i rehabilitacji wykorzystującej rośliny. Pierwszą z nich jest sylwoterapia (drzewolecznictwo), drugą hortiterapia (ogrodolecznictwo). Ponad to wykorzystano teorie chromoterapii (kolororterapii).

Program skoncentrowany został wokół właściwości terapeutycznych oraz społecznych. Projektowane wnętrza są czytelne w przestrzeni i służą: rehabilitacji, terapii, wypoczynkowi, pracy w ogrodzie oraz integracji.

Wszystkie elementy kreujące ogród zmysłów formy, funkcje i treść przestrzeni podwyższają lub obniżają reaktywność ich użytkowników. Są umiejscowione

naprzemiennie i dają możliwość wyboru sposobu spędzenia wolnego czasu. Dodatkowo stworzono przestrzenie do terapii grupowej, warsztatowej jak i indywidualnej. Istotnym w terapii autyzmu jest iteracja, dlatego jednym z wytycznych dla wnętrz ogrodowych była możliwość zwiedzania ich w sposób ciągły, zapętlający się. Większość z nich ograniczona jest formą elipsy.

Całość założenia podzielona została na pięć ogrodów, każdy stymuluje najpełniej wybrany bodziec zewnętrzny.

Ze względu na ograniczony budżet inwestycji, realizację projektu postanowiono podzielić na etapy.

IDEOGRAM

PLAN FUNKCJONALNY

Podział wnętrz na ogrody stymulujące wybrane zmysły. ANALIZA DRZEWOSTANU ORAZ ANALIZA KOMUNIKACYJNA

Umożliwienie zwiedzania wnętrz w sposób ciągły.

0 5 15 30m

Wyniesione rabaty użytkowe
Łąka kwietna
Część warsztatowa
Ogrodowa orkiestra muzyczna Rabaty sensoryczne

Górka saneczkowa

Zielona klasa

Rabaty sensoryczne

Ścieżka bosych stóp

Ogrodowe krosno tkackie

Rabaty sensoryczne

KOLOROWE PANELE

Wejścia do ogrodu zmysłu wzroku, zaakcentowano przeźroczystymi, barwnymi panelami. Atrakcją jest nie tylko ich wygląd, ale również kolorowy cień, jaki rzucają w słoneczne dni.

OGRODOWE KROSNO TKACKIE

Goście ogrodu mogą sporządzić unikatową „tkaninę” z tego, co znajduje się w ogrodzie. Uwrażliwia to użytkowników na sezonowość i piękno otaczającej przyrody.

RABATY SENSORYCZNE

Zaprojektowane zostały w formie palety kolorów, od barw chłodnych granatu i ciemnego błękitu, przez purpurę oraz czerwień, kończąc na kolorach zielonych. Cześć z nich można wykorzystywać do celów kulinarnych lub florystycznych. Dominuj rośliny nektarodajne wabiące motyle i ptaki.

Wykonana jest z materiałów naturalnych, takich jak kamień, drewno, piasek czy szyszki. Różnorodne typy nawierzchni stymulują zmysł dotyku oraz wzroku.

ŚCIEŻKA BOSYCH STÓP

+48

malgorzata.k.smolka@gmail.com

Turn static files into dynamic content formats.

Create a flipbook
Issuu converts static files into: digital portfolios, online yearbooks, online catalogs, digital photo albums and more. Sign up and create your flipbook.
Małgorzata Smołka – CV oraz Portfolio by Małgorzata Smołka - Issuu