Portfolio - Muhammad Alfian Ramadhan

Page 1


Architecture Portfolio

Selected Works 2022-2024

Muhammad

Muhammad Alfian Ramadhan

December 8, 2001

Sukabumi, Indonesia

ralfian6269@gmail.com

@pngmbr

Academic

Universitas Gadjah Mada

Bachelor of Architecture

GPA :

Thesis :

3.70 / 4.00 (cum laude) [transcript]

Ecotherapy Mental Healing Retreat with Healing Architecture Approach in West Java [thesis]

Sep ‘20 - Aug ‘24

KL-YES Exchange Program

High School Exchange Student

Awardee for exchange scholarship program fully funded by the US Department of State with Bina Antarbudaya [certificate]

Aug ‘18 - Aug ‘19

Professional

Intern Architect

Hepta Desain Studio

Developed and designed a hotel project located in Kutai, East Kalimantan from concept to visualization

Feb ‘23 - April ‘23

Freelance Architect

Currently working on an agrotourism park design in concept, modelling, and visuals

Oct ‘24 - Present

Achievement

2nd Winner [certificate]

Green Public Space Architecture Competition Merangkum Sukabumi

Nov ‘23

Top 15

Negative Space to Public Park Architecture Competition Archworks 8

Feb ‘24

Organizations

PAMIY - Paguyuban Mahasiswa Arsitektur Yogyakarta

July ‘22 - Dec ‘22

Public Relation Staff Vice President

BUMIGAMA - Sukabumi Gadjah Mada

Dec ‘21 - Dec ‘22

Social & Community Staff

KMTA WiswakharmanKeluarga Mahasiswa Teknik Arsitektur UGM

Mar ‘21 - Jan ‘22

Events & Volunteers

Head of Logistics & Documentation

Community Project 2023 IYAAIndonesian YES Alumni Association

Sep ‘23

Workshop Participant

ASEAN Japan Youth ForumTake Action for Social Change 2023

Sep ‘23

Opening & Closing Staff

Operational Staff

WEX - Wiswakharman Expo 2022-2023

Oct ‘21 - May ‘22

Jan ‘23 - May ‘23

Publication Staff

Festival Gadjah Mada 2023

July ‘22 - Dec ‘22

Liaison Officer

6th ICIAP - International Conference of Indonesia’s Architecture and Planning

Oct ‘22

Skills

Architectural Competencies

AutoCAD, Sketchup, Revit, Enscape, Adobe Photoshop, Illustrator, InDesign

Ms. Powerpoint, Figma

Language

English (IELTS 7.5 / 9.0) [certificate] Bahasa Indonesia (Native)

The Crater

Ecotherapy Mental Healing Retreat with Healing Architecture Approach in West Java

Emerged as a solution for the increase in people with mental health problems due to high level of stress in West Java, The Crater provides a treatment program based on a new method that focuses on reconnecting human with nature. With its unique volcanic themed service inspired by the great Gunung Tangkuban Perahu, The Crater guarantees you with the best natural healing experience and greatly improves your well-being.

Wisnu Agung Hardiansyah, S.Ars., M.Arch.
Lembang, Jawa Barat
Site | Located 3km south of Gunung Tangkuban Perahu peak and crater in Cikole, Lembang

Volcanic Oasis

Ecotherapy acts as the foundation for visitors’ healing programs which is mostly outdoor and Healing Architecture approach is chosen to maximize the healing experience created by the building by focusing on users’ healing experiences and users’ (visitors, staffs, doctors) accessibility indoor.

The concept is an effective natural volcanic healing oasis inspired by Mount Tangkuban Parahu and is then conveyed in the building through the form, interor, landscape, and service design as a way of respect and gratitude towards the surrounding nature of Mount Tangkuban Parahu which aims to help visitors heal faster but also optimize the healing power of nature.

Visitors can book their stay online before coming, whether it be 1 night or to 4 weeks, and once arrived, they will be appointed with a psychologist that will confirm the diagnosis of the mental health issue and then suggest a standard healing program based on the length of their stay and their needs.

Situation | Buildings occupy north western side of the site
Perspective | 1-on-1 outdoor forest consultation therapy
South Elevation | Building follows the contoured land
Long Section | Optimizing cross ventilation and view towards nature
Axonometric Perspective | Buildings are connected closely to nature
Exploded Axonometric Diagram

Possible visitor’s healing activities on site were analyzed in a daily cycle to determine the possible length of stay and the usage duration of each spatial programs in the facility. The time of the activities is assumed based on the need for sunlight, nature, and space.

These cycles are then combined to create a whole cycle of daily activities that the visitors and psychologist can refer to when planning their stay.

Visitors’s Activities Analysis | Researches on visitors’ possible healing activities

Ecotherapy

A mental healing treatment done in nature settings guided by professionals.

Animal-Assisted Intervention Care Farming Social & Therapeutic Horticulture Healing Garden Green Exercise Forest Therapy Wilderness Therapy

Pine wood and volcanic stone are taken as the main material for the building, inspired by Gunung Tangkuban Perahu and its surrounding forest. The cold atmosphere of a mountain area is neatly kept and combined with the warmth of the wood materials. Every building has an open view to the outdoor nature, protected by the wooden vertical fins facade, ensuring wind ventilation and daylight penestration.

Main Entrance | Stone-walled hall to welcome visitors
View
Maquette Model 1:200 | Every building has an outdoor view showing the vast pine tree forest around the site
Maquette Model 1:200 | Vertical fin facades covers the whole main building area for heat and wind access
Central Garden
| A gathering fire pit as a central point focus of buildings’ view
Yoga & Meditation Spot | Perfect spot for stress relief and green exercise
Outdoor Animal Area | Green lawn to freely roam with emotional-support animals and explore the facility
Indoor Meditation Room | Warm-toned room with 90-degree view to nature for indoor meditation and yoga
Rooftop | Place for gardening and sightseeing
Regular Room | Stone surrounds the space to emphasize the concept
Stargaze
| The rooftop provides unrestricted view to the night sky

Serpong, Banten

Teras Lakon is a fashion hub for Lakon Indonesia, a fashion brand which aims to preserve Indonesian culture by integrating traditional culture as an integral part of everyday modern life. This aim is based by establishing a sustainable and competitive batik craftsmen community consisted of traditional craftsmen, fashion designers, and artists, whom will be met in Teras Lakon to collaborate and develop batik ready for a global modern fashion market.

Located in Symphonia commercial area in Summarecon Serpong, a planned masterplan. The south of the site is connected directly to the public park by pedestrian walkway. Pedestrian activity around the site is planned to be active by the pedestrian tunnel.

Teras Lakon Fashion Hub
Development Map | Site is located in a developing comercial area managed by Sumarecon Serpong

Fashion Through Form

Translating fashion through interior space, facade, and landscape, making building act as a transition ‘fabric’ between fashion and building environment. Thus, this building acts as a statement in its emergence, connecting public with fashion designers.

A pathway cutting the fashion hub area into two following the imaginary axis of circulation, increasing the fashion hub’s exposure to pedestrians, providing a perfect environment for interaction among designers, craftmen, and people.

Long Section A | The pathway located between cafe and fashion gallery which is suitable for public use
Front Elevation | Glass in front facade to attract and invite passer by to come through the pathway
Axonometric Perspective | Pedestrian path cutting through the building area to improve fashion hub’s exposure
Exterior Perspective | Pedestrian path cutting through the building area to improve fashion hub’s exposure
Public Rooftop Garden | Public garden accessible by a designated stairway
Runway Hall | For occasional fashion shows Runway Hall | For occasional fashion shows
Designers’ Workshop Area | Hanging decorated fabric to enhance working experience

The project was to redesign the abandoned, industrial heritage sugar factory, Pabrik Gula Gondang Winangoen located in Jl. Raya Yogyakarta - Solo. The once highly-esteemed factory has a main industrial facility area, an executives’ residential building, several worker’s comp, a museum and meeting hall, and a recreational railroad track surrounding the whole area. This area was once revitalized as an agrotourism destination but failed.

Urban Architecture Studio | 2024

The concept for the area is done by group, then each person in the group is assigned a building area to be redesigned following the chosen concept. The main industrial building area is chosen as my design object.

Neo Museum Teboe & Goela
Prof.
Site | Gondang Winangoen Suikker Fabriek - an industrial sugar factory heritage area in Klaten, Jawa Tengah

Futuristic Sugarcane Industry Heritage Tourism

Analysis

The project starts with a SWOT analysis of the whole factory area for 4 aspects: Location, History, Economy, Tourism, done in group to determine the new area concept and programs which would be added to the redesigned factory. Then, each aspect and SWOT are crossbred to develop new programmings.

Was revitalized to be an agrotourism destination but failed to continue S1

Indonesia’s global potential as a leader in Industrial Heritage of Sugar Factory

Has the traditional steam-powered machine from colonization era

Stimulus for maintenance of sugar factory machineries by DTT

Pabrik Gula Gondang Winangoen as a heritage from the Dutch colonization era is to be redesign as a new heritage destination wich focuses on education of the history of sugarcane industry development that adapts futuristic technology. PG Gondang Winangoen as a destination for nostalgic attraction

Museum for preservation and education of sugar factory industry

Reactivating sugar production and sugarcane farming to add economic value

Open public space for people to gather and socialize while visiting

Lack of exposure to the public creating a risk of vandalism space

Rivalling Museum De Tjolomadoe located in radius of 30 km from PG Gondang

Resources were scarce and then the local economy stopped growing

Lack of diversity in local economy to adapt to the needs of the factory

New attraction for tourists to create a new tourism axis in Klaten

Revitalization of main factory area to showcase the factory’s historical assets

Making use of available resources for processing for public use

An area for Work

From Destination for online working tourists

High historical value, was once the only Sugar Factory Museum in Indonesia

Rising trend in immersive heritage and cultural tourism in 2022-2023

Part of a lorry railway track is still available for use to go around the factory area

Work from destination trend is growing since the pandemic

Lost machineries due to vandalism and lack of maintenance when revitalized

Lack of concrete historical evidence for the sugar factory museum

Far from a major tourist destination in the city with limited digital access

A prediction of recession in 2023 that might decrease the number of tourists

Area concept that highlights and preserves Sugar Industry heritage

Integrating technology in delivering history of sugar factory

Providing space for sugarcane commodities trade for public

PG Gondang Winangoen area as a self-funding destination

Appropriate destination for public that gradually builds public ownership

Maintenance for machineries and replica making to complete collection

Involving public for economic activity to open more jobs for people

Providing an online heritage tourism accessible by the public

Building Redesign Strategies

Exploded Axonometric Diagram

Redesigned Museum Area
Main machinery area for the industry
Axonometric Perspective | Neo Museum Goela & Teboe displays the process of sugar making from sugarcane
Tech
Harmonious Fill | Using empty unused spaces while harnessing the potentials of existing factory assets
Front Elevation | The wall for the museum entrance is made of wavy polycarbonate sheet, taken from exisiting material on site
Machinery Platform | Existing machinery assets as one of the main art for display in museum
Audiovisual Room | Sugar Processing in factory playing on screen Communal Stairs
For indoor hangout and selfie spot
Section | Various made of wavy polycarbonate sheet, taken from exisiting material on site

High Rise Studio | 2023

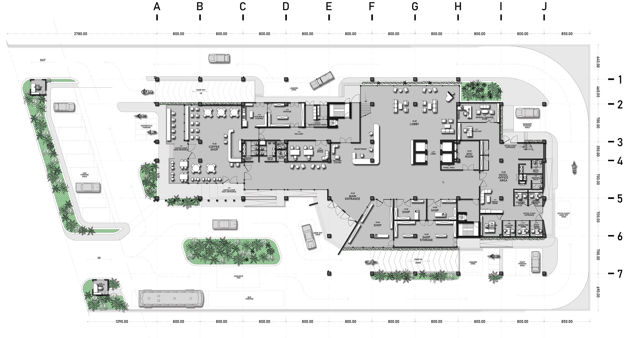
A 4 star hotel located in front of the New Yogyakarta International Airport in Kulon Progo, DIY, is the design objective for the High Rise studio. The design needs to follow the building safety regulation and a logical structural sense for high rise building while also aiming for visual aesthetics of hotel design.

As a representation of Jogja to newcomers exiting from the airport, the hotel is intended to show the essence of Jogja’s architecture in a modern context. Wood, as the main idea of the hotel, is taken from Javanese vernacular house as it is the main building material of the house and the high adaptabiliy of woods in modern settings. Hence, The Kajeng (wood in Javanese) is chosen as the name of the building for to represent the hotel concept.

The Kajeng
Ir. Moch. Santosa Kulon Progo, DIY Mentor Location
Site | Located right across the New Yogyakarta International Airport

Healing in Man-Made Nature

From a cafe suitable for both work or chill, a restaurant serving the best foods representing Jogja and Kulon Progo, to outdoor garden providing open green space to breath while sightseeing.

Swimming pool with a bar is also provided for those who wish to swim in the evening while enjoying the sunset of Kulon Progo.

The spatial programming is designed to maximize the hotel space for healing and resting during their stay at The Kajeng.

Traditionality in Modernity

Optimizing the usage of wood as building materials in design decisions for facade form, furniture, and the whole interior ambiance of the hotel.

Mix of Public and Private

This hotel provides spaces for public to use up to the rooftop floor with clear distinction and seperation to guarantee privacy through use of key access for public and office staffs as technological intervention in the hotel design.

Typical Floor | Each rooms have a balcony with rice field view
Regular Room | Wood materials that gives out warmth throughout the whole room
Lobby | A dark stone wall with wooden accent complemented by vegetations in The Kajeng lobby
Swimming Pool

Internship | 2023

Traveling Hotel

The brief was to design a small hotel located in East Kalimantan for passer-by, mainly travellers. The client was a travel enthusiast, he travels and tours around the world, sometimes even by motorcycle. His passion in travelling inspired him to want to build a travel-themed hotel while also respecting the local richness.

Our research for architecture elements of Rumah Panjang Dayak found that rectangular shape of Rumah Panjang came from Dayak’s culture that adds an additional building for a new family beside one main house, a common space called Usei acts as a family gathering space, wood is used as the main building material in Rumah Panjang from Kayu Ulin, the potential local material in Kalimantan, with walls covered by a certain cultural ornament.

Kutai
Hepta Desain Studio Kutai, East Kalimantan Office Location
Front Elevation
Exterior Perspective | Wooden facade surrounds the building

There are 2 types of room, 5 deluxe rooms and 14 standard rooms located on every side of the rectangular shape to ensure views and ventilation circulation for every room, leaving the middle area for a common space called “Usei”, a gathering space in Rumah Panjang Architecture, for entertainment and gathering space for hotel guests.

Rooms are designed to have a decorative accent that represents each country that the owner has visited with wooden floor and board for a local look inspired by the

Rooms are designed to have a decorative accent that represents each country that the owner has visited with wooden floor and board for a local look inspired by the

Rumah Panjang architecture.
Rumah Panjang architecture.
Floor plan | Rooms connected by Usei
Standard Room | Each rooms are decorated with a travel theme
Deluxe Room | Complemented with a lounge area
Usei Common Space | Greeneries and seating areas to fill the space

Sukabumi Community Park

The competition was to design a public park in Sukabumi that fully utiliz is located at the ex bus terminal of Sukabumi. The aim of the competition is to discover a way to fully utilize an abandoned land for public use.

The existing site is a place for a street cafe (angkringan) and a way for the car to go across from Jl. Arif Rahman Hakim to Jl. Raya Sukabumi - Cisaat. This is a problem due to its non-public functionality. The site has a danger to be a negative space with its non-existent lighting and dark spaces.

Sukabumi is a small city with quite a strong sense for both traditional and modern culture shown by the growing traditional dance community and the emergence

of street arts. There needs to be a space for the community to freely express their cultural interest in a public setting.

As a public space that would focus on rejuvinating green and social space, this park is designed initially without a dedicated space for commercial use due to the site’s existing function. To adapt for the public’s various needs, the concept of community-based design is chosen.

The park fulfills all of the 4A of a destination requirement (Attraction, Accessibility, Amenities, Ancilliary) that includes an accessible ramp that goes around an ampitheater, a flexible area for art exhibition or performance, and clean public toilets.

Exterior Perspective | Elevated Walkway

Harmony Inspiration Public Park Competition | 2024

Designing a public space in an abandoned lot near Tugu Station in Yogyakarta needs a lot of attention to the circulation of people and activities around the site. Located near Malioboro, the spatial programming for the park has to accomodate for various activities of users, especially the locals, tourists, and creatives such as souvenir sellers, street performers and musicians.

The site is located beside the historical Hotel Tugu, near Kampung Jogoyudan with its significant creative kampung activities and historical background. With this potential in mind, a public park that fosters creative activities and supports local settings would help turn unused spaces into a node that lives and enhances the quality of a public space.

Exterior Perspective | Seating Area

Alfian Ramadhan

ralfian6269@gmail.com

“When you start your journey.. know what is important for you, even if you don’t necessarily know where you’re going. If you make the decision based on the things that matter to you, wherever you are going to end up, it’s where you need to go.”

Bjarke Ingels

Muhammad

Turn static files into dynamic content formats.

Create a flipbook
Issuu converts static files into: digital portfolios, online yearbooks, online catalogs, digital photo albums and more. Sign up and create your flipbook.
Portfolio - Muhammad Alfian Ramadhan by M. Alfian R. - Issuu