ANTE PROYECTO DE GRADO - EDIFICIO EDUCATIVO EN EL CENTRO HISTÓRICO DE CALI

Page 1

UNIVERSIDAD SAN BUENAVENTURA CALI FACULTAD DE ARQUITECTURA, ARTE Y DISEÑO TRABAJO DE GRADO LINEA DE INVESTIGACIÓN ENFASÍS EN ANÁLISIS DE PROYECTOS

Edificios de aulas, talleres, auditorios y salas de exhibiciones en el centro histórico de Cali DIRECCIÓN

ARQ. JULIAN JARAMILLO

ESTUDIANTE MAIRA ALEJANDRA LONDOÑO MORA

EDIFICIOS REPRESENTATIVOS

RELACIÓN MEDIANTE LA CARRERA

4

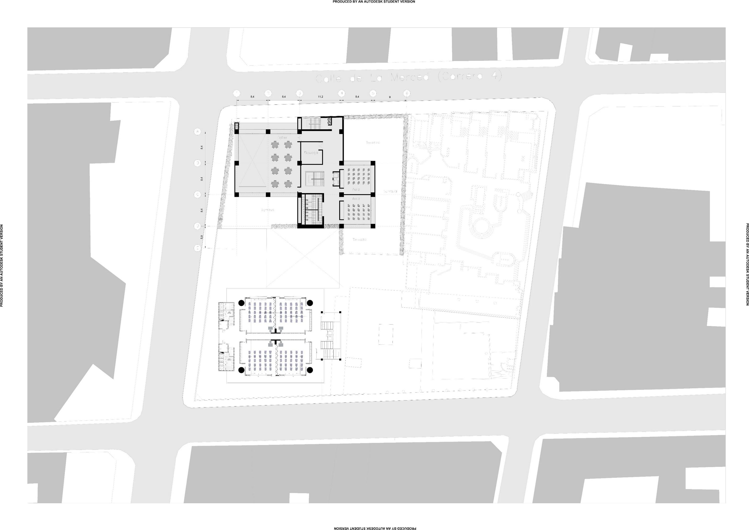
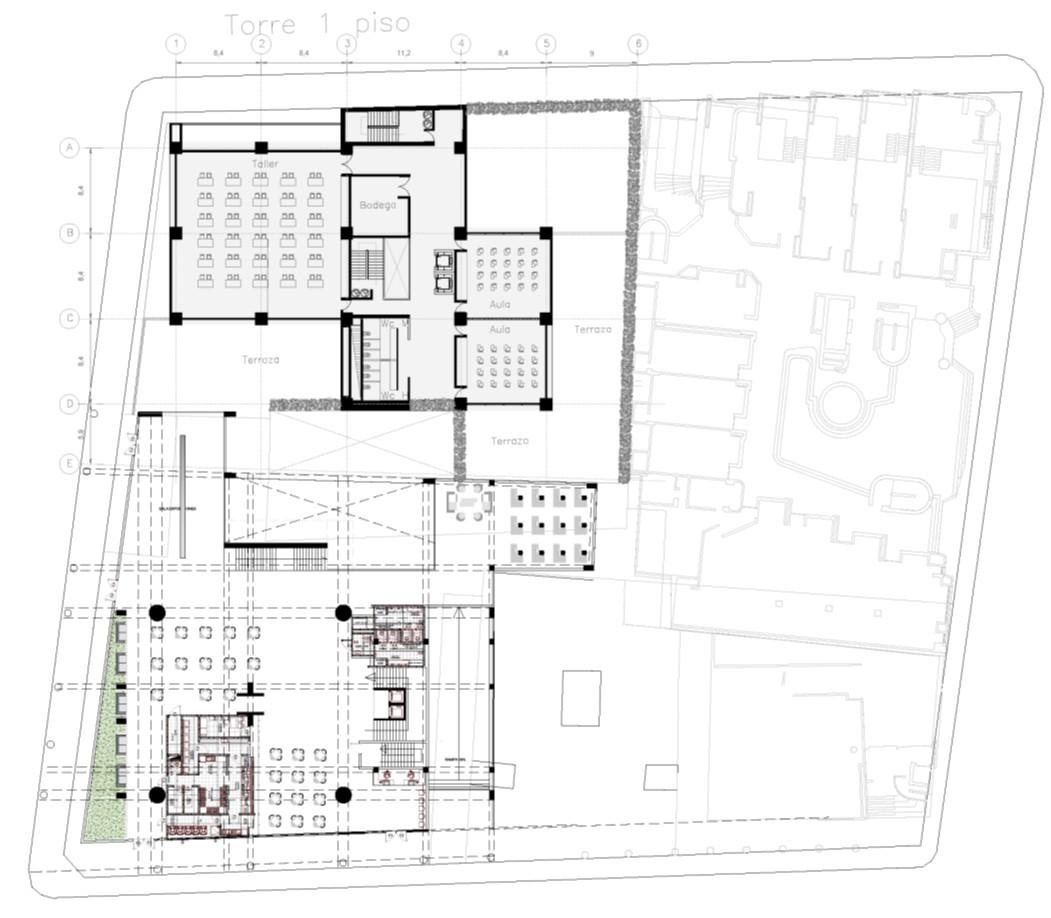
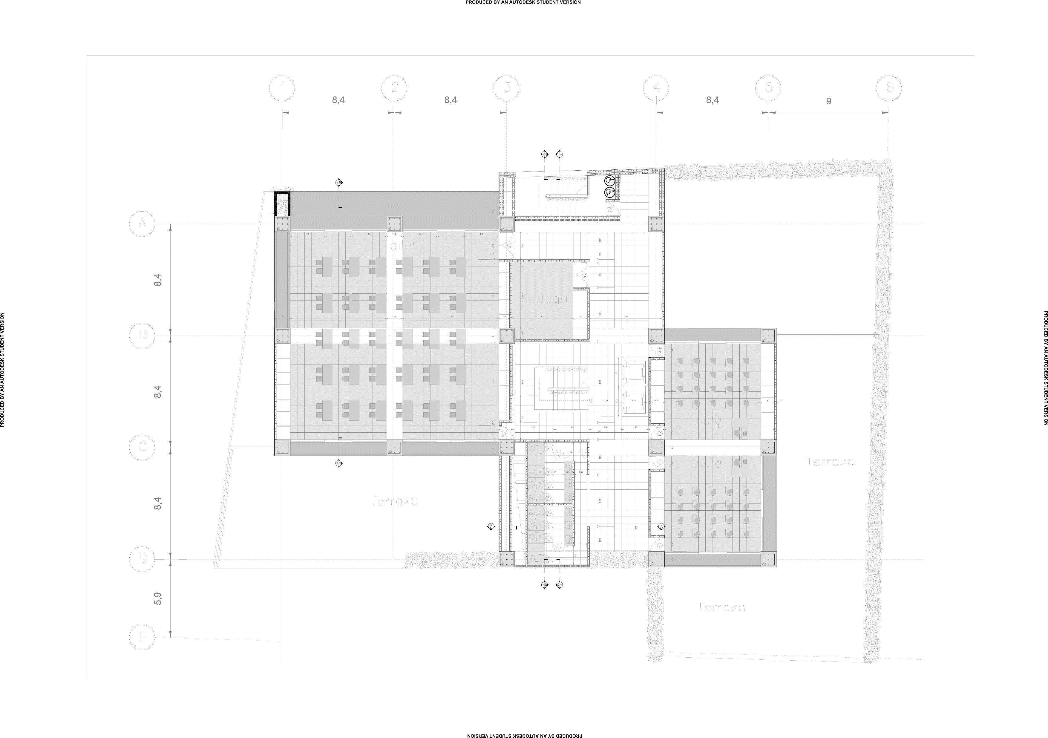
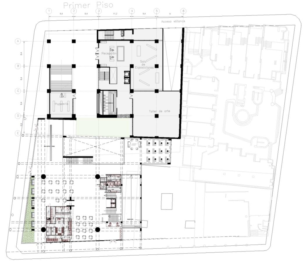
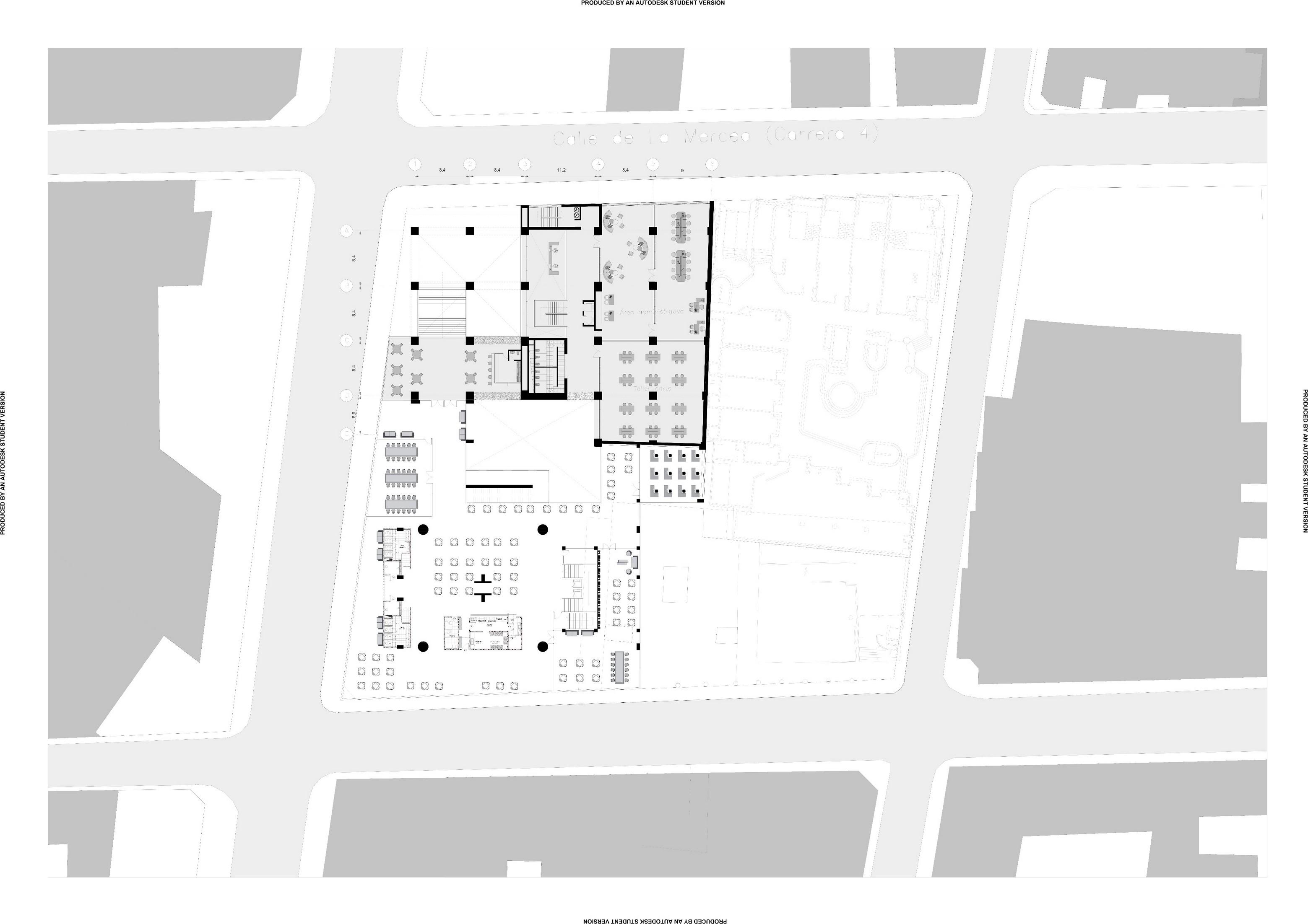
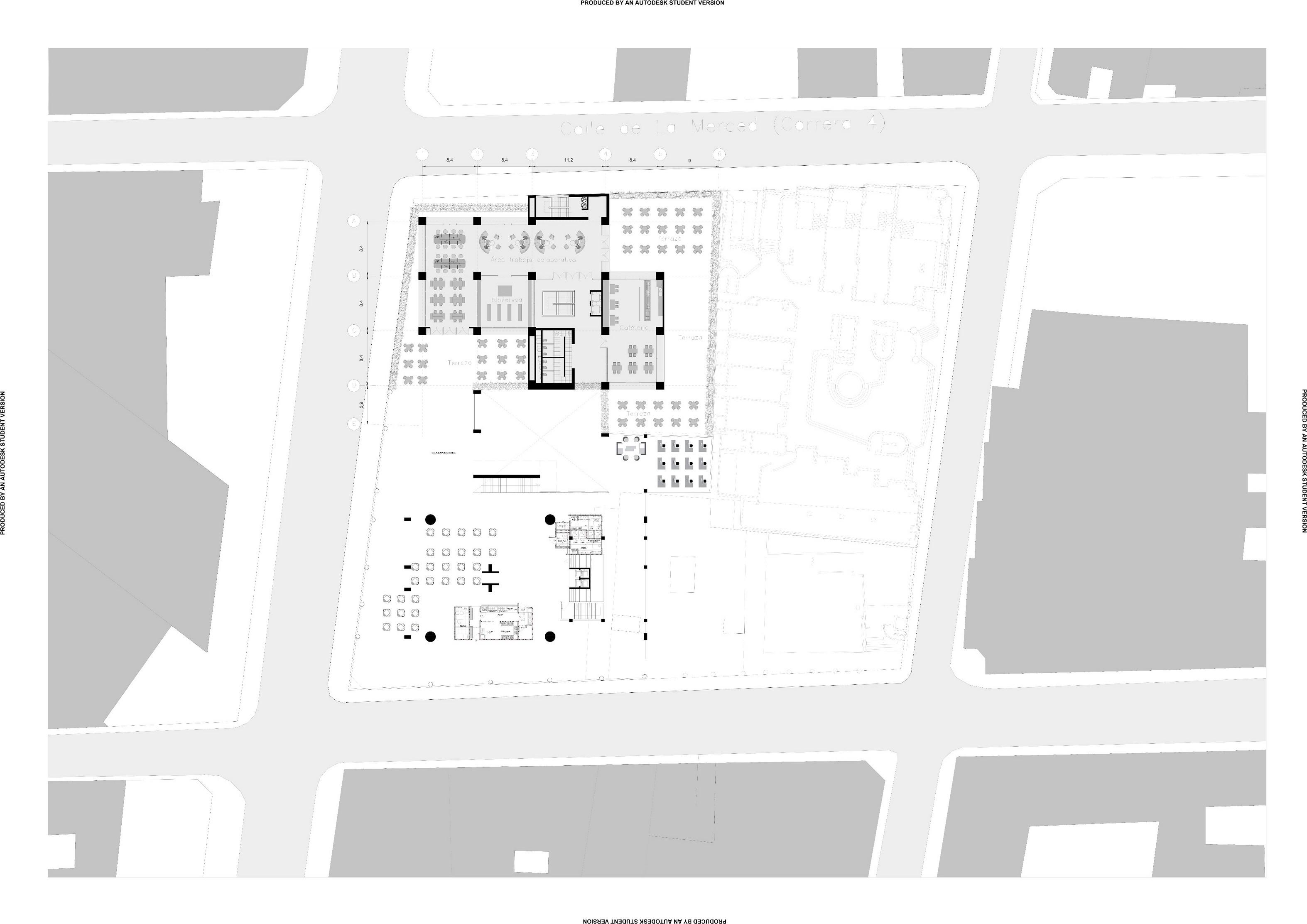
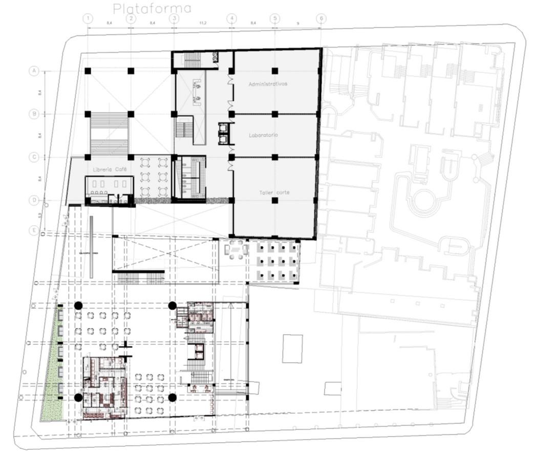
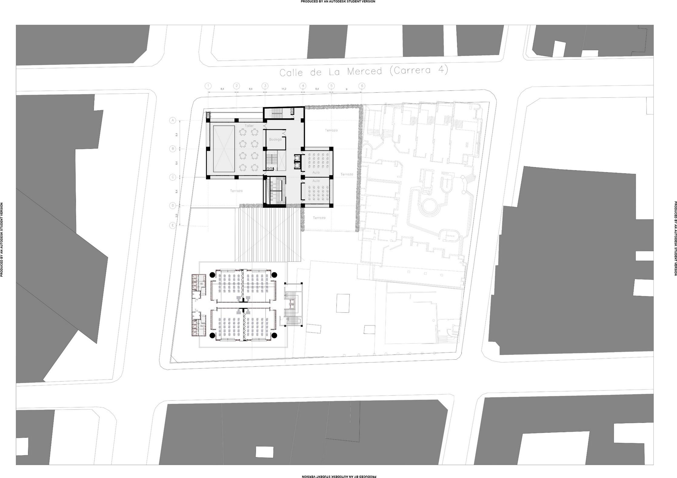
El edificio tiene una altura de 15 niveles incluyendo la plataforma y los dos sótanos. Esta compuesto por una plataforma perimetral y dos bloques de oficinas que se articulan mediante el punto fijo maneja amplios frentes hacia ambos costados de la vía; hacia la calle 13 el volumen bajo ayuda a conformar la plazoleta de acceso esto toma relevancia cuando el espacio público o de transición que propone el edificio se convierte en paso urbano.

La topografía del lugar concierne en el desarrollo del edificio mismo. En su relación directa con la vía, el edificio propone su espacio de transición en el primer piso a través de una planta pública que al interior se desarrolla por medio de elevaciones o medios pisos que conectan los diferentes niveles y que dirigen en ambos sentidos a la plazoleta interior.

Localización

Edificio Seguros Bolívar Lote del proyecto

Carrera 4 con Calle 13 Carrera 4 con Calle 8

Tanto el referente como el lote del proyecto se encuentran conectados por el eje vial de la carrera 4. Un eje vial que agrupa diferentes edificios que permiten apreciar las distintas formas de hacer arquitectura a

ANTEPROYECTO

PLANTEAMIENTO ARQUITECTÓNICO DEL PROYECTO EDUCATIVO EN ALTURA

Planta pública

Ca l le 8 Espacio público

Área privada

Propuesta
Carrera
4

Propuesta de variación Plataforma

Área privada Espacio público

Carrera
4

Propuesta de variación Terraza plataforma

Carrera 4 C a l l e 8 Área privada Espacio público

tipo

Propuesta de variación

Torre
1 Carrera 4 C a l l e 8 Concepto del referente Área educativa privada

Propuesta de variación Torre tipo 2

C a l l e 8 Circulación vertical

Relación doble altura

Carrera 4

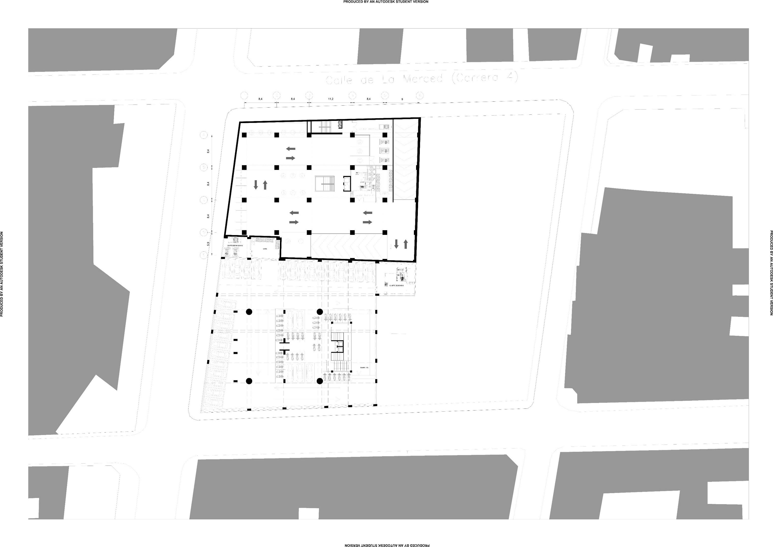
Planta de primer sótano

Cuartos técnicos

Parqueaderos en sótano

Se platean 3 sótanos de parqueaderos. El acceso a los sótanos de parqueadero se dispone sobre la carrera 4, vía de menor flujo vehicular

42 parqueaderos para motocicletas

86 parqueaderos para vehículos

Fachadas

UNIDADES DE DETALLE

PLANTEAMIENTO ARQUITECTÓNICO DEL PROYECTO EDUCATIVO EN ALTURA

Unidad taller educativo

RENDERS

PLANTEAMIENTO ARQUITECTÓNICO DEL PROYECTO EDUCATIVO EN ALTURA

Acceso planta pública cruce entre la carrera 4 y la calle 8

Patio público central conexión entre edificios

Relación visual con la calle 8 y conexión entre edificios mediante plataforma

Turn static files into dynamic content formats.

Create a flipbook
Issuu converts static files into: digital portfolios, online yearbooks, online catalogs, digital photo albums and more. Sign up and create your flipbook.
ANTE PROYECTO DE GRADO - EDIFICIO EDUCATIVO EN EL CENTRO HISTÓRICO DE CALI by mairaalejandralondono - Issuu