RAGHAV MAHARJAN-ARCHITECTURAL PORTFOLIO

Page 1

01 02 03 04 05 RESIDENCE SCHOOL COMPLEX FACTORY MISCELLANEOUS

CONTENTS

site analysis

massing

LOCATION : BUDHANILKANTHA

TOTAL SITE AREA:1159.78sq ft

ground coverage ration :50%

ground coverage arera :5696sq ft floor arera ration :2.5

elevations

public semi public private
ISOMETRIC VIEW west elevation east elevation south elevation north elevation

INTERIOR PERSPECTIVE

SITE PLAN

SECTION AT X-X

EXTERIOR PERSPECTIVE

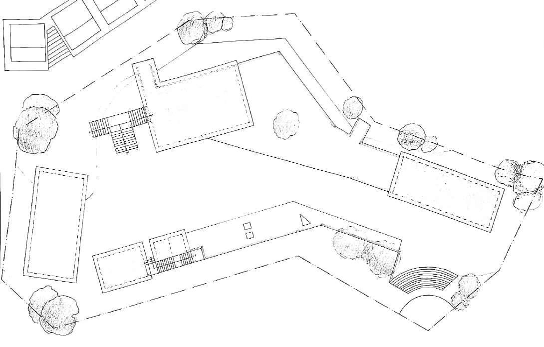
MASTER PLAN

proposed site area-1888.77sq.m location -dhoksan, Wsankarapur

SOUTH ELEVATION

SECTION AT X-X

NORTH ELEVATION

MASTER PLAN

SITE
PLAN

FLOOR PLAN

SITE PLAN WITH NEIGHBOURHOOD INTERIOR PERSPECTIVE
BLOW UP DETAILS
MODEL
master plan
site plan
MALL
ELEVATION
basement plan WEST
section at x-x
south elevation
ramp detail

FIFTH FLOOR plan [GYM FLOOR]

BASEMENT lvl.: - 3900 mm. GROUND lvl.: - 1200 mm. PLINTH lvl.: ± 0.00 mm. FIRST FLOOR lvl.: + 3900 mm. SECOND FLOOR lvl.: + 7800 mm. THIRD FLOOR lvl.: + 11700 mm. FOURTH FLOOR lvl.: + 15600 mm. FIFTH FLOOR lvl.: + 19500 mm. TERRACE lvl.: + 23400 mm. U. TERRACE lvl.: + 27300 mm. PARAPET lvl.: + 24600 mm. A T R I U M 1 2 3 4 5 6 7 8 9 10 RENTAL 6 RENTAL 4 RENTAL 3 RENTAL 16 RENTAL 11 RENTAL 10 RENTAL 26 RENTAL 24 RENTAL 23 RENTAL 37 RENTAL 36 RENTAL 35 RENTAL 52 RENTAL 47 RENTAL 46 ZUMBA OFFICE CARDIO DN UP UP DN DN X Y 10 9 8 7 6 5 4 3 2 1 A B C D E F G H I J K 10 9 8 7 6 5 4 3 2 1 A B C D E F G H I J K Y X FEMALE LOCKER RROM MEN'S LOCKER ROOM SAUNA SAUNA ZUMBA MMA /BOXING OFFICE POWER LIFTING CARDIO MASSAGE CENTER STAFF ROOM
SECTION AT Y-Y
N LVL +600 LVL +750 LVL +600 LVL +750 LVL +900 LVL ±000 UP LVL +600 X X Y Y 5. SECONDARY ENTRANCE MAIN ENTRANCE LVL ±000 LVL ±000 LVL ±000 INDEX 1. RECEPTION 2. DISPLAY AREA 3. MARKETING HEAD 4. JANITOR 5. CANTEEN 6. KITCHEN 7. RECREATIONAL AREA 8. MAINTENANCE ROOM 9. ELECTRICAL ROOM 10. DORMITORY 11. MALE BATHROOM 12. FEMALE BATHROOM 13. LOADING AREA 14. UNLOADING AREA 15. RAW MATERIAL STORAGE 16. PRODUCTION AREA 17. QUALITY CONTROL AND PACKAGE AREA 18. MANAGER OFFICE 19. DATA ENTRY OFFICE 20. OPERATION HEAD 21. WASTE COLLECTION 22. GUARD HOUSE 1. 2. 4. 6. 10. 15. 12. 11. 21. 10. 16. 9. 8. 13. 14. 17. 20. 19. LVL +600 3. 7. 7. 6. 22. master plan north elevation

site plan

WEST ELEVATION
west elevation

section at x-x

model
details

RESTURANT ,SECOND SEMESTER

GEHRY’S RESIDENCE ,SANTA MONICA ,USA

DOUGLAS HOUSE ,HARBOUR SPRINGS ,USA RICHARD MEIER FRANK GEHRY
RESIDENCE ,THIRD SEMESTER

SCHOOL,FOURTH SEMESTER

FACTORY ,SIXTH SEMESTER

thesis model

rehabilation cneter
SCHOOL FOR BLIND
center
CO WORKING SPACE cultural
OTHER WORKS
BAUHAUS ,WEIMAR ,GERMANY BRUJ AL ARAB ,DUBAI ,UAE ‘THE STAPLER CITY’ THE SAMPLE CITY OF CHICAGO

WORKING DRAWINGS

Working drawings are crucial to architecture because they serve as detailed blueprints that guide the construction process. These drawings provide the precise dimensions, parts, and specifications needed to make an architectural concept a reality.

The side photos display the working designs of the residence after teacher consultation and any necessary adjustments, as well as the municipal drawing.

1500 2400 6200 2400 2400 5150 3320 3220 805 805 805 805 2400 1950 2400 750 2100 75 50 50 50 1200 600 600 750 900 600 600 100 2575 2575 2250 750 2250 563 562 562 563 75 100 862 100 862 100 2100 75 100 862 100 862 100 1000 2100 563 562 562 563 2250 2200 550 550 550 550 50 50 5050 5050 50 50 750 750 6050 864 864 864 864 864 864 864 100 2250 563 562 562 563 50 50 1001 VOID ABOVE Up Dn 1050 1474 1527 1350 300 FLOOR FINISH 20mm SCREED 125 THK. RCC SLAB FLAT BRICK SOLING 150 SAND FILLING EARTH COMPACTION 3 2 D E D E 3 2 BLOWUP PLAN SECTION AT 1-1 1 2 600 300 340 110 2200 400 2550 300 100 770 230 1100 150 350 400 925 75 900 3000 3000 3000 10900 GROUND FLOOR LVL. 0000 MM FIRST FLOOR LVL +3000 MM SECOND FLOOR LVL +6000 MM THIRD FLOOR LVL +9000 openings detail STAIRCASE DETAIL WALL SECTION
Up A B C D 3 2 1 350 4150 350 4150 350 1000 350 2000 350 450 900 450 350 875 2400 875 350 350230 2400 990 753 477 350 3775 350 1200 1000 3850 A B C D BALCONY 4500 350 2887 900 350 3050 1800 350 3775 350 1200 230 1200 3 2 1 UP LOWER TERRACE B C B C WEST EAST ELEVATION SOUTH ELEVATION 3 400 700 100 1300 150 350 400 925 75 3000 250 475 925 125 1065 650 400 900 150 950 3000 SITE PLAN SECOND GROUND FLOOR
PROPOSED BUILDING
N TRIBHUWAN UNIVERSITY HIMALAYA COLLEGE OF ENGINEERING DEPARTMENT OF ARCHITECTURE CHYASAL, LALITPUR SUBJECT : TITLE : NAME : RAGHAV MAHARJAN CHECKED BY : ROLL NO. : HCE077BAR013 DATE : 2080/04/27 SCALE : 1:150 AUTOCAD MUNICIPAL FORMAT 13 NOTES AND REMARKS UP E F 4100 230 370 1130 1970 600 150 350 230 220 750 350 550 3320 230 350 2100 2350 350 300 300 300 300 127 350 1750 2400 700 350 862 2400 512 230350 1050 2600 E F 3 2 1 1001 VOID ABOVE Up Dn 1050 1474 1527 1350 300 X X VOID BALCONY BALCONY BALCONY BALCONY BALCONY 350 875 350 2887 350 850 230 370 1130 1970 600 150 350 230 970 350 2400 875 2400 850 900 362 1200 1200 350 1401 350 450 900 450 350 875 2400 875 350 550 3320 350 230 2400 350 599 600 870 350 1200 127 350 1750 2400 700 350 687 2400 687 350 100 1400 230350 2400 2220 350 3775 350 1200 3 2 1 3 2 1 A B C D E F A B C D E F Up Dn 1469 1527 1350 300 X X TERRACE UP 350 850 230 370 1130 3295 350 2400 850 230 230 875 3345 350 3775 350 225 975 750 X 363 3 2 1 D E D E Up Dn 1349 1421 1350 300 X LOWER TERRACE UPPER TERRACE 3 2 1 11030 2749 3695 4125 1855 4475 5200 7589 4460 925 805 X X LOWER TERRACE B C D E B C D E 3 2 1 WEST ELEVATION NORTH ELEVATION 1 2 600 300 340 110 2200 400 2550 300 100 770 230 1100 150 350 400 925 75 900 3000 3000 3000 10900 GROUND FLOOR LVL. 0000 MM FIRST FLOOR LVL +3000 MM SECOND FLOOR LVL +6000 MM THIRD FLOOR LVL +9000 SECTION AT X-X FLOOR PLAN ROOF PLAN FLOOR PLAN FIRST FLOOR PLAN

Turn static files into dynamic content formats.

Create a flipbook
Issuu converts static files into: digital portfolios, online yearbooks, online catalogs, digital photo albums and more. Sign up and create your flipbook.