Architecture & Interior Design Portfolio - Margaret Peters

Page 1

Portfolio Architecture & Interior Design

Margaret Peters

“ “

DESIGN IS not

just what it looks like design is how it WORKS

- Steve Jobs

CONTENTS 20 - 23 - Dementia Care 24 - 25 - Sweet Dreams Cafe 25 - 29 - The James Hotel Office 30 - 33 - Odd.Dog Marketing Office 34 - 35 - Pediatric Office Architecture Projects Interior Design Projects 6 -9 -Neue National Marketplace 10 -13 - El Segundo Barrio Middle School 14-17 - Randolph Street Market

ARCHITECTURE PROJECTS

NEUE NATIONAL MARKETPLACE

The Neue Nationalgalerie, an architectural masterpiece crafted by Mies van der Rohe in the heart of Berlin, has long served as a beacon of modernity and artistic brilliance. This proposal outlines a visionary project aimed at rejuvenating the structure into a dynamic and eco-conscious marketplace for local buisnesses to sell their product. The goal is to seamlessly blends contemporary functionality, community engagement, and ecological mindfulness. Through an open and adaptable layout, the aim is to foster inclusivity and collaboration, while preserving the building’s original character. By integrating modern elements to meet the evolving needs of the community the project emphases environmental responsibility by incorporating sustainable materials, energy-efficient systems, and ample natural lighting. To optimize functionality and space, the rooftop will be reporposed into a verdant oasis, featuring multipurpose areas for community events,

N SITE PLAN 6

EXPLODED ISOMETRIC VIEW

STEEL ROOF STRUCTURE

SOLAR PANELS

CURTAIN-WALL SYSTEM

ORIGINALSTEEL GRID-ROOF SYSTEM

GLAZED FLUSH - MOUNTED PANELING

GREEN ROOF SYSTEM
7
E O S LL V ND R A S V DO S V ND R A S V D RS AL EN O T S E O S LL E N S T SE N E DO S AL S V D RS AL EA NG SE T E O ES RO M E R OM E R A NG R ST OO S V D R A S VE DO S LL VE DO S LL N OR T S EN O T S N R A S U O R E P CE O D OROP S AC AT G L A OR L AT RS S O V N ORST L ENDO S AL E DO S AL S V N ORST S GRA & O AF COF EE A T HE ES RO M R ST O M EV N SP CE VE T PA E TO AGE S OR G C ES TOCOUR YA D LO NGE C UR YA D SE N C FE E N
FLOOR PLAN WITH OUTDOOR AREAS BASEMENT PLAN ORIGINAL STEEL GRID ROOF STRUCTURE PLATE GLASS STEEL MULLION STEEL CURTAIN WALL JOINT PROFILE CURTAIN WALL DETAIL 8
FIRST FLOOR PLAN WITH OUTDOOR AREAS SECOND
WALL INTERIOR RENDERINGS 9

EL SEGUNDO BARRIO MIDDLE SCHOOL

10

The El Segundo Barrio Middle School is a public school located in El Paso, Texas and is intended for students in grade 6 - 8. The Building consists of 4 floors, which includes a small basement and green rooftop. Keeping sustainablity and the current drought issues in El Paso in mind, the building features hydropanels on the roof that harvest water from the air and use it within the building. There are also solar panels on the roof which work to provide electricity to the building as well as a grey water harvesting system that will be used for irrigation on the site. The building features 16 flexible classroom spaces, 2 Labratories, 4 activity rooms, a library, event space, and a cafeteria space that has a flexible use. Outside, the site includes a faculty parking lot, a tennis/ basketball court for students, open green space that can be used for multiple uses, as well as some seating for students.

11

1ST FLOOR PLAN

2ND FLOOR PLAN

3RD FLOOR PLAN

UP
12
ENLARGED CLASSROOM PLAN 13

RANDOLPH STREET MARKET

SITE PLAN 14
16
17

INTERIOR DESIGN PROJECTS

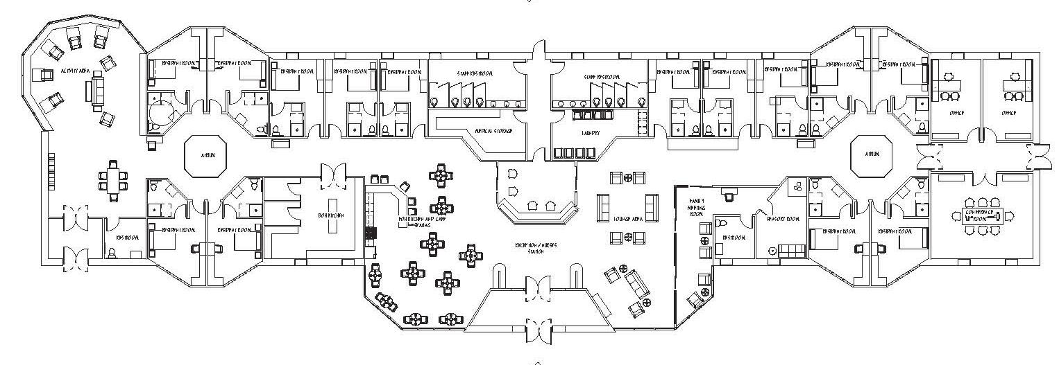
Dementia Care Senior Capstone

Concept: Supportive Functionality

This senior living facility was designed specifically for those suffering from dementia. Dementia can be very difficult on not only the person who had it, but also on the family members who are caring for their loved one with dementia. Creating a safe, interactive, and home like environment that provides round the clock care for those who have dementia can relieve some of the stress placed on the family of those who suffer from this condition. This facility features a private rooms for each resident, activity spaces, a sensory room, and an open kitchen as well as many other features that allow residents who live in the space to feel at home and comfortable in their environment all while maintaining their independence and dignity.

20
Completed in Senior Seminar II - May 2021 21

Dementia Care

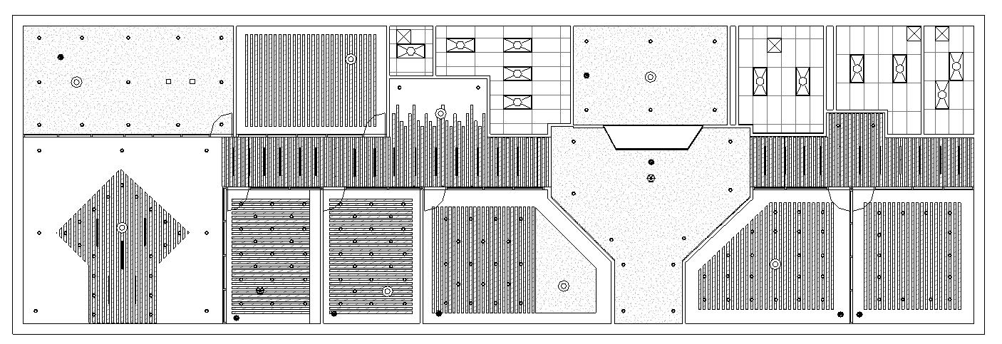
REFLECTED CEILING FLOOR PLAN

Materials

22
23

Sweet Dreams Cafe

24

The goal of this project was to create a bakery/ cafe and then an outdoor addition to the project. Located in Lawrenceville, one of Pittsburgh’s largest neighborhoods, Sweet dreams is designed to be a calming and inviting space for locals to come and enjoy. The space feels light and airy to provide a unique, stress-free, spacious, and quiet shop where customers can stop in for a quick treat. This bakery/ outdoor café is designed to be a dream-like environment for customers to enjoy.

Completed in Advanced Computer Modeling - May 2021 25

The

FLOOR 2

Floor Plans

FLOOR 3

Down Up Down Up VERTICAL CHASE WET COLUMN WET WALL EXECUTIVE CONFERENCE ROOM EXECUTIVE PRESENTATION ROOM VP OF DEVELOPMENT VP OF CONSTRUCTION VP OF FINANCE VP OF OPERATIONS ASSISTANT COMPTROLLER VP SECRETARIES BOOKKEEPERS EXECUTIVE WAITING AREA PRESIDENTS OFFICE PRESIDENT'S SECRETARY RECEPTION AREA KITCHENETTE CONFERENCE ROOM MAIL CLERK UP Down Up Down Up TENANT SPACE #2 N.I.C. VERTICAL CHASE WET WALL DIRECTOR SECRETARIES PUBLICATIONS/LIBRARY PERSONNEL DOWN VP OF COMMUNICATIONS VP OF MARKETING DIRECTOR OF MARKETING DIRECTOR OF COMMUNICATIONS DIRECTOR OF RESORT OPERATIONS DIRECTOR OF SALES TRAINING LUNCH ROOM/LOUNGE DIRECTOR OF ADVERTISING MAIL CLERK PRESENTATION ROOM PLANNING ROOM PLANNING ROOM VP SECRETARIES GENERAL SUPPLY STORAGE INTERIOR DESIGNERS ARCHITECT GRAPHIC DESIGNERS COPYWRITERS FLOOR 2 FLOOR 3 PRODUCED BY AN AUTODESK STUDENT VERSION PRODUCED BY AN AUTODESK STUDENT VERSION Down Up Down Up VERTICAL CHASE WET COLUMN WET WALL EXECUTIVE CONFERENCE ROOM EXECUTIVE PRESENTATION ROOM VP OF DEVELOPMENT VP OF CONSTRUCTION VP OF FINANCE VP OF OPERATIONS ASSISTANT COMPTROLLER VP SECRETARIES BOOKKEEPERS EXECUTIVE WAITING AREA PRESIDENTS OFFICE PRESIDENT'S SECRETARY RECEPTION AREA KITCHENETTE CONFERENCE ROOM MAIL CLERK UP Down Up Down Up TENANT SPACE #2 N.I.C. VERTICAL CHASE WET WALL DIRECTOR SECRETARIES PUBLICATIONS/LIBRARY PERSONNEL DOWN VP OF COMMUNICATIONS VP OF MARKETING DIRECTOR OF MARKETING DIRECTOR OF COMMUNICATIONS DIRECTOR OF RESORT OPERATIONS DIRECTOR OF SALES TRAINING LUNCH ROOM/LOUNGE DIRECTOR OF ADVERTISING MAIL CLERK PRESENTATION ROOM PLANNING ROOM PLANNING ROOM VP SECRETARIES GENERAL SUPPLY STORAGE INTERIOR DESIGNERS ARCHITECT GRAPHIC DESIGNERS COPYWRITERS FLOOR 2 FLOOR 3 PRODUCED BY AN AUTODESK STUDENT VERSION PRODUCED BY AN AUTODESK STUDENT VERSION PRODUCED BY AN AUTODESK STUDENT VERSION
James Hotel Corporate Offices
26

Concept: Modern Elegance

The goal of this project was to create an office space for a boutique hotel brand. I chose the James Hotels which are a hotel chain located in New York, NY. I really wanted their offices to embrace the same feel the hotels have. The Jameshotels have a very modern and elegant feel. I noticed a heiringbone pattern on the ceiling in the hotels which I then brought into some of the spaces of the office building.

Completed in Interior Design Studio III - May 2020 27

1st

Reflected Ceiling

2nd

Down Up Down Up UP FLOOR 2 Down Up Down Up WET WALL DOWN FLOOR 3 PRODUCED BY AN AUTODESK STUDENT VERSION
Down Up Down Up UP FLOOR 2 Down Up Down Up WET WALL DOWN FLOOR 3 PRODUCED BY AN AUTODESK STUDENT VERSION
28
29

Odd.Dog Marketing

Completed in Interior Design Studio III - March 2020 30

Concept: Eclectic Modernism

The goal of this project was to create an office space for a marketing firm. Using a mix of bright and more muted colors and modern design trends like flexible workspaces, collaborative furniture and so on. My goal was to create a modern and unique space for the company Odd.Dog. This project was completed in March of 2020 during my junior year.

Floor Plan 31

Reflected Ceiling Plan

32
33

Pediatric Office

Concept: Tranquil Jellyfish

The goal of this project was to design a pedatric office. This pediatric office was inspired by the jellyfish. Using bright colors and different patterns and textures that are often seen in the sea, my goal was to create a fun environment for kids who are coming to this pediatric office. Doctors offices can be frightening for a lot of children so being able to make the environment fun can help ease their fears.

34

Floor Plan

EXAM ROOM EXAM ROOM EXAM ROOM EXAM ROOM NURSES STATION HEIGHT AND WEIGHT STATION OFFICE OFFICE BREAK ROOM STORAGE WAITING ROOM + RECEPTION
Completed in Interior Design Studio II - March 2019 35

Margaret Peters

Turn static files into dynamic content formats.

Create a flipbook
Issuu converts static files into: digital portfolios, online yearbooks, online catalogs, digital photo albums and more. Sign up and create your flipbook.
Architecture & Interior Design Portfolio - Margaret Peters by maggie_peters6 - Issuu