COMERCIALIZADORA E INGENIERÍA
KIT CAMA DE IMPACTO CORREA M2
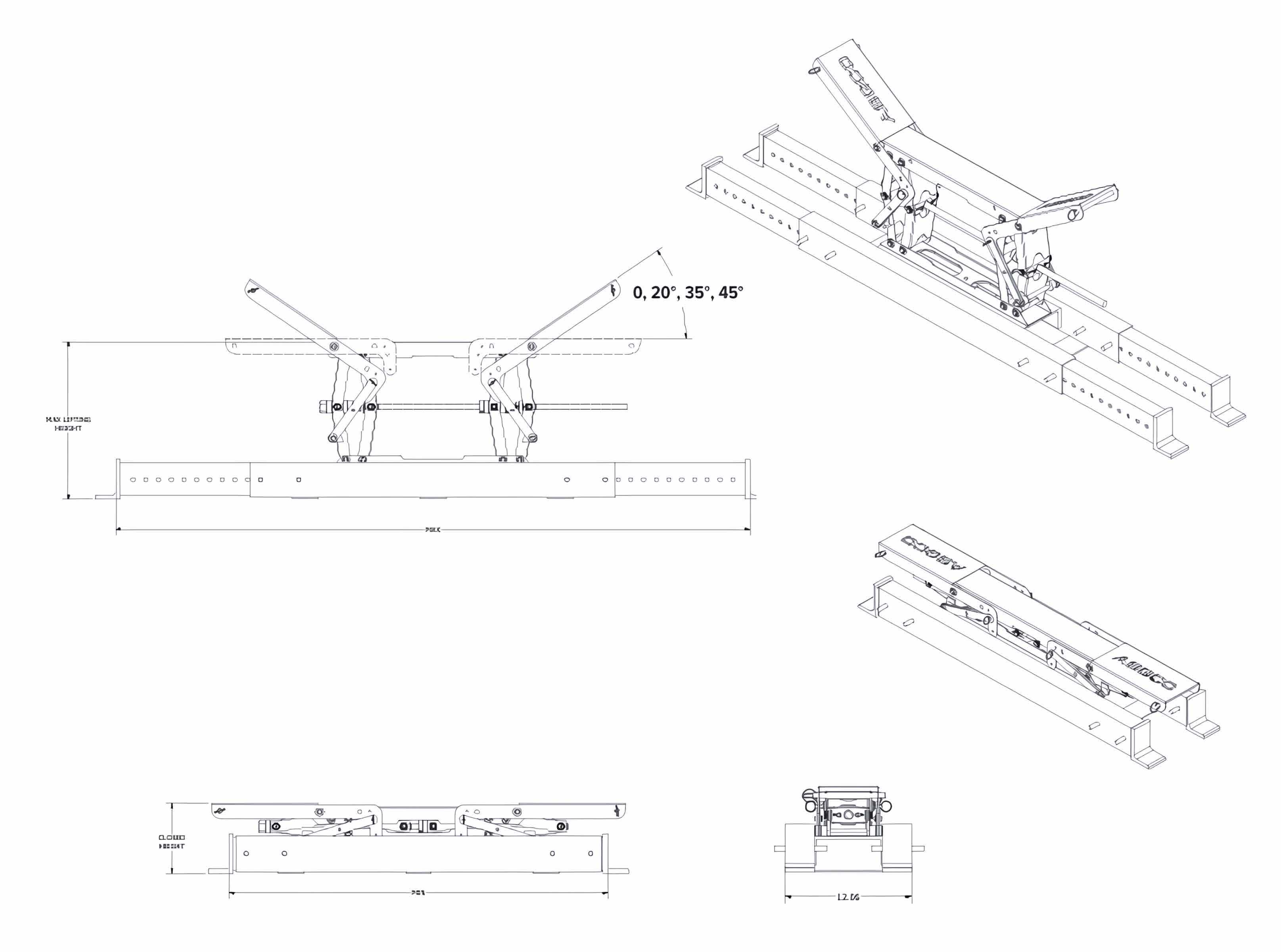
ELEVADOR DE CORREA TRANSPORTADORA
SAFEGUARD
El Elevador de Correa Transportadora SafeGuard® es una herramienta desarrollada para facilitar el levantamiento de una correa transportadora tensada. El mantenimiento del transportador se realiza sin esfuerzo gracias a la facilidad y movilidad del elevador, que permite levantar todos los canales de la correa, incluidas las correas planas.
CANALIZACIÓN AUTOMÁTICA DE ALAS
Se puede con gurar en plano, 20°, 35° y 45° para adaptarse a todos los ángulos acanalados.

BARRAS TELESCÓPICAS




Características y bene cios
• Fácil de usar: El elevador de cinta transportadora SafeGuard® se puede operar fácilmente con un taladro o un trinquete manual.
• Amplio soporte de transportadores: El elevador de correa es para anchos de banda de 36”-60” (900-1500 mm). La correa se puede levantar plana o en posición acanalada.


Se puede instalar en posición arriba o abajo para transportadores de armazón y de canal.
OPERACIÓN FÁCIL
Usando un casquillo de 1-1/4” .



PUEDE SER OPERADO DESDE UN LADO DEL TRANSPORTADOR
• Seguro: Cuenta con una base resistente extensible de doble riel y altas capacidades de elevación.
• Operación fácil: Su diseño compacto y liviano garantiza una operación fácil y rápida.
• No dañará la correa transportadora: Levante la correa desde abajo. No se sujeta a los bordes ni a la cubierta de la correa.


Especi caciones Técnicas






