




Semestre 4 | 2023 Page 18
Semestre 5 | 2023
Semestre 5 | Concours | 2023 Semestre 6 | Echange universitaire | 2024 Page 20 Page 22 Page 26



































































































































































































































































RÉNOVATION
2023-2025
Cettemaisonétait celle de mes arrières grandparents que nous sommes en train de rénover avec ma tante. Ce projet est essentiellement une modernisation et une remise aux normes dans le but de devenir une résidence principale et un lieu de partage en famille.
Situé en Haute-Saône proche de Vesoul.













































































































































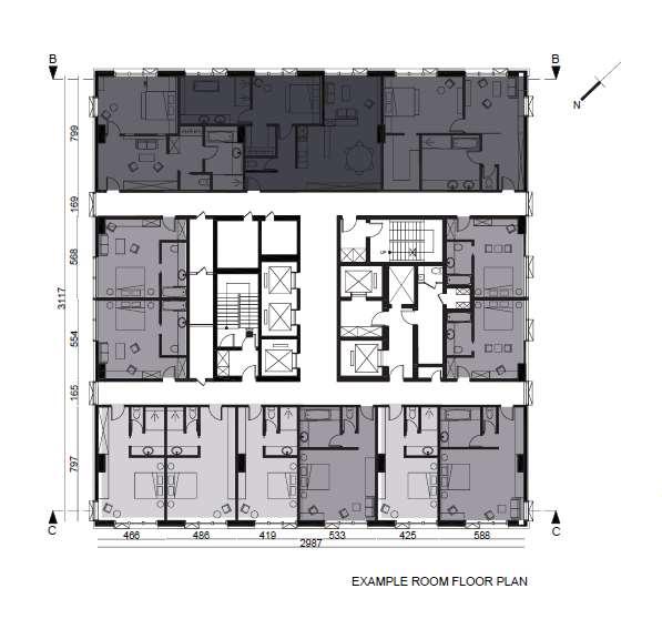
HOTEL *
LIEU:JAKARTA,INDONÉSIE
C’est un hotel localisé au coeur de Jakarta, il combine urbain, sophistiation et tranquilité de la culture asiatique. Accueilliparlelobby,lesclientsdécouvre, retrouve la fusion d’arts asiatiques et des éléments naturelles de la région.
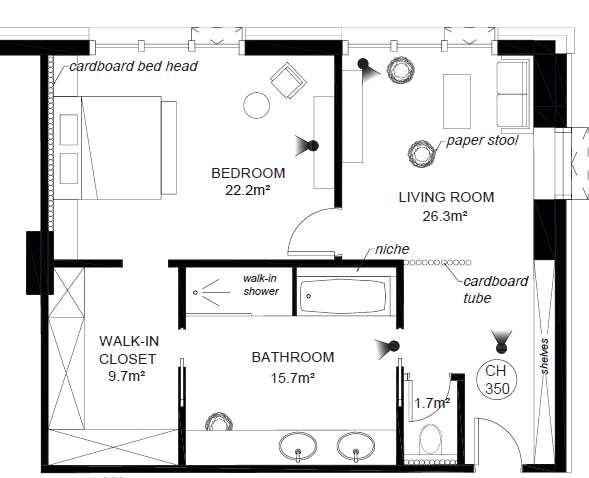
Cela permettera de faire vivre l’économie local et de mettre en valeur l’artisanat commeavecletressage/canage,labrique, lepapier,lacéramiqueouencorelebatik.







Chaquetypesdechambreest dédié àunart ou un matériaux.
- Chambresstandard:thèmedela terre et céramique.
- Chambresdeluxes: thèmedu tissu, batiket des fibresvégétales.
- Juniorssuites: reflet dupapieret carton, dans une ambiance assezclair.
- Master suite: miseenavant del’encretraditionnellesoussesdifférentesformes (baton, liquide...)


































































































































