







![]()
















On track to graduate May 2026 with a Bachelor of Science in Design, Interior Design major with a double minor in Sustainability & Dance. Seeking an EntrylevelInteriorDesignoccupation, specializing in trauma-informed,sustainabledesign.





IhavestudiedRetail,Hospitality,Residential, &Transitionaldesign,continuingeducationin Workplace & Institutional design in studio upongraduation.Knowledgeofthehistorical significance of interior design, construction documents, general architecture, acoustical reverberation,lightingphysics,handdrafting, & building codes; frequent use of Revit, AutoCAD, Enscape, Adobe/Microsoft Suite, &SketchUpsoftwareaswell.





Toobtain NCIDQ,LEED certification,aswell as licensure as a Registered Architect via AXE/IDP, ARE through the National Accredited Architecture Board (NAAB) to dual practiceInterior Design & Architecture. To also obtain the National Council of Architectural Registration Boards (NCARB) certification.
































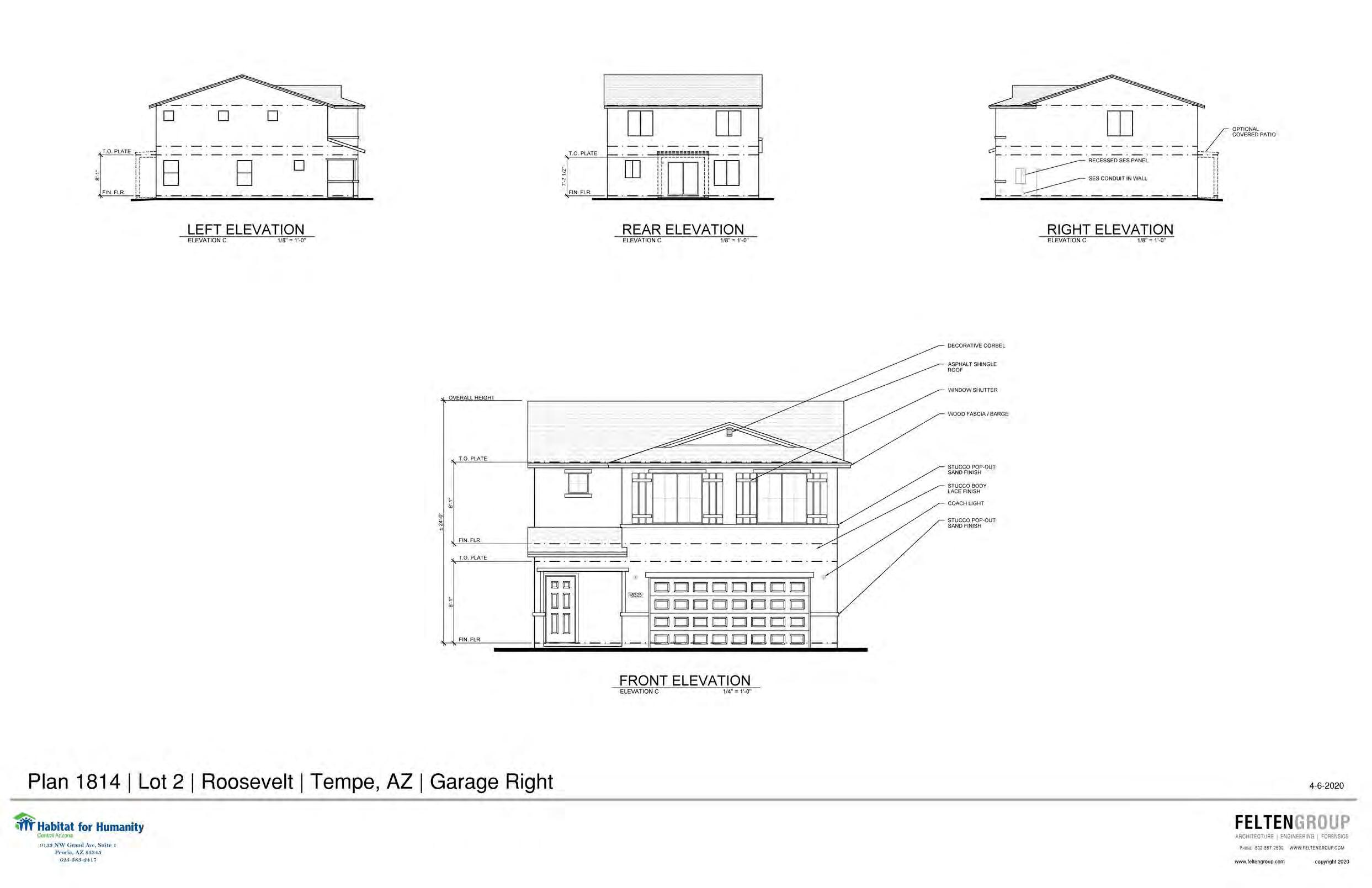
A Single - Bedroom
























Meli is a Mediterranean-inspired resort in Phoenix, blending sustainability, accessibility, & cultural elegance. Featuring locally sourced materials, abundant natural light, & ADA-compliant suites, Meli offers refined comfort. Fai, its signature restaurant, connects indoor & outdoor dining with regional cuisine, warm wood finishes, & sunlit spaces that celebrate Mediterranean design.








In early design phases, Meli’s layout was refined through mockups & bubble diagrams, expanding the spa with Pilates, red light therapy, ice baths, & more. Inspired by The Global Ambassador, the design blurs indoor-outdoor spaces using sustainable materials like wood veneer, Venetian plaster, gold accents, & non-allergen greenery.






























To design an interactive retail environment & social hub with the vibrant energy of rave culture for young men & women seeking unique fashion pieces reflecting their individuality & passion for nightlife.


This nightlife-inspired space blends indoor & outdoor energy with a sleek bar, interactive photo-ready hallways, & a tailored fitting room. A matte black ceiling & mirrored drop panel create drama & depth, concealing garage mechanics. Magnetic disco balls, LED-lit walls, & durable flooring details complete this vibrant social hub for events, body paint, & creative expression.























The Esteban Family values connection, comfort, & a fresh start. As a single mother of three, Maria dreams of a home that balances togetherness with personal space. After immigrating from Mexico City, settling in Tempe—close to ASU Prep & the university—is a meaningful step toward their future. The design emphasizes neutral tones with a modern, intimate feel, giving each family member a personalized retreat. Shared spaces will support favorite activities like cooking, movie nights, & time with their pet birds, while the children’s bedrooms reflect their individual hobbies, colors, & aspirations. Won a free furnishing via First Things First, Kurt Warner






























This Haver-style home is thoughtfully designed for a 54-year-old Mexican-American ceramicist, honoring mid-century modern traditions while embracing indoor-outdoor living. The client’s ceramic work is woven throughout the space via custom material patterns, creating a deeply personal, artful atmosphere. The layout emphasizes public & private zones, supporting both family gatherings & solitude. Aging-inplace principles are seamlessly integrated, ensuring long-term comfort & accessibility. Rooted in history & culture, the home offers a warm, modern retreat where creativity, family, & heritage flourish.

















Studio
Fall 2024
Project Team
Aida Sanie
Kiley Platt
Anamaria Florea
Programs Used Photoshop








For the IIDA Surrealism Couture competition, my team & I designed and constructed a dress in just one week using Sherwin-Williams’ designated color palette and provided materials. Inspired by surrealist themes, my dress design was selected & transformed the concept into an octopus cage, incorporating hula hoops to create a sculptural silhouette that defied conventional form. Rhinestones were meticulously hand-applied onto carpet threading, evoking the illusion of cascading water shimmering off the dress. The result was a bold, imaginative piece that pushed the boundaries of material use and earned recognition as Best Student Project.
























