Madeline Dube Portfolio

Page 1

PORTFOLIO

MADELINE DUBE

Wentworth Institute of Technology

Architecture class of 2026

2

2

Precedent Study - Joan & Edgar Booth Theater

A Boat Building School

Precedent Study - Lion's Park Scout Hut

Community Center for the Deaf - Deaf Space Study

5 4 3
1 3
Antiquarian Bookshop

Precedent Study - Joan & Edgar Booth Theater

PROJECT STATEMENT

The Joan and Edgar Booth Theater Precedent study was done as a group project with my classmate Vivienne Seested. The precedent was studied to gain a further understanding about design in respect to performance spaces. We used the knowledge we gained as guidance when designing our own performance spaces, considering all factors we learned through our research.

4
Via Elkus Manfredi Architects
Via ArchDaily
5
Via Elkus Manfredi Architects
6
DRAW-DEL (SECTIONAL MODEL) 7
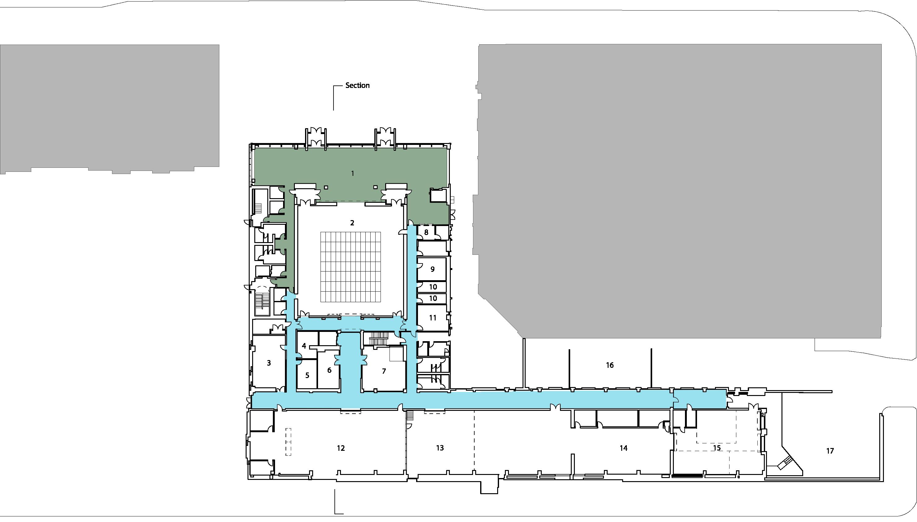
N 10 20 50 1/32” = 1’ 0” 1. Main Lobby 2. Triple Height Flexible Theatre 3. Painting Lab 4. Production Office 5. Shop Office 6. Prop Crafts 7. Prop Construction 8. Box Office 9. Wardrobe 10. Dressing Rooms 11. Performer Lounge 12. Main Paint Shop 13. Scene Shop #2 14. Fixed Tool Area 15. Material Storage 16. Ramp to Parking Below 17. Loading Dock Boston University Peter Fuller Building 1/8” = 1’ 0” 0 1 20 50
8
PROGRAM SECTION PLAN

STRUCTURE

N 10 20 50 1/64” = 1’ 0” Learning/Shop Utility Storage Production Gathering/Lobby
PROGRAM PLAN
9

A Boat Building School

PROJECT STATEMENT

The Boat Building School revolves around the construction of boats and the water in which they are used. This design allows views to the water from various levels creating maximized visual connections to the water and surrounding landscape. The classrooms and primary spaces look onto the water so students and visitors can experience both the educational and experiential aspects the boat building school has to offer. The structural system includes a combination of heavy timber and light wood framing which celebrates the wood work and craftmanship that the school takes pride in. It features metal roofing and wood cladding on the exterior walls with large windows and clerestory to showcase the structural system.

10
11
1 5 10 15 20 30 1/32” = 1’ 0” N SITE PLAN 12

Colored area represents circulatory space

1/16” = 1’ 0” 1 5 10 15 20 30 Restaurant and Kitchen Classrooms Dining terrace N Research and Meeting Space Gift and Gear Shop A Bathrooms Big Shed Wood Storage Wood Shop Planning and Drafting 1/16” = 1’ 0” 1 5 10 15 20 N Sewing Room A B B PLANS Plan Floor 1 Plan Floor 2
13

Public vs. Private

Private Public 1/16” = 1’ 0” 1 5 10 15 20 30 Private Public
DIAGRAMS Parti
14

DIAGRAMS

Structural Axonometric

Perspective Overview
15

FRAMING PLANS

Floor Framing Plan

1/16” = 1’ 0” 1 5 10 15 20 30 Beams 1’ x 1’ Rafters 2’ x 12’ Posts/ Columns 1’ x 1’ 78’ 86’ 54’ Trusses 6” x 24” Bays 15’ 2’ 1/16” = 1’ 0” Concrete Slab Flooring Concrete footing Concrete wall supporting foundation 1 5 10 15 20 30
Roof Framing Plan
16

WALL SECTIONS

Conditioned Space Wall Section

Unonditioned Space Wall Section

17

CONDITIONED WALL SECTION

PLYWOOD SHEATHING AIR / MOISTURE BARRIER FLAT-SEAM METAL ROOFING FOUNDATION DRAIN 2" X 12" RAFTERS 2" x 6" MULLIONS 6" X 24" BEAMS 2" X 6" CLERE STORY (DOUBLE LAYER) 2" PANELS DRYWALL BATT INSULATION WOODEN STAIRS BATT INSULATION FOOTING STONE BASE RIGID INSULATION AIR BARRIER VAPOR BARRIER 3/4" =1' 0" A B
- WALL ROOF - WALL 1 1/2" = 1' 0" 1 1/2" = 1' 0" A B
FOUNDATION
18

SECTIONS

Section AA
19
Section BB
NORTH ELEVATION 20
21

ELEVATIONS

South Elevation

West Elevation

22
23

PERSPECTIVES

24
25
PERSPECTIVES

MODEL PHOTOS

26

MODEL PHOTOS

27

Precedent Study - Lion's Park Scout Hut

PROJECT STATEMENT

. The Lion's Park Scout Hut was built in 2012 in Greensboro Alabama by Rural Studio. The building consists of wooden frames (bents) that are raised in place on top of a concrete slab. The design features timber used throughout both structurally and for decorative elements. Seemingly, a three-hinge arch is used as a structural element, supporting the frame. The wood used for the project was entirely sourced from within 50 miles of the site itself. Rural Studio s work focuses on low cost and low income housing projects that often involve university students.

This project focuses on breaking down existing projects to further understand the design choices and process behind the piece of architecture.

28

Lion’s Park Scout Hut

Rural Studio

Greensboro, Alabama - 2012 1/8”

= 1’ 0”
Parti N
Plan 1/8” = 1’ 0” Section 1 29
Section 2

Section 1

Section 2

1/4” = 1’ 0”
Elevation via ArchDaily
30

Structural System

10 wooden trusses/ bents make up the framework which is a hybrid of the three-hinge arch and cable bracing system.

Pine boards line the interior and the exterior cladding is pine boards and logs. Steel studs also provide support.

It features slender-steel footing that rests on the concrete

Polycarbonate panels are added to the facade and clerefloor. Steel boxes on entry doors provide support.

Arch + Joinery 31
Three-Hinge

The site is located in Greensboro, Alabama in Lion's Park. The surrounding area is primarily flat open land with a few trees. The building itself faces North-East and is surrounded by other buildings that make up Lion's Park. The hut is intended to serve as a gathering place for the occupants of the park and primarily for boy scout troops in the area. It includes a wood stove, and other amenities allowing the boy scout troops to "have a place to call home" (Broome). The surrounding area already has playgrounds, a skatepark, restrooms, play fields, etc. that Rural Studio has designed for the Lion's Park area.

Site
N
Lion's Park Interior
32
Exterior Joinery/ Structure

Exterior

The logs are treated with copper naphthenate solution to prevent against rotting and insect damage. They are harvested from local overcrowding forests in Alabama

33
Structural System

PHYSICAL MODEL: BUILDING FRAGMENT

34

Community Center For The Deaf

PROJECT STATEMENT

The design of the building focuses on allowing easy circulation flow and visibility both on the interior and exterior. The different wings of the building are separated into public and private zones and this carries into the second floor. The vertical circulation is open allowing visibility between levels. Exterior and interior spaces are linked through the outdoor patio space that is connected with large glass panels and doorways. Corridors are large allowing for easy circulation and one primary corridor connects the entirety of the building. Large windows allow natural sunlight into the space, and ramps and pathways allow for accessibility to all.

35
1' 0" N 36
Site Plan 1/32" =

PLANS

Plan Second Floor Plan Ground Floor
37
Diagram
Parti
38
Massing Model on Site Model

SECTIONS

Section A North East Section B North West
39

ELEVATIONS

Front Elevation

Rear Elevation

West Elevation

40

EXTERIOR PERSPECTIVE - South East

41

Interior Perspectives

42

Antiquarian Bookshop

PROJECT STATEMENT

The bookshop project incorporated original design work along with a series of pre set elements that we could choose from to create our bookshop. The site and measurements allowed us to have a basis to work from. This bookshop in particular was created to showcase the rare book and map storage that was a special element of the program given to us. This element is the key focal point of the bookshop and the building revolves around this space. The facade design developed as the project progressed and ultimately worked with the natural light from where the building is positioned on the site.

The bookstore I designed includes the rare book and map storage that is open with windows and door ways fro entry but closed off enough so that the books and maps are protected form light exposure. The triple height space is centered around the rara book storage and circulation and program circulates around that as well. The facade counteracts the desire to showcase the circulation and instead covers those sections allowing for discovery only upon entry.

Programatically the heirarchy within the building moves upward along with public versus private space. The public spaces are located on the lower floors and the privatized offices are located on the top floor. Materials used in this building are glass for the curtain wall segments and metal panels for the entirety of the solid parts of the facade.

The exterior garden in the rear of the building includes space for customers to read outside and enjoy the bookstore while also having access to an outdoor space. The owner's office on the third floor also has access to the graden space through a private balcony connected to the office.

43
44

Non-Pariel view from underneath focusing on structural elements, relationship of rare book space to whole

FLOOR 1 & 2 PARTI FLOOR 3
PARTI
45
PARTI DIAGRAMS

PLANS

N N N
1 2 3 4 Program Floor 1 1. Rare Book and Map Storage 2. Bookstore 3. Bathroom 4. Exterior Garden 5. Entry Vestibule 6. Storage and Delivery Room 7. Cash Wrap Program Floor 2 1. Rare Book and Map Storage 2. Reading Space 3. Bathroom 4. Bridge to Public Walk Program Floor 3 1. Mechanical Room 2. Admin Space 3. Owner's Office 4. Exterior Private Balcony 5. Brokerage Office 1 2 3 4 5 1 2 3 4 1 2 3 4 5 6 7 46

SECTIONS

Section 1 - North South Section 2 - North South
47
Section 4 - East West
48
Section 3 - East West
SECTIONS

DIAGRAMS

49
ELEVATIONS 50

Turn static files into dynamic content formats.

Create a flipbook
Issuu converts static files into: digital portfolios, online yearbooks, online catalogs, digital photo albums and more. Sign up and create your flipbook.