Skip to main content

Portfolio

Page 1


https://issuu.com/madaraw/docs/portfolio

madarawickremasinghe@gmail.com

+1 (515) 708 9727

Madara Wickremasinghe
Interior Designer

ABOUT ME:

Madara. W

“Design is in everything we make, but it’s also between those things. It’s a mix of craft, science, storytelling, propaganda, and philosophy.”

As an interior designer, I have always been drawn to hospitality design—whether creating a bar or restaurant, or applying a hospitalitydriven approach to a broader range of spaces, such as multifamily clubhouses, pool houses, or a golf club. Regardless of the setting, I focus on the details that elevate a space and tell a story, always exploring ways to craft a unique experience through thoughtful combinations of color, pattern, and material.

Originally from Sri Lanka, I bring five years of experience across diverse interior design projects in Colombo, along with an additional 2.5 years as a commercial interior designer in the United States. This background has shaped a versatile design perspective that blends global influences with practical, user-centered solutions.

Design Persona

I offer,

- Initial mood boards to establish the desired ambiance

- Concept design and design development

- High-quality 3D renderings to visualize proposed designs

- Detailed construction drawings for contractor coordination

- Construction administration as per design intent

Ca le [Restaurant]

Boathouse [Clubhouse]

The Addison [Clubhouse]

Luxury Golf Club [Private Club]

Colombo Club [Social Club]

Grand Beach Hotel [Hotel Lobby]

Park Street Gourmet [F&B Design]

Fairway Elements Apartment [Private Bar]

Narrative Environments [Themed Hotel]

Lytton Savings Building

[Speakeasy-style Performance Venue]

Montecito Spec-house

[Resort-style Residence]

Pool House [Poolside Retreat]

Crafts [Jewelry/Furniture Design]

Veil [Nightclub]

Xocolatl [Restaurant]

01 Ca lé Restaurant

CA LE

LOCATION:

Chicago, Illinois, USA

Ca lé was a conceptual design project I worekd on while at Maybeck Design. The design carried an old-world Mediterranean flair, refined through modern taste and quiet confidence.

Great care was given to the guest experience— from the moment one enters the space. The bar was conceived as the initial “wow” moment, immediately capturing attention from the check-in and waiting area. Centrally located, it was intentionally designed to open seamlessly into both the drinks lounge and dining area, acting as the heart of the restaurant.

Breeze blocks and brick elements were used to create intricate feature walls, while soft curtains, a sculptural fall tree, and modern integrated lighting introduce warmth and balance throughout the space. Antique mirror was also used to discreetly disguise back-ofhouse areas, allowing them to blend effortlessly into a cohesive design experience.

Significant design features are,

1) Centrally located bar that opened both to the drinks lounge and dining area.

2) Intricate feature walls built from breeze blocks and brick elements.

3) Sculptural fall tree, Soft Curtains.

4) Antique mirror disguising BOH spaces.

5) Modern integrated lighting.

BOATHOUSE

LOCATION:

2875 Painted Lake Cir, The Colony, Texas, USA

CLIENT: Portico Property Management

Boathouse was a value-add multifamily project I worked on while at Maybeck Design.

As the Interior Designer assigned to this project, my role was to redesign the clubhouse with new lounge groupings, a gaming area, new fireplace finishes, and turn the existing kitchen counter into a bar area that encouraged gatherings next to the outdoor grill station. New lighting was also selected for the space and the ceiling was proposed to be painted white. I also prepared a detailed FF&E pricing sheet for all the furniture selections. The final renders for the space were created by the in-house Render Specialist.

Image 8

Final Render [Fireplace & Bar]

Image 9

Final Render [Lounge & Gaming]

Image 10

Floor Plan (Revit)

Image 11, 12

FF&E Selections (Canva)

Image 13

Bar Finishes (Canva)

Image 14

Fireplace Finishes (Canva)

03 The Addison Clubhouse

The Addison Phase 2

LOCATION:

2601 Esperanza Crossing, Austin, Texas, USA

The Addison Phase 2 was a multifamily project that I collaborated on while working at Maybeck Design. The space included a new design for their clubhouse, including a game room, lounge space, kitchen and a work from home area. All areas were designed with a hospitality approach that was both timeless and functional.

As the Interior Designer assigned to the project, my initial role was to model both the existing space and the new design in Revit, and create 3D renderings in Enscape to present to the Client. Later on, I also created the technical drawings for this project in Revit (Bid Set), and went on to make adjustments to the design manual and FF&E pricing sheet as needed.

19

Image 15, 16, 19, 20

Final 3D Render (Revit, Enscape, Photoshop)

Image 17

FF&E Package / Design Manual (Canva)

Image 18

Floor Plan (Revit)

Image 21

Kitchen Elevation (Revit)

Note:

All 3D Renders featured were created by myself in Revit and Enscape.

LOCATION: Wellington, Florida, USA

CLIENT: Confidential

This was a luxury golf club project I collaborated on, while working at Maybeck Design.

The project included designing the lounge spaces and finishes for the simulator bay area, virtual green putting area, hospitality bar area and conference room.

Key design features in the project included,

1) Integrated phone booths within the bay areas

2) Back wall feature with integrated grab & go smart coolers, and golf storage / display

3) Decorative lighting above the bar area

4) Custom plaid fabric that tied with the brand

Image 22

Final Render

[Simulation Bays]

Image 23

Final Render

[Hospitality Area, Conference Room]

Image 24

Floor Plan (Revit)

Image 25

Inspiration Images (Canva)

Image 26, 27

Design Manual (Canva)

Image 28

Color & Material Palette (Canva)

Colombo Club Social Club

COLOMBO CLUB

LOCATION: Colombo 3, Sri Lanka

Colombo Club was a design proposal I worked on while at Canvas Interior Design Studio, for their bar and private dining areas.

Established in 1871, Colombo Club is one of the oldest Gentlemen’s Clubs in Sri Lanka. The architecture of the building is heavily influenced by the colonial style, and the proposed interior was also inspired by the same aesthetic.

Key design features of the space include,

1) Decorative molding designs on the walls

2) Photo frame wall of significant events

3) Display case for trophies and shields

4) Black & white prints of the colonial period installed on the walls

5) Use of Banana leaf decorative trees in the interior.

LOCATION:

Negombo, Sri Lanka

This was a hotel lobby proposal I collaborated on while at Canvas Interior Design.

As an Interior Designer, my role in this project was to come up with the design for the reception and feature wall behind. I was inspired by local roots and the lotus flower in particular, which brings symbolic meaning to Sri Lankan culture and identity.

I also helped finalize the furniture and lighting as well as the floor pattern which was inspired by ancient Sri Lankan motif designs. I worked with the 3D Render Specialist to visualize these ideas and plotted the initial plan and elevations in Autocad.

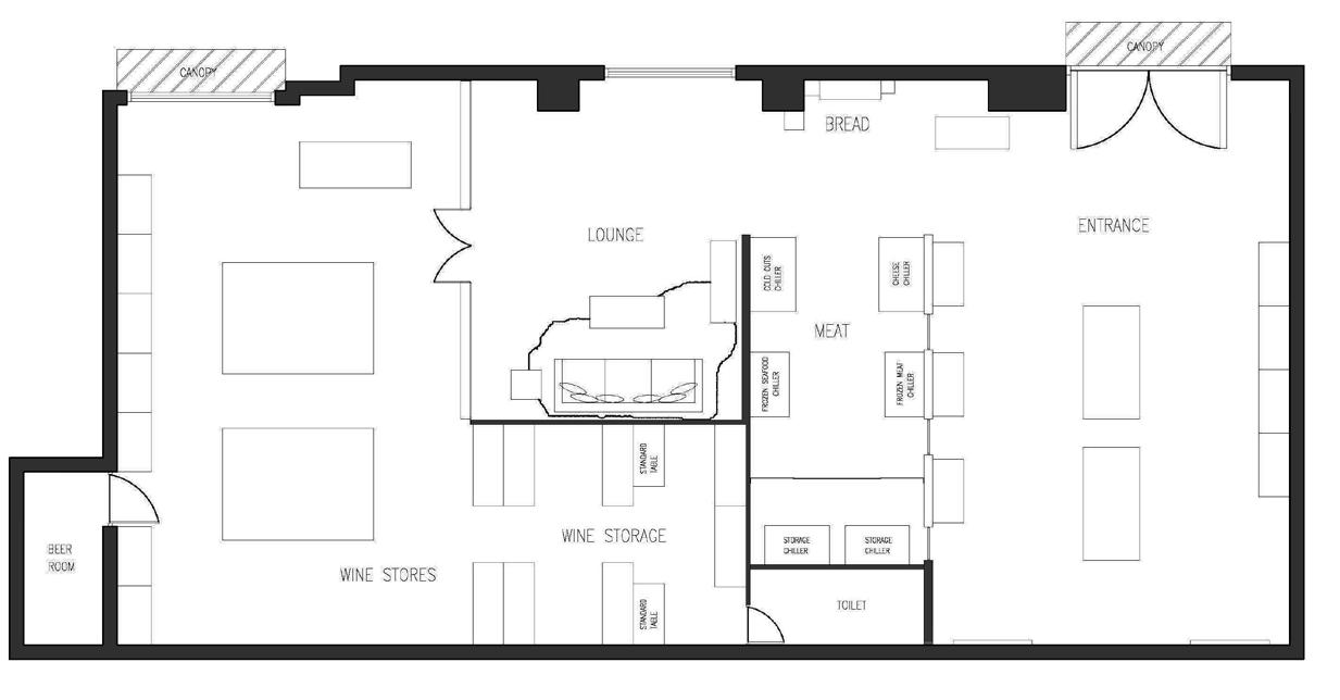
Park Street Gourmet F&B Design

PARK STREET GOURMET

LOCATION:

Park Street, Colombo 2, Sri Lanka

CLIENT: Suren Mirchandani

This was a meat and wine gourmet project I worked on while at Canvas Interior Design Studio, Sri Lanka.

As the Interior Designer assigned to the project, I provided the full Interior Design solution, completing the conceptual stages, detail drawings, project management and construction supervision till turn-key.

The captured photos of the final outcome shows,

1) The tea area

2) The wine store

Image 43

Photo of Final Outcome

[Tea Area]

Image 44

Floor Plan (Autocad)

Image 45

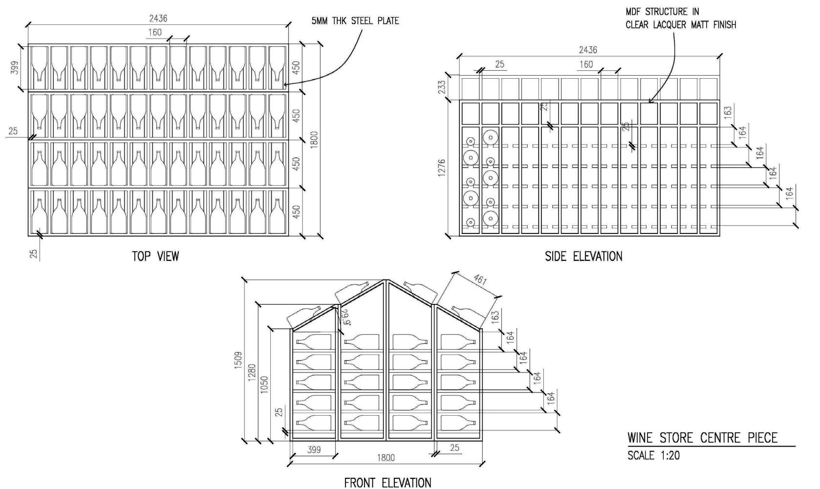
Details of Centerpiece Bottle Display (Autocad)

Image 46, 47

Outsourced 3D Renders

Image 48

Photo of Final Outcome [Wine Store]

Significant design features are,

1) The tea wheel used as a wall-feature

2) The glass partition entrance to the wine store, that acts as a wine display

3) The centerpiece bottle display

4) Floor-to-ceiling bottle racks

5) Wine window display

6) Cashier table with a wine barrel for base

Note: All 3D Renders were outsourced by the company, and are shown here to reflect the design and process.

28B FAIRWAY ELEMENTS APARTMENT

LOCATION:

Fairway Elements Apartment Complex, Rajagiriya, Sri Lanka

CLIENT: Ashen Appuhamy & Nikita Samarasinghe

This was an apartment project I worked on while at Canvas Interior Design Studio, Sri Lanka.

As the Interior Designer assigned to the project, I provided the full Interior Design solution, completing the conceptual stages, detail drawings, project management and construction supervision till turn-key. The captured photos of the final outcome shows the,

1) Terrace area inclusive of a private home bar

2) The Living Room, Dining Room and the Terrace as seen from the entrance.

3) The Master Bedroom & Guest Bedroom

Image 49

Living & Dining Rooms]

Image 50

Fairway Elements Apt.

Image 51 Floor Plan (Autocad)

Photo of Final Outcome
[Terrace,
Photo of Final Outcome
[Terrace with Home Bar]

Note: All 3D Renders were outsourced by the company, and are shown here only to reflect the design and process.

Themed Hotel

Narrative Environments

Narrative Environments in Hotel Design

Narrative Environments in Hotel Design was my Graduate Thesis and Creative Component. In Experiential Design, Narrative Environments refer to designed spaces that allow users to engage with the space’s storytelling and narrative. Users traverse a multidimensional process with 2D texts & images and 3D space & time changes that can induce critical thinking. My research investigated how narrative environments can be used in hotel design to revamp existing themed hotels - by subtly capturing the essence of a culture or situation through storytelling elements, rather than directly imitating a place that allows no deeper reflection.

The process included analyzing 6 themed hotel main lobbies in Las Vegas by applying narrative theories. The case studies and interviews with hotel staff led to the development of 8 guidelines for applying narrative environments to hotel lobbies.

Image 57, 59

Infographic [Photoshop,

Image 58, 60, 62 - 64

3D Render (Revit, Lumion, Photoshop)

Image 61

Enlarged Floor Plan [Revit]

In a creative component, I applied those guidelines to a castle-themed casino hotel in the Midwest. I proposed a new theme for the hotel lobby, which focused on blending the nuances of Southeast Asian culture with the modernity of Western culture. The design aimed to reflect on the contrast between Western society’s preference for brightness and Eastern cultures’ appreciation for shadows and traces of light.

I introduced vibrant colors into dark spaces, experimenting with colors that infuse energy. Based on the theme, I further applied the Guidelines for developing the ‘story’ by establishing a recurrent context along the main axis, shifting the mood dramatically, and incorporating messages that invited guests to explore the narrative space. The journey included rising action, dramatic reveals, and turning points, to maintain a transformative experience until the user reached the reception.

Illustrator]

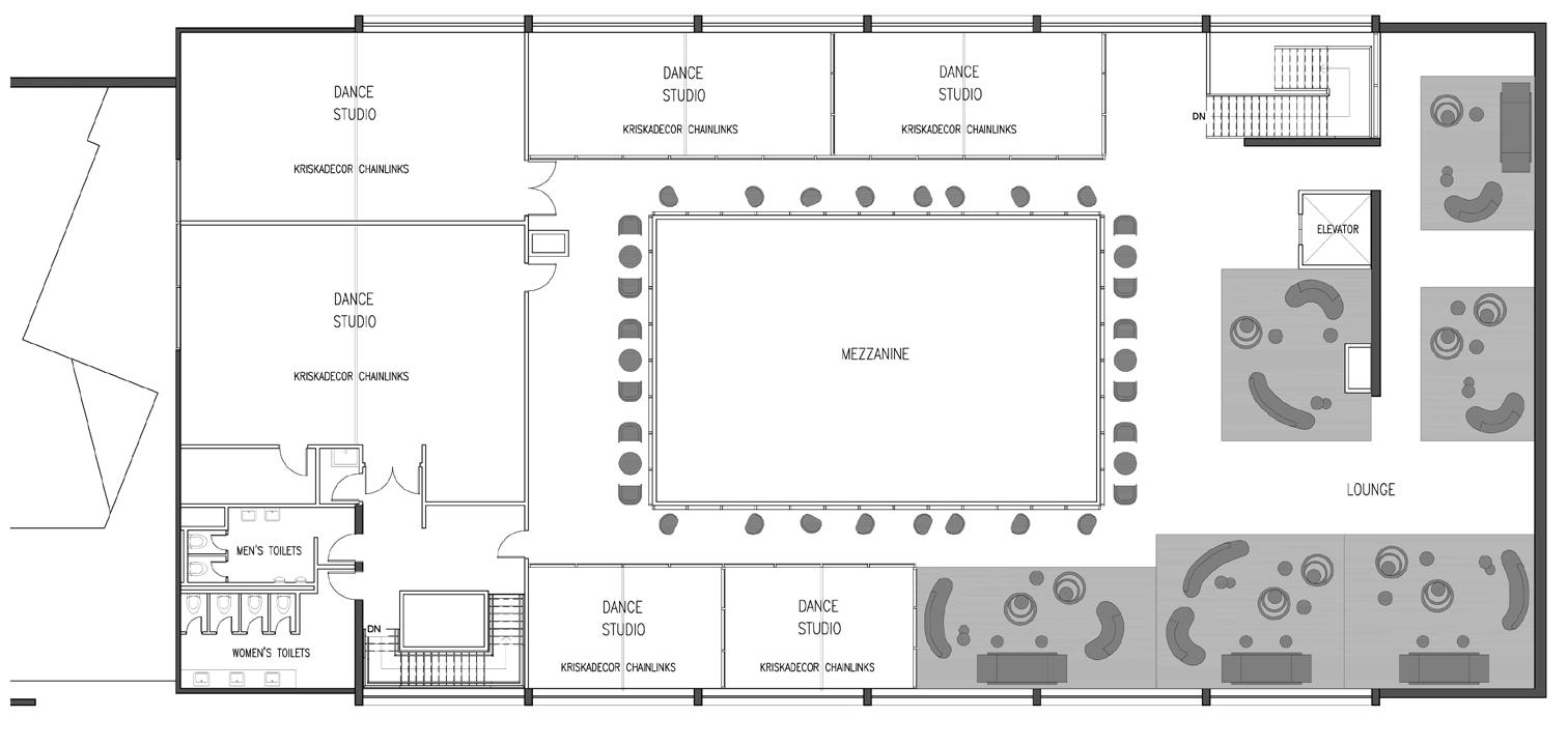
LYTTON SAVINGS & LOANS BUILDING

LOCATION:

Sunset Boulevard, Los Angeles, California, USA

This was a Rehabilitation Design Proposal for the historic “Lytton Savings & Loans” Building (Now a Chase Bank).

My proposal was to rehabilitate it as a Performance Center that operates as a Dance Studio during the days and holds Comedy Dance shows at night.

In the proposed design, character-defining architectural elements were preserved, along with their material finishes, as is required in Historic Preservation. To hold comedy shows, a thrust stage was incorporated into the design with the “Darricarre” screen (a significant historic element of the original interior) as its backdrop. The existing glass partitioned spaces were utilized to create studio areas to hold dance classes during the day.

Some of the major characteristic features preserved are, (among others)

1) Zig-Zag folded concrete plate roof

2) Clerestory enamel windows & glazing

3) Cantilevered second floor

4) Bouque canyon wall

5) Stone travertine panels

6) Open plan with full-height lobby

7) Mezzanine with wooden railing

8) Roger Darricarrere screen

9) Original bank counter

Note: All 3D Renders were done by me during my Masters Studies.

Image 71 - 73, 3D Render

(3DS Max, VRay)

Image 74 Floor Plan (Autocad)

Image 75, 76 3D Render (3DS Max, VRay)

Montecito Spec-house

Resort-style Residence

MONTECITO ULTRA-LUXURY SPEC-HOUSE

LOCATION:

850, San Ysidro Road, Montecito, California, USA

This was an ultra-luxury spec-house proposal for an empty lot located in Montecito. Since tropical architecture has a high demand in Montecito, my proposal was to introduce a new form of tropical design inspired by my own roots and heritage. Hence, the house was based on Sri Lankan Architecture, which has a rich history associated with Sinhalese royalty, infused with colonial influence.

A colorful twist was introduced to traditional design elements, where the residence incorporated Sri Lankan arts and crafts fit for luxury living.

The proposed design was a 3-bedroom spec-house of 5977 Sqft, with an accessory dwelling unit of 1298 Sqft.

Key Sri Lankan architectural elements in the design are,

1) Red tiled roof, courtyard with columns

2) Gabled roof and wooden rafters in ceiling

3) Cascading steps and a lotus pond

4) Antique and modern furniture from Sri Lanka

Note: All 3D Renders were done by me during my Masters Studies.

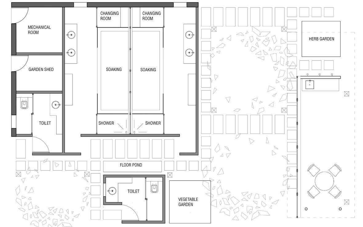
LOCATION:

U.S. Ambassador’s Residence, Tokyo, Japan

This was a Pool House Proposal done for the U.S. Ambassador’s Residence in Tokyo, Japan, as a pair project during my Masters studies at Iowa State University. At the request of the client, the pool house was to incorporate,

1. 2 showers, 2 toilets, 2 changing rooms

2. A mechanical room and a garden shed

3. A small herb and vegtable garden

4. An area with a counter & outdoor furniture for small pool gatherings

5. A canopy for the pool

The design concept was to blend Japanese and Moorish elements to create a unique style. It was done as a nod to the original design of the U.S. Ambassadors Residence, which too was a mix of Japanese, Moorish and Classical styles, created at a whim of the architects involved. A key feature of the pool house was the handcrafted Kumiko screens used as a dividing wall between the compartments.

Image 77 Floor Plan (Autocad)

Image 78 - 81

3D Render (3DS Max, VRay)

Note: All 3D Renders were done by me during my Masters Studies.

Nightclub

VEIL

“Veil” is a nightclub and bar project completed during my undergraduate studies.

My idea was to design a nightclub for conservative societies, where night life is not fully accepted. To balance out this situation through the design of the space, I came up with a concept that allowed people to be seen but not identified.

This was achieved by the usage of,

1) Colored dichroic filters that reflect two different colors to distract people.

2) Mirrors to disorient the view by reflecting and camouflaging with the background.

3) Sand-blasted glass to blur out the images of people.

XOCOLATL RESTAURANT

Xocolatl was a restaurant concept I developed during my undergraduate studies, centered around the unique idea of incorporating chocolate as a key condiment in savory cuisine. Drawing inspiration from the rich history of chocolate—once considered a luxury reserved for the elite—I envisioned a space that evokes a sense of exclusivity and honor, making every guest feel celebrated both conceptually and experientially. The design translates this notion of “high honor” into an immersive, almost fantastical environment, offering a truly one-of-a-kind dining experience.

The key features of the space include,

1) A surrounding waterway with raft access, transporting guests into an exclusive dining setting.

2) Handcrafted painted light fixtures that cast intricate, individualized patterns onto the walls

3) A dome-shaped ceiling designed to mimic a starlit night sky with star-like illumination.

4) Decorative string lights and lanterns that enhance the overall ambiance.

Image 87,91, 92

3D Render (Sketchup, Photoshop)

Image 88 Floor Plan (Photoshop)

Image 89 Rendered Section (Sketchup, Photoshop)

Image 90 Design Development

Note: All 3D Renders were done by me during my Undergrad Studies.

Crafts

Jewelry

Furniture

JEWELRY & FURNITURE DESIGN

During my Graduate studies at Iowa State University, I took an Advanced Furniture Design class and a Jewelry Design class. As part of the curriculum, I designed and built 3 pieces of life-size furniture inspired by my roots. These included a meditation stool, a mini-table and a 3-legged side table that utilized Sri Lankan furniture design techniques, as well as elements from Buddhist culture.

For the Jewelry Design class, I designed and handcrafted a Sweat Soldered Ring, inspired by the traditional demon masks of Sri Lanka - a craft that originated from an ancient belief that demons are capable of healing disesases found in man. The ring depicts 3 such demons with healing powers.

Also included is the wedding ring I designed for my husband, which was an interpretation of “Madara”, a mythological flower that grows in heaven as per Sri Lankan folklore. Blended into the floral design are the letters for “Ma-da-ra”, in my native language “Sinhala”.

Madara.W

Thank You

My very first Interior Design model created in the College Admission Portfolio Program, representing the concept “Color”. My idea was to create a sensation within the observer that allows him to imagine being placed in the model itself, walking amongst the color and feeling the different moods and emotions that color has the ability to create.

Turn static files into dynamic content formats.

Create a flipbook