Madara W Interior Design Portfolio

Page 1


madarawickremasing.wixsite.com/portfolio

madarawickremasinghe@gmail.com

+1 (515) 708 9727

Madara Wickremasinghe
Interior Designer

ABOUT ME:

Madara. W

“Design is in everything we make, but it’s also between those things. It’s a mix of craft, science, storytelling, propaganda, and philosophy.”

As an Interior Designer, I have always considered myself to be a “multipotentialite”, with a variety of interests and skills ranging over multiple disciplines. In my design career, I learned to draw inspiration from all these different areas to create truly unique spatial experiences. I understand how important it is to connect with the natural and man-made worlds, often times putting on the shoes of a scientist, storyteller or investigator, to conduct thorough research in forming a well-analyzed design solution.

Originally from Sri Lanka, I have 5 years of work experience in a range of projects in retail, residential, healthcare, and hospitality sectors of Colombo, SL, and 1.5 years of work experience as a Commercial Interior Designer in the United States.

Design Persona

I can offer you,

- Initial mood boards to create the ambiance you require

- Concept design and design development

- 3D renders to portray proposed design

- Detail drawings to provide to the contractor

- Construction administration as per design

Park Street Gourmet

Fairway Elements Apartment

Bartillon Shelter

Fashion Market Retail Store

WSO2 Design Competition

Art Cart Retail Store

Narrative Environments

Lytton Savings Building

Montecito Spec-house

Pool House

Boathouse

Sporting Kansas City

Crafts

The Story

Goldberg

Veil

Social Transformation

Settlers

Place of Contemplation

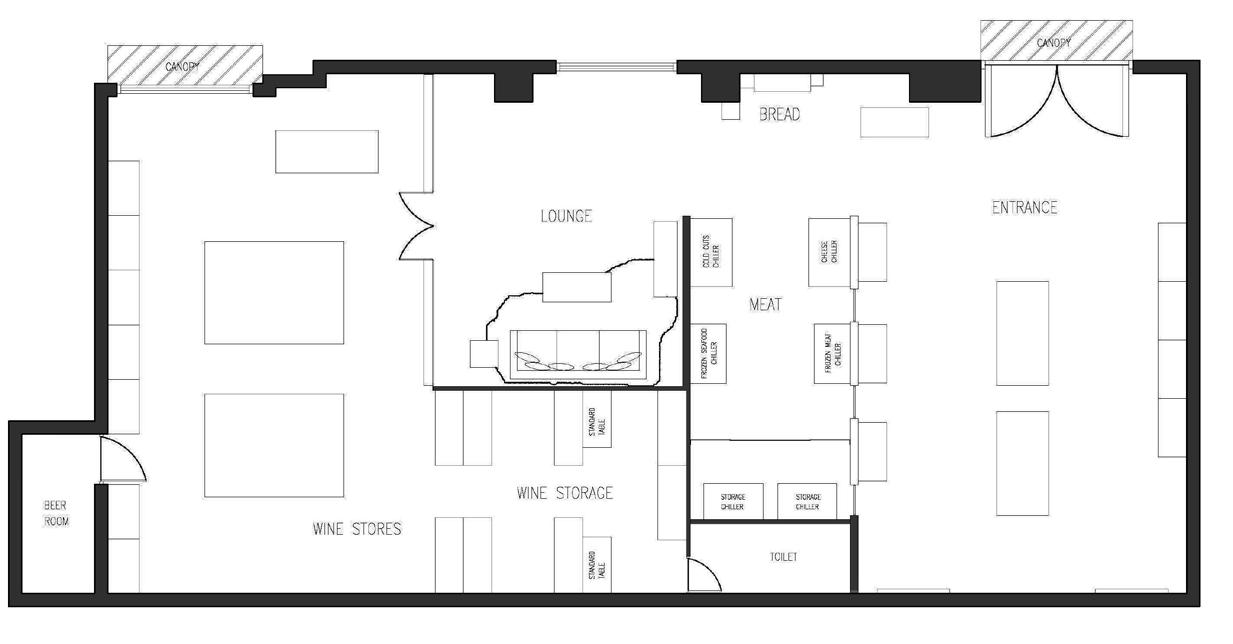
01 Park Street Gourmet Retail

PARK STREET GOURMET

LOCATION:

Park Street, Colombo 2, Sri Lanka

CLIENT: Suren Mirchandani

This was a meat and wine grocery project undertaken while working at Canvas Interior Design Studio.

As the Interior Designer assigned to the project, I provided the full Interior Design solution, single-handedly completing the conceptual stages, detail drawings, project management and construction supervision till turn-key.

The captured photos of the final outcome shows,

1) The tea area

2) The wine store

Image 1

Photo of Final Outcome

[Tea Area]

Image 2

Details of Centerpiece Bottle Display (Autocad)

Image 3, 4

Outsourced 3D Renders

Image 5 Floor Plan (Autocad)

Image 6

Photo of Final Outcome

[Wine Store]

Note: All 3D Renders were outsourced by the company, and are shown here only to reflect the design and process.

Significant design features are,

1) The tea wheel used as a wall-feature

2) The glass partition entrance to the wine store, that acts as a wine display

3) The centerpiece bottle display

4) Floor-to-ceiling bottle racks

5) Wine window display

6) Cashier table with a wine barrel for base

28B FAIRWAY ELEMENTS APARTMENT

LOCATION:

Fairway Elements Apartment Complex, Rajagiriya, Sri Lanka

CLIENT: Ashen Appuhamy & Nikita Samarasinghe

This was an apartment project undertaken while working at Canvas Interior Design Studio. As the Interior Designer assigned to the project, I provided the full Interior Design solution, single-handedly completing the conceptual stages, detail drawings, project management and construction supervision till turn-key.

The captured photos of the final outcome shows the,

1) Terrace area inclusive of a private home bar

2) The Living Room, Dining Room and the Terrace as seen from the entrance.

3) The Master Bedroom & Guest Bedroom

Image 7

Fairway Elements Apt.

8

9 Floor Plan (Autocad)

Photo of Final Outcome
[Terrace, Living & Dining Rooms] Image
Photo of Final Outcome
[Terrace with Home Bar] Image

Note: All 3D Renders were outsourced by the company, and are shown here only to reflect the design and process.

03

Narrative Environments

Hospitality

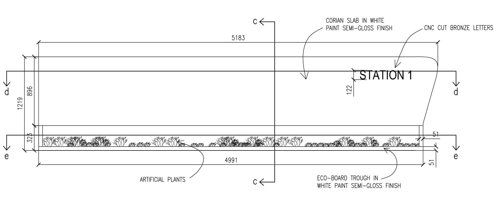
Narrative Environments in Hotel Design

The process included analyzing 6 themed hotel main lobbies in Las Vegas by applying narrative theories. The case studies and interviews with hotel staff led to the development of 8 guidelines for applying narrative environments to hotel lobbies. Storytelling

Narrative Environments in Hotel Design was my Graduate Thesis and Creative Component. In Experiential Design, Narrative Environments refer to designed spaces that allow users to engage with the space’s storytelling and narrative. Users traverse a multidimensional process with 2D texts & images and 3D space & time changes that can induce critical thinking. My research investigated how narrative environments can be used in hotel design to revamp existing themed hotels - by subtly capturing the essence of a culture or situation through storytelling elements, rather than directly imitating a place that allows no deeper reflection.

Image 15, 17

Infographic

Image 16, 18, 20 - 22

3D

Image 19

Enlarged Floor Plan [Revit]

In a creative component, I applied those guidelines to a castle-themed casino hotel in the Midwest. I proposed a new theme for the hotel lobby, which focused on blending the nuances of Southeast Asian culture with the modernity of Western culture. The design aimed to reflect on the contrast between Western society’s preference for brightness and Eastern cultures’ appreciation for shadows and traces of light.

I introduced vibrant colors into dark spaces, experimenting with colors that infuse energy. Based on the theme, I further applied the Guidelines for developing the ‘story’ by establishing a recurrent context along the main axis, shifting the mood dramatically, and incorporating messages that invited guests to explore the narrative space. The journey included rising action, dramatic reveals, and turning points, to maintain a transformative experience until the user reached the reception.

[Photoshop, Illustrator]
Render (Revit, Lumion, Photoshop)

LYTTON SAVINGS & LOANS BUILDING

LOCATION:

Sunset Boulevard, Los Angeles, California, USA

This was a Rehabilitation Design Proposal for the historic “Lytton Savings & Loans” Building (Now a Chase Bank).

My proposal was to rehabilitate it as a Performance Center that operates as a Dance Studio during the days and holds Comedy Dance shows at night.

In the proposed design, character-defining architectural elements were preserved, along with their material finishes, as is required in Historic Preservation. To hold comedy shows, a thrust stage was incorporated into the design with the “Darricarre” screen (a significant historic element of the original interior) as its backdrop. The existing glass partitioned spaces were utilized to create studio areas to hold dance classes during the day.

Lytton Building

Some of the major characteristic features preserved are, (among others)

1) Zig-Zag folded concrete plate roof

2) Clerestory enamel windows & glazing

3) Cantilevered second floor

4) Bouque canyon wall

5) Stone travertine panels

6) Open plan with full-height lobby

7) Mezzanine with wooden railing

8) Roger Darricarrere screen

9) Original bank counter

Image 23, 26 - 28 3D Render (3DS Max, VRay) Image 24 Second Floor Plan (Autocad) Image 25 First Floor Plan (Autocad)

05 Montecito Spec-house

MONTECITO ULTRA-LUXURY SPEC-HOUSE

LOCATION:

850, San Ysidro Road, Montecito, California, USA

This was an ultra-luxury spec-house proposal for an empty lot located in Montecito. Since tropical architecture has a high demand in Montecito, my proposal was to introduce a new form of tropical design inspired by my own roots and heritage. Hence, the house was based on Sri Lankan Architecture, which has a rich history associated with Sinhalese royalty, infused with colonial influence. A colorful twist was introduced to traditional design elements, where the residence incorporated Sri Lankan arts and crafts fit for luxury living.

The proposed design was a 3-bedroom spec-house of 5977 Sqft, with an accessory dwelling unit of 1298 Sqft.

Key Sri Lankan architectural elements in the design are,

1) Red tiled roof, courtyard with columns

2) Gabled roof and wooden rafters in ceiling

3) Cascading steps and a lotus pond

4) Antique and modern furniture from Sri Lanka

All 3D Renders were done by me during

BARTILLON HOMELESS SHELTER

LOCATION:

1904, Bartillon Drive, Madison Wisconsin, USA

CLIENT: City of Madison - Dane County

The Bartillon Shelter is an on-going community project I worked on for the City of Madison, while working at Dimension IV Madison Design Group.

As the Interior Designer assigned to the project, I provided the interior vision for the project. This included designing the Glazed CMU pattern for the Interior, as well as selecting furniture pieces that coordinate with the CMU colors and the exterior colored glass windows. I did all the Interior Elevations for the building, Room Finish Schedules, Finish Plan & Lists, FF&E Package, as well as initial pricing for the furniture.

Bartillon Shelter

Glazed CMU

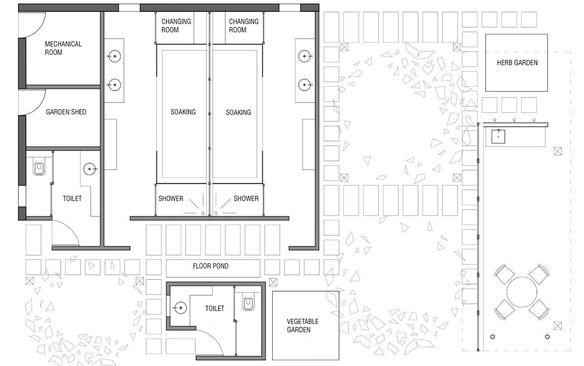
07 Pool House Residential

POOL HOUSE

LOCATION:

U.S. Ambassador’s Residence, Tokyo, Japan

This was a Pool House Proposal done for the U.S. Ambassador’s Residence in Tokyo, Japan, as a pair project during my Masters studies at Iowa State University. At the request of the client, the pool house was to incorporate,

1. Two showers, two toilets, two changing rooms

2. A mechanical room and a garden shed

3. A small herb and vegtable garden

4. An area with a counter and outdoor furniture for small pool gatherings

5. A canopy for the pool

The design concept was to blend Japanese and Moorish elements to create a unique style. It was done as a nod to the original design of the U.S. Ambassadors Residence, which too was a mix of Japanese, Moorish and Classical styles, created at a whim of the architects involved. A key feature of the pool house was the handcrafted Kumiko screens used as a dividing wall between the compartments.

Image 42 Floor Plan (Autocad)

Image 43 - 46 3D Render (3DS Max, VRay)

Note: All 3D Renders were done by me during my Masters Studies.

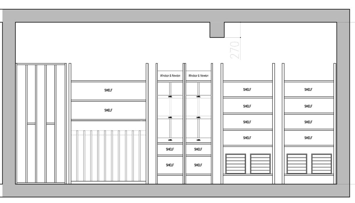
BOATHOUSE

LOCATION:

Regent’s Canal, London, UK

The Boathouse project was part of an Advanced Visualization class taken at Iowa State University. It was a microhome designed for a modern day couple that enjoys travelling and diving. They would spend their time living on water, travelling along the Regent’s Canal in London, UK. While diving is their passion, they can also use it to support the community. Each time they go under water, they can help remove the garbage in the canal and do good to the world.

The design was inspired by a whale rising from the water. The color scheme of blues and greys was inspired by the same. The total living space was 270 sqft, and included a kitchen, living room, bathroom, storage closet and a loft that acted as the bedroom. Other features included a deck around the boathouse, a roof terrace partially covered by a canopy, and solar panels on the roof to supply electricity.

Image 50

First Floor Plan (Revit)

Image 51

Section (Revit, Photoshop)

Image 47 - 49, 52, 54

3D Render (Revit, Lumion, Photoshop)

Image 53

Concept Diagram (Illustrator)

Note: All 3D Renders were done by

Concept Diagram

Sporting Kansas City

SPORTING KANSAS CITY

LOCATION:

Children’s Mercy Park, Kansas City, USA

This was an Experiential Design Proposal done for Sporting Kansas City. It was part of a 5-member group project completed during my Masters studies at Iowa State University.

At the request of the client, we were to design a new building that housed a Hall of Fame, a Retail Store and a Restaurant, adjacent to the existing stadium. My role was to entirely design the Hall of Fame and Retail store. Our design concept was the fluidity and excitement of soccer movements. To tie this in as a consistent element in all spaces, a perforated metal ceiling feature was designed. It was lit up from behind to add to the experiential feel of the project, along with many other interactive exhibits.

55, 56

Render
Max, VRay, Photoshop)

All 3D Renders were done by me during my Masters Studies.

FMLK PHYGITAL STORE

LOCATION:

Ananda Coomaraswamy Mw, Colombo 3, Sri Lanka

CLIENT: Harshi Alexander

This was a retail store, designed by myself and my colleague, while working at Canvas Interior Design Studio.

FMLK was originally an online store that branched out to a physical store to create a combined physical + digital experience.

To create a digital illusion within a physical store, together we came up with a replication of reflections, and designed a window display made out of mirror and LED strip lights to convey the idea. The photos of the final outcome showcase the store facade, window display and interior.

Image 57

Photo of Final Outcome [Facade Window Display]

Image 58

Photo of Final Outcome [Store Interior]

Image 59

Floor Plan (Autocad)

Image 60

Photo of Final Outcome [Facade]

Image 61

Photo of Final Outcome [Store Entrance]

11 WSO2 Competition Exhibition

WSO2 DESIGN COMPETITION

LOCATION: Palm Grove, Colombo 3, Sri Lanka

CLIENT: Pramila Rajapaksa / WSO2

This was my design entry for a career booth competition while working at Canvas Interior Design Studio.

The brief was to create an exhibition stall for WSO2, a reputed software engineering company.

The design expectations were to,

1) Be unique and creative

2) Build in a space of 6x3m

3) Incorporate WSO2 branding and logo

4) Have a separate area to conduct interviews

5) Show their fun, open culture

Note: All 3D Renders were outsourced by the company, and are shown here only to reflect the design and process.

ART CART

LOCATION:

Battaramulla, Sri Lanka

CLIENT: Sumudu Hettiarachchi

This was a Retail project I undertook while working as a Freelance Interior Designer in Colombo, Sri Lanka. The client brief was to design an elegant store with custom-made displays that fit their brand Art Cart and its products.

My scope was to provide the design and detail drawings. For this project, I outsourced the 3D Renders.

Note: For this project, I outsourced the 3D Renders. They are shown here only to reflect the design and process.

13 Durdans Hospital

DURDANS HOSPITAL

LOCATION:

Alfred Place, Colombo 3, Sri Lanka

This was a renovation proposal provided for the new wing of the Durdans Hospital, designed by myself and my colleague, while working at Canvas Interior Design Studio.

For this project, I provided the design and detail drawings for the typical ward, nurse station, cosmetic center and corridor areas. The design was imagined to give a more clean and bright look, when compared with the original building. All reception counters and nurse stations were designed to incorporate artificial plants.

Outsourced
Details of Nurse Station Counter [Autocad]
Details of Corridor Doors [Autocad]
Typical Ward Floor Plan (Autocad)

Note:

All 3D Renders were outsourced by the company, and are shown here only to reflect the design and process.

THE STORY

This was a futuristic technology retail store done during my undergrad studies. My idea was to design an innovative retail experience that sells content to re-connect people, rather than technological equipment.

The idea was to scan the image of people as they enter the store, so the store can create a combined digital story that connects with all those people. The resulting unique product is then sold to customers, along with a mini smartphone video hologram to view it, such as the “Holho”.

Inspired by Yusuke Oono’s 360 degree 3D storytelling book, a centerpiece was designed for the store to introduce the product spatially to the market.

Note: All 3D Renders were done by me during my Undergrad Studies.

Image 83

3D Render (3DS Max, Photoshop))

Image 84

Facade Render (3DS Max, Photoshop)

Image 85

Rendered Floor Plan (Autocad, Photoshop)

GOLDBERG

”Goldberg” was a project done during my undergrad studies. The brief was to design a travelling exhibition taking place at train stations. Since people are always on the move at train stations, my idea was to propose a design that is quick and interactive and entirely visual.

I chose the Annual Rube Goldberg Machine Contest to be the information promoted at the visual exhibition.

Goldberg machines are contraptions that accomplish a simple task in the most complicated and funniest way possible. It was an idea first developed by Rube Goldberg as a satirical view on the uselessness of certain machines designed to achieve a simple task. To visually and interactively promote this information, I proposed a gift token to be given to the viewers, via a Goldberg machine exhibit that unnecessarily complicated the whole process.

Image 86

Spatial Model

Image 87

Rendered Elevation (3DS Max, VRay, Photoshop)

Image 88

3D Render (3DS Max, VRay, Photoshop)

Note: All 3D Renders were done by me during my Undergrad Studies.

Image 89 Rendered Section (Autocad, Photoshop)

Image 90 3D Render (Sketchup, VRay, Photoshop)

Note: All 3D Renders were done by me during my Undergrad Studies.

Hospitality

“Veil” is a bar project completed during my undergrad studies. My idea was to design a bar for conservative societies, where night life is not fully accepted. To balance out this situation through the design of the space, I came up with a concept that allowed people to be seen but not identified.

This was achieved by the usage of,

1) Colored dichroic filters that reflect two different colors to distract people.

2) Mirrors to disorient the view by reflecting and camouflaging with the background.

3) Sand-blasted glass to blur out the images of people.

17

Social Transformation

SOCIAL TRANSFORMATION

“Social Transformation” was my Undergraduate research project. It was a futuristic project set 100 years in the future, where societal laws have allowed a positive transformation in the quality of life of convicted criminals. Currently, convicts experience a low quality of life and stunted personal growth, separated from human contact behind walls. In my design, I attempted to bring the society to them, rather than putting them back in the society, in a way that can enhance their quality of life, without endangering the security of the public.

This was achieved by locating the living spaces of convicts in an area that people regularly pass by, such as an underground subway station. The built-environments would have glass barriers around them to protect the public from the convicts. But they would also provide innovation facilities to help channel criminal obsessions to productive outputs, (art/ craft, books etc.) enabling fascinating topics for the passers-by to use as a conversation point.

Image 91

3D Render (SketchUp, Photoshop)

Image 92

Project Poster (SketchUp, Photoshop, InDesign)

Image 93

Rendered Plan (SketchUp, Photoshop)

Image 94

Rendered Section) (SketchUp, Photoshop)

Image 95

Spatial Model

Image 96

Project Proposal Note:

SETTLERS

This was a retail store completed during my undergrad studies. My idea was to design an experiential board game store, that brought back an interest in board gaming.

This was achieved by creating a unique gaming experience with a larger board-gaming space, where human interaction was key-play.

The shapes, materials and color were inspired by the German game “Settlers of Catan”. Rising levels of gaming areas were introduced as an indication of the high competition and constant fluctuation of emotions often seen during board game play.

Image 97

Rendered Extruded Plan (SketchUp, Photoshop)

Image 98

3D Render Bird’s Eye View (SketchUp, Photoshop)

Image 99

Rendered Section (SketchUp, Photoshop)

Note: All 3D Renders were done by me during my

Community

Place of Contemplation

PLACE OF CONTEMPLATION

This was a concept design done for a spiritual place during my undergrad studies. Instead of defining spirituality in a religious sense, my idea was to explore it as a place of reflection on how people choose to exist.

My design proposal consisted of a meet-up space with a translucent screen in the interior, that allowed it to work like a pin-hole camera. Through the pin holes on the outside, passers-by can see a blurry image of what is happening inside, and those on the inside can see an inverted, blurry image of the people outside.

By showing both perspectives in a way that still maintains their privacy, the intention was to give an opportunity for people to visit and contemplate on human behavior.

Image 100

Facade Render (Hand Drawn)

Image 101

Rendered Section (Hand Drawn)

Image 102

Interior Render (Hand Drawn, Photoshop)

Note: All 3D Renders were done by me during my Undergrad Studies.

JEWELRY & FURNITURE DESIGN

During my Graduate studies at Iowa State University, I took an Advanced Furniture Design class and a Jewelry Design class. As part of the curriculum, I designed and built 3 pieces of life-size furniture inspired by my roots. These included a meditation stool, a mini-table and a 3-legged side table that utilized Sri Lankan furniture design techniques, as well as elements from Buddhist culture.

For the Jewelry Design class, I designed and handcrafted a Sweat Soldered Ring, inspired by the traditional demon masks of Sri Lanka - a craft that originated from an ancient belief that demons are capable of healing disesases found in man. The ring depicts 3 such demons with healing powers.

Also included is the wedding ring I designed for my husband, which was an interpretation of “Madara”, a mythological flower that grows in heaven as per Sri Lankan folklore. Blended into the floral design are the letters for “Ma-da-ra”, in my native language “Sinhala”.

Madara.W

Thank You

My very first Interior Design model created in the College Admission Portfolio Program, representing the concept “Color”. My idea was to create a sensation within the observer that allows him to imagine being placed in the model itself, walking amongst the color and feeling the different moods and emotions that color has the ability to create.

Turn static files into dynamic content formats.

Create a flipbook
Issuu converts static files into: digital portfolios, online yearbooks, online catalogs, digital photo albums and more. Sign up and create your flipbook.