Melissa Montoya's Portfolio

Page 1

MELISSAMONTOYA

INTERIOR DESIGN PORTFOLIO

TEXAS STATE UNIVERSITY

MELISSAMONTOYA

CONTACT

956-429-8610

m _

m1438@txstate.edu

Austin, Texas

DESIGN SKILLS

Revit

Adobe Photoshop

Sketchbook

Indesign

Hand Sketching

ORGANIZATIONS

1988 Interior Design

ASID - Student

ABOUT ME

I'm an interior design student at Texas State University who is looking to build onto my skills in a firm where I'll learn and grow into a well-rounded designer.

EDUCATION

Bachelor of Science in Family and Consumer Science

Major: Interior Design

Graduation Date: December 2023

EXPERIENCE

Babysitting Connections:

2020 - NOW

RESIDENTIAL

PROJECTS

SPRING 2022

P. 6-11

FALL 2022

P. 12-17

SPRING 2023

P. 18-27

WILSON SPORTING
GRAPHIC DESIGN
HOME
GOODS CANVA:
COMPANY

TECHNICALSKILLS

CONSTRUCTION DOCUMENTS

HAND SKETCHING

PROJECTS

"GOLDENGIRLS"

This residential project was designed for three women in their mid-tolate 50’s who are co-owners of a house in Austin, Texas. The goal was to design:

1) the remodel of the existing house to include a new addition

2) a new “garage/studio”

3) a backyard patio

4) a tiny home

residential project

6

PROJECTDETAILS

4,397 SQ. FT.

SITE INFORMATION

1604 Broadmoor Drive, Austin, TX

CONCEPT: IN THE GARDEN

This mid-century design will incorporate its outside ambience into the inside, making a seamless transition between the two. A garden is an aesthetically pleasing display that can grow a variety of plants, a garden is like a piece of art. It can be arranged to look clean and simple with the most eye-catching flowers. The art seen throughout the space were translated from the "flower" component of being "in the garden." While the furniture and overall space will be about brown and green earthy tones of a garden.

schematic phase
7
8
schematic phase MOODBOARD

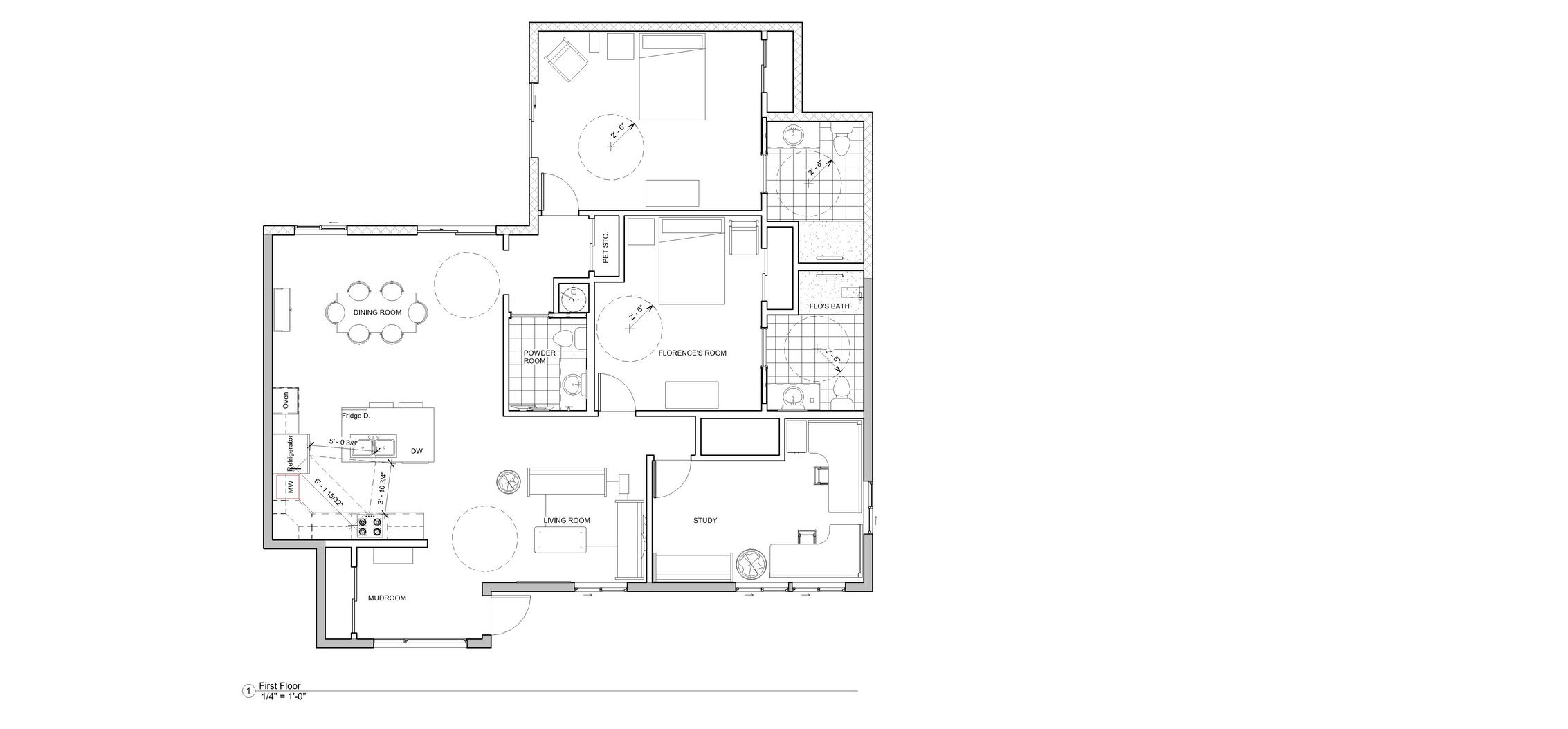
MAINHOUSE

design development

FLOORPLAN LIVING RM
KITCHEN/DINING
9
POWDER RM. BATHROOM KITCHEN

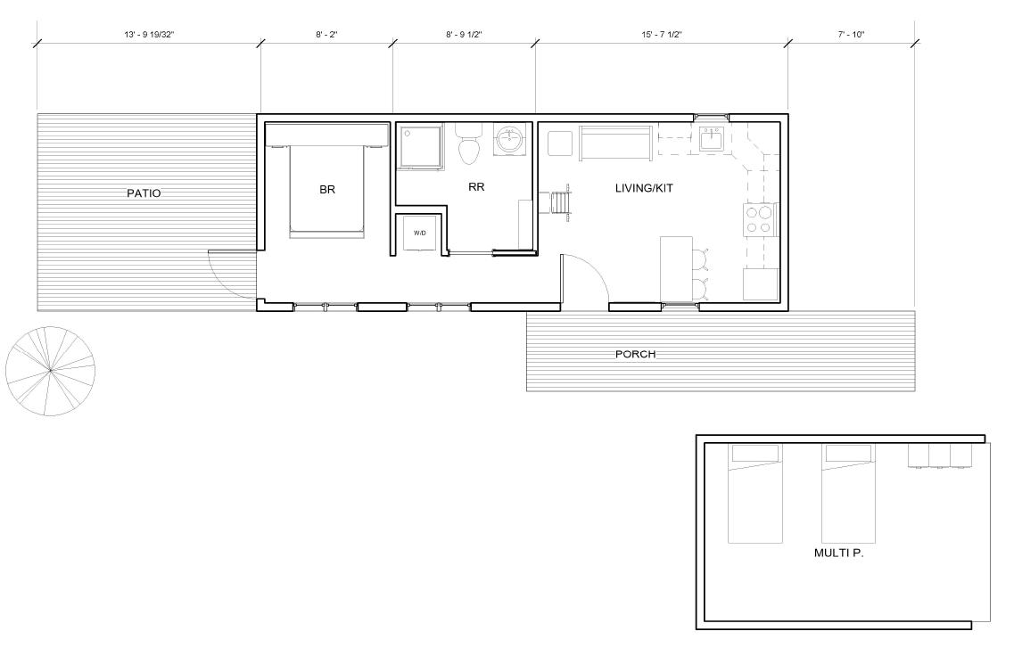
TINYHOME

FLOORPLAN

design development

NORTH BATHROOM EAST BATHROOM

ELEVATIONS

10

TINYHOMERENDERING

design development

11

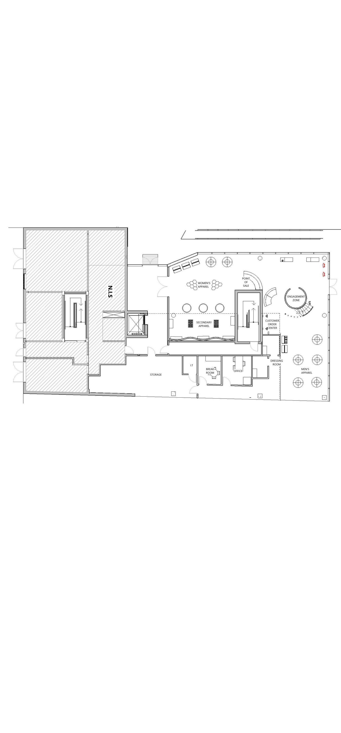
WILSONSPORTING GOODS

Wilson is a retail store that focuses on athletic clothing and equipment and is looking to open brick-and-mortar stores in the US. The design concept being presented is derived from their mission statement: ignite your potential.

retail
project
12

wilsonsportinggoods

4,397 SQ. FT.

concept IGNITE YOUR POTENTIAL

SITE INFORMATION

schematic phase

The design idea "ignite your potential" is derived from Wilson's mission statement. It relates to the program because Wilson's products are meant to bring out the best in their athletes, creating a "spark" that resembles the chemical reaction of a flame. The spark is then followed by smoke, which is the buyer's evaluatio stage and will be translated into space by the use of dark colored materials and free-flow layout. Th afterglow comes once athletes/customers buy their product and will be brought to life with an illuminated custom order center and P.O.S.

St.,
701 E 5th
Austin, TX 78701 1st floor
13

concept into space

BUBBLE MAP

PARTI DIAGRAM

schematic phase

FLOORPLAN

14

"SPARK": engagement zone, which includes VR games

design development

15

"SMOKE": curved display wall that attracts customers to the back of the store

design development

16

development

17
"afterglow": customers are filled with "glow" design

GRAPHICDESIGN COMPANY

Wilson is a retail store that focuses on athletic clothing and equipment, who was looking to open brick and mortar stores in the US. The design being presented is based off their mission statement: ignite your potential.

corporate project
18

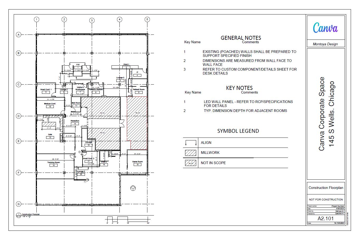
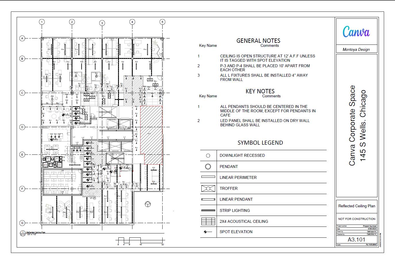
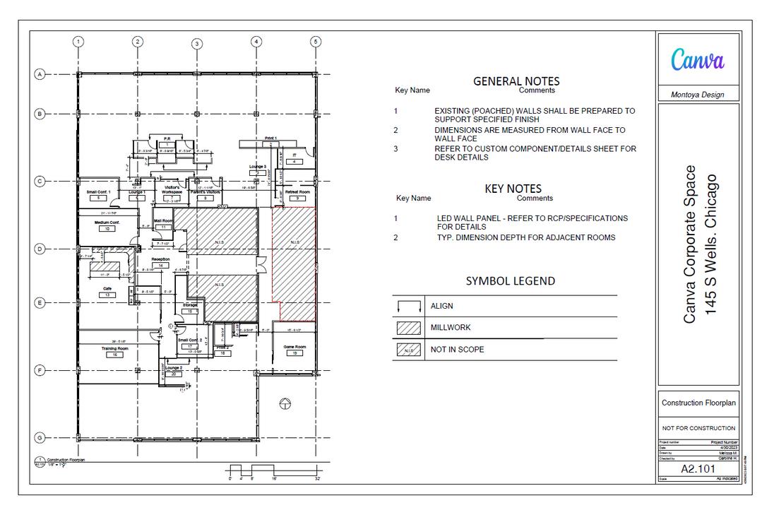
CANVA:GRAPHICDESIGNCOMPANY

SITE INFORMATION

145 S Wells St., Chicago, IL, 60606 18th floor

sc
12 9 19

BE A FORCE FOR GOOD

ACTION INSPIRED BY A GENUINE CONCERN FOR OTHERS

FORCE

"a person or thing regarded as exerting power or influence"

dynamic, powerful, push/pull effect, light/dark, asymmetrical

"pleasing and welcome" GOOD

Well-being, movement, growth

schematic phase
parti diagram
20

Lounge

Marketing

People

Finance & Legal

Engineering

Happiness Team

Sales & Success

Phone Rooms

Printing Area

Small Conference

Medium Conference

FLOORPLAN

Large Conference

Parent's Room

Visitor's Room

Game Room

Mail Room

Storage

Reception

Nap Pod

Cafe IT

21

perspectives

22

RENDERINGS

RECEPTION OFFICE

design development

CORRIDOR

23

RENDERINGS

WORKSTATIONS design development

24

RENDERINGS

CONCEPT SPACES

design development

25
26
construction documents
27
construction documents

TECHNICALSKILLS

hand renderings

29
THANKYOU! Melissa Montoya m _m1438@txstate.edu (956)429-8610

Turn static files into dynamic content formats.

Create a flipbook
Issuu converts static files into: digital portfolios, online yearbooks, online catalogs, digital photo albums and more. Sign up and create your flipbook.
Melissa Montoya's Portfolio by m_m1438 - Issuu