
LINDSEY CONNELL PORTFOLIO
![]()

LINDSEY CONNELL PORTFOLIO
5th Year Thesis l 1 Year
New York, New, York
[Investigations on Architecture of Connection]
As the external environment has become increasingly shaped by humans, so too has our internal environment. The cage of our own design has infected the Western mind with the notion of an “individual,” leaving humans in a state of unbalanced solitude and no longer able to live without exploiting and destroying the delicate systems of the world around us. I chose to imagine a new framework for connection, in which biological knowledge of humans and non-humans is understood as a key infrastructural element in maintaining life. Fascinated by this act of co-becoming, I focused on designed encounters between microbes and humans, serving as facilitators for either reciprocity or reverence and bring forward a new multi-species conception of identity.


FOLKLORE AS AN ASSEMBLAGE OF VERNACULAR KNOWLEDGE
THE INDUSTRIAL MIND
THROUGH ACTS OF REVERENCE AND RECIPROCITY WE BEGIN TO DECENTER THE HUMAN
FOLKLORE IS A FORM OF VERNACULAR KNOWLEAGE THROUGH WHICH WE LEARN INERSPECIES RELATIONS
MICROBES AND THE MICROBIOME AS A UNIFIER OF EXPERIENCE AND DECONSTRUCTOR OF PURE BODY POLITIC

NARRATIVE OF ISOLATION AND ANTHROPOCENTRISM

AND
Billboards are architectures of desire: immense resources devoted to physically constructing culture. If we are expected to crave what this infrastructure displays, might we re-appropriate this space? Can we covet closeness to the “invisible” infrastructures supporting our wellbeing?
Stripped of original purpose, a billboard becomes feeding ground, an attractor for species yet to find habitat. We imagine ourselves as saviors, yet harnessing scientific techniques with reverential attitude toward the biological might evolve better futures. The monumental forms of our time (infrastructure devoted to resource consumption) transform into sites of multi-species biological production.





Lindsey Connell


This fermentation device investigates reciprocity between human and microbe, reimagining notions of self through symbiotic exchange. Users place milk in a detachable chamber worn against the body. Body heat ferments the milk over the course of a day, producing yogurt that nourishes the wearer whose warmth enabled its growth.




The Microbial Mystic required precise steel bending at specific angles. Custom-welded jigs secured rods while blowtorch heat made the metal malleable. Each connection piece was individually fabricated and welded to assemble the complete armature, translating digital geometries into physical fabrication constraints.
Lindsey Connell


The Microbial Mystic explores connection to microbial mysticism. Like reading tea leaves, this divination device predicts futures through biological traces. Users breathe onto petri dishes and observe microbial growth patterns, interfacing with previously invisible aspects of self. These cultures reveal the microbial makeup dictating nearly every facet of existence: mood, sociability, cognition, identity. Can interfacing with these entities tell us something about ourselves? Can they reveal our futures?









Sand-cast aluminum process using PetroBond sand molds and 3D printed forms. Sand is compacted around the positive until secure, then removed. Aluminum heated in a furnace is poured into the cavity. Images document this archaeology of making.
This aluminum model was constructed through lost-wax casting. A 3D printed positive and casting wax formed the pattern, which was submerged in plaster and burned in a kiln. Liquid aluminum poured into the void left after burnout. Once cooled, the plaster mold was broken away to reveal the final form. Images document the excavation process.













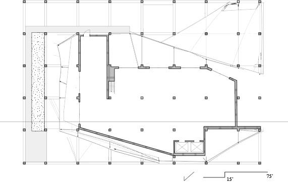
3rd Year l 6 Months
Pershing Square, Los Angeles
[Community Gathering Space and Collective Archive]
Tasked with an open-ended library in downtown LA, I examined what it means to share knowledge, returning to the most primal form of culture building: storytelling. Divided into four methods of engagement (listening, watching, collecting, and tasting), Lost and Found becomes a physical space for the forgotten and overlooked. I proposed that community fabric could become not only more inclusive but more tightly knit through designed interaction. The building derives from unencumbered collection, leading me to explore material collage as both narrative device and conceptual framework. The resulting form remains intentionally plastic, designed to change and grow over time as the community it serves evolves.








ACRYLIC SMOOTH FINISH FACADE
PE FOIL VAPOUR BARRIER
RIGID INSULATION BATT INSULATION
COLD
ACRYLIC SMOOTH FINISH FACADE
PE FOIL VAPOUR BARRIER
RIGID INSULATION
BATT INSULATION
COLD FORM STEEL STUDS
GYP WALL BOARD
ETFE RAILING
DECKING
WINDOW LED BAR PENDANT
Connell







4th Year l 2 Months
Copenhagen, Denmark
[Climate Response Center]
Some Disassembly Required. This climate action center in Copenhagen designs for temporal flexibility across three structures with distinct lifespans. The smallest building floats on water with an intended ten-year occupation before disassembly and relocation. The second building anticipates a century of use, acknowledging that spatial needs fluctuate as communities evolve, allowing reimagination in place or elsewhere. The third space remains most permanent, designed to last centuries while maintaining flexibility to adapt through community direction. Together, these three temporal scales create a center responsive to changing climate realities and evolving programmatic needs.











3rd Year l 1 Month
Copenhagen, Denmark
[Student Housing + Community Center]
Mechanical Sweetness draws inspiration from surrounding industrial buildings, subverting practicality to create playful yet sustainable spaces. Slides twist around the structure, emulating mechanical systems while providing rapid descent. This logic extends to individual dorm units where efciency becomes inventive: kitchen and bathroom share a sink, desks fold to become sun shades. Function remains integral but multiplies through imaginative deployment, where single elements serve multiple purposes and circulation becomes play.







Framestudio I 3 months
MDa Studios l 2 years
Work shown from two professional practices. During my internship at Framestudio, I developed presentation drawings for clients and project consultations. At MDA Studios, I worked across multiple phases: one year on a new construction house in Palo Alto developing window details and mechanical coordination drawings, followed by a Sea Ranch renovation where I produced design presentation materials and led the project from Design Development through Construction Documentation, coordinating drawings and material research within the project team.

05.1 Perspective Process
Completed during my Internship at Framestudio
For this drawing, I created the 3D model from the 2D AutoCAD set. Using the model, I developed a perspective drawing, which I then shaded by hand with pencil.

05.2 Perspective Process
Completed during my Intership at Framestudio For this drawing, I used the existing Revit model as a source to draft the 2D drawing. I then used Illustrator for presentation linework and pencil for the shading and textures.


05.4 Door Details
Completed while working at MDa Studios Brick lintel and waterproofing coordination at exterior doors, developed with structural and contractor input.





05.3 Iso Drawings










Completed during my Intership at Framestudio





Existing and proposed Isometrics produced for a community church renovation in Northern California. Working from CAD drawings, I developed a Rhino model and produced presentation materials.
Lindsey Connell















Alongside professional practice, I maintain ongoing material investigations through silversmithing, exploring lost-wax casting techniques at jewellery scale. Small aluminium installation cards extend this interest in metal fabrication and surface treatment.





