Lyndsay Flippin 2025 Design Portfolio

Page 1


01 02 03 04 05

BREAKING BREAD

ARCH 8510 | FALL 2024

CLEMSON, SC

PARTNER PROJECT | VALERIE ULLOA

ASHEVILLE TEXTILE CENTER

ARCH 8420 | SPRING 2024

CLEMSON, SC

INDEPENDENT PROJECT

FRACTURED PERSPECTIVES

ARCH 8110 | SPRING 2024 CLEMSON, SC

INDEPENDENT PROJECT

THE LINCOLN MEMORIAL

VA 111 | Fall 2020

ST. BONAVENTURE, NY

INDEPENDENT PROJECT

LINEAR PERSPECTIVE

VA 111 | Fall 2020

ST. BONAVENTURE, NY

INDEPENDENT PROJECT

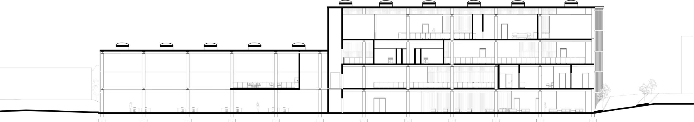
BREAKING BREAD ARCH

8510 | FALL 2024 | CLEMSON, SC

“GOOD FOOD, BETTER COMPANY”

Breaking Bread fosters community unity in the Town of McClellanville, South Carolina by addressing access to food, gathering spaces, and segregation through the lifecycle of food. The building’s design integrates six interconnected phases of the lifecycle of food: production, distribution and processing, selling and purchasing, marketing, preparation and consumption, and waste recovery. Programming within the site is organized in one cohesive space, versus the typical individual buildings, to encourage continuous collaboration, transforming food into a collective experience.

Recognizing the need for a communal hub, the facility bridges divides within the community by offering spaces for connection, education, and shared purposes. To ensure resilience in McClellanville’s flood-prone environment, the building is elevated and designed with sustainable materials, allowing it to remain a critical resource of food, water, and shelter during adverse conditions.

This approach not only addresses pressing social divides but also provides a durable, adaptable space that meets both immediate and long-term needs. By uniting people through the lifecycle of food, the project strengthens community bonds and creates lasting opportunities for growth and connection.

PLAN

Food Purchasing and Selling

Food Marketing

Food Preparation and Consumption

AXON
GROWERS MARKET
LOBBY
GROWERS MARKET
GROCERY STORE

FLOATING GARDENS

CAFE AND COMPUTER LAB

DEMO KITCHEN AND TASTING COOKING CLASS

RESTAURANTS AND BAR

ASHEVILLE TEXTILE CENTER

ARCH 8420 | SPRING 2024 | CLEMSON, SC

The design concept for this textile center is for the building’s exterior to mirror its internal activities. The primary goal of the building is to function as a link between the people of Asheville and their textile history. The design features robust concrete wrapped with a glass, wooden, and permeated metal facade. Inspired by patchwork, made through the piecing together of fabric scraps to form a larger pattern, the building is designed with three distinct structures, each with unique facades and varying heights, yet unified as a single complex.

LEVEL 1 LEVEL 2

LEVEL 3 LEVEL 4

RETAIL

INDUSTRIAL HOUSING

FRACTURED PERSPECTIVES

ARCH 8110 | SPRING 2024 | CLEMSON, SC

Functioning as visual markers, windows delineate the boundaries of a space, imparting a palpable sense of structure and enclosure. The angular extrusions emitting from the base of the frames promise to cast distinct shadows and infuse the space with ambient light, further enhancing the visual intrigue.

THE LINCOLN MEMORIAL

VA 111 | FALL 2020 | ST. BONAVENTURE, NY

The objective was to choose a building or monument and handdraw it using the one point line method.

LINEAR PERSPECTIVE

VA 111 | FALL 2020 | ST. BONAVENTURE, NY

Hand-drawn one point line theory study with additional focus on shadowing.

Turn static files into dynamic content formats.

Create a flipbook
Issuu converts static files into: digital portfolios, online yearbooks, online catalogs, digital photo albums and more. Sign up and create your flipbook.
Lyndsay Flippin 2025 Design Portfolio by Lyndsay Flippin - Issuu