Portfolio I Chaib Farah Lyna

Page 1

HELLO

‘ A skilled architect with proven academic and practical knowledge of the design, construction, and urban planning processes, alongside exceptional creativity ‘

As a recent graduate, I am skilled in both architectural design and urban planning, as well as ensuring prospective design concepts are functional, safe, economical, and meet the client’s needs. I have a client-focused approach with a skillset that unites itself into bringing creative concepts into an achievable reality . I can contribute my expertise in a clear and concise manner while following leadership directions at the appropriate time.

Adresse: 1137 Budapest , Hungary

E-mail: Linafarah98@gmail.com

Phone : +36707201753

Date of birth : 15-08-1998

Place of birth : Biskra , Algeria

Residence : Budapest , Hungary

EDUCATION :

2013-2016 Hight school degree

El kawakiby hight school, Touggourt , Algeria

2017-2020 Bachlor in Architecture

University of Mouhamed Khieder, Biskra , Algeria

2020-2022 Master degree in Architecture and Urban design

YBL Miklos faculty of Architecture , University of Obuda

ACCOMPLISHMENTS :

2017-2020 Academic exellence award

University of Mouhamed Khieder, Biskra , Algeria

2019-2020 Civil Istanbul training

Istanbul , Turky

2019-2021 Archinova club founder

University of Mouhamed Khieder, Biskra , Algeria

2020-2022 Stipendium Hungaricum scholarship programme

YBL Miklos faculty of Architecture , University of Obuda

EXPERIENCE:

2019-2020 Design studio

SOFTWARES:

BIM

Archicad - Ecotect - Revit

3D modling

Archicad - Skatchup

Rendring & postproduction

Lumion - Adopephotoshop - Adope illistrator - Adope Indesign

LANGUAGES:

Arabic Native English professional C1

Hungarian Basic A2 French Advanced

RESUME

RESUME

CONTANTS

WELLNESS CENTER

Revitalize Budapest big ring road - urban research

RESEARCH CENTER

Recreation space and Educational wellbeing space

LOOKOUT TOWER

Urban - Modeling

WATERFRONT AREA

Urban - Landscap desgin and city scale intervention

01 03 04 02

WELNESS CENTER

01

The main objective of this project is to find a direct conection between the project’s site and the Big Ring Road and to help solve the problems that exist in the region With a wellness and greenery center, the project’s inspiration is to bring people to a calmer and hopefully more positive state of mind. I want to build a core that everyone will enjoy by incorporating natural elements such as greenery, mimicking the concept of the canal along Grand Boulevard, and complying to the city plan’s texture. Creating dynamic empty spaces and closed spaces (voids and volumes) to create a coherent flow of nature and mankind

The site is located in 1085 Budapest , Rökk Szilárd utca 6-2. Creating a connection between the Big Ring raod and that by using greenery and natural sunlight.

I aim to create a tranquil environment that allows air to circulate and accesses direct sunlight by establishing green spaces on all the levels and in the courtyards.

My main goal is to design a space that feels like the outside while also providing all the necessary protection against natural factors. Ceating the best volume composition to get the most of daylight.

At plan level

most dark area are going to be a circulation area and it’s only 5 m wide

At Facade level

I made a gap in the facade to let more light in and using reflective materials to bounce off light

COMPOSITION

At section lowering meter in water surface)

section level

lowering the level of the courtyard by one in order to better reflect light (from the surface)

01

The facade is one of the main elements in any architecture project, particularly in this one.

In this project, we have two main facades one on the big ring road and the other is in the Rökk Szilárd street.

The design of this façade depends on the nearby structures because it’s crucial in this situation to maintain the same facade fabric while also giving it a sense of modernity.

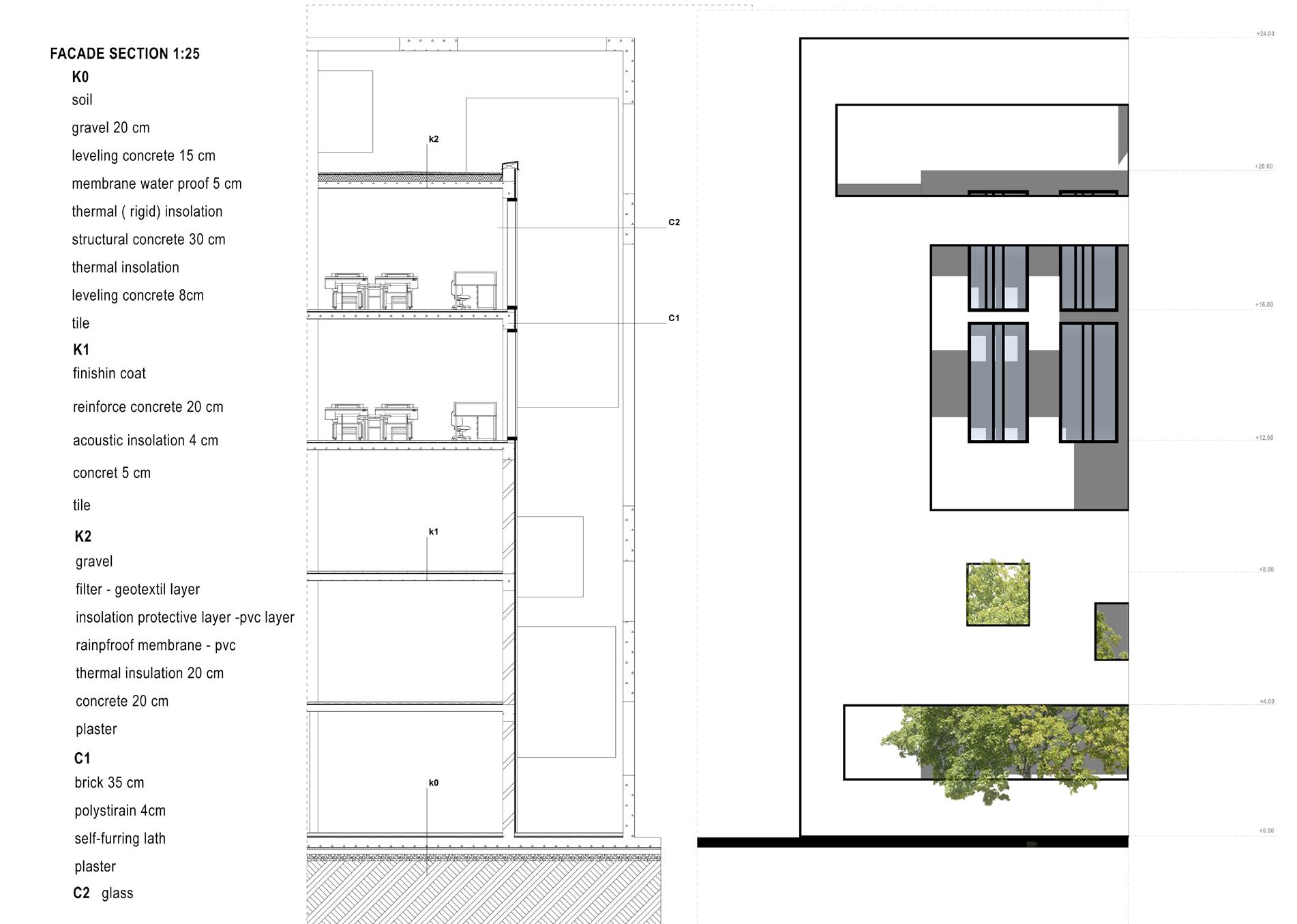
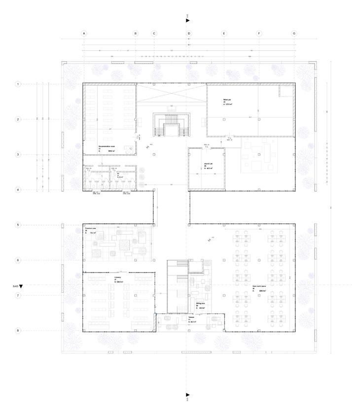
RESEARCH CENTER

02

The project has been intriguing in aspects of it’s strategic appoach “ the wall” The traditional wall used to enclose on all sides can be broken down to form a semi open intresting relation between the outer space and the architecture it self , a concept of the framed structure in which boundary really don’t exit !

The scale of the space from the putside to the inside is gradually reduced to establish a good transition for the user who enters the building from the outside , allowing it to connect with the enviroment and vice versa .

The pixel wall with cutouts in it easily ings its uniformity and solidity The entire shell has served as a visual public and private zones of the building

The shell also act as a sunbreaker for enough natural light with minimum

easily adapts to it’s suurrounding , reducvisual interactive architecture for both the building for the whole building to assure having heat

FACADES

West facade North facade East facade
02
South facade

PROJECTING

Plans were developed as a result of projection made on the facade , the concept is connected to the project in every espect , from the facades to the plans to the sections . Moreover, the inside was also altered to incorporate the shell’s design. Each cutout in the facade served as a reflection of a space in the designs; in other words, each void became a framed function. that caused the plans’ ideal balance. between the closed spaces and the open spaces. It also aided in the development of the terasses to guarantee sustainability.

2 4 3 8.8 2.7 5.7 5.7 5.7 0.4 5.7 0.4 5.7 0.4 3.3 5.7 SECTION

02

THE SHELL DETAILS

03 LOOKOUT TOWER

The tower is located in Tammanraset Hougar Algerian dessert

An architectural design inspired by the observation of the Hougar desert Oasis.

The tower was designed with multileveled lookout levels, with four distinct views to capture the entire view (desert, mountain range, and oasis) at various levels.

The Lookout tower is a innovative and contextual impact on the Tammanraset Hougar , that will inhance the experience of the second highest peak of the Hougar mountain’s location and nature.

it is a found object made of concrete,the materials used are quite puritan, the harmony of the extension. together it create a contemporary built enviroment.

SECTION

FACADES 03

“HARMONY PARALLEL WITH NATURE”

03

03

THE WATER FRONT AREA

The site is situated in a very rural area with residential neighborhoods and has a lot of natural potential; therefore, the main idea is to make as much use of these sources as possible by bringing water to the site and making the area lively both during the day and at night. In order to preserve the natural state of the area and minimize pollution, the area will be dominated by padesterian.

The waterfront area 9th district, Budapest Hungary

Zoning

To ensure a dynamic and balanced environment, the area was divided into three major sections: padestrain area, residential and mixed-use area, and green space.

Land Use

The area consists mainly of offices, a city mall, a hotel, retail stores, a pavilion, a pool, a liberal, a gym, a polyclinic, a clinic, and mixed use.

Solid and void

The project has a balance between built and an built areas also it integrated with it’s surrounding

Landscape and Water Elements

big part of the concept was to bringing the water to the site , and having greenery all around to minimise pollution that the area is in

MASTER PLAN

03

Turn static files into dynamic content formats.

Create a flipbook
Issuu converts static files into: digital portfolios, online yearbooks, online catalogs, digital photo albums and more. Sign up and create your flipbook.