PORTFOLIO

WORK EXPERIENCE
DRAW Collective (Pittsburgh, PA)
Architectural Intern
May 2023 - August 2023
May 2024 - August 2024
Serenbe Planning + Design (Atlanta, GA)
Architectural Intern
May 2021 - August 2021
May 2022 - August 2022
John Bynum Custom Homes (Atlanta, GA)
Architectural Intern
June 2021 - August 2021
June 2022 - August 2022
UNIVERSITY ROLES
Teaching Assistant
1st Year Undergrad Design Studio
Spring 2024
CABE Lecture Series
Student Coordinator
Spring 2024 - Present
Women’s Cross Country + Track
Captain
Fall 2020 - Present
LYDIA SHAW
PITTSBURGH, PA
M: (412)552-4967
E: lydia.shaw@students.jefferson.edu
EDUCATION
Thomas Jefferson University (Philadelphia, PA)
College of Architecture and the Built Environment
August 2020 - Present
Current GPA: 3.88
Major: Architecture | Minor: Management
Thomas Jefferson High School (Pittsburgh, PA)
Graduated June 2020
GPA: 4.3
Highest Honors, Technology Education Faculty Award Member of National Honors Society, Student Council, French Club, Student Spirit Leader, Theater’s Costume and Construction Crew, Cross Country, Track, and Basketball
AWARDS
Commercial Real Estate Women (CREW)
Scholarship Recipient Philadelphia Chapter, September 2024
Sigma Tau Delta TJU, Official Induction in 2025
CABE Dean’s List TJU, 8x Recipient
D2 Academic Achievement Awards
TJU, 8x Recipient
All-Academic + All-Conference







THE PEARL BOATHOUSE
Exterior render from riverside
The goal of the project was to design a modern, sustainable boathouse along Philadelphia’s Boathouse Row, blending seamlessly with its natural surroundings while serving the needs of rowers. My collaborative group was responsible for the conceptual design, focusing on form, materials, and sustainability. The main challenge was balancing aesthetic appeal with functional space for rowers, considering environmental factors like flooding and wind. I incorporated a dynamic roof form inspired by racing shells and used passive solar techniques to enhance energy efficiency. This project taught me how to balance design iteration, user needs, and environmental impact while showcasing how architecture can support both athletic communities and sustainability.






ABOVE: East-facing elevation
CENTER: North-facing elevation (entrance)
BELOW: West-facing elevation


ABOVE: Second-level floor plan
BELOW: Ground-level floor plan









1 TEMPERED INSULATED GLASS
2 FLASHING + SEALANT
3 EXTERUDED ALUMINUM SKYLIGHT FRAME
4 STEEL PLATE
5 MULLION + LAMINATED GLAZING
6 WOOD BEAM
7 PLYWOOD PANELING
8 INTERIOR FINISH
ABOVE: Detail drawings for the roof assembly BELOW: Section detail with callouts for materiality
9 CAVITY INSULATION
10 ROOF FACIA + SOFFIT
11 INTERNAL GUTTER
12 OPERABLE WINDOW
13 CROSS LAMINATED TIMBER
14 OPERABLE MULLION
15 RIGID INSULATION
16 STANDING SEAM METAL



02
SPRING 2023
Collaboration with Reagan Cope
This adaptive reuse project transformed an existing building into an urban green space with rock climbing, meditation zones, and residential apartments to address a lack of housing and recreational spaces in the area. I worked with a partner to design the public spaces and residential layouts, focusing on creating a calming atmosphere with carefully selected materials. Challenges included adapting the layout, budget constraints, and integrating nature into the urban setting. Green roofs, permeable surfaces, and natural ventilation were incorporated for sustainability. The project provides a restorative space that benefits both individuals and the community, promoting wellness and a balanced lifestyle.

Commerical Property
Residential Property
Green Space
Designated Lot
Vegetation
Sun Path









































ABOVE: Site analysis for selected plot BELOW: Exterior render with materiality to show apartment arrangement



























































































Representation of how interior renders were displayed in final presentation


Street render with exterior views to the entrances from the streetsides


Section cut through apartments and rock climbing facility with rendered callouts for materiality

Section cut through back entrance to view rock climbing facility, meditative space, overlook, and apartments


03
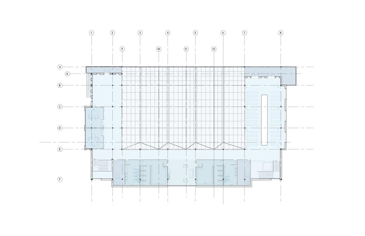
In South Philadelphia, I conceptualized a project to revitalize an abandoned community garden by adding a greenhouse and market hall to support local agriculture and commerce.This project marked one of my first solo endeavors at such a large scale. I took on full responsibility for designing the greenhouse with an undulating roof to optimize sunlight and creating a market layout that fostered community engagement. The market hall was intentionally designed with individual spaces for market stalls, ensuring that each vendor had a defined area that encouraged interaction while maintaining a sense of organization and flow. Challenges included balancing the greenhouse size with garden space and working within budget and zoning limits. The design focused on sustainability and cultural identity, supporting both local businesses and education. This experience taught me the value of community input and how architecture can promote sustainability and cultural pride.




Physical model of structural assembly with market stalls below and greenhouse above



CONNECTING

Physical concept model depicting various levels of inequity

FALL 2022
This project explored the social and physical boundaries in South Philadelphia, focusing on the divide between equitable and inequitable neighborhoods. After my partner and I completed our site walk, we were inspired to visually represent the unequal divisions within the area. I created a collaged map and conceptual model that separated the “Privileged,” “Gentrified,” and “Neglected” areas, allowing for a clear analysis of these divisions. The challenge was translating abstract concepts like equity into visual forms while being mindful of the community’s history. Using collage techniques with photographs and sketches, I depicted these boundaries in a detailed way, making the issues more tangible. The purpose of the design was to highlight and analyze these inequalities, helping to bring abstract ideas like equity into focus. By differentiating the areas, the project raises awareness of real disparities, emphasizing the need for change and a more equitable future. This work taught me the power of visual storytelling and how design can effectively communicate complex societal issues.








SPRING 2023
Collaboration with Jessica Oberg
Akil Solomon
Kayla Roldan
Redesigning a climate research station for The Summit Camp in Greenland presented unique challenges due to the extreme Arctic conditions. Our group focused on thermal protection, energy conservation, and integrating prefabricated structures with hydraulic platforms to ensure quick assembly and structural resilience. The remote location and harsh climate required compact, transportable designs capable of withstanding extreme cold and winds while minimizing energy consumption. We used an ETFE membrane for insulation and hydraulic platforms to lift buildings above snow accumulation, optimizing energy efficiency in the process. This project taught me how to balance technical constraints with comfort, efficiency, and sustainability in extreme environments, highlighting the importance of adaptability and energy-conscious design in remote locations.
ABOVE: Floor Plans at each level of the research station
BELOW: Expansion diagram of pre-fabricated structures that must fit wiithin the size constraints of a C-130 cargo plane
Expansion of “Big House”













ABOVE: Section of reserach station with EFTE membraned removed BELOW: North-facing elevation
DESIGN STATEMENT
As an architectural designer, I strive to create spaces that not only serve their intended function but also enrich the lives of the people who inhabit them. My work is rooted in a deep respect for the environment and the communities I design for. I am passionate about blending modern architectural forms with sustainable practices, ensuring that every project enhances its surroundings and minimizes its impact on the planet. Through thoughtful materiality, innovative design solutions, and a focus on user-centered experiences, I aim to address both the technical and social challenges of each project. Whether it’s reimagining an urban space for health and wellness, preserving cultural identity through design, or building in extreme environments, my goal is always to create spaces that foster connection—between people, nature, and the built environment. I believe architecture can be a powerful tool for change, and my work reflects a commitment to sustainable, adaptive, and community-driven design that leaves a positive, lasting impact. PRE-UNIVERSITY
APPLIED EXPERIENCES
My most impactful experiences have been those outside of university-led projects. Early in my career, I had the opportunity to design functional spaces for my high school community, including a soundproof studio and an apiary, which sparked my passion for people-centered design. During my university summers, I gained hands-on experience through internships where I worked on various design challenges, including documentation, streetscape charrettes, and conceptual design. These experiences involved extensive data collection to ensure the designs were not only functional and aesthetically pleasing but also well-received and appropriate for their contexts. Navigating the diverse perspectives of clients, stakeholders, and community members was challenging, as I had to balance competing opinions while staying true to the vision of the site and project. Working within these constraints deepened my understanding of how to blend technical considerations with user-centered design, ensuring that the final outcomes were both practical and meaningful. These experiences helped me bridge the gap between academic theory and real-world application, enhancing my ability to collaborate effectively and create designs that address both functional needs and aesthetic goals. These are only a few examples of how hands-on projects have shaped my understanding, allowing me to apply my knowledge in diverse settings and refine my skills in problem-solving and creative expression.
DRAW COLLECTIVE INTERNSHIP
SUMMER 2023 + 2024
CHILDREN’S MUSEUM GRANDSTANDS
PRE-UNIVERSITY
SOUND STUDIO
Designing and building the sound studio at Thomas Jefferson High School was one of my earliest hands-on projects where I gained valuable experience in both design and construction. I was responsible for conducting extensive research on sound isolation techniques, materials, and acoustics to ensure the studio met professional standards. Through this research, I was able to identify cost-effective materials and solutions, ultimately saving the school over $60,000 in construction costs. Alongside students and staff from various disciplines, we collaborated on all aspects of the project, from researching the best soundproofing methods to integrating professional-grade equipment. I was involved not only in designing the layout but also in the actual construction, helping to build the structure, install soundproofing materials, and set up the equipment. This project taught me how to apply architectural principles in a practical setting while emphasizing the importance of teamwork, adaptability, and problem-solving. Seeing the project come to life and knowing it would serve as a space for students to explore the music industry was an incredibly rewarding experience that deepened my understanding of how design can impact educational environments.
APIARY
In designing and creating the apiary at my high school, I helped establish a hands-on learning environment for students. My contributions included designing the layout of the apiary and creating technical drawings that guided the construction process. These drawings provided clear instructions for building the bee shed, which serves as both a storage space for tools and a meeting area for Apiary Science programs. Throughout the project, I collaborated with students and staff, and conducted research on bee care and sustainability to ensure the space met the environmental and functional needs. The apiary also became a business opportunity for students, allowing them to sell honey produced by the bees, merging education with entrepreneurship in a meaningful way.

My project advisor, Kirk Salopek, and me in the recording studio space

Final phases of construction of


DRAW COLLECTIVE INTERNSHIP SUMMER 2023 + 2024
SERENBE INTERNSHIP
RESIDENTIAL DOCUMENTATION
During my time at Serenbe, a sustainable community located just south of Atlanta, Georgia, known for its focus on environmental stewardship, local agriculture, and green building practices, I had a dynamic experience that ranged from attending community meetings and architect/builder client meetings to organizing project documentation and working closely with the community’s founders. One of the key aspects of this role involved observing new buyers making decisions about features they wanted for their homes. Recognizing the need for comprehensive records, I took the initiative to put together an inventory of architectural features and details for each property. This led to the task of documenting every house in the neighborhood—over 700 homes—so that the architecture firm would have accurate records for each client’s property. This involved photographing the homes and recording key architectural features, ensuring the firm had proper documentation for future reference. Serenbe’s design emphasizes harmony with nature and sustainable living, and this project contributed to maintaining a comprehensive archive that aligns with the community’s eco-conscious and long-term vision. The documentation was essential for providing the firm with reliable information for future renovations or design updates. This experience taught me the importance of thorough documentation, organization, and how such records can support long-term design decisions and client relationships within a sustainable community.
STREETSCAPE CHARETTE
In the following summer, I participated in a design charrette focused on selecting exterior paint colors for a new residential development. The goal was to ensure that the colors for everything from the main body of the buildings to the trim, doors, and other architectural details worked together to create a cohesive and harmonious aesthetic for the community. This process was crucial in maintaining a consistent rhythm and visual flow across the neighborhood, while also respecting the overall design language of Serenbe’s sustainable and community-focused vision. Working alongside professional architects and the community’s founder, I contributed to discussions on color theory, materiality, and how these choices could enhance the sense of unity and place within the PRE-UNIVERSITY 2019-2020




Detail photos captured and used for documentation of neighborhood homes

Printout of the streetscape used to layer paint chips for streetscape charette
DRAW COLLECTIVE INTERNSHIP SUMMER 2023 + 2024
DRAW COLLECTIVE INTERNSHIP
CHILDREN’S MUSEUM
At DRAW Collective, an educational and health-focused design firm in Pittsburgh, PA, I contributed to an adaptive reuse project aimed at transforming the abandoned News Tribune Building into a children’s museum for Neighborhood North. My role focused on designing specific interior and exterior elements, as well as creating renderings to present to stakeholders at a community meeting to inspire donations for the project. I collaborated closely with the client and my principal architect to incorporate feedback into the designs. For the interior, I contributed to the front lobby space, including the design of a display piece to showcase the museum’s donors, as well as a children’s play area on the lower level. On the exterior, I worked on an ADA-compliant ramp leading to the side of the building, adding a decorative facade that enhanced both accessibility and the building’s aesthetic appeal. A key feature of the exterior design was the “Giving Gears” exhibit—an interactive installation where turning one gear rotates all of them, symbolizing the communal revitalization efforts of the neighborhood. These designs were presented to the community to generate excitement and support for the adaptive reuse of this historic space.
GRANDSTANDS
I was also tasked with creating exterior renderings for a grandstand project at Norwin High School. In addition to the renderings, I was responsible for conducting site surveying and documentation to ensure accuracy in the design. I collaborated closely with several of our team’s architects to ensure the renderings accurately represented the design vision for the new grandstand. These renderings, along with the site data, were prepared for a client meeting with the Norwin High School Board, where they were presented for review and feedback. My role involved refining the visual details to effectively communicate the design intent and help the board visualize the final project. This experience enhanced my ability to work as part of a collaborative team while also providing key visual materials and data to support client discussions and decision-making.
PRE-UNIVERSITY 2019-2020
SERENBE INTERNSHIP SUMMER 2021 + 2022


Renders and floor plans set up for community stakeholders meeting DRAW Collective’s Principal Architect, Mark Scheller, and me


Exterior renderings during the grandstand design process

DRAW COLLECTIVE INTERNSHIP SUMMER 2023 + 2024
CHILDREN’S MUSEUM GRANDSTANDS