Lydia Janik Portfolio

![]()

435 Bougher Hill Road
Easton PA, 18042
908-339-7092
Education
Drexel University
Master of Science in Interior Architecture
Bachelor of Science in Architectural Studies
Skills
lydiagjanik@gmail.com LinkedIn
Philadelphia PA
Anticipated Graduation: June 2025
Cumulative GPA: 3.75
Design Software: Adobe Photoshop, Illustrator, & InDesign, Rhino 7, AutoCAD, Revit 2022, Enscape
Business Software: Microsoft Office
Relevant Coursework
Arch Studio 1A-C, 2A-C
Architecture and Society I-IV
Structural Systems I-III
Materials and Methods I-III
Work Experience
Children’s Hospital of Philadelphia
Facilities Planner
Graduate Interior Studios
Interior Materials
Interior Systems
Sustainability: History, Theory and Criticism
- Support initiatives for renovations, requests for space, furniture, signage, and staff moves
- Develop schematic plans supporting requests
- Interface with department contacts
- Assist with CHOP’s space management database and reports
- Verify existing conditions and update AutoCAD drawings
Marshalls
Sales Associate
- Maintain departments by managing returns and reorganizing the space
- Restock mechandise and design features to appeal to current trends or season
- Attend to and accommodate customer requests and transactions
- Assist in the workflow and processing of new merchandise
- Train new emplyees in sales, merchandising and all departments
Volunteer Work
Polish Citizens Society Volunteer
- Assisted throughout the pierogi making process and distribution process
- Counted and packaged pierogies into dozens
- Tracked of and managed orders through a neat system
Honors
- Latin Honors: Magna Cum Laude
Philadelphia, PA April 2023 - September 2023
Easton, PA
August 2018 - Present Allentown, PA August 2021 - Present
- Deans List: Fall 2020, Winter 2021, Winter 2022, Fall 2022, Spring 2023, Fall 2023, Winter 2024
- Polish National Alliance Scholarship 2021. 2022, and 2023






1706
Rittenhouse 4-9
Remison Ceramic
Studio 10-15
Mantua Rowhomes
16-21
Shifted
Apartments 22-27
Community
Wellness 28-33
Snowkill 34-39
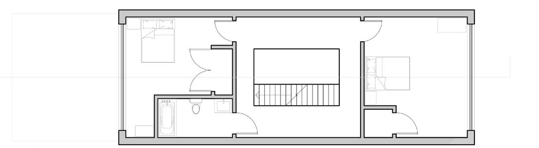
Home to the senior couple Laura and Gabriel Alveraz, this luxury apartment draws from each of the residents personalities while also


Gabriel is the CEO of a world history museum and is more of an introvert that appreciates private nooks and spaces. He takes pleasure in cooking and hosting dinner parties. Reading is one of his favorite hobbies, as well as collecting and displaying artifacts in his home.
Laura is a retired professional pianist who enjoys entertaining and holding social events. She struggles with Retinitis Pigmentosa, a visual impairment that causes the loss of her peripheral vision and issues seeing at night or in darker areas.




Dining Room Custom Cabinetry









Operating as a ceramic studio located in Copenhagen Denmark, the design connects to the pre-existing buildings’ history as a train hub. As an adaptive reuse strategy, the original architecture is preserved and celebrated. Incorporating an open layout helps create a friendly, engaging, and connected atmosphere amongst users throughout all the different spaces. The design is community oriented to promote socialization amongst the various members of the surrounding neighborhood.










Latitudnal Section

Longitudinal Section


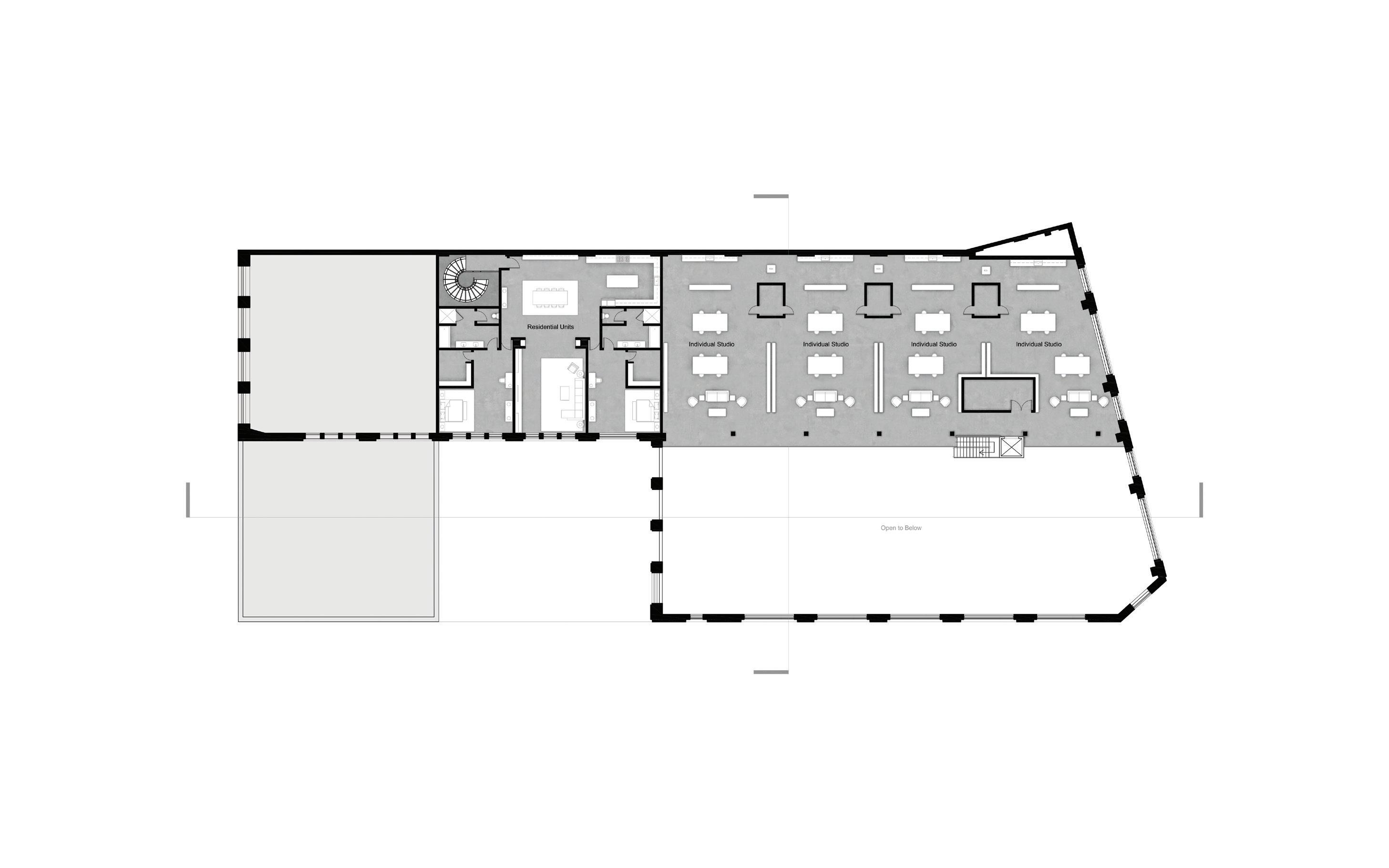
As an addition to the Mantua neighborhood lies a new complex of live/work and multiunit rowhomes. The strategic placement and arrangement of these homes works together to allow maximum sunlight to touch the homes, as well as the shared community space between them.


Site Section through Multi-Unit Rowhomes

Site Section through Live/Work Rowhomes


Multi-Unit Section Perspective






Multi-Unit plans with wheelchair accessible ground floor unit and third floor unit with access to balcony.





Live/Work plans with workspace located on ground floor for easy cilent accessibilty and residential spaces above.


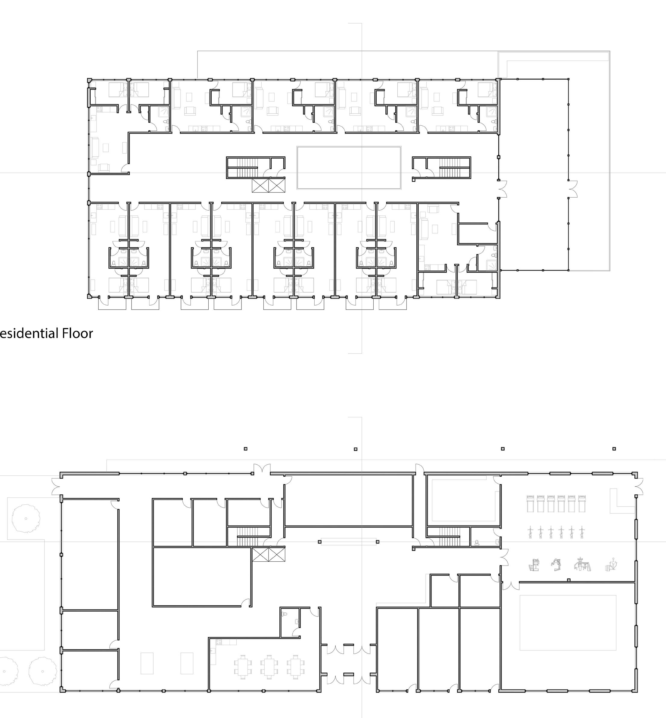
Funtioning as a senior living facility, this apartment building brings light to a disconnected neighborhood in Center City Philadelphia. The use of public amenties allows community members and residents to socialize and form connections, creating a new friendly



Relationship between the site and the surrounding buildings heights

Massing with relationship to surrounding buildings
East-West Section

North-South Section






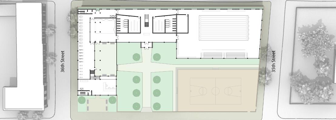
Using the pre-existing structure of the old Powelton Elementary School, life was brought back to this site in Powelton Village. To benefit the community, the structure was converted into a physical wellness center with a variety of amenities that everyone can take advantage of.



Exploded Axonometric Diagram

North-South Section

East-West Section





Moment Plan and Section of Pool





A future of exterminsm takes place 100 years from now. The world has gone through a process of global freezing, causing many people to die at an alarming rate, including world leaders. This left people with no guidance towards a solution, until a group of survivors persuaded the weak into joining their civilization. They became known as the elites and created a death maze, where individuals from the lower class willingly step forward to face the challenge of completing the maze for a life altering prize.







Exploded Axonometric Interior Axonometric







