Lydia Collins - Portfolio Version 2

Page 1

ARCHITECTURAL

LYDIA RHYS COLLINS

Hello! I am a fifth year student at the University of Wisconsin - Milwaukee pursuing my Bachelor of Architecture. My approach to architecture comes from a long-standing passion for detail, precision, and creative iteration. I am dedicated to ecological integration and sustainability, and I have a deep appreciation for the transformative qualities of the built environment.

Designing with empathy and understanding of culture, enivironment, and community is my priority. These selected works seek to create inclusive and beautiful spaces.

Outside of my classes, I love to read, write, draw, and travel at any given opportunity

2
SELF PORTRAIT 1.26.24

TABLE OF CONTENTS

RARE BOOKS ARCHIVE 4 - 13

ECO DISTRICT 14 - 19

BEND HOUSE 20 - 27

BLUE BRANCHES 28 - 33

THOREAU ELEMENTARY 34 - 41

3

RARE BOOKS ARCHIVE

Comprehensive studio required a complete set of design documents including site analysis, pre-design, design development, and construction documentation. We were asked to design a rare books archive for the city of Milwaukee, including a space for events and a public facing cafe to enliven the adjacent market street.

My design prioritized preserving the historical aesthetics of downtown Milwaukee while evoking modernity through exposed timber construction. I wanted to highlight the intimate interior space, emphasizing the beauty of wood in its different forms and appearances.

In a dense urban environment, the building stands out as a unique artifact with historical connotations.

FA23

Professor Jim Shields

Site: Downtown Milwaukee

4
5
N 6

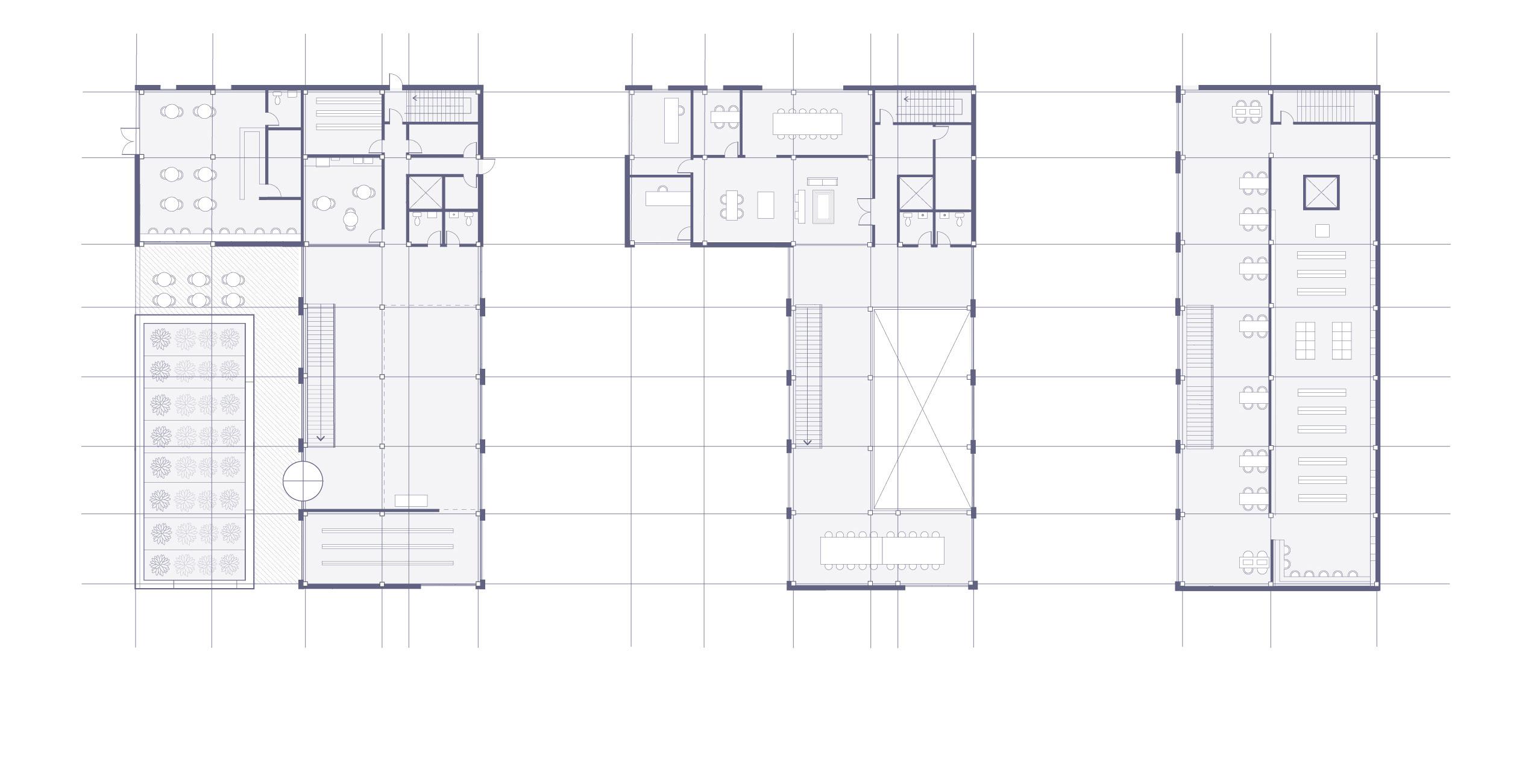
A simple, L-shaped plan offers simple and effective circulation throughout the space. The single run, lateral stair creates a unique experience when traveling from floor-to-floor - supplimented by beautiful views of the adjacent city hall. A large, open lobby is a perfect event space and offers a double height atrium.

The third floor hosts the jewel of the building - the reading room and collection stacks. The reading room doubles as a circulation space, highlighting views and natural light. The space effortlessly transitions into the collection stacks, allowing patrons to browse and read freely.

LEVEL 1 LEVEL 2 LEVEL 3
LONGITUDINAL SECTION
N 7
8
9
10
11

ROOFTOP PV PANEL

HORIZONTAL SKYLIGHT

FIRE STAIR

INTERIOR CLERESTORY

MULLION GRID

POLISHED CONCRETE FLOOR

LATERAL STAIR

RESTROOMS & STORAGE

ATRIUM

POLISHED CONCRETE FLOOR

LATERAL STAIR

MULLION GRID

GARDEN BOX

12

EXTERIOR RENDER - ENTRY

INTERIOR RENDER - LOBBY
13

ECO DISTRICT

In this urban design studio, we were tasked with designing the layout of a new ecodistrict on the site of the Milwaukee Mile near the state fair grounds, as well as daylighting the existing Honey Creek which currently runs underground through the site. My group decided to make our central focus a large lake in the center of the site - inspired by Phoenix-See in Dortmund, Germany.

Along with the lake, we wanted to prioritize placemaking for the residents of the proposed eco-district. We created a large lateral park bordering the lake, filled with marshland to provide natural habitats and stunning views. We presented our ideas through a series of experietial “vignettes,” detailed site diagrams, and a large-scale physical model.

FA22

Professor Jim Wasley

Collaboration with Olivia Wegner and Megan Phillips

Site: Milwaukee Mile Speedway

14
15

underneath.

A winding pathway is built into native immersion into nature while viewing

VIGNETTE 1 WINTER PATH VIGNETTE 2
A central bridge leads to a circular trellis and gathering area, guiding residents over the lake and creating beautiful pathways
16

native Wisconsin marshland, allowing the dense cityscape in the distance.

Overlooks are placed off the lateral plaza, creating space for relaxation and meditation. Residents are encouraged to enjoy views of the central lake.

MARSHLAND VIGNETTE 3 OVERLOOK
17
The existing Honey Creek becomes a large lake, which separates the district by program. Mixed use and commercial occupies the south end, while high volume residential occupies the north end. The Grandstands exist to provide active Milwaukee Mile racetrack. The season public market and event space, MODEL PHOTO 1
18
MIXED USE MODEL PHOTO 2

spectator seating for the onceThe grandstands become a fourspace, complete with rooftop gardens.

The lake provides ecological advantages for native flora and fauna. The island is inaccessable for residents, creating a safe habitat for marshland creatures. Views of wildlife also allows residents escape from city life.

GRANDSTANDS MODEL PHOTO 3
19
ISLAND

BEND HOUSE

In this group project, we were tasked with designing a co-living structure for three prominent figures in Milwaukee. Our assigned site featured a dramatic slope on the edge of the Milwaukee river. We designed a modular living quarters as well as a community center to complete this SUPERjury award winning project.

Our priorities for this project were the distinctions between private and public spaces, daylighting, and integrating our form into the existing topography.

SP21

Professor Trudy Watt

Collaboration with Alana Dunne

Site: Riverwest, Milwaukee

20
21
22
23
24
25
CONCEPT COLLAGE
26
GREEN INTEGRATION CONCEPT COLLAGE OUTDOOR CONNECTION CONCEPT COLLAGE CONCEPT COLLAGE INDOOR SPACE
27
MASSING

BLUE BRANCHES

This study abroad design charaette required me and my partner to develop stormwater management solutions that would provide beautiful natural and ecological features to the Frankfurt UAS campus. “Blue Branches” describes the arms of water that connect throughout campus, collecting stormwater and cooling surrounding areas.

We challenged ourselves to create these blue features through hand drawn imagined conditions. Touring the campus, we discovered five areas in dire need of nature within hardscape.

At the end of this project, we presented our findings and subsequent drawings to a jury of environmentalist architects on the Frankfurt UAS campus.

SP23

Professor Jim Wasley

Site: Frankfurt, Germany

Collaboration with Tayler Forsberg

28
29
EXISTING CONDITION REIMAGINED CONDITION
30
WATERFALL FOUNTAIN EXISTING CONDITION REIMAGINED CONDITION
31
BIO-FILTRATION FOUNTAIN EXISTING CONDITION REIMAGINED CONDITION
30
SPLASH PAD EXISTING CONDITION REIMAGINED CONDITION
31
CENTRAL SWALE

THOREAU ELEMENTARY

In this fundamentaI design studio, I designed an ecology-based early learning center on a site in Riverwest, Milwaukee. My priorities for this project were complex roofing systems, natural forms, and accomodating different teaching styles.

The roof was my starting point. The form was dynamic and featured a dramatic change in geometry. The biggest challenge was finding the link between the two styles of roof structure.

Natural forms as well as daylighting were essential to this project. An elementary school should be whimsical and energetic. The students should feel engaged by the form and uplifted by the natural light.

SP22

Professor Karl Wallick

Site: Riverwest, Milwaukee

34
35

MODEL AND TOPOGRAPHY

A big focus in this project was integrating the existing topography into the design of the building. The site featured a steep slope on the North and East ends. Instead of ignore this change in topography and simply flatten the site, I decided to rework the site and sink the building into the landscape. This choice provided many advantages - underground parking, more control over apertures and lighting, and increased environmental connection for students and staff.

36
37
640 642 644 646 648 650 652 654 656 658 660 SITE PLAN 1/64” = 1’ 38
FIRST FLOOR PLAN 1/16” = 1’ SECOND FLOOR PLAN 1/16” = 1’ 39
40
41

CONTACT

608-572-5124

colli377@uwm.edu

3492 N Cramer Street Milwaukee, WI 53211

SKILLS

DIGITAL

• Rhino 3D

• Adobe Suite

• Microsoft Office Suite

• AutoCAD

• V-Ray

• Revit/BIM Modeling

• Enscape

• Sketchup

ANALOG

• Laser Cutting

• 3D Printing

• Woodworking

• Sketching

• Model Making

INTERPERSONAL

• Team Collaboration

• Presentation

• Adaptibility

• Creativity

ORGANIZATIONS

HONORS COLLEGE

Highly academic reading, writing and research on historical and contemporary topics chosen by honors faculty.

WOMAN IN DESIGN (W.I.D.)

ACHIEVEMENTS

SUPERjury Award Winner - May 2021

SUPERjury Award Finalist - May 2022

EDUCATION

UNIVERSITY OF MILWAUKEE - WISCONSIN

SEPTEMBER 2019 - MAY 2024

Bachelor of Architecture - B. Arch

STUDY ABROAD IN GERMANY - GREEN BUILDINGS

MAY 2023

Spent two weeks in Frankfurt, Germany studying green buildings and completing a design charrette on the Frankfurt UAS campus.

EXPERIENCE

STUDENT EXTERN - DESIGN FUGITIVES

MAY 2022

Spent 1 week assisting with digital modeling, laser cutting, and assembling large-scale architectural installation projects.

STUDENT INTERN - HGA ARCHITECTS & ENGINEERS

JUNE - SEPTEMBER 2023

Summer internship in HGA’s Healthcare Practice assisting with schematic design, AIA award submittals, and site analysis.

PROJECTS & STUDIOS

ARCHITECTURAL DESIGN I & II

SEPTEMBER 2021 - MAY 2022

Individual design investigations of a public library, apartment building, and elementary school. Emphasis on CLT construction and understanding structural systems.

URBAN ECO DISTRICT

SEPTEMBER - DECEMBER 2022

Urban design studio investigating an eco district on the site of the Historic Milwaukee Mile. Emphasis on daylighting Honey Creek which currenty runs underneath the site.

LINE, PLANE, MASS

JANUARY - MAY 2023

Elective studio focusing on building an intentional community that flunctuates in activtity through a 20-year span. Emphasis on scaffolding to keep the community standing.

COMPREHENSIVE STUDIO

SEPTEMBER - DECEMBER 2023

Rigorous individual design investigation involving site analysis, pre-design, construction documentation, and budget analysis for a Milwaukee Rare Books Archive.

Turn static files into dynamic content formats.

Create a flipbook
Issuu converts static files into: digital portfolios, online yearbooks, online catalogs, digital photo albums and more. Sign up and create your flipbook.