

![]()


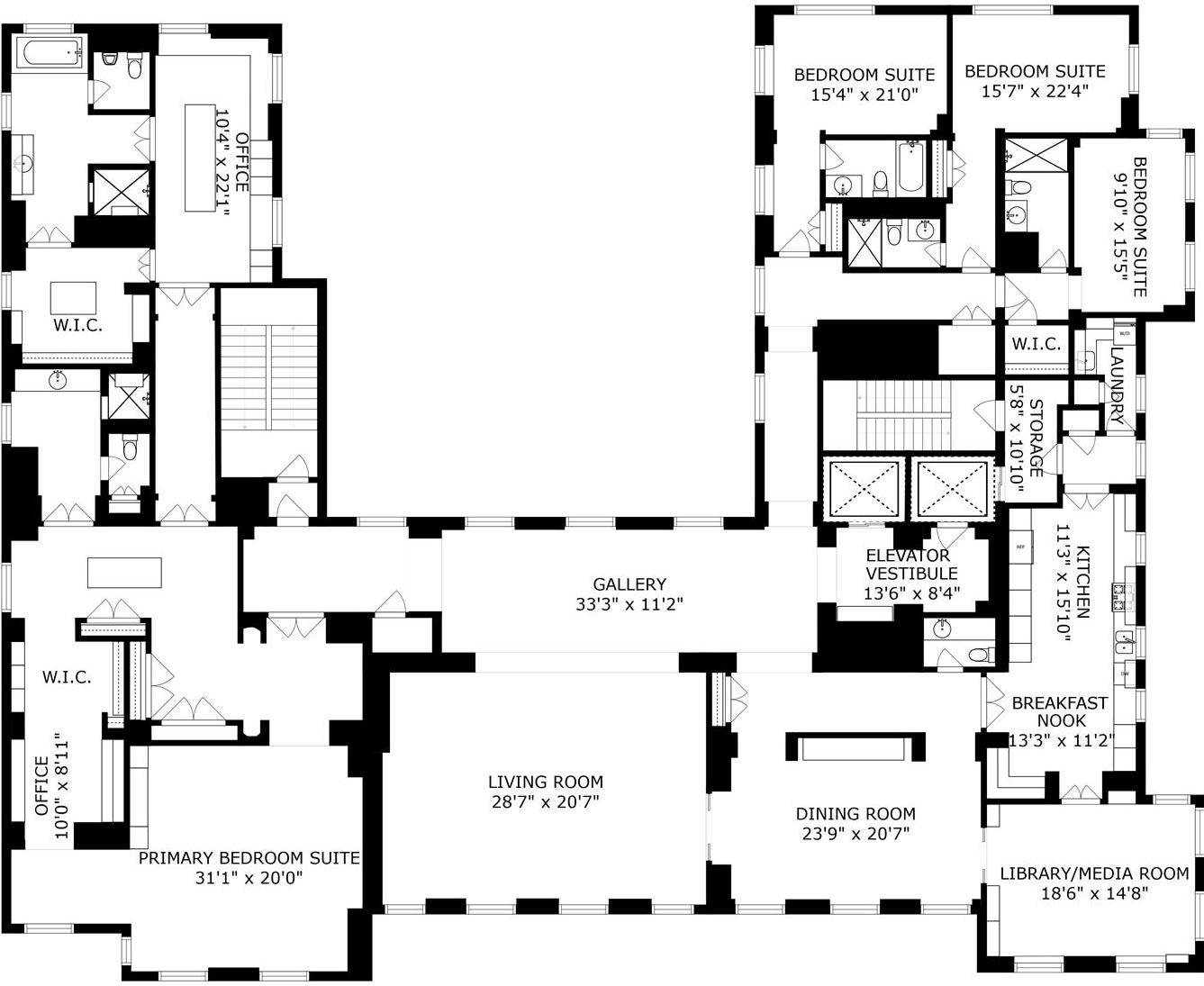
50 Central Park South #28 is a full floor 6,800 square feet ultra luxury bespoke condominium with 10 rooms –
4 bedrooms- 5.5 baths designed by AD 100 designer Thomas Pheasant. There are 102 linear feet of breathtaking Central Park views from 13 oversized windows. The centered Central Park views offer views at very realistic human scale making Central Park feel like your very own front lawn. The very gracious layout has grand scaled rooms that flow off the main gallery. The library/ media room, formal dining room and living room all have dramatic views of Central Park and open seamlessly into each other via pocket doors. The powder room has a beautiful brass basketweave custom vanity panel. The windowed eat-in-kitchen with Central Park views features contemporary white Poggenpohl cabinetry and honey toned marble countertops and backsplashes. The floors are Crema Marfil marble. There is a Miele wall oven, microwave and warming drawer. In addition, there are two dishwashers, Miehle plus a Fisher –Paykel and a double door Subzero refrigerator as well as a 6 burner Wolfe range with Gaggenau hood. There is a full laundry room off the kitchen with a Miele washer and dryer.
#28 was delivered as a white box from the developer. Thomas Pheasant’s custom design implement by AE Greyson, a top architectural firm consists of a chain of wooden boxes that are transitions into each living space of the apartment. These boxes frame each entry into each room and push the living areas and your vision towards the Central Park views. This element is repeated throughout the apartment. Elegant Anigre veneer in a rich golden shade is the millwork throughout the apartment. The floors are a crema marble with neutral area rugs throughout. The contemporary furnishings are also designed by Thomas Pheasant and can be purchased with the apartment.
For More Information, Contact : Carol Staab - Global Real Estate Advisor -Sotheby's International Real Estate Email :Carol.Staab@Sothebys.Realty Cell: 917-273-7787 Website: Carol.Staab.Com



Two separatebedroom wings offer tremendous privacy.One wing containsthe grand primary suite with Central Park viewsand views of the Sherry Netherland. There is sitting area with a built-in that has book shelves and opens to reveal a TV.There are two offices, two full baths and two large walk-in closets with islands. The other bedroom wing has three guestrooms with ensuite baths. The bedroom wings have open exposuresand excellent light.
There is a custom heating and air conditioning systemthat has room to room climate control plus a dehumidifying systemto protect fine art. The systemis pin quiet. There is a centralighting systemthat offers an even wash of various levels ofambient light. There is also an electronic drape and shade systemand a robust audio –visual systemthroughout.
Amenities include access to the 5 Star Ritz Carlton Hotel gym, movementroom and Peloton bike room as well as access tothe La Praire Spa, business room and Contour restaurant.Hotel services are available. There are only 12 residences at the Ritz Carlton . The residences have a private resident’s only lobby with a concierge and doorman.











Living/Media Room at Dusk






Office #2



Guest Bedroom


Guest Bedroom #2

Guest Room #3



Rendering of New Resident Lobby



Plan 6,800 Square Feet


Billionaires Row Neighborhood Narrated Property Video

Robb Report - Art News - Top 200 Art Collector
Event at 50 Central Park #28
Selling The Ritz Carlton & #28
The Ritz Carlton was the former home to the landmark St. Moriz Hotel. The 12 Exclusive residencies provide exceptional views of Central Park framed by either side by the mansions of Central Park West and Fifth Avenue. Every floor is unique and each resident has implemented their own master vision of a classic Manhattan home. The residents have a separate lobby. They have access to the gym, business center, La Prairie Spa, restaurant, and hotel services.
The hotel St. Moritz was designed by Emery Roth in 1930. Emery Roth was a prolific architect in the 1920’s and 1930’s incorporating Beaux Art and Art Deco details into his buildings. In 1999, Millennium Partners partnered with the Ritz Carlton to gut and renovate the hotel and converted the top twelve floors into luxury condominiums.








Carol Staab is a multi award-winning top-ranking luxury residential real estate broker She is a real estate TV commentator who has been interviewed on such networks as Fox Business News and Cheddar. Carol has been a guest on Talking Manhattan and Eye on Real Estate. Carol is the author of the Pulse, a Manhattan Luxury Real Estate Video & Digital market report. She is also a co-author of the book "Luxury Home Selling Mastery". She is quoted frequently in many publications such as Mansion Global, WSJ and the New York Times.
Carol Staab has a curated bespoke residential real estate practice where she handles all the transactions and relationships personally and on a very high level. It is much like a family wealth office. Her buyers and sellers gravitate towards her model of business where she provides them with exceptional care and service. She has a " seal " team that includes an administrative assistant, a property assistant, a marketing director, a graphic designer, a creative video team and a top photographer.
Carol's approach to marketing properties gets outstanding results for her clients. A comprehensive marketing plan, top photography and luxury level staging are all a part of her strategy. In addition, she has a branded property video created that tells a compelling story about the lifestyle that a home has to offer. Carol is well known for her success marketing and selling listings that fail to sell when previously listed. Some of her clients refer to her as the " real estate" doctor.
Carol's buyers benefit from her expert market knowledge. She helps her buyers pinpoint their dream home, negotiates fiercely on their behalf and guides them through the entire buying process and beyond.






