PORTAFOLIO ACADEMICO

Page 1

ARQ. LUNA PINILLA
INDICE NP1 NP2 NP3
HABITAT
.
OBSERVATORIO
CENTRO
. VIVIENDA
CENTRO
ARTISTICO .
ESPACIO LUGAR
REJILLA DE LOS 9 CUADRADOS
COLEGIO .
.
CULTURAL
MULTIFAMILIAR .
DE ESPARCIMIENTO
1 LUGAR
NUCLEO

REJILLA DE LOS NUEVE CUADRADOS

Se realiza un poryecto de diseño a partir de la reticula de los nueve cuadrados a partir de los conceptos aprendidos a lo largo del semestre haciedo uso de los espacios confinados, fluidos y determiandos generansoun balance en los mismos.

Finalmente se plantean fachadas con el fin de generar relaciones INTERIOR - EXTERIOR e implantar el proyecto.

REJILLA DE LOS 9 CUADRAODS

La REJILLA DE LOS NUEVE CUADRADOS es una reticula que facilita el diseño pues ofrece una estructura profunda y portante, tambien ayuda a entenderlo ya que permite organizar los elementos de composicion (punto, plano, linea).

PUNTO
ELEMENTOS
LINEA PLANO VOLUMEN

COMPOSICION AXIAL

PUNTO LINEA

ESPACIO DETERMINADO. ESPACIO CONFINADO

DILATACIONYCOMPRESIONDEEJES

PUNTO
CONTRAPUNTO
ESPACIO

Recopilando cada uno de los conceptos vistos se plante un un proyecto de intervencion sobre la Calle 45 cuya funcion seria netamente educativa.

El diseño consta de una volumentria irregular que abarca la mayor parte d el predio, como principio ordenador se encuentra EL CENTRO .

Cada uno de lo volumenes en funcion constan de 3 niveles a difrentes anturas cada uno.

OPERACIONES COMPOSITIVAS CIRCULACIONES

PRIMERNIVEL SEGUNDOYTERCERNIVEL

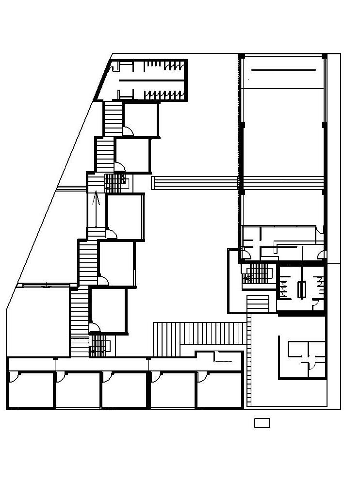
CENTRO CULTURAL CANDELARIA

En la segunda fase del nucleo se plantea un Diseño en un sector patrimonial teniendo en cuenta toda la normativa y cada una de la exigencias del lugar.

Su principio ordenador a partir del doble eje axial por cada uno de los dos sentidos de los accesos del proyecto,

NIVEL 2
NIVEL 3
NUCLEO 3 HABITAT

RESIDENCIA

Siguiendo el nucleo problemico de Habitat se plantea un proyecto de uso RESIDENCIAL ubicadoe ne el BARRIO SANTAFE .El proyecto abarca una manzana completa de lo cual se deriiva su forma cuadriculada y ortogonal con un principio ordenador a partir del centro de la composicion volumetrica.

El proyecto consta de 3 niveles con el fin de tener diferentes usos en ellos, en el pirmer nivel se ubicara tosdo el comercio muentras que en los demas se determinara el uso residencial.

APARTAMENTO TIPO.

PLANTA TIPO

( ) * LA@3E 5A G@7E LA@3E 5A?G@7E

Turn static files into dynamic content formats.

Create a flipbook
Issuu converts static files into: digital portfolios, online yearbooks, online catalogs, digital photo albums and more. Sign up and create your flipbook.