PORTFOLIO
Duong Luong TRAN - Architecte
Duong - Luong TRAN
Architecte D.E. - référent BIM
Né : décembre 1993
Adresse : Nemours, France.
Téléphone : 07 69 68 83 92
Email : architecte.tran@gmail.com
Permis : B
Mobilité : Île-de-France
EXPÉRIENCES PROFESSIONNELLES :
octobre 2021 - mai 2024
MU ARCHITECTURE
Assistant de chef de projet (Concours, APD, PRO, DCE) :
• Assistant à la conception.
• Chargé des productions graphiques.
• Synthèse technique BIM.
• Gestion de modélisation BIM.
• Support aux utilisateurs BIM.
juillet - septembre 2021
ATELIER DE MIDI
Stagiaire en architecture (DCE) :
• Assistant à la conception.
• Chargé des productions graphiques.
• Modeleur BIM.
février - septembre 2019
STUDIO AFL - FRÉDÉRIC LEBARD
Assistant de chef de projet (Concours, ESQ, PRO) :
• Assistant à la conception.
• Chargé des productions graphiques.
• Modélisation des maquettes 3D.
issuu.com/luong.tran.archi/docs/book-luong_tran
LANGUES : PORTFOLIO :
Vietnamien
Français
Anglais
COMPÉTENCES PROFESSIONNELLES :
août - décembre 2018
CARRÉ BASSET ASSOCIÉS
Stagiaire en retail-design (ESQ) :
• Assistant à la recherche créative.
• Modélisation des maquettes 3D.
• Création des maquettes physiques.
• Création des dessins techniques des produits.
ÉTUDES :
2019 – 2021
ÉCOLE D’ARCHITECTURE PARIS - VAL DE SEINE, FRANCE
Master D.E.A - Diplôme d’État d’Architecte
2017 – 2018
ÉCOLE D’ARCHITECTURE DE GRENOBLE, FRANCE
Master D.P.E.A - Design & innovation pour l’architecture
2012 - 2017
UNIVERSITÉ VAN LANG, VIETNAM
Diplôme d’architecte
#sommaire
#travail:
01. MU Architecture:
• 01.1. Groupe scolaire
• 01.2. Complexe sportif
• 01.3. Immeuble de bureaux, 3 hôtels & un parking
02. Studio AFL - Frédéric Lebard:
• 02. Une villa en Grèce
#études:
03.1. Projet de fin d’études - ENSA
• Parcours 01 - Observatoire des oiseaux
• Parcours 02 - Maison éclusière
• Parcours 03 - Moulin Damay
03.2. Projet ENSA - semestre 7
• Gare de Rouen
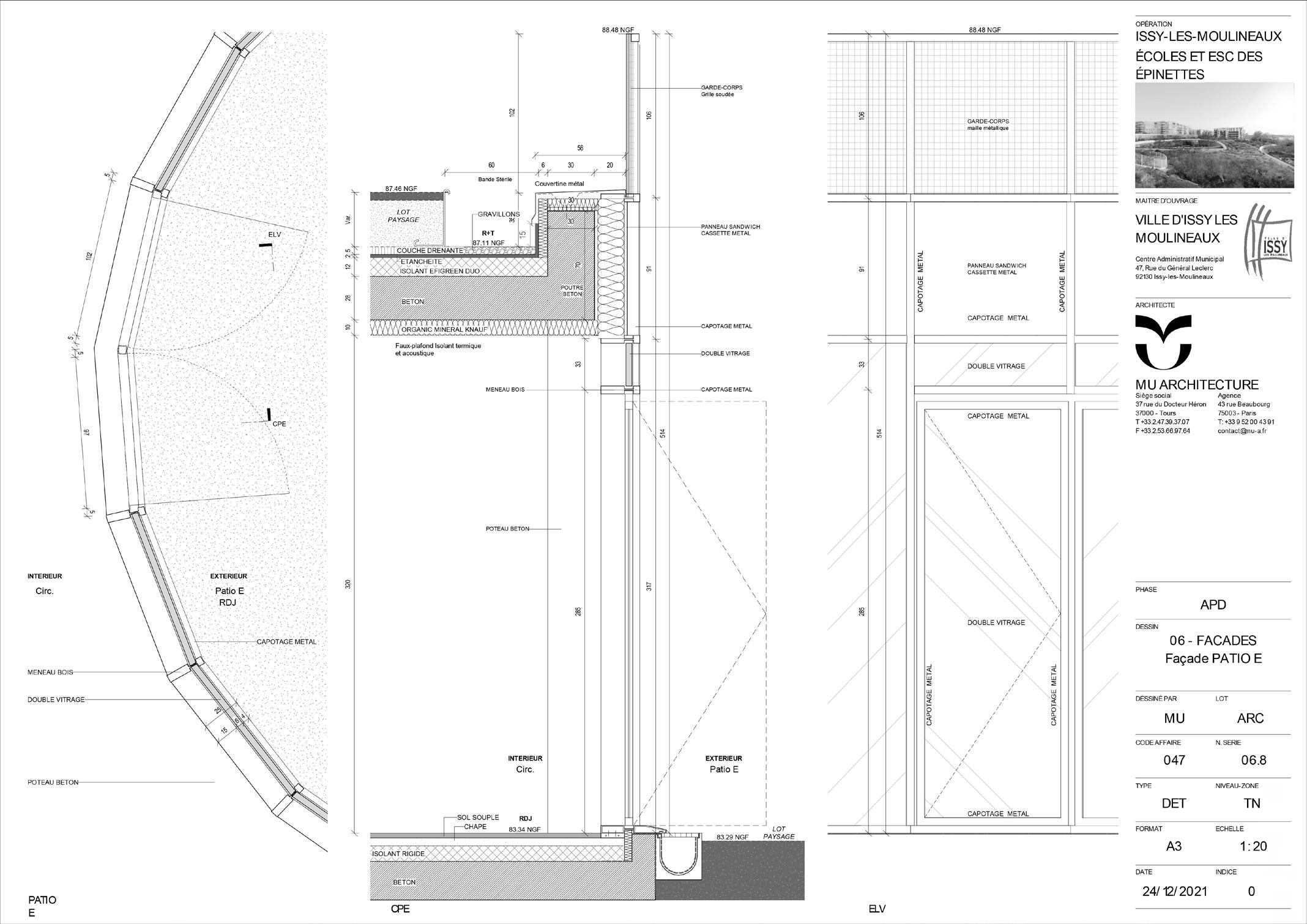
MOA : Ville d’Issy les Moulineaux
Année : 2021-2024
Logiciels : Revit + Rhino + Enscape + Photoshop + Indesign
Objectif :
- Une école en plein air: des classes et des jardins comme accrochés aux coteaux d’une montagne.
OPÉRATION
ISSY-LES-MOULINEAUX
I-01 PERSPECTIVES & AXONOMETRIES Axo générale
- L’école offre une synthèse harmonieuse entre nature et culture.
- Chaque classe a son jardin qui s’insère aussi dans une promenade champêtre, aux allures de chemin de
VILLE D'ISSY LES MOULINEAUX
ARCHITECTE
DESSIN
I - PERSPECTIVES & AXONOMETRIES Axo générale ÉCOLES ET ESC DES ÉPINETTES
- Les cours oasis sont des lieux de la biodiversité, d’expérimentations.
DÉSSINÉ
MOE : MU Architecture
MOA : Ville de Montigny le Bretonneux
Perspectivist : Poly8
Année : 2023
Logiciels : Rhino + Enscape + Photoshop + Indesign
Objectif :
- Revalorisation de l’enveloppe.
- Revalorisation des espaces extérieurs.
- Réutilisation d’un maximum de matériaux du bâtiment initial.
Coupe
: Construction d’un immeuble de bureaux, de 3 hôtels & d’un parking silo
MOE : MU Architecture
MOA : AeroliansParis
Perspectivist : Fasea
Année : 2022
Logiciels : Revit + Rhino + Enscape + Photoshop + Indesign
Objectif :
- 100% des espaces sont traversants pour optimiser le confort intérieur.
- Une transparence entre l’espace public et le cœur d’îlot.
- Un espace naturel le plus grand possible en cœur d’îlot.
- Des matériaux issus de filières de réemploi.
AA sur les bureaux (R+7)
sur les hôtels & le parking silo
Coupe BB sur l’hôtel 4 étoiles (R+8) et sur les parkings (R+6)
R+6
Coupe
Coupe sur les bureaux
Coupe
MOE : Studio AFL - Frédéric Lebard
MOA : Privé
Année : 2019
Logiciels : Sketchup + AutoCAD + Vray + Photoshop
Objectif :
- Conserver le volume initial de la structure existante, en orientant au maximum les vues vers le paysage et la mer.
- Les terrasse et les grandes fenêtres toutes tournées vers la plage permettent de cadrer différents panoramas sur le paysage.
- L’ensemble de façade étant réalisée en pierre massive et inox, en réfléchissant le paysage alentour.
OBSERVER LES OISEAUX À CLÉRY-SUR-SOMME
Studio : “Métabolismes urbains - Au fil de l’eau”
Professeurs : Xavier Lagurgue
LANGLOIS Gilles-Antoine
LÉGER Pierre
CORTESSE Sonia
MAUFAY Antoine
BAUMANN Vincent
Année : 2021
Logiciels : Revit + AutoCAD + Enscape + Photoshop + Indesign
Objectif :
- Le grand attrait du studio “Métabolismes urbains - Au fil de l’eau” est qu’il pose et nous oblige à nous poser de multiples questions autour de l’écologie, sur l’art d’habiter dans un milieu fragile et amené à évoluer naturellement. L’analyse du site étant faite avec précision, elle devient la base cohérente sur laquelle déterminer et bâtir le projet. Le projet devient alors indissociable des questions écologiques et du métabolisme urbain et sa raison d’être.
- Le fil conducteur qui rassemble tous les sites des étudiants du studio est l’eau. Car un cours d’eau amène naturellement l’écologique dans le projet architectural. Avant de choisir un cours d’eau précis, j’ai décidé de travailler sur un territoire qui m’était inconnu afin de ne pas avoir d’a priori. La vision extérieure d’un site me permet de relever plus objectivement ses avantages et ses problématiques. En revanche, être lié sentimentalement à son histoire peut fausser ma vision en la rendant trop subjective.
- D’autre part, j’ai choisi de travailler sur un territoire où j’avais pas préalablement relevé des sites ayant déjà des projets potentiels. Les sites de projets se sont révélés au fur et à mesure de l’avancement du diagnostic. Cela m’a permis de comprendre un territoire et d’aboutir à une architecture adaptée. Mon choix s’est finalement porté sur la Somme et plus particulièrement sur la Haute Somme. Territoire qui reste méconnu. Parfois délaissé, parfois privatisé ce qui ne le rend pas toujours facile d’accès. C’est un grand cours d’eau atypique serpente dans la vallée pour morceler la terre et former une multitude d’étangs, surtout dans la Haute-Somme.



Durant la Première Guerre mondiale, autour de l’étang de Haut et de Cléry-sur-Somme, de très nombreuses tranchées ont été creusées. Elles ont physiquement disparu mais ont laissé des cicatrices dans le sol et dans les mémoires. J’ai choisi de référencer cette Histoire en créant de nouvelles tranchées pour pouvoir observer sans être vu, des tranchées sorties du sol et dont la finalité n’est pas belliqueuse mais pacifique : observer les oiseaux.
Schéma de la tranchée francaise
Coupe
Parcours 02 : S’arrêter à la maison éclusière de Sormont
De nombreuses maisons éclusières situées tout au long du fleuve de la Somme ont été reconverties dans le but de conjuguer tourisme et valorisation du patrimoine bâti. L’ensemble de ces réhabilitations crée le réseau des maisons éclusières de la Somme. J’inscris l’ensemble de mon projet dans cette démarche. Ainsi, cette maison éclusière de Sormont devient un lieu de restauration et de gite.
Esquisse de la maison éclusière existante
Perspective de la maison éclusière avec l’extension
La programmation du Moulin fait face à trois contraintes principales :
1. Dans un premier temps, l’édifice possède des volumes atypiques propres à son histoire. Le grand silo du bâtiment nord en fait partie.
2. Le Moulin se compose de différents bâtiments et de nombreuses différences de niveaux entre ses plateaux. La programmation doit s’adapter à ces espaces spécifiques pour pouvoir les conserver. Dans un second temps, je souhaite conserver la totalité de la structure principale et atypique du Moulin afin de révéler et revaloriser ce qui est actuellement caché.
3. Dans un troisième temps, le Moulin possède une grande surface. Pour que la totalité de cet espace soit exploitée avec cohérence, le programme doit être adapté aux besoins de la ville de Péronne. Aussi, j’ai opté pour une programmation mixte : hébergements, coworking et salle de concert polyvalente.
Auditorium polyvalent
Belvédère
Salles pédagogiques artistiques
Appart-hôtel
Studio : Ville & infrastructure. Expérimentations
Professeurs : Anna Maria Bordas
Année : 2019
Logiciels : Revit + AutoCAD + Photoshop + Indesign
Objectif :
- Relation de la ville et l’infrastructure: comment l’activité et la condition d’échange crée par le transport crée des échanges.
- Paysage et infrastructure: continuités, nivellement, porosités.
- Seuil intérieur/extérieur: relation entre espace public et “équipement” public. Seuils de privacité, seuils de contrôle.
- Flux / vitesse / temps: comment est perçu l’espace à différentes vitesses.