Proyecto Residencial EBA

Page 1

LUJANRICARTE

Diseño y asesoria

Ubicacion: Estacion Buenos aires

lujanricarte@hotmail.com

Sector 5 Año:2022 Contacto:
LR 01.

Living Comedor

02.

Imagenes digitales del living comedor, los estantes sobre el sillon se extienden para ampliar integrados.

Alternativa estanteria del pasillo, utilizada para llenar el vacio y aportar un acertado

03.

ampliar visualmente el espacio del living, optimiza la relacion entre los espacios acertado contraste.

04. LR
Estanterias 05.
Comedor 06.
07.
LR 08.

Analisis de alternativas

Color azul, derivado de su uso existente en mesa ratona, Genera un hilo conductor, mayor acentuacion y contraste con el mobiliario, entre calido y frio.

Color marron como predominante, se pierde la idea de contraste, se deteriora el hilo conductor, pierde acentuacion.

01. 03.
09.

Color azul como predominante, acentua las zonas principales, comedor y living, el tono calido interactua con el mobiliario.

Color marron, hilo conductor mas tenue y calido, el living de tonos frios es lo unico que desencaja con la calidez de la alternativa.

02. 04. 10.

Imagen digital con modelo de sillas ‘’existente’’.

Referencias

-Iluminacion comedor Artefacto riel de 3 spots

-Mobiliario comedor

Silla tipo industrial ‘’Tolix’’ Metalica y asiento de madera

Mesa tipo industrial Soporte de hierro y base de madera

11.

horizontal y vertical tipo industrial Soportes de hierro a la vista Estantes de madera

de

Cubo

Metal

Colores de pintura:

Codigo:

Opcional Banco tipo industrial Soporte de hierro base de madera

-Estantes
-Artefacto
colgar
de 3 luces
negro
-Azul ‘’Dark Blue’’
289 C -’’Marron’’ Codigo 4645 C -Madera ‘’Paraiso’’
12.
13.

Balcon

LR 14.

Imagen digital balcon, asiento de guardado con 3 cajones, madera de exterior con tablas de 1,50 mts de alto.

15.

con impregnante cetol, impermeable de lluvia. Opcional, deck de madera vertical,

LR 16.
LR 17.

Habitacion

Home Office 18.

Imagen digital home office, se propone añadir una extension al escritorio existente. La se utilice cuando se necesite, y cuando no, no ocupe espacio.

19.

La extension puede ser amurada con mensulas rebatibles/plegables, de forma que

LR 20.
21. LR

Mueble de guardado

22.

Estantes flotantes, 1er estante con toallero para manos.

LR
LR 23.
Baño 24.
LR 26.

Habitacion Principal

27.

LR

Azul: Color que transmite sensacion de tranquilidad frescura y calma.

Alternativas

LR
28.

Alternativas

Color marron: confortable, se asocia con la naturaleza, y aporta calidez.

29.
30.
LR 31.
32.

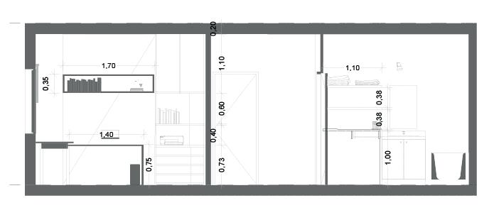
Comedor Living Balcon

Home office Baño

Medidas

Mobiliario 33.

LUJANRICARTE

Diseño y asesoria

Contacto: lujanricarte@hotmail.com

Año:2022

Turn static files into dynamic content formats.

Create a flipbook
Issuu converts static files into: digital portfolios, online yearbooks, online catalogs, digital photo albums and more. Sign up and create your flipbook.